Umnutzung eines Gewerbegebäudes
Sanierung- und Umbau, Reitschulstrasse 5, 2502 Biel
Die Eigentümerschaft sucht nach neuen Mietern und will diese mit folgenden vier neuen Nutzungen erreichen: - Gemeinschafts-Arztpraxen - Business- und Studentenhotel - Kleinbüros - Wohnraum Mein Projekt zeigt auf, wie ein nachhaltiges, wirtschaftliches und modernes Gebäude aussehen könnte.
Entwurf
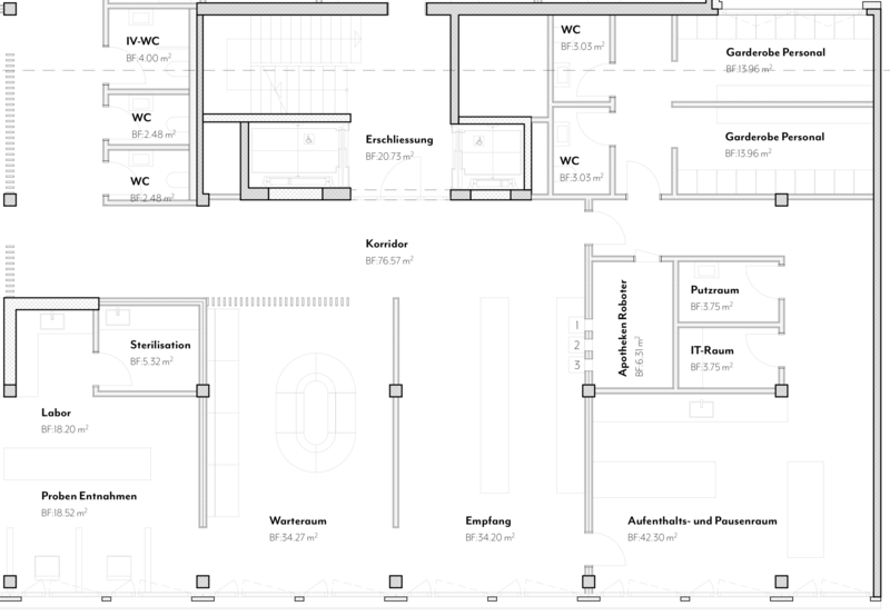
Die Marktanalyse ergab, dass sich in näherer Umgebung mehrere medizinische Praxen befinden. Deshalb wurde auf eine Praxisgemeinschaft gesetzt. Das 1. Obergeschoss bietet am meisten Platz dafür. Der Entwurf bietet für folgende drei Praxen platz:
- Allgemein Medizin
- Psychotherapie für Jugendliche
- Physiotherapie
Im 2. Obergeschoss befindet sich neu ein Co-Working Space. Dieses spannende Geschoss bietet für diverse Bedürfnisse eine Anzahl an verschiedene Räume und Sitzungszimmer. Der gemeinsame Aufenthaltsraum, die Entspannungs- und Sporträume sind von zentraler Bedeutung.
Das Studentenhotel ist funktional, deckt aber trotzdem die meisten Bedürfnisse ab. Hier gibt es diverse Zimmergrössen von 1er bis 4er Zimmer, sowie einen Aufenthaltsraum mit Küche, ein Lernbereich und ein Gym.
Über zwei Geschosse zieht sich das Businesshotel. Die Zimmer bieten einen hohen Komfort und sind grosszügig ausgelegt. Weiter befinden sich in diesen Geschossen Seminarräume die von den Gästen gemietet werden können.
Im Dachgeschoss befindet sich das Highlight des Projekts. Die beiden exklusiven Wohnungen mit Atrium sind lichtdurchflutet. Durch den grossen Dachgarten und die Terrassen, wird ein wichtiger Bezug nach Draussen und zur Natur geschaffen.
Material- und Farbkonzept
Die Konzepte teilen sich nach Nutzungen auf die Geschosse auf. Einzig das Konzept der Erschliessung zieht sich über alle Geschosse. Die Inspiration zu den Konzepten entstand dabei durch die Umgebung und das zu erreichende Nutzergefühl.
Konstruktion
Nachhaltigkeit und Langfristigkeit spielte bei der Materialwahl eine grosse Rolle. An der ganzen Gebäudehülle wurde nur mit Mineralwolle gedämmt. Die beiden Hauptfassaden zur Mittelstrasse und zur Reitschulstrasse hin, wurden mit einer teilweise hinterlüfteten Fassade erstellt. Bei den Sturzelementen aus Beton mit dem heimischem Jurakalk wurde eine Verbindung zur Bauweise der Altstadt hergestellt.
Fazit
Die attraktive Lage nahe der Altstadt wirkt sich positiv auf die Vermietung aus und verringert das Risiko. Durch die klare Funktion der Grundrisse, unterhaltsarme Gebäudehülle und ökologische Haustechnik gewinnt das Projekt an hohem Wert. Das Gebäude ist für die Zukunft gewappnet und die Erwirtschaftung eines konstanten Ertrags ist sichergestellt.
Ramon Gisler
Dokumentation
Zusammenstellung der wichtigsten Grundlagenpläne






