Umnutzung eines Gewerbegebäudes in Biel
Diplomarbeit 2020
Mit der Umnutzung des bestehenden Gewerbegebäudes soll das momentane Vermietungsproblem gelöst werden, da mit den vorgegebenen Nutzungen fehlende Marktangebote abgedeckt werden. Mit der Gebäudehüllensanierung wird der 70-er Jahre Bau optisch und technisch aufgewertet. Bei der Baumaterialwahl wurde auf die Ökologie, eine lange Nutzungsdauer und geringe Unterhaltsarbeiten geachtet.
Die Südwest Fassade zum Marktplatz sowie die Nordwest Fassade zur Mittelstrasse sind denkmalpflegerisch geschützt und stadtbildrelevant, daher wird die Struktur sowie auch die Farbgebung der neuen Gebäudehülle dem Bestand angepasst.
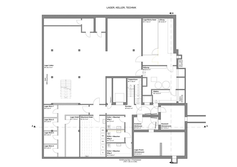
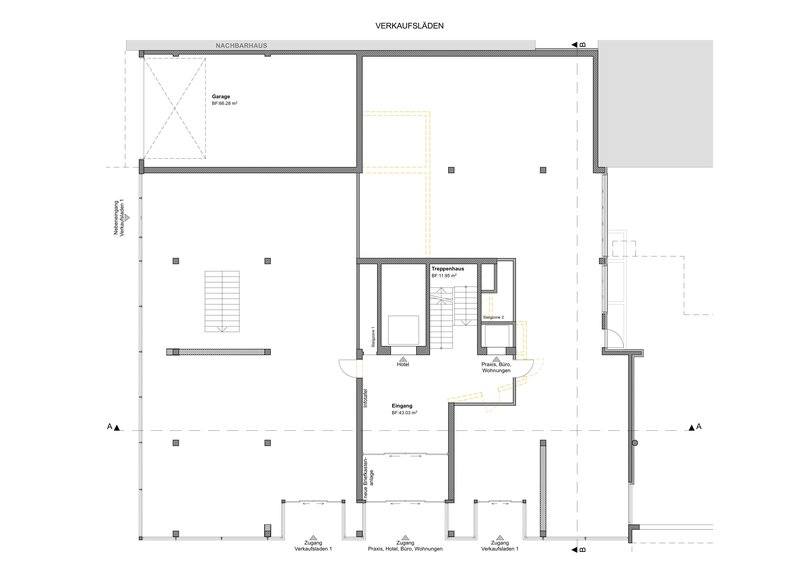
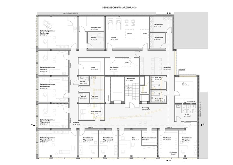
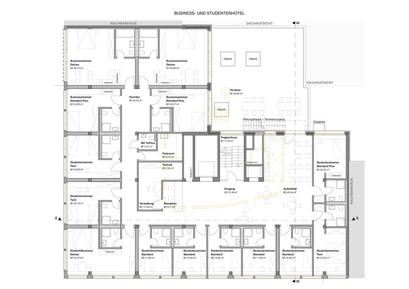
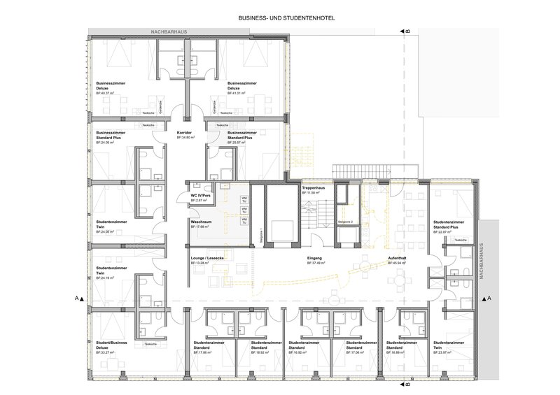
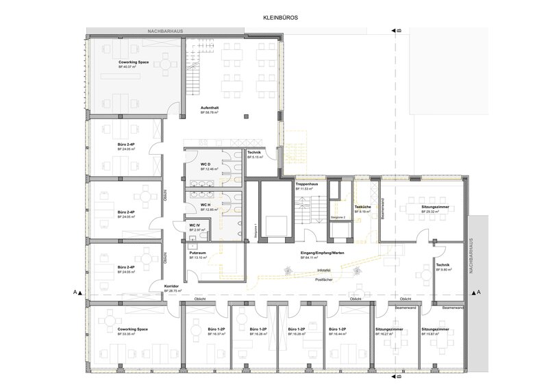
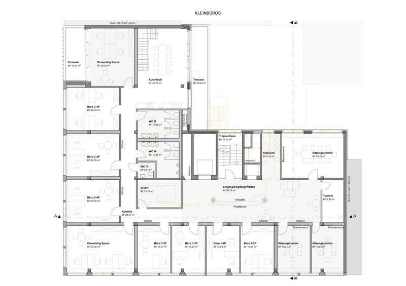
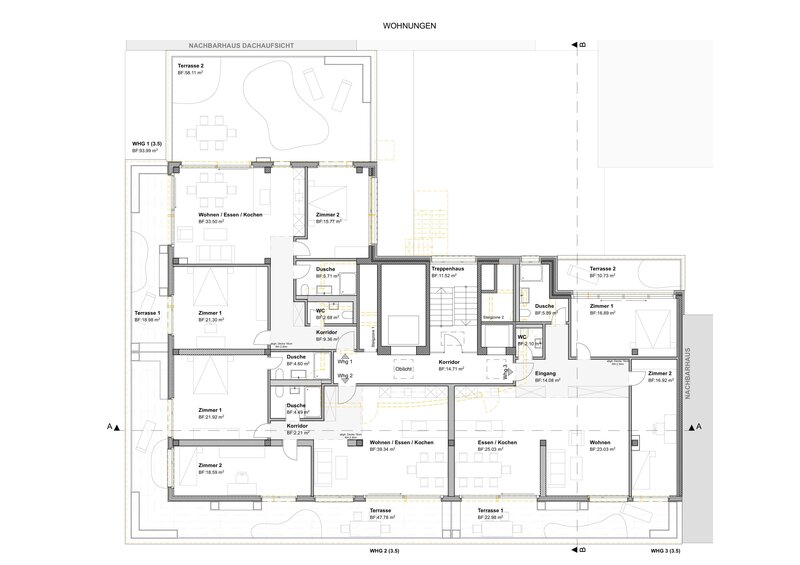
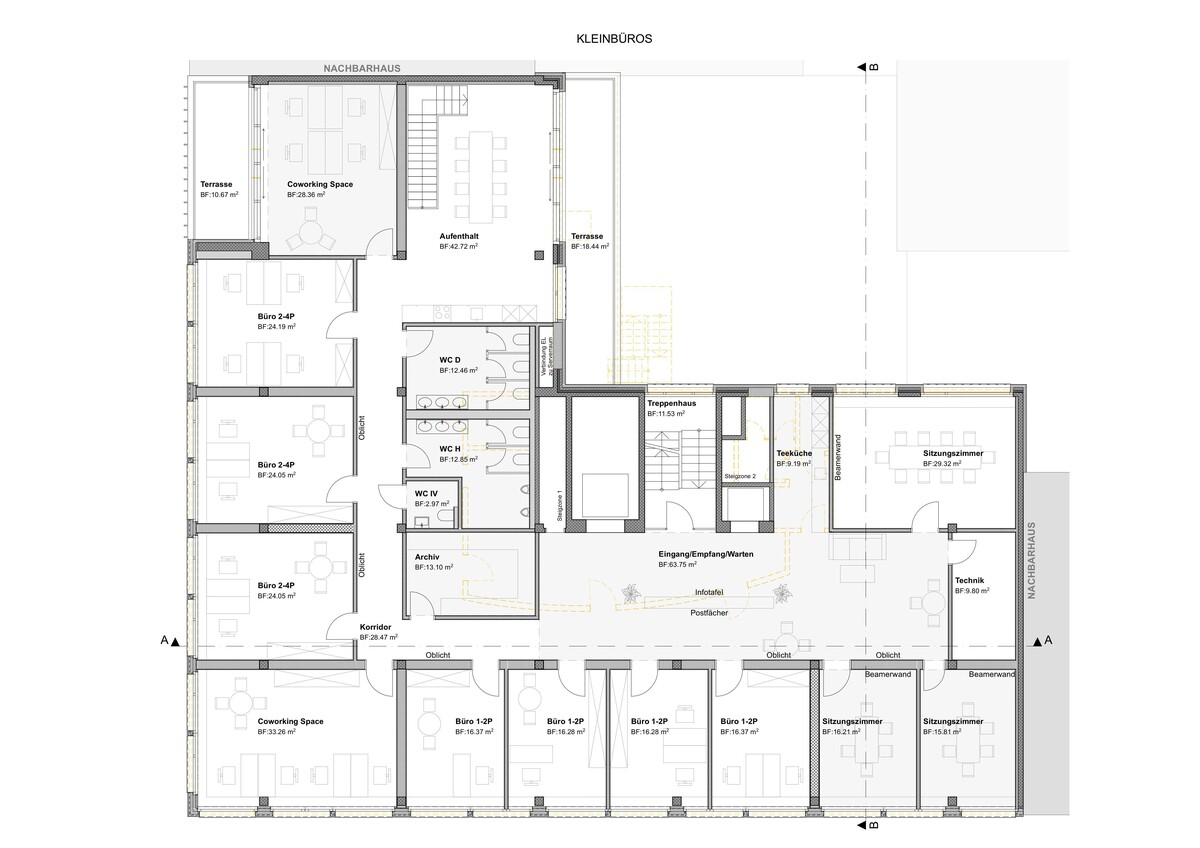
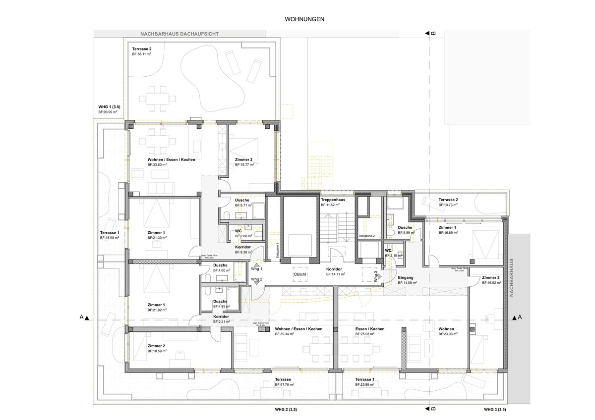
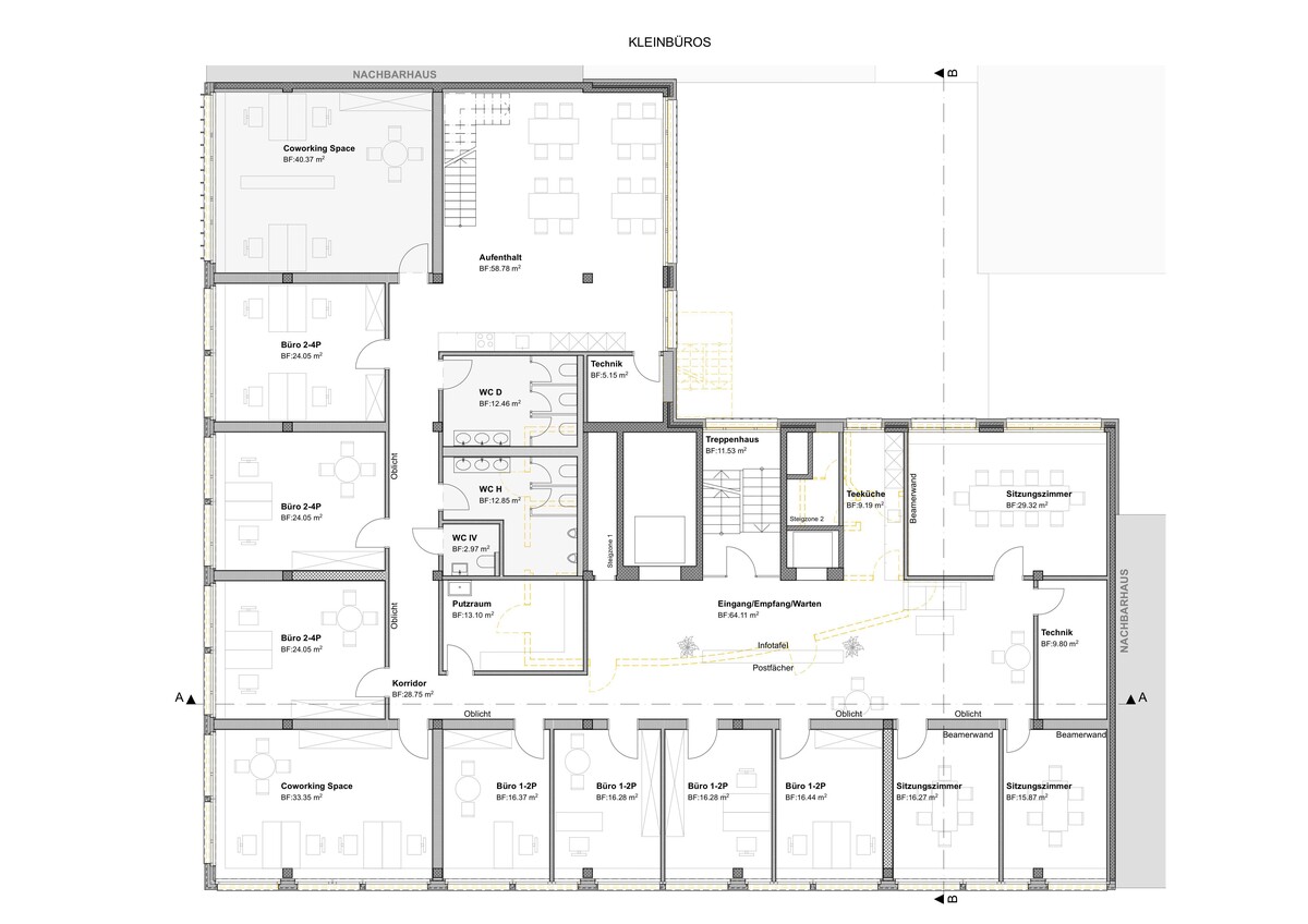
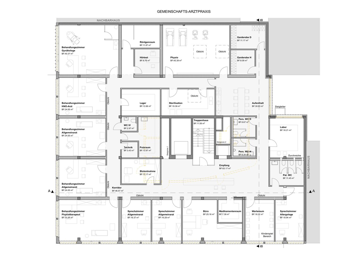
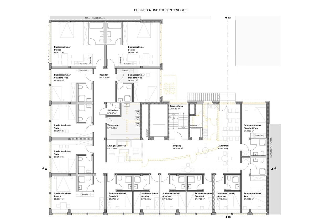
Bei der neuen Grundrissaufteilung wurden auf die technischen sowie auch die Rendite relevanten Aspekte geachtet. Somit ist im 1. Obergeschoss eine grosse Gemeinschafts-Arztpraxis angelegt, im 2. + 3. Obergeschoss werden die Hotelzimmer inklusive allen Gemeinschaftsflächen angeordnet und im 4. + 5. Obergeschoss sind die Räume für die Kleinbüros vorgesehen. Das Attikageschoss wird, wie in der Aufgabenstellung vorgegeben, mit Wohnungen ausgebaut.
Bei der Baumaterialwahl wurde neben den ökologischen und nutzungsrelevanten Grundsätzen auch auf die bauphysikalischen Anforderungen geachtet. Somit entsprechen die neuen Aufbauten den heutigen wärme- und schalldämmtechnischen Normen.
Die Haustechnikinstallationen werden grössten Teils zurückgebaut und den heutigen Normen sowie den neuen Nutzungen angepasst.
Neu werden alle Geschosse mit einer Fussbodenheizung beheizt. Die bestehende Gasheizung von 2016 ist für die benötigte Leistung ausreichend und wird belassen. Trotzdem werden auf dem Dach zusätzlich Solarkollektoren platziert, denn somit kann 40% der Warmwassererwärmung mit erneuerbarer Energie abgedeckt werden.
Damit keine konventionelle Fensterlüftung zur lärmintensiven Strasse notwendig ist, wird für jede Nutzung eine passendes Lüftungssystem vorgesehen.
Für die Bauherrschaft ist eine angemessene Rendite von grosser Bedeutung.
Anhand der detailliert erstellten Kostenermittlung nach BKP, den ausgewiesenen Vermietungsflächen, sowie den recherchierten Mietpreisen, konnten die Renditen für die einzelnen Nutzungen separat berechnet werden. Bei fast allen Nutzungen konnte eine gute Rendite erzielt werden. Über das gesamte Gebäude gerechnet gleicht sich dies jedoch aus und es wird eine totale Nettorendite von 2.61% erreicht.

Anja Eberhard
Dokumentationen
weitere Einblicke in das Projekt













