Diplomarbeit 2025
(Denkmalgeschütztes) Hallenschwimmbad
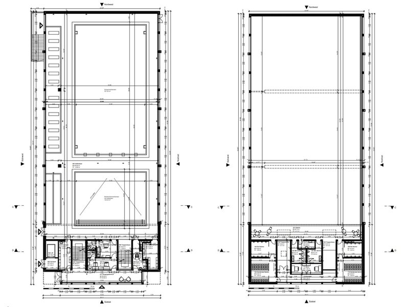
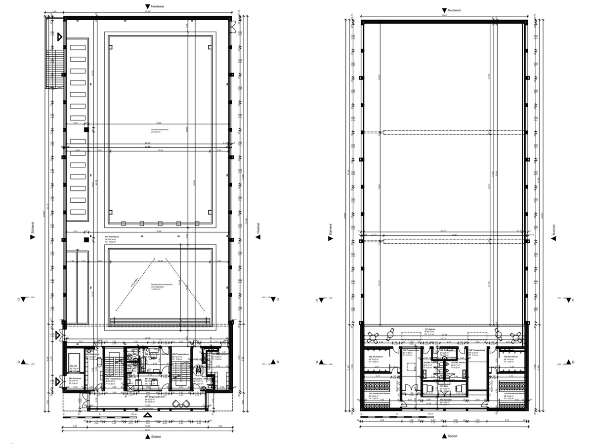
Die denkmalgeschützte Schulanlage Säli in Olten (SO) besitzt im Sporttrakt eine integrierte Schwimmhalle. Wegen starken Bauschäden muss das Bad erneuert werden. Im Zuge dieser Diplomarbeit werden die Projektvarianten Umbau | Sanierung und Neubau erarbeitet. Für die Projektierung ist auf den Denkmalschutz Rücksicht zu nehmen.
Variante A Umbau | Sanierung
- 2 Millionen Franken
Im Sporttrakt befindet sich eine integrierte Schwimmhalle, die zurzeit mehrere Baumängel aufweist. Unter anderem ein undichtes Schwimmbecken, Nichteinhaltung von Hygienevorschriften, abgenutzte Baumaterialien und eine veraltete Wasseraufbereitungstechnik. Im Rahmen dieser Variante sollen dazugehörende Räume, wie Schwimmhalle, Garderoben, Duschen und WC's saniert werden. Um die Schwimmbadtechnik ersetzen zu können, dürfen die dazugehörenden Technikräumen, unter Einfluss der Gebäudetechnik und neuen Anforderungen, umgebaut werden.
Variante B Neubau
- 9.5 Millionen Franken
Auf der Parzelle des Schulareals soll ein Neubau für ein Hallenbad entstehen. Zur Verfügung steht dafür der schuleigene Rasenplatz. Ziel ist es, die Rentabilität der Schwimmhalle zu stärken, indem das Bad künftig eine attraktive Anlaufstelle für Vereine und für private Besucher wird.
Umfang
Die Arbeit erstreckt sich über alle Leistungsphasen von der Entwurfsstudie bis zur Ausführungs- und Detailplanung. Neben der architektonischen Planung deckt die Diplomarbeit Konzepte zur Statik, Bauphysik, Brandschutz, Haustechnik, Farb- / Materialwahl und Baulogistik ab. Zudem werden mit den Kosten- / Unterhaltsberechnungen und einem Terminprogramm weitere Bereiche abgedeckt.
Die erarbeiteten Unterlagen dienen als Entscheidungsgrundlage für zukünftige bauliche Massnahmen der Schulanlage Säli betreffend Schwimmhalle.

Cindy Suremann
Diplomarbeit 2025
Projektvarianten Umbau | Sanierung | Neubau (Denkmalgeschütztes) Hallenschwimmbad









