Umnutzung einer Lagerhalle
Weilerweg 20, Kleinhüningen - 8 Ateliers zur Miete
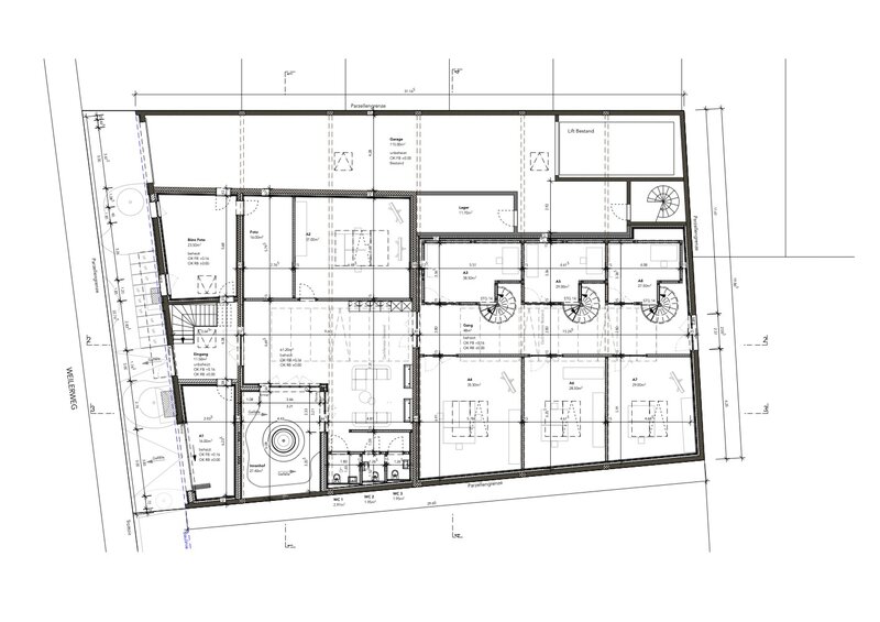
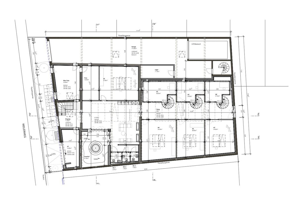
Am Weilerweg 20 in Kleinhüningen steht eine Lagerhalle aus dem Baujahr 1963. Unsere Diplomarbeit stützt sich auf eine Umnutzung des Erdgeschosses damit eine wirtschaftliche und selbstständige Weiterführung möglich wird.
Umnutzung
Im Untergeschoss haben sich über die Jahre verschiedene Mieter aus den Bereichen Kultur und Kreativität eingerichtet. Nun soll sich die neue Nutzung im Erdgeschoss diesem Themenfeld anschließen und 8 Ateliers zur Vermietung anbieten.
Entwurf
Die Gebäudekubatur wird bestehen gelassen und teilt die Halle in ihrer natürlichen weisse in 3 Abschnitte.
Der erste Abschnitt dient als Eingangsbereich und ist mit den beiden Zugängen und dem Fluchtweg für das Untergeschoss in einer ähnlichen Struktur geblieben.
Erst beim Öffnen der Glastür betritt man den zweiten Abschnitt, der sich mit dem neuen Innenhof und dem grossen bestehenden Dachfenster einen hellen Eindruck vermittelt. Dieser Bereich wird mit einer kleinen Teeküche sowie mit den Nasszellen und dem Innenhof zu einem Aufenthaltsbereich, an dem man sich austauschen und verweilen kann.
Beim Betreten der zweiten Glastür befindet man sich zwischen 6 verschieden grosse Ateliers, die für unterschiedliche Nutzungen im kreativen Bereich gemietet werden können. Auf der linken Seite erstrecken sich die Galerien, die eine maximale Nutzung auch in die Höhe ermöglichen
Bauliche Massnahmen
Um die Bauphysikalischen Anforderungen einzuhalten, wird die Halle neu isoliert. Die Haustechnik wird vollständig erneuert und soll dem Gebäude eine zeitgemässe und angenehme Nutzung ermöglichen. Beim Entwerfen wurde darauf geachtet, dass die bestehende Tragstruktur nicht verändert wird.
Materialkonzept
Die Fassade wird neu in einem dunklen Holz verkleidet, die sich deutlich von den Nachbarsgebäude absetzt aber sehr modern erscheint und sich gut an das angrenzende Industriegebiet anfügt.
Im Innenbereich wird mit einem schlichten Materialkonzept gearbeitet, da die Nutzung Farbe und Kreativität mit sich bringt.

Céline Verrelli
Diplomarbeit 2025
Link zur Broschüre











