Dipl. Techniker/in HF Bauplanung Architektur

Hub of Creative Content

Umnutzung des Bestandesbaus am Weilerweg 20, Basel

Für die bestehende Liegenschaft am Weilerweg 20 in 4057 Basel, ein ehemaliges Produktionsgebäude für Kunststoffprodukte, wird eine neue Nutzung gesucht. Die Betreibergesellschaft verfügt über eigene Nutzungen im Untergeschoss des Baus aus den Bereichen Kultur und Kreativität. Der Erhalt der bestehenden Gebäudestruktur und der Gesamtvolumetrie wird vorausgesetzt. Für die Nutzung wird ein Gesamtkonzept entwickelt und über alle SIA-Leistungsphasen erarbeitet.

24. Oktober 2025
Marc Ehrenbogen

Nutzung

Als neue Nutzung wird der "Hub of Creative Content" vorgeschlagen.
Ein Ort für Kreativität im Ton- und Bildbereich. Der Vorschlag spricht Schulen, Firmen, Agenturen, sowie freie Kreative & Start-Ups an und schafft einen Ort des Zusammenkommens, des Austauschs, der Bildung und der kreativen Arbeit.

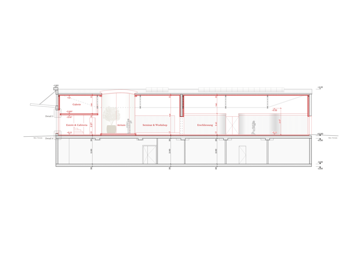
Architektur & Entwurf

Es werden ein Aufenthaltsbereich mit Cafeteria, ein Seminar- und Workshopbereich, sowie Ton-, Foto-, und Post-Production-Studios geschaffen. 
Besonders sticht der architektonische Entwurf mit seinen unkonventionell geschwungenen Linien und dem zentral angeordneten Glas-Atrium heraus. Inspiriert von den Wellen und dem Flusslauf des Rheins, fügen sich die organischen Formen in den urbanen, industriellen Charakter der Halle und schaffen eine behagliche Wohlfühlatmosphäre.

Konstruktion

Für die bauliche Intervention wird ein klarer Umbauperimeter definiert, welcher energetisch und bauphysikalisch funktioniert.
Konstruktiv ist eine Innendämmung mit Vorsatzschale vorgesehen. Die Einbauten erfolgen als Raum-in-Raum-Systeme aus Stahlleichtbau und entsprechen den hohen akustischen Anforderungen. Das Atrium wird als Pfosten-Riegel-Fassade erstellt und öffnet das bestehende Dach. Die bauliche Intervention fordert leichte Anpassungen am Tragwerk.

Materialisierung

Der Ausbau zeugt von einer hochwertigen Materialwahl. So wird der Boden als geschliffener und versiegelter Unterlagsboden, und die Wände gestrichen oder mit prägenden Holz-Akustikpaneelen ausgeführt. Die Schreinerelemente und Innentüren werden mit Eiche furniert. Das Atrium hebt sich mit den grossen Glasflächen und den dunkel beschichteten Rahmenprofilen hervor.

Haustechnik

Im Bau wird eine neue Fernwärme-Übergabestation eingerichtet, welche die Räume im Untergeschoss mit Radiatoren und die neue Nutzung im Erdgeschoss mittels Fussbodenheizung beheizt.
Die sanitären Einrichtungen werden komplett erneuert und die Leitungen ersetzt, respektive im EG neu eingerichtet.
Für die neue Nutzung ist ein Lüftungsmonobloc vorgesehen, welcher mit Schalldämpfern den akustischen Anforderungen gerecht wird.
Das Elektrokonzept sieht eine ausgewogene Verteilung der Stromanschlüsse, sowie ein einfaches und flexibles Beleuchtungskonzept vor.

Bauzeit, Kosten & Wirtschaftlichkeit

Die Bauzeit erstreckt sich über rund 8 Monate.
Die Investitionskosten liegen bei rund 2.2 Mio. CHF.
Für die vermietbare Fläche entsteht ein attraktiver Mietzins, welcher mit einer Nettorendite von 0.94 % die Rentabilität des Vorhabens trägt.

Portrait

Marc Ehrenbogen

Zeichner EFZ Architektur


ehrenbogenmarc@gmail.com


Linkedin

Diplomarbeit Marc Ehrenbogen

Unter folgendem Link kann meine Diplomarbeit heruntergeladen werden. Bei Fragen und Anmerkungen dürfen Sie sich gerne per Mail an mich wenden.

Unter folgendem Link kann meine Diplomarbeit heruntergeladen werden. Bei Fragen und Anmerkungen dürfen Sie sich gerne per Mail an mich wenden.

Download Diplomarbeit

Weiterbildung neben Beruf und Freizeit

Gratis E-Book mit 10 Tipps zur Work-Life-Learn-Balance

Weiterbildung neben Beruf und Freizeit – schaffe ich das?

10 Tipps zur Work-Life-Learn-Balance

Eine Weiterbildung beansprucht Zeit. Deshalb auf Freunde, Familie und Hobbies zu verzichten, wäre falsch.

In diesem E-Book erfährst du:

  • wie du deine Zeit effizienter nutzt
  • wie du dich trotz Weiterbildung genügend Freizeit bewahrst
  • wie sich Beruf, Weiterbildung und Freizeit gegenseitig ergänzen statt konkurrenzieren können

Tipps aus dem Inhalt

  • TIPP 1: Gestalte deine Arbeit so flexibel wie möglich!
  • TIPP 2: Beziehe Arbeitgeber sowie Kollegen und Kolleginnen in deine Weiterbildungspläne mit ein!
  • TIPP 3: Arbeite effizienter und effektiver mit Zielorientierung!
  • TIPP 4: Entwickle deinen idealen Lernrhythmus!
  • TIPP 5: Lerne mit System und festen Strukturen!
  • TIPP 6: Schaffe genug Ausgleich und Entspannung!
  • TIPP 7: Binde deine/n Partner/in, deine Familie und externe Hilfen in deine Planung ein!
  • TIPP 8: Belohne dich für deine Erfolge!
  • TIPP 9: Mach eine Zeitinventur!
  • TIPP 10: Erstelle eine Zeitplanung aller drei Bereiche!

Leider ist ein Fehler aufgetreten. Bitte versuche es erneut oder nimm mit uns direkt Kontakt auf.

Aktuelles Studienprogramm

Alles Wissenswerte zur Weiterbildung in einem PDF zusammengefasst.

Studienprogramm  herunterladen

Alles Wissenswerte zu deiner Weiterbildung in einem PDF zusammengefasst

  • Detaillierter Lehrplan zu allen Studiengängen
  • Alle wichtigen Hintergrundinfos zu Ausbildungszielen, Teilnehmerkreisen, Aufnahmebedingungen und weiterführenden Studiengängen

Leider ist ein Fehler aufgetreten. Bitte versuche es erneut oder nimm mit uns direkt Kontakt auf.

Gratis E-Book für dich

Weiterbildung neben Beruf und Freizeit - schaffe ich das?

Eine Weiterbildung beansprucht Zeit. Deshalb auf Freunde, Familie und Hobbies zu verzichten, muss nicht sein.

Lies jetzt unser E-Book mit 10 wertvollen Tipps zur Work-Life-Learn-Balance.

Weiterbildung neben Beruf und Freizeit – schaffe ich das?

10 Tipps zur Work-Life-Learn-Balance

Eine Weiterbildung beansprucht Zeit. Deshalb auf Freunde, Familie und Hobbies zu verzichten, wäre falsch.

In diesem E-Book erfährst du:

  • wie du deine Zeit effizienter nutzt
  • wie du dich trotz Weiterbildung genügend Freizeit bewahrst
  • wie sich Beruf, Weiterbildung und Freizeit gegenseitig ergänzen statt konkurrenzieren können

Tipps aus dem Inhalt

  • TIPP 1: Gestalte deine Arbeit so flexibel wie möglich!
  • TIPP 2: Beziehe Arbeitgeber sowie Kollegen und Kolleginnen in deine Weiterbildungspläne mit ein!
  • TIPP 3: Arbeite effizienter und effektiver mit Zielorientierung!
  • TIPP 4: Entwickle deinen idealen Lernrhythmus!
  • TIPP 5: Lerne mit System und festen Strukturen!
  • TIPP 6: Schaffe genug Ausgleich und Entspannung!
  • TIPP 7: Binde deine/n Partner/in, deine Familie und externe Hilfen in deine Planung ein!
  • TIPP 8: Belohne dich für deine Erfolge!
  • TIPP 9: Mach eine Zeitinventur!
  • TIPP 10: Erstelle eine Zeitplanung aller drei Bereiche!

Leider ist ein Fehler aufgetreten. Bitte versuche es erneut oder nimm mit uns direkt Kontakt auf.