Dipl. Techniker/in HF Bauplanung Architektur

Diplomarbeit 2024

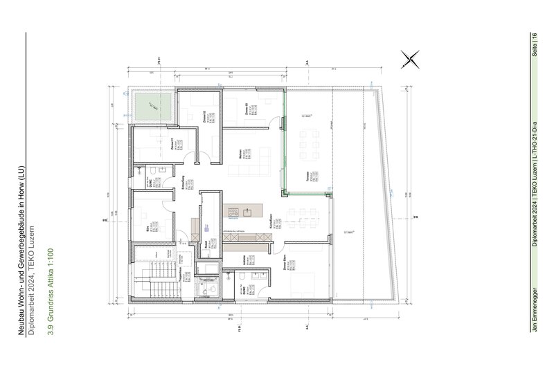
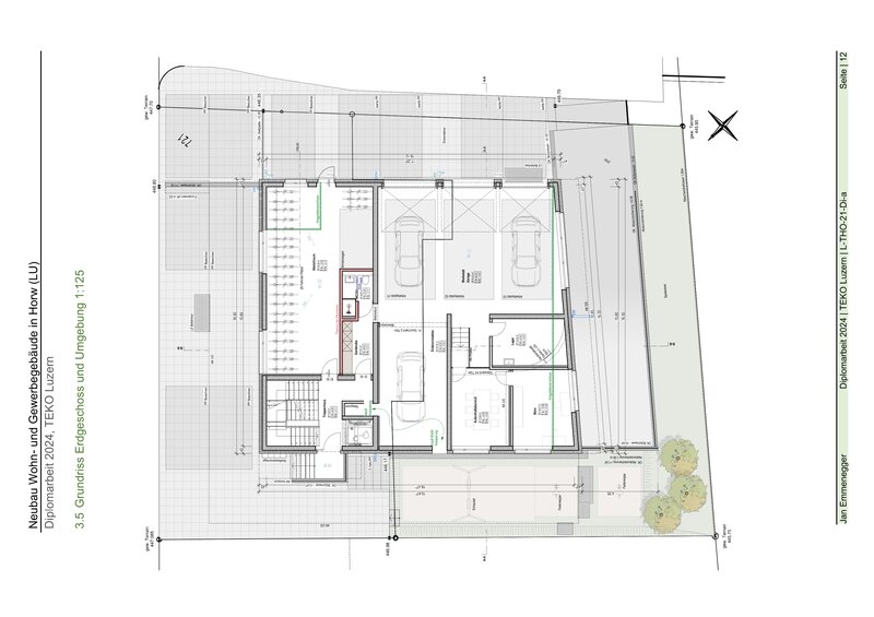
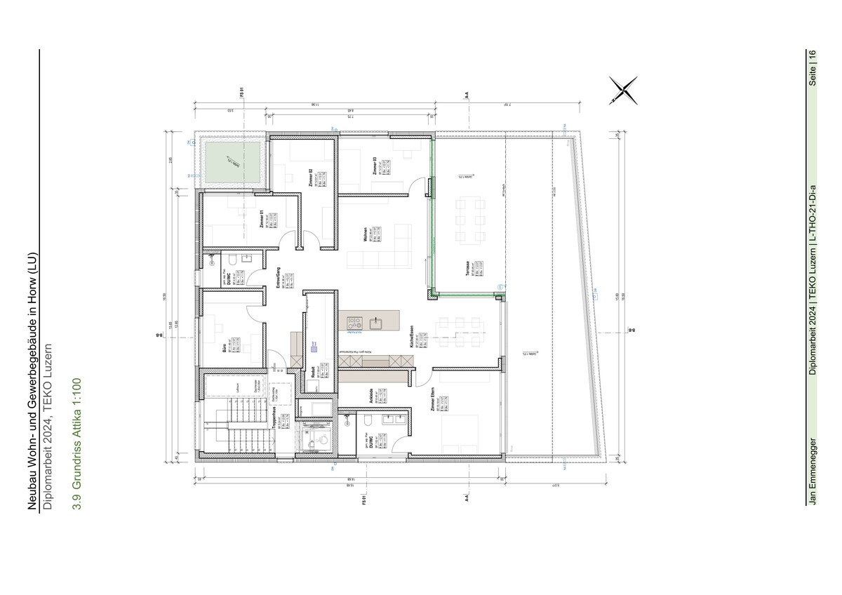
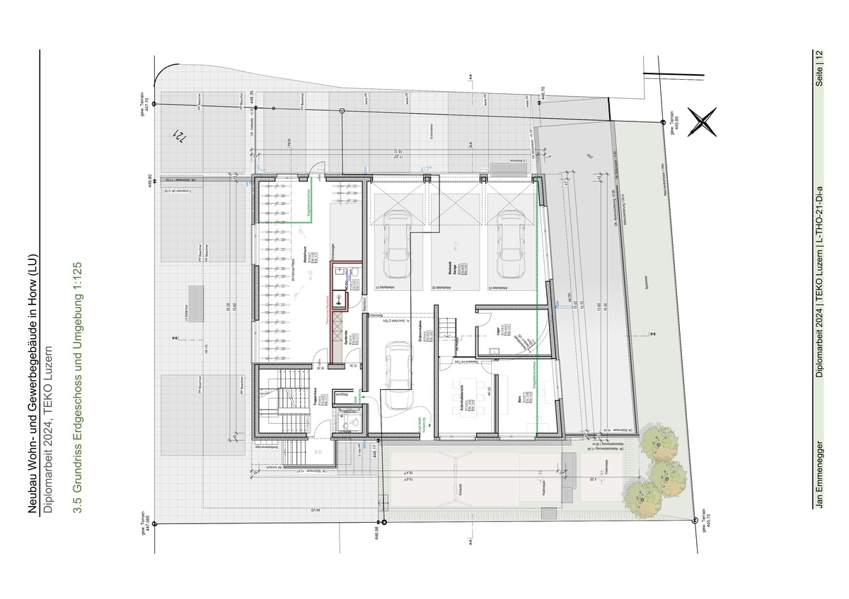
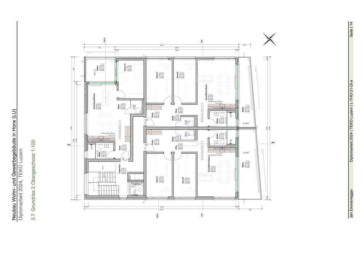
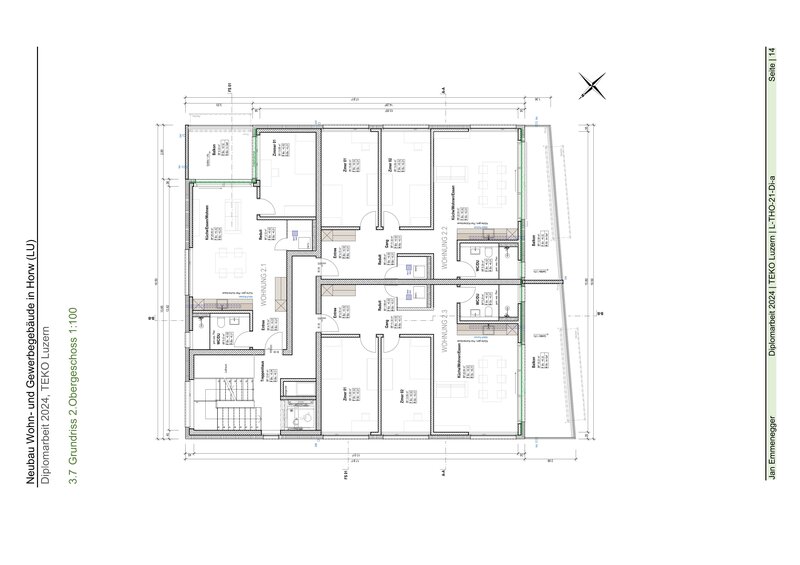
Neubau Wohn- und Gewerbegebäude in Horw LU

26. November 2024
Jan Emmenegger

Ausgangslage

Das aktuelle Wohn- und Gewerbegebäude in Horw ist stark sanierungsbedürftig und kann nicht länger nachhaltig betrieben werden. Daher hat die Bauherrschaft beschlossen, das bestehende Gebäude abzureissen und durch einen ansprechenden, funktionalen und wirtschaftlich attraktiven Neubau zu ersetzen.


Der Neubau wird wieder als Wohn- und Gewerbegebäude konzipiert, wobei im Erdgeschoss auch geeignete Räumlichkeiten für die bestehende Autolackierwerkstatt eingeplant werden. Die darüberliegenden Stockwerke sind als Wohngeschosse vorgesehen und sollen attraktiven Lebensraum für Familien oder Studenten bieten.


Diese Gestaltung zielt darauf ab, eine vielfältige Wohnstruktur zu fördern und den Bedürfnissen unterschiedlichen Mietern gerecht zu werden.


Kosten und Wirtschaftlichkeit
Da es sich um ein Renditenobjekt handelt, wurde ein besonderes Augenmerk auf die Kosten und die Wirtschaftlichkeit gelegt. Wie im Kostenvoranschlag dargestellt, beläuft sich die Investition auf rund 7,8 Millionen CHF. Diese Summe setzt sich aus den BKPs 0, 1, 2, 4, 5 und einer Reserve im BKP 8 zusammen.

Nach Einbezug der Mieteinnahmen, Rückstellungen, etc. wird eine Buttorendite von 4.25 % resp. eine Nettorendite von 2.57 % erreicht. Die Eigenkapitalrendite habe ich in zwei Varianten berechnet. Dabei habe ich das Eigenkapital und die benötigten Hypotheken angepasst und die Rendite ausgerechnet.

Ich empfehle dem Bauherrn die erste Variante, da er eine Eigenkapitalrendite von 3.53 % erhält, während er mit der zweiten Variante nur auf eine Rendite von 3.12 % kommt.

Fazit
In den letzten drei Jahren, wurde ich mit diversen Arbeiten und Unterrichtsthemen auf die Diplomarbeit vorbereitet. Trotz oder erst recht durch die langen Tage und Schwierigkeiten habe ich am meisten während diesen 6 Wochen gelernt. Ich bin sehr zufrieden mit meiner Leistung während den letzten drei Jahren und mit meiner Diplomarbeit. Ich habe mein Bestes in diese Arbeit gesteckt und betrachte sie als einen würdigen Abschluss meines 3-jährigen Lehrgangs und bedanke mich herzlich für die lehrreiche Zeit.

Jan Emmenegger

Abgabe Diplomarbeit

Nachfolgend erhältst du den Link zum Download meiner Diplomarbeit. Für den respektvollen Umgang mit meiner Arbeit bin ich dir Dankbar.

Weiterbildung neben Beruf und Freizeit

Gratis E-Book mit 10 Tipps zur Work-Life-Learn-Balance

Weiterbildung neben Beruf und Freizeit – schaffe ich das?

10 Tipps zur Work-Life-Learn-Balance

Eine Weiterbildung beansprucht Zeit. Deshalb auf Freunde, Familie und Hobbies zu verzichten, wäre falsch.

In diesem E-Book erfährst du:

  • wie du deine Zeit effizienter nutzt
  • wie du dich trotz Weiterbildung genügend Freizeit bewahrst
  • wie sich Beruf, Weiterbildung und Freizeit gegenseitig ergänzen statt konkurrenzieren können

Tipps aus dem Inhalt

  • TIPP 1: Gestalte deine Arbeit so flexibel wie möglich!
  • TIPP 2: Beziehe Arbeitgeber sowie Kollegen und Kolleginnen in deine Weiterbildungspläne mit ein!
  • TIPP 3: Arbeite effizienter und effektiver mit Zielorientierung!
  • TIPP 4: Entwickle deinen idealen Lernrhythmus!
  • TIPP 5: Lerne mit System und festen Strukturen!
  • TIPP 6: Schaffe genug Ausgleich und Entspannung!
  • TIPP 7: Binde deine/n Partner/in, deine Familie und externe Hilfen in deine Planung ein!
  • TIPP 8: Belohne dich für deine Erfolge!
  • TIPP 9: Mach eine Zeitinventur!
  • TIPP 10: Erstelle eine Zeitplanung aller drei Bereiche!

Leider ist ein Fehler aufgetreten. Bitte versuche es erneut oder nimm mit uns direkt Kontakt auf.

Aktuelles Studienprogramm

Alles Wissenswerte zur Weiterbildung in einem PDF zusammengefasst.

Studienprogramm  herunterladen

Alles Wissenswerte zu deiner Weiterbildung in einem PDF zusammengefasst

  • Detaillierter Lehrplan zu allen Studiengängen
  • Alle wichtigen Hintergrundinfos zu Ausbildungszielen, Teilnehmerkreisen, Aufnahmebedingungen und weiterführenden Studiengängen

Leider ist ein Fehler aufgetreten. Bitte versuche es erneut oder nimm mit uns direkt Kontakt auf.

Gratis E-Book für dich

Weiterbildung neben Beruf und Freizeit - schaffe ich das?

Eine Weiterbildung beansprucht Zeit. Deshalb auf Freunde, Familie und Hobbies zu verzichten, muss nicht sein.

Lies jetzt unser E-Book mit 10 wertvollen Tipps zur Work-Life-Learn-Balance.

Weiterbildung neben Beruf und Freizeit – schaffe ich das?

10 Tipps zur Work-Life-Learn-Balance

Eine Weiterbildung beansprucht Zeit. Deshalb auf Freunde, Familie und Hobbies zu verzichten, wäre falsch.

In diesem E-Book erfährst du:

  • wie du deine Zeit effizienter nutzt
  • wie du dich trotz Weiterbildung genügend Freizeit bewahrst
  • wie sich Beruf, Weiterbildung und Freizeit gegenseitig ergänzen statt konkurrenzieren können

Tipps aus dem Inhalt

  • TIPP 1: Gestalte deine Arbeit so flexibel wie möglich!
  • TIPP 2: Beziehe Arbeitgeber sowie Kollegen und Kolleginnen in deine Weiterbildungspläne mit ein!
  • TIPP 3: Arbeite effizienter und effektiver mit Zielorientierung!
  • TIPP 4: Entwickle deinen idealen Lernrhythmus!
  • TIPP 5: Lerne mit System und festen Strukturen!
  • TIPP 6: Schaffe genug Ausgleich und Entspannung!
  • TIPP 7: Binde deine/n Partner/in, deine Familie und externe Hilfen in deine Planung ein!
  • TIPP 8: Belohne dich für deine Erfolge!
  • TIPP 9: Mach eine Zeitinventur!
  • TIPP 10: Erstelle eine Zeitplanung aller drei Bereiche!

Leider ist ein Fehler aufgetreten. Bitte versuche es erneut oder nimm mit uns direkt Kontakt auf.