Diplomarbeit 2024
Grundstücksentwicklung in Niederdorf BL
AUSGANGSLAGE
Die Diplomarbeit befasst sich mit der Entwicklung eines unbebauten Grundstückes in der Gemeinde Niederdorf (BL). Ziel war es ein Bauprojekt zu entwickeln, welches den Marktbedürfnissen entspricht, auf die Aspekte der Nachhaltigkeit eingeht sowie die Anforderungen des Eigentümers hinsichtlich Rendite erfüllt. Das Projekt umfasst alle SIA-Leistungsphasen, von der strategischen Planung und Wirtschaftlichkeitsanalyse bis zur Ausführungs- und Werkplanung.
ENTWURF
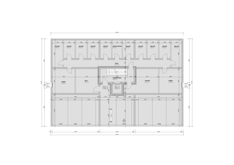
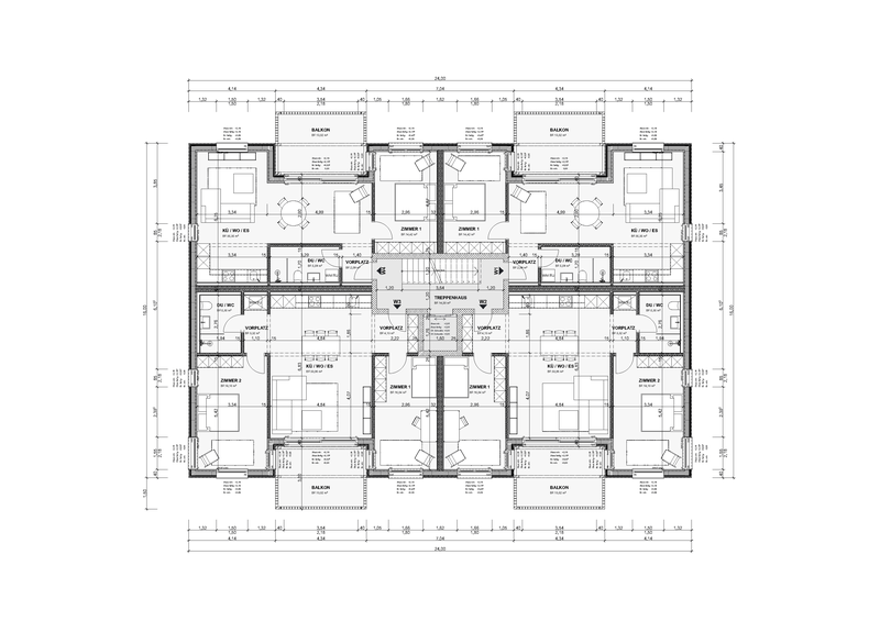
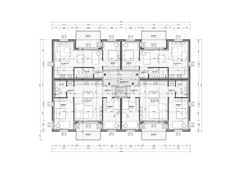
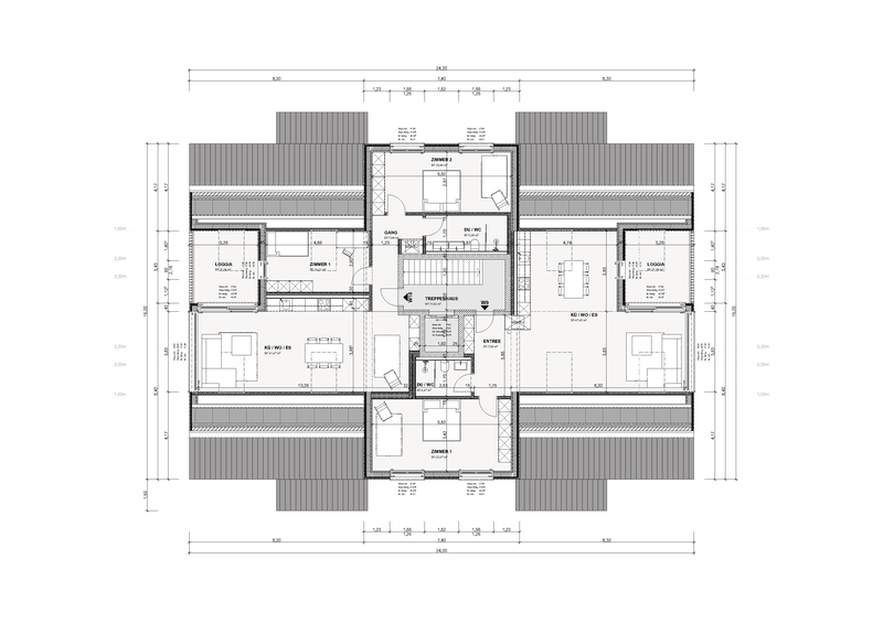
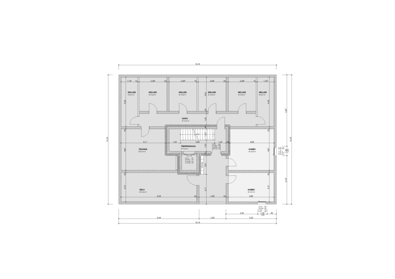
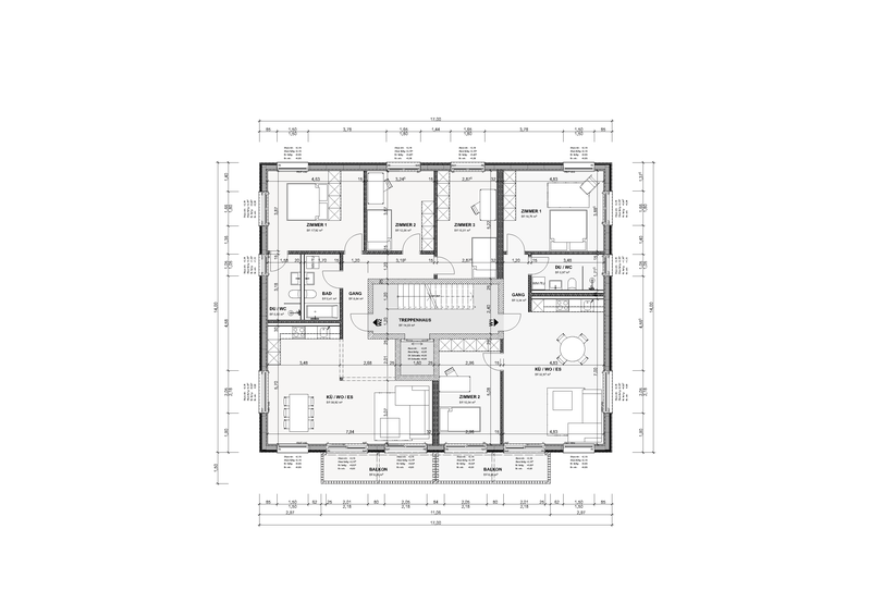
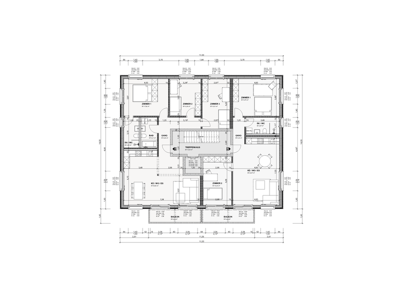
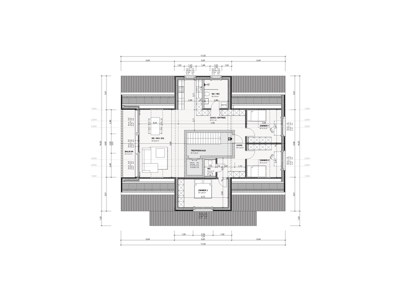
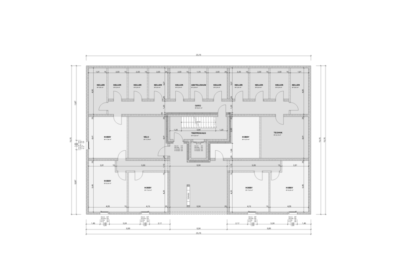
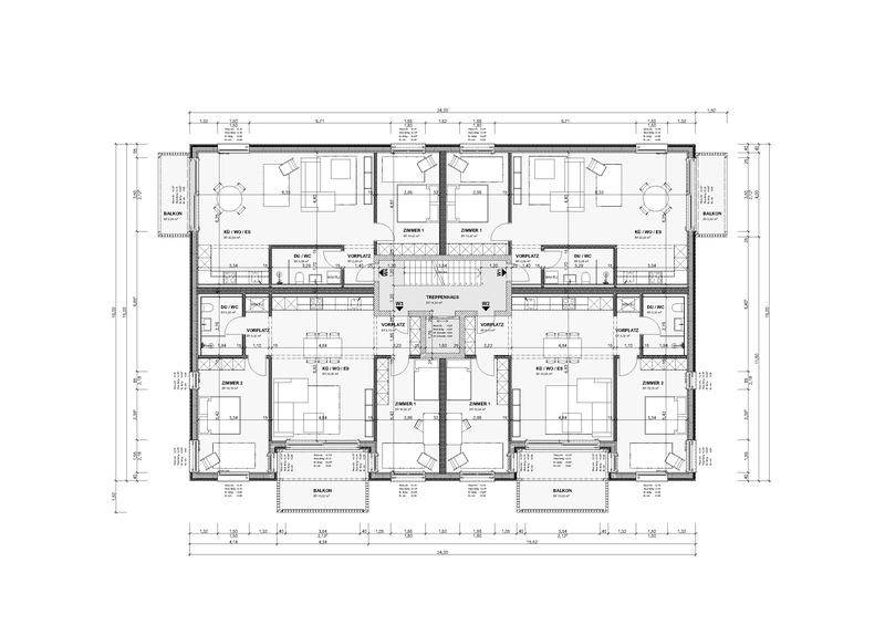
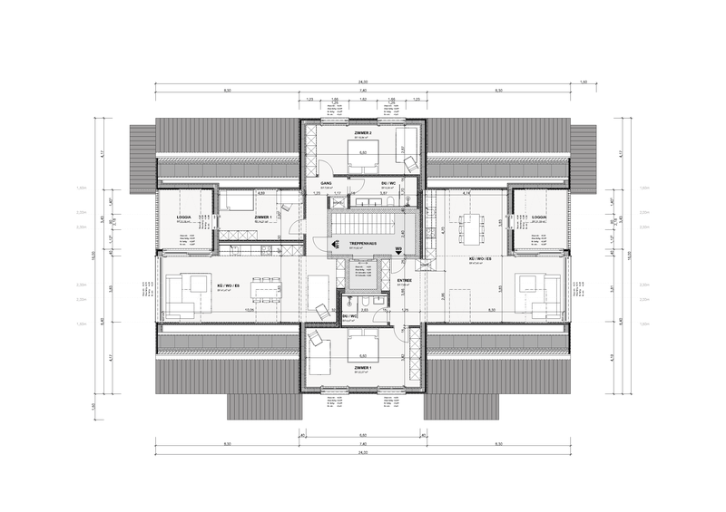
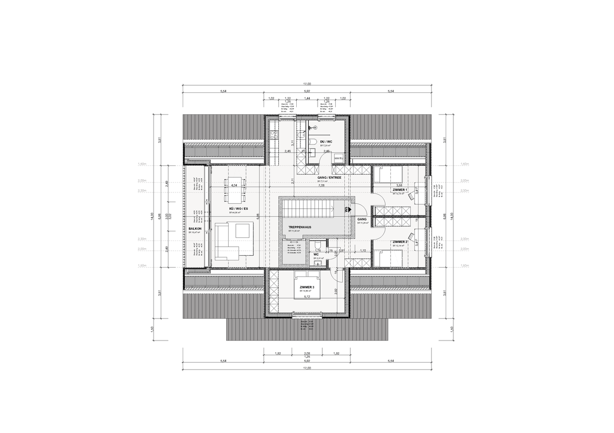
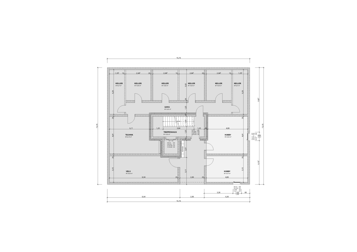
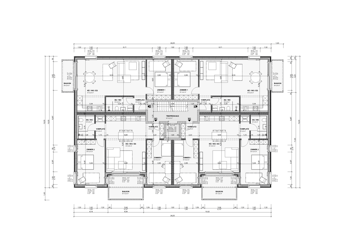
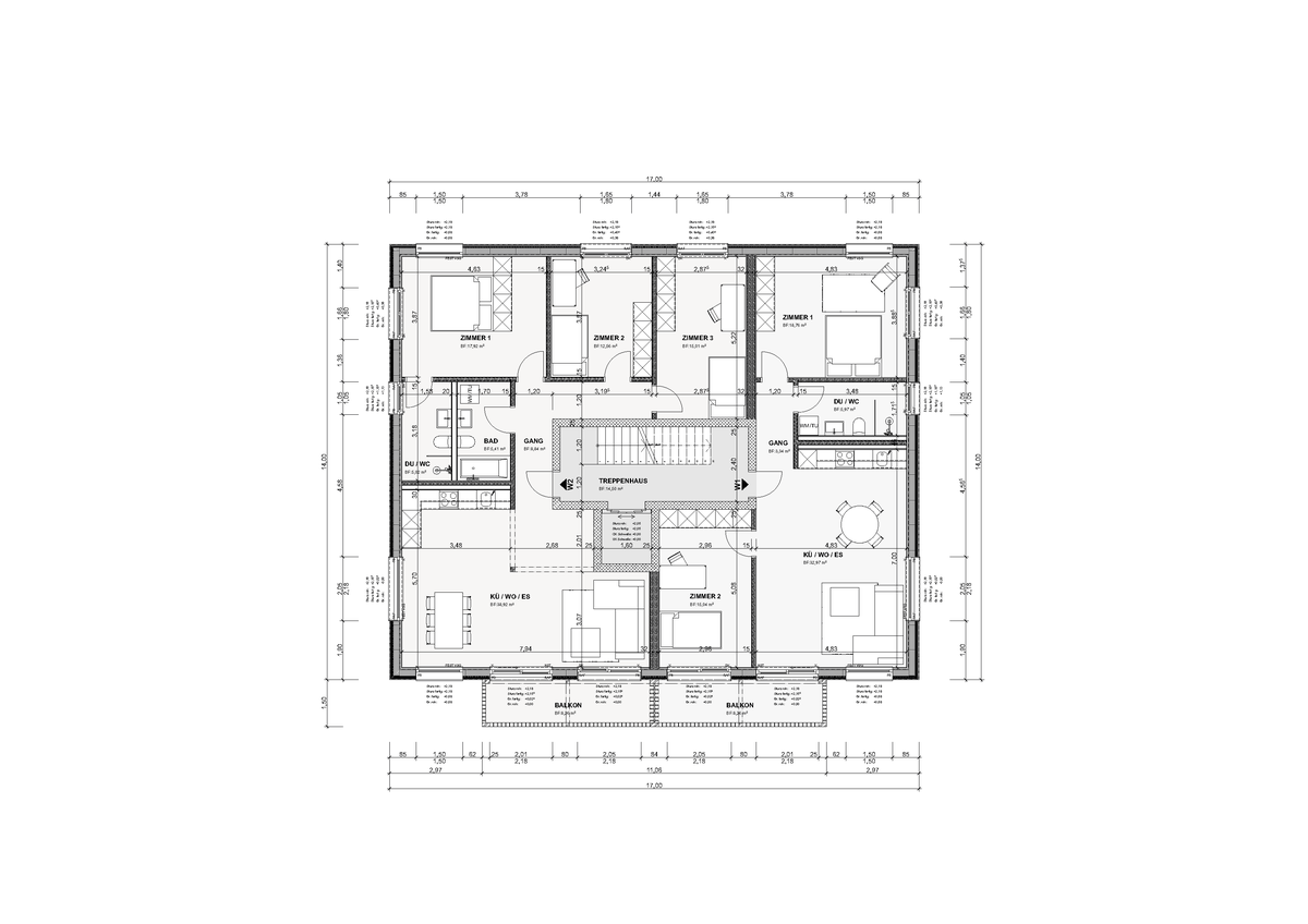
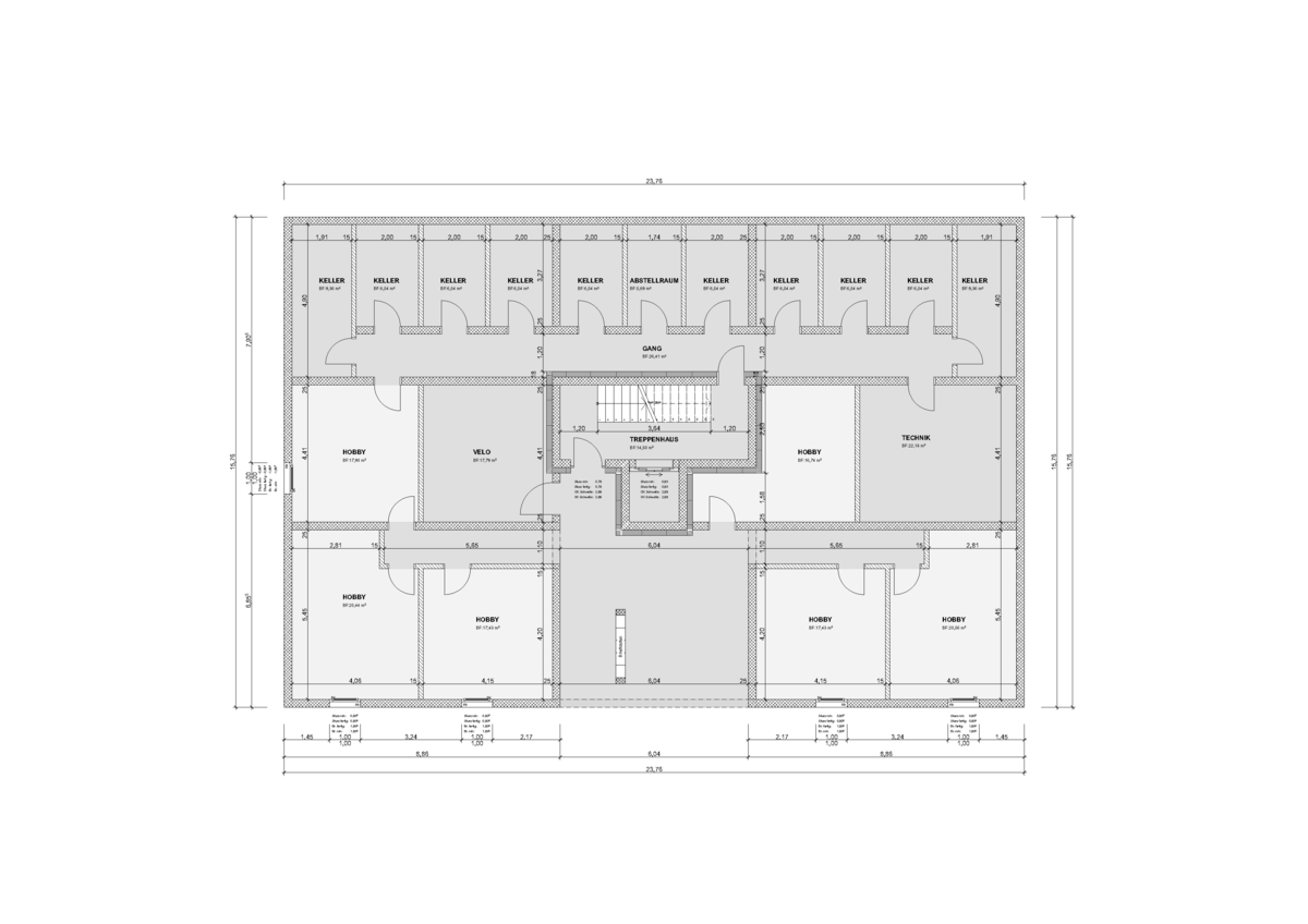
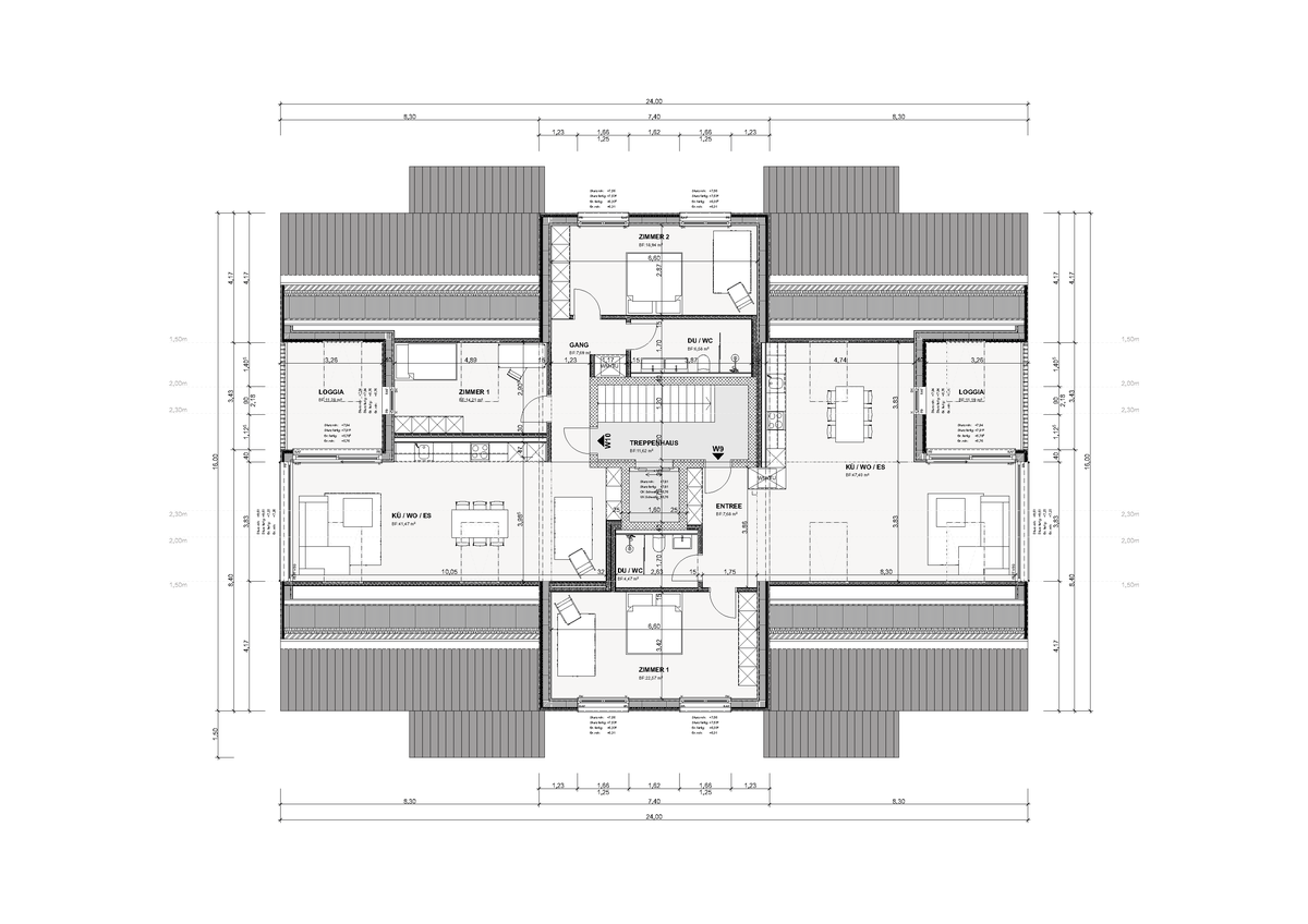
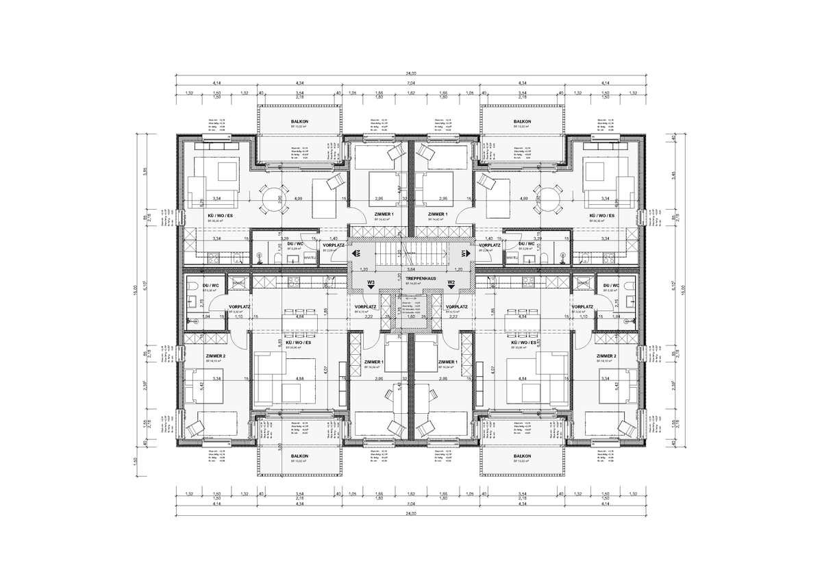
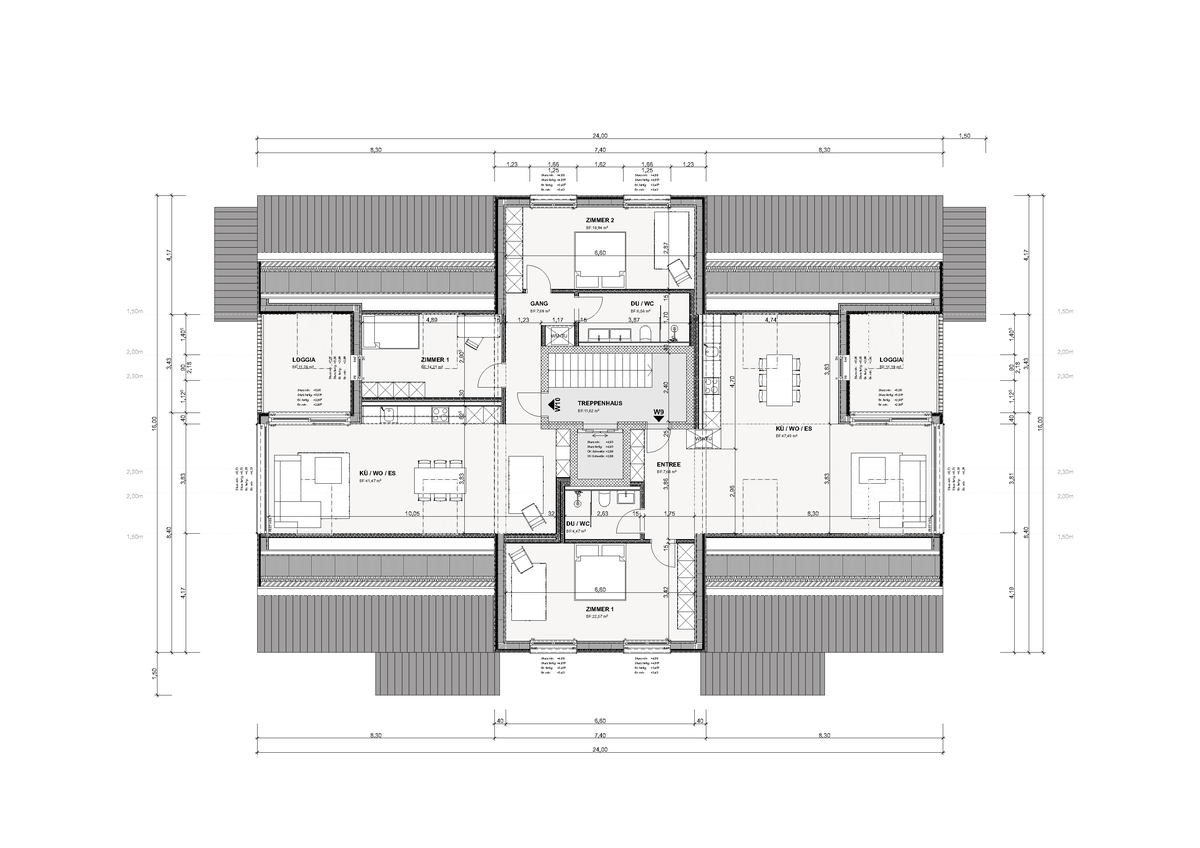
Nach Prüfung diverser Möglichkeiten habe ich mich dazu entschieden, auf der Parzelle vier Mehrfamilienhäuser zu realisieren. Um die Fläche optimal zu nutzen und den unterschiedlichen Bedürfnissen möglicher Bewohner:innen gerecht zu werden, sind zwei unterschiedliche Haustypen geplant: zwei größere und zwei kleinere Gebäude. Aufgrund der etwas steileren Hanglage im nördlichen Bereich des Grundstücks, wurde bei einem der größeren Häuser auf ein Stockwerk verzichtet, um sich besser in das Gelände einzufügen. Letztlich entstehen somit drei Gebäudetypen. Die Häuser sind so auf der Parzelle platziert, dass sie der Topografie und den Höhenlinien folgen, um eine natürliche Fügung in die Landschaft zu schaffen. Alle Gebäude sind leicht voneinander abgedreht und stehen nicht parallel zueinander. Dies ist einerseits durch den Verlauf der Höhenlinien bedingt, andererseits möchte ich mit dieser Anordnung, ein natürlicheres und organischeres Bild vermitteln, fast wie ein kleines, eigenständiges Dorfbild. Diese Anordnung trägt nicht nur zur harmonischen Raumnutzung bei, sondern schafft auch eine gestalterische Vielfalt, die der Umgebung gerecht wird und gleichzeitig eine freundliche, einladende Atmosphäre erzeugt.
Insgesamt entstehen 26 Wohnungen mit einem Mix aus 2,5 bis 4,5 Zimmer Wohnungen, um eine möglichst Grosse Zielgruppe abzudecken. Die Wohnungen überzeugen mit kompakten und effektiven Grundrissen, welche es ermöglichen günstige Mietpreise anzubieten. Um die ökologische Nachhaltigkeit zu fördern, sollen die Häuser in Holzbauweise auf einem unbeheizten Betonsockel errichtet werden. Die Häuser sind nach den Minergie P Standards konzipiert, mit einer grossflächigen Photovoltaikanlage auf den Dächern sowie einer kontrollierter Wohnungslüftung.
MATERIAL- & FARBKONZEPT
Fassade
Die Fassade wird durch vertikale Holzlamellen geprägt, die den Gebäuden eine natürliche Struktur verleihen und zugleich modern und zeitlos wirken. Das Metalldach wird von den Holzlamellen eingefasst was für eine leichte und elegante Dachkante sorgt und lässt gleichzeitig zu, die Dachrinne zu verstecken. Die Dachfenster in anthrazit fügen sich subtil in die Dachfläche und das Gesamtkonzept ein.
Die Holzfenster mit umlaufenden Holzeinfassung verleihen den Fensteröffnungen eine einheitliche Wirkung und fügen sich harmonisch in die Fassade ein. Die Balkone sind als eingefügte Elemente in Holzbauweise konzipiert und werden mit einem Holzgeländer versehen. Sie haben eine sehr robuste Erscheinung was einen Kontrast zur sehr eleganten Fassade schafften soll.
Der Sockel des Gebäudes wird in Sichtbeton ausgeführt, was eine tragfähige und gleichzeitig moderne Basis schafft. Um eine möglichst homogene und dezente Optik zu erreichen, werden Metallfenster im Sockelbereich farblos gestaltet, sodass sie sich unauffällig in das Fassadenbild integrieren.
Die Geländer im Eingangsbereich sind aus Stahl, was eine klare, minimalistische Ästhetik vermittelt.
Innenraum
Das Treppenhaus wird komplett in Sichtbeton ausgeführt und durch Stahlgeländer ergänzt, wodurch ein roher und moderner Charakter und ein Übergang von aussen nach innen entsteht.
In den Wohnungen wird ein geschliffener Zementboden verwendet, der für eine klare, puristische Optik sorgt.
Die Decken sind in den Wohnräumen aus Holz, um eine warme und gemütliche Atmosphäre zu erzeugen. In den Eingangsbereichen und Nasszellen werden die Decken abgehängt und mit Glattputz und farbigem Anstrich gestaltet. Dieser Farbkontrast sorgt für Lebendigkeit und Individualität in den Wohnräumen.
Die Wände in den Wohnungen werden mit weissen Glattvliestapeten versehen, um eine ruhige und neutrale Trennung zwischen Boden und Decke zu schaffen.
Die Innentüren aus Holz tragen dazu bei, den natürlichen und wohnlichen Charakter der Innenräume zu verstärken. Durch gezielte Farbakzente, wie farbig beschichtete Einbauschränke und Küchen, entsteht eine gemütliche und einladende Atmosphäre, die gleichzeitig einen individuellen Touch in die Gestaltung einbringt.
Umgebung
Der Aussenraum soll durch wenige Eingriffe sehr naturnah bleiben.
Der Spielplatz wird mit einem Kiesboden versehen, während Steinmauern und Spielgeräte aus Holz eine natürliche Umgebung schaffen.
Der Grillplatz, mit Steinmauer und Feuerstelle, lädt zu geselligen Abenden im Freien ein.
Die Gehwege und Parkplätze werden mit Pflastersteinen belegt, was eine langlebige Oberfläche schafft. Entlang der Gehwege sorgen eingelassene LED-Bänder für eine dezente und stimmungsvolle Beleuchtung, die den Aussenbereich am Abend in Szene setzt.
Für die Bepflanzung wurden ausschliesslich einheimischen Bäume und Sträucher gewählt wie Bergahorn, Feldahorn, Haselsträuchern, Berberitzen und gemeiner Schneeball.

Domenico Longo
Broschüre
Die gesamte Diplomarbeit als PDF:















































