Diplomarbeit Neubau Wohn- und Gewerbegebäude Horw
TEKO Zürich - Michel Bill
Mit dem "Neubau Wohn- und Gewerbegebäude in Horw" wurde ein Projekt geplant, das ausgewogen zwischen Rendite und wirtschaftlich nachhaltigen Materialien hervorsticht.
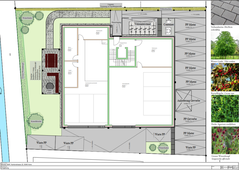
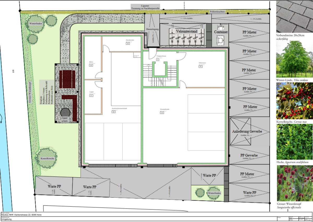
Entwurf und Aussenraum
Vorgaben und Bestand
Auf der Projektparzelle befindet sich zum jetzigen Zeitpunkt ein Mehrfamilienhaus mit einer Autolackierwerkstatt. Dieses Gebäude wird vollständig zurück gebaut, um das neu geplante Projekt erstellen zu können.
Durch die Bauherrschaft wurden bereits zu Beginn diverse Vorgaben gestellt, die es einzuhalten galt:
• Renditeliegenschaft, die im Unterhalt und betreffend Renovierungen möglichst
ressourcenschonend ist.
• Es darf keine Tiefgarage für die Autos entstehen.
• Die bestehende Autolackierwerkstatt soll wieder eingeplant werden.
• Im Attikageschoss sind, wenn möglich, zwei Wohnungen zu planen, wovon eine mindestens 180
m² gross sein soll.
Durch diese und noch ergänzende Vorgaben war die Richtung bereits vorgegeben und die Planung
enthielt nicht mehr allzu viel Spielraum.
Tragwerk und Bauweise
Bei der Bauweise habe ich mich für den klassischen Massivbau entschieden. Sämtliche tragenden Wände und Decken werden aus Backstein oder Stahlbeton erstellt. Im Untergeschoss werden zudem 25 cm Aussenwände und einer «DK1 Abdichtung» durch den Baumeister erstellt. Da das Gebäude in der Hochwasserzone steht, ist dies für eine langlebige und sichere Lösung das Beste.
Das Gebäude steht zudem direkt an der viel befahrenen Kantonsstrasse. Dies führt dazu, dass die Schallemissionen durch den Strassenverkehr gross sind.
Um dies entsprechend auffangen zu können, werden alle Wände, die Richtung Strasse gerichtet sind, aus 180 mm dickem Beton erstellt.
Fassadenaufbau
Wie bei jedem Gebäude muss die Fassade sehr hohe Ansprüche erfüllen. Abgesehen von der Ästhetik muss die Fassade gegen sämtliche Witterungseinflüsse wie Wind, Regen, Kälte, Hitze und Hagel bestehen können. Beim Projekt an der Kantonsstrasse 20 kommt zudem die Anforderung an den Schallschutz.
Aus diesen Gründen habe ich mich für eine hinterlüftete Eternit-Fassade entschieden.
Der Aufbau mit der Welleternitplatte, die eine hohe Schallabsorbation hat und äusserst langlebig ist, kann nei einem nötigen Unterhalt sehr einfach abgewaschen werden.
Hinter dem Windpapier habe ich zudem eine 15 mm dicke Fermacellplatte vorgesehen. Diese zusätzliche Schicht bringt Vorteile im Brandschutz und Schallschutz und sorgt dafür, dass die Dämmung über lange Zeit besser geschützt ist.
Der gesamte Fassadenaufbau sorgt für hohe Erstellungskosten, die sich aber im laufe der Jahre auszahlen werden. Der Unterhalt oder eine Sanierung kann dadurch für mehrere Jahre herausgeschoben werden, was sich positiv auf die Rückstellungen auswirkt.
Wirtschaftlichkeit
Investitionskosten
Für die Erstellung des neuen Gebäudes inkl. Land werden knapp CHF 7.8 Mio. benötigt, demgegenüber stehen die Bruttomieteinnahmen von CHF 296'000 pro Jahr. Die Einnahme führt zu einer Bruttorendite von 3,8%.
Ausschlaggebend ist allerdings die Nettorendite nach allen berücksichtigten Kosten, die jährlich anfallen. Nach sämtlichen Abzügen, den separat berechneten Unterhaltskosten und Rückstellungen ergibt dies eine Nettorendite von 2,42%, was ein realistischer Wert ist. Dies bestätigt auch die neuste Rechtssprechung des Bundesgerichtes, dass die Nettorendite den Referenzzinssatz maximal um 2% übersteigen darf (Solang der Referenzzinssatz unter 2% liegt).
Eigenkapitalrendite
Das Erfüllen der idealen Eigenkapitalrendite bei entsprechender Fremdfinanzierung galt es zu erfüllen. Hierfür kamen jedoch verschiedene Szenarien in Frage.
Da es nur wenige Angaben über die finanziellen Mittel der Bauherrschaft gab, habe ich verschiedene Optionen und Varianten erarbeitet, was für die Bauherrschaft am besten wäre.
Möchte die Bauherrschaft die bestmögliche Eigenkapitalrendite erreichen, müssen Sie entsprechend 40% Eigenmittel zur Verfügung stellen und lediglich die erste.Hypothek aufnehmen. Werden zwei Hypotheken benötigt oder das Eigenmittel auf über 40% erhöht, schlägt sich dies negativ auf die Eigenkapitalrendite aus.
Geht man davon aus, dass die bestehende Bauparzelle als Eigenmittel dazugerechnet wird müsste die Bauherrschaft noch knapp CHF 1 Mio. Eigenmittel zur Verfügung stellen, was möglich sein kann.

Michel Bill
Diplomarbeit "Neubau Wohn- und Gewerbegebäude Horw"
Download Diplomarbeit






