Diplomarbeit 2023
Umnutzung Stadtkirche Klingnau
TEKO Luzern | Manuel Koch
Diplomarbeit 2023
In der Gemeinde Klingnau AG, wird ein nicht alltägliches Projekt ins Leben gerufen. Die Stadtkirche St. Katharina, dessen Geschichte bis ins Jahr 1262 zurückreicht, soll umgenutzt werden. Da das Abreissen der Kirche sicherlich schade wäre, wird eine Lösung gesucht, die Kirche in einer anderen Form nutzen zu können. Das bestehende Gebäude darf weder aufgestockt, angebaut, noch in seiner statischen und konstruktiven Struktur verändert werden. Einzig die Innenwände im nördlichen Gebäudeteil dürfen verändert werden. Ausserdem muss der Um-Ausbau der Kirche im Inneren, so erstellt werden, dass die Kirche allenfalls wieder in ihre alte Form zurückgebaut werden kann. Zusätzlich zur Kirchenumnutzung, ist ein Hochbau zu planen, der mit der Innennutzung der Kirche im direkten Zusammenhang steht. Das Gebäude soll im Unterhalt und betreffend Renovationen möglichst ressourcenschonend sein. Das Erzielen einer angemessenen Rendite ist ein wichtiger Bestandteil.
Dies ist die Aufgabe der Diplomarbeit 2023.
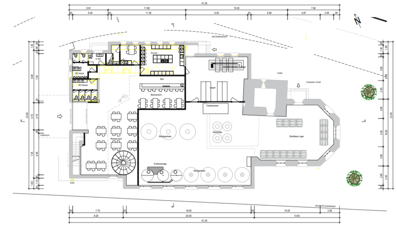
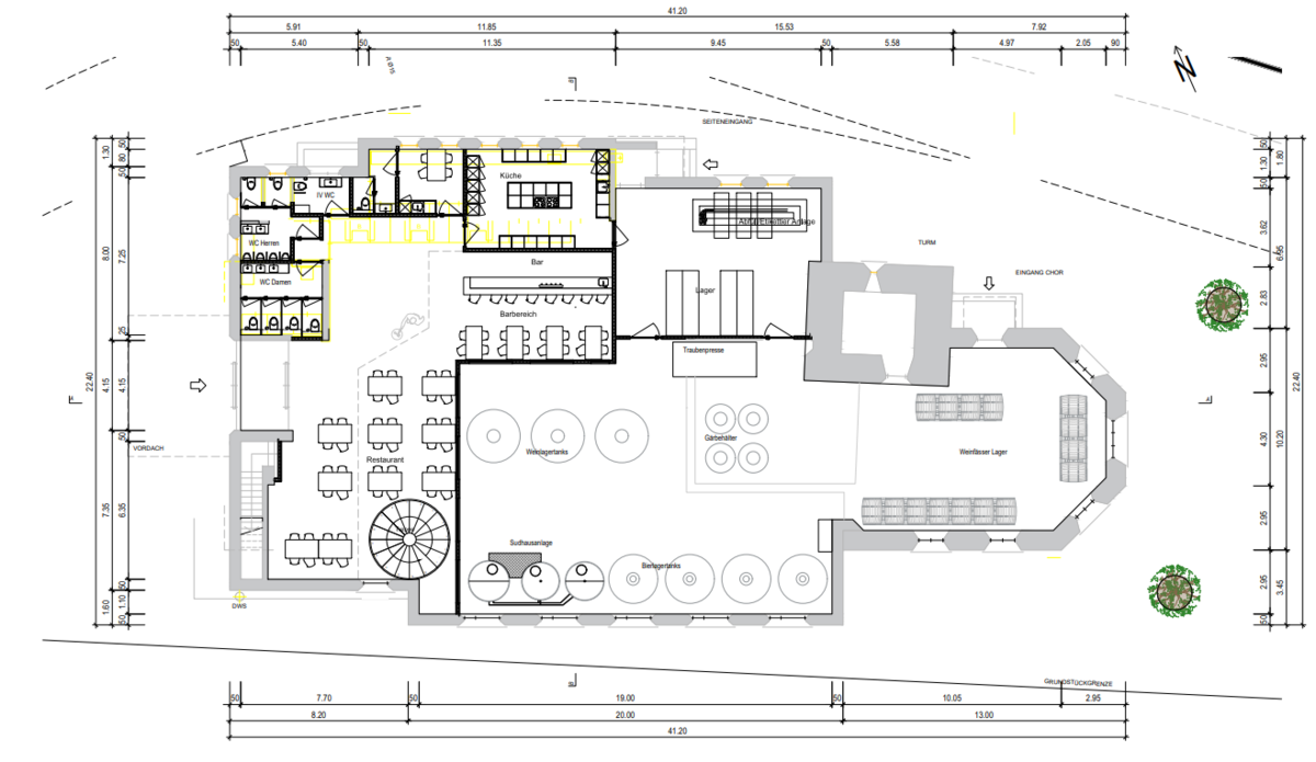
Ich habe viele Ideen zusammengetragen, was aus der Kirche alles machbar ist. Nach langen hin und her habe ich mich, nach diversen Abklärungen, für die Umnutzung einer Brauerei/Winzerei entschieden.
Ich habe mich für diese Idee entschlossen, weil in Klingnau, in der grünen Umgebung, Weinanbau möglich ist. Die Trauben können von der eigenen Gemeinde, gleich im Kern der Altstadt verarbeitet werden. Da die Kirche sehr viel Platz bietet, wird nebst der Traubenverarbeitung auch Bier gebraut.
Der Hochbau wird aus einer Mischbauweise, Holz und Massivbau erstellt. Das Gebäude ist so geplant, dass es den jetzigen Kern der Altstadt nicht gross verändert, aber einen neuen Hingucker verleiht. Mit der Holzfassade gibt es einen schönen Kontrast, zu der Kirche und den umliegenden Gebäuden.
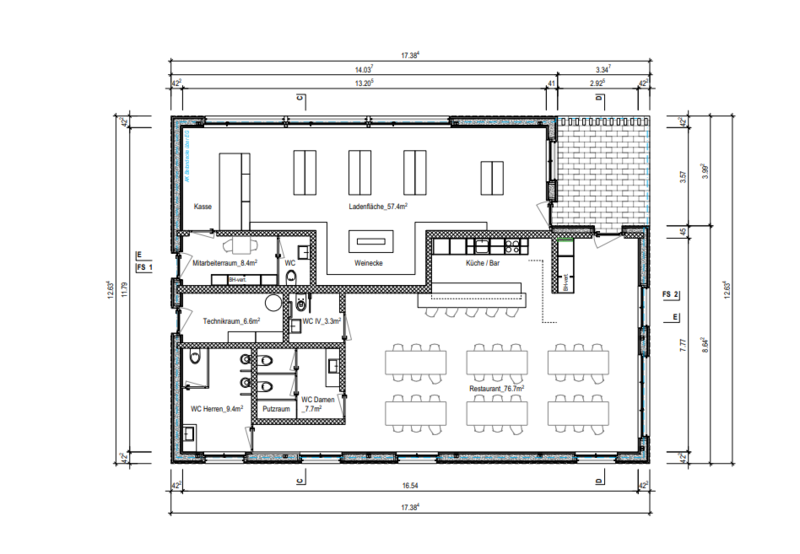
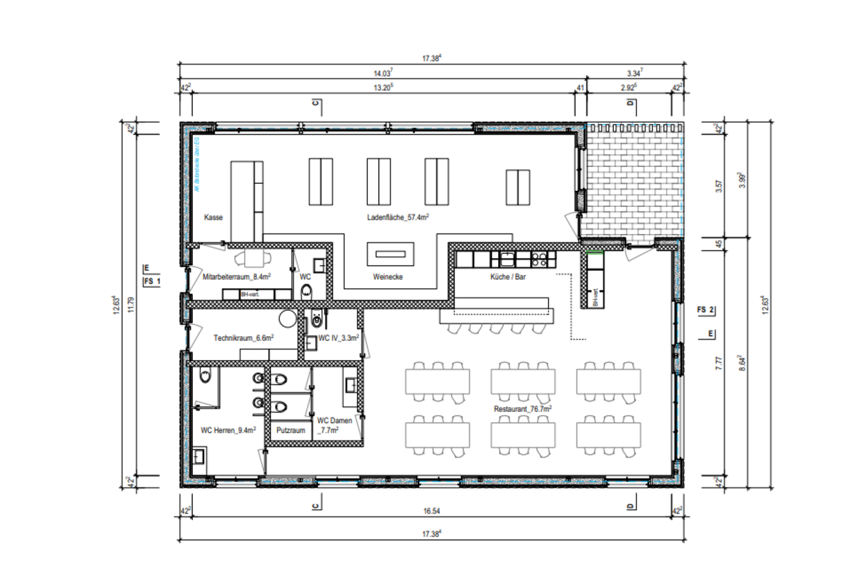
Der Hochbau enthält einen Verkaufsladen des Bieres und des Weins, so wie einen Party- und Degustationsraum. Diesen kann man einerseits mieten oder auch für eine Degustation von Wein und Bier nutzen. So verbinden sich die beiden Projekte optimal.
Fazit
Die Aufgabenstellung der Diplomarbeit 2023 war sehr spannend und interessant, denn es ist sicherlich etwas Spezielles so ein altes, historisches Gebäude umzunutzen. Das Sanieren und Umnutzen von Kirchen und alten Gebäuden wird in Zukunft sicher öfter gefragt sein.
Ich darf sagen, dass es mir gelungen ist, aus der Parzelle 1089 in Klingnau, ein interessantes und rentables Projekt zusammenzustellen. Mit meiner Projektarbeit wird eine interessante Umnutzung der Kirche erstellt und gemeinsam mit dem Hochbau wird ein neuer Dorfkern erschaffen.
Das Restaurant, der Verkaufsladen, der Party- und Degustationsraum, die Brauerei und Winzerei laden Jung und Alt ein, sich in der Altstadt von Klingnau verwöhnen zu lassen. Zusammen mit den Führungen durch die Brauerei und Winzerei, kann man ein paar gemütliche Stunden in Klingnau verbringen.
Mein Projekt bietet eine gute Basis für eine Weiterbearbeitung, da die wichtigsten Themen bereits ausarbeitet und bereits viele Teile detailgetreu gelöst worden sind.
Nach vielen Höhen und Tiefen bin ich stolz, meine Projektarbeit abschliessen zu können und freue mich in Zukunft auf die neunen Herausforderungen in der Arbeitswelt. Wer weiss, vielleicht ist das nicht die erste und letzte Kirche, bei der ich die Planung der Umnutzung gestalten darf.

Manuel Koch
Download
Nachfolgend erhältst du den Link zum Download meiner Diplomarbeit. Für den respektvollen Umgang meiner Arbeit bin ich dir Dankbar.










