Umnutzung Stadtkirche Klingnau mit Neubau
Diplomarbeit 2023 TEKO Luzern
Die Stadtkirche Klingnau wird durch eine Umnutzung zum zentralen Treffpunkt der Gemeinde. Mit der neuen Mischnutzung von der Regionalbibliothek, einem Café und einer neuen Kindertagesstätte vermischen sich die Interessen der Altersgruppen und dennoch bleibt der Charme der denkmalgeschützten Kirche erhalten.
AUSGANGSLAGE
Die katholische Kirchgemeinde Klingnau sieht sich mit den Problemen und Gedanken der vermehrten Mietgliederaustritten,
kaum Neueintritte und dem teils schwindendem Interesse bei Kindern und Jugendlichen konfrontiert. Eine Überlegung zur
Umnutzung der Stadtkirche St. Katharina ist im Gange.
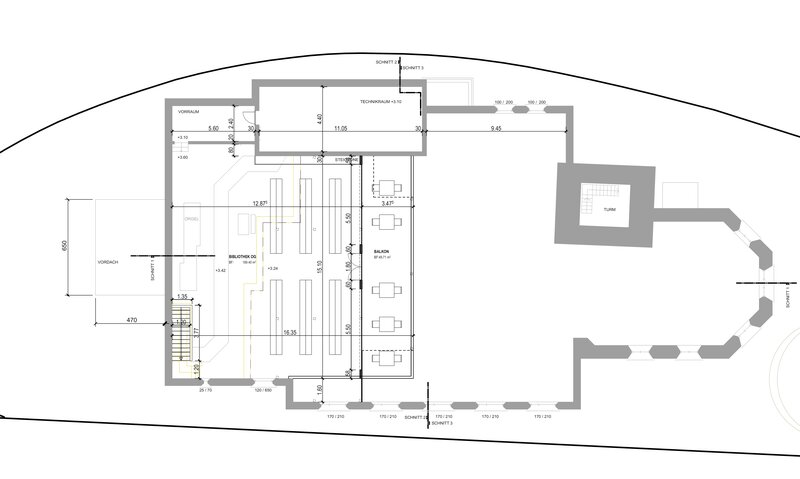
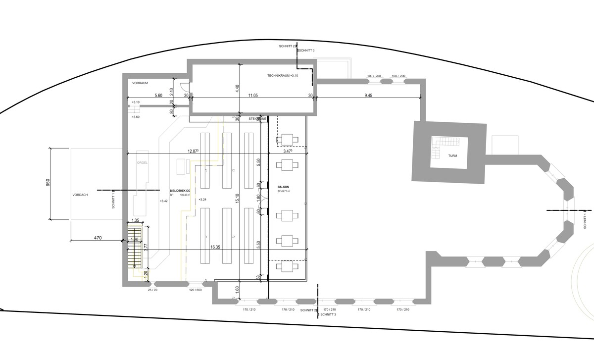
Dem Studienobjekt, der Stadtkirche St. Katharina, ist eine neue Nutzung zu finden. Dabei ist zu beachten, dass es keine Eingriffe in die Gebäudehülle geben darf. Der erhaltene Turm und der Chor aus dem 13. Bzw. 15. Jahrhundert stehen heute unter Denkmalschutz. Die Umnutzung hat so zu erfolgen, dass in einem unbestimmten Zeitpunkt die Kirche wieder als solche genutzt werden kann. Die Empore, die Orgel und die Kirchenglocken sind beizubehalten.
UMSETZUNG
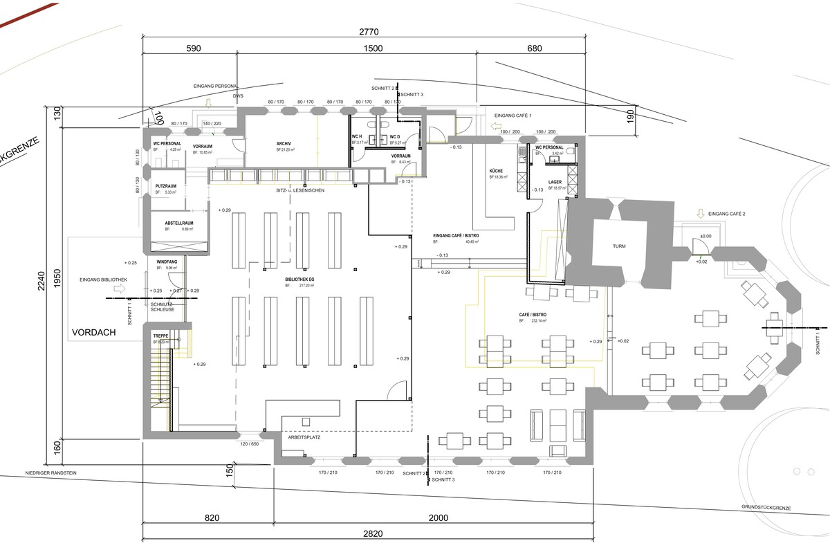
Der Entwurf und die Fachplanung meiner Arbeit befasst sich mit der Kirchenumnutzung zum neuen Standort der regionalen Bibliothek und einem raumanliegenden Café. Der im Aussenbereich freistehende Neubau beinhaltet den Ausbau zu einer Kindertagesstätte.
Mit einer Erweiterung der Empore vergrössert sich die Bodenflächennutzung der Bibliothek. Durch die räumliche Trennung zum Café können die Bibliotheksbesucher die Ruhe geniessen und dennoch später von einem Austausch im Café profitieren.
Die Baukosten vom Ausbau und Neubau bleiben tief und unkompliziert, um eine schnelle Fertigstellung zu ermöglichen und eine angemessene Rendite zu erhalten.

Nico Wormstetter
Auszug aus der Diplomarbeit
Die folgende Datei zeigt einen Einblick in meine Diplomarbeit. Bei Fragen oder Wunsch zur Ausgabe der ganzen Arbeit, können Sie mich gerne per Mail kontaktieren.









