Dipl. Techniker/in HF Bauplanung Architektur

Diplomarbeit 2023 – Umnutzung Stadtkirche Klingnau

St. Katharina – Mehr Raum für Vielfalt. Emotionen. Menschen.

25. November 2023
Cédric Pfenninger

Ausgangslage

Die Schweizer Kirchgemeinden sehen sich mit ähnlichen Herausforderungen konfrontiert: Mitgliederschwund, kaum Neueintritte, Priestermangel und leerstehende Kirchengebäude an oftmals besten Lagen. Auch die katholische Kirchgemeinde Klingnau bildet hierbei keine Ausnahme.


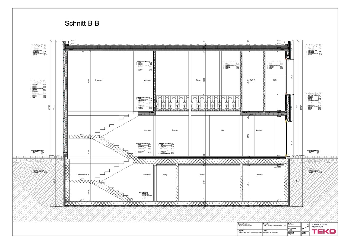
Die vorliegende Diplomarbeit hat daher – unter Berücksichtigung von Kosten und Wirtschaftlichkeit – eine Umnutzung der Stadtkirche St. Katharina zum Ziel. Zu beachten gilt, dass die Gebäudehülle sowie die Innenwände – bis auf jene im nördlichen Gebäudeteil – unverändert zu belassen und eine reversible Umnutzung anzustreben ist. Dies, damit zu einem späteren Zeitpunkt eine erneute Kirchennutzung nicht ausgeschlossen wird.

Umnutzungskonzept
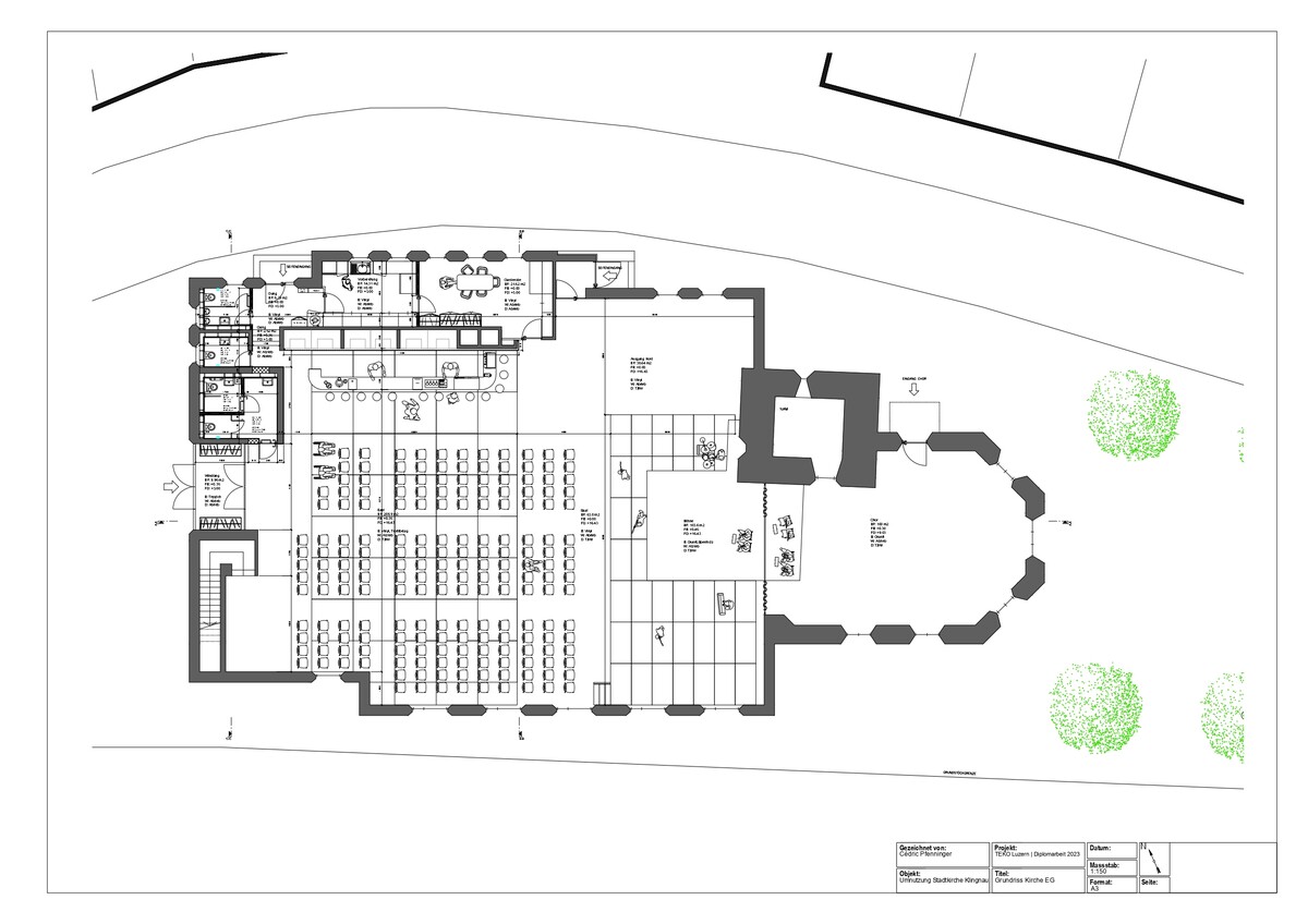
Aufgrund einer detaillierten Marktanalyse kristallisierte sich der Wunsch nach einer vielfältigen Kulturlandschaft in der Gemeinde Klingnau heraus. Die Stadtkirche kann dieses Bedürfnis bestens erfüllen: denn mit ihrem grossen offenen Innenraum, der 16m hohen Decke und der einzigartigen Akustik bietet sie ein einmaliges Ambiente und ist für eine Nutzung als Eventlocation prädestiniert. Zudem ist kein umfangreicher, baulicher Eingriff nötig, da die Räumlichkeiten der Kirche bestens auf Veranstaltungen ausgerichtet sind.

Das erstellte Nutzungskonzept – St. Katharina. Mehr Raum für Vielfalt. Menschen. Emotionen. – sieht Ausstellungen, Konzerte, Theater, Lesungen, Firmenveranstaltungen und Privatanlässe vor.

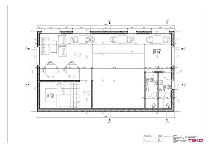
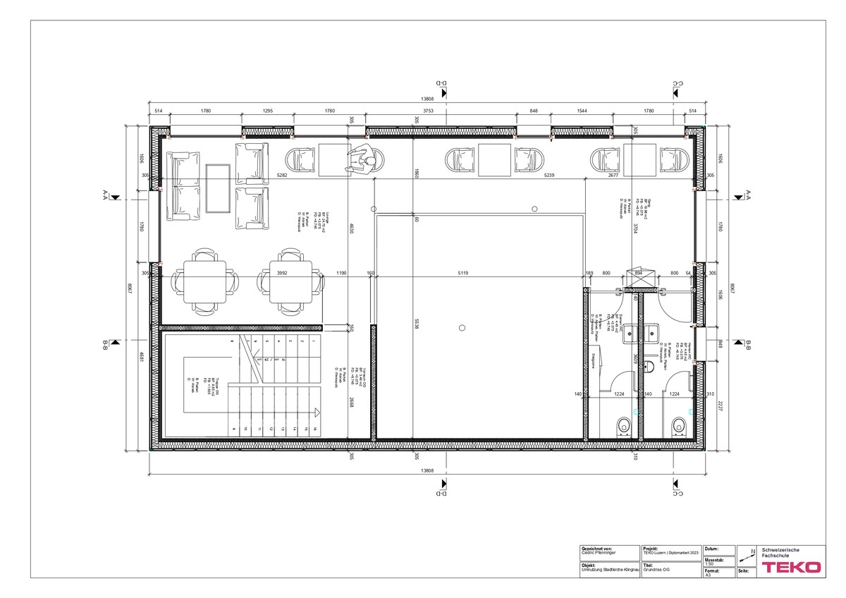
Zusätzlich zur Nutzungsänderung der Kirche ist auf der Parzelle ein Hochbau zu planen, dessen Nutzung im direkten Zusammenhang zur Innennutzung der Kirche zu stehen hat. Um neben dem imposanten Kirchengebäude an sich noch einen weiteren, grossen USP für die Eventlocation zu stellen, wird ein angrenzendes Café mit Inhouse-Catering anvisiert. Da das gastronomische Angebot der Gemeinde Klingnau begrenzt und bis anhin noch kein Café vorhanden ist, kann im neuen «Café BUNT» gleichzeitig ein Ort der Begegnung für die Anwohner entstehen und weitere Besucher angelockt werden.

Entwurf und Ausführung
Der Neubau wird im Westen der Kirche positioniert, dies aufgrund einer erleichterten Catering-Logistik, da die Mitarbeitenden des Cafés bei Events einfach in den nördlichen Infrastrukturbereich der Kirche gelangen können. Gleichzeitig bleiben die Parkmöglichkeiten im Osten erhalten, ebenso die bestehende Baumallee.

Die hinterlüftete Fassade besticht durch Swisspearl Faserzementplatten mit einer leicht pigmentierten, lasierten Oberfläche in der Farbe Titan 6070. Sie lebt von Farbkontrasten der Wasserrinnen, des Dachrandabschlusses und dem Sockelblech in Kupfer sowie den Fensterbänken und dem Spenglerblech im Farbton RAL 7044. Der Neubau ist umgeben von
einer abgestimmten Vegetation mit heimischen Sträuchern und versetzten, bereits bestehenden Bäumen.

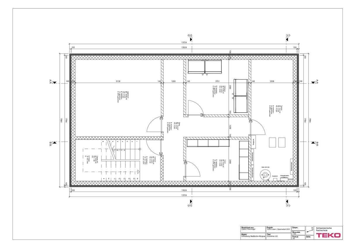
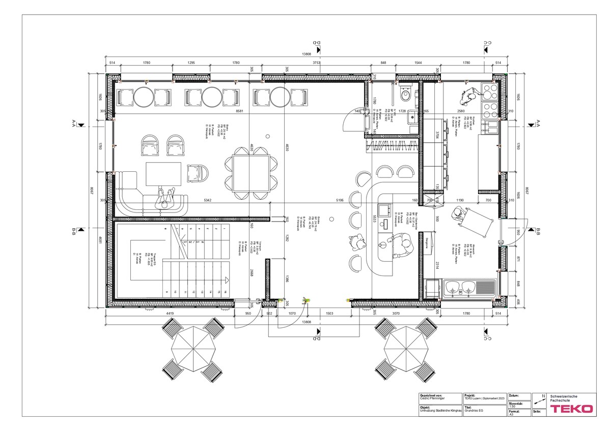
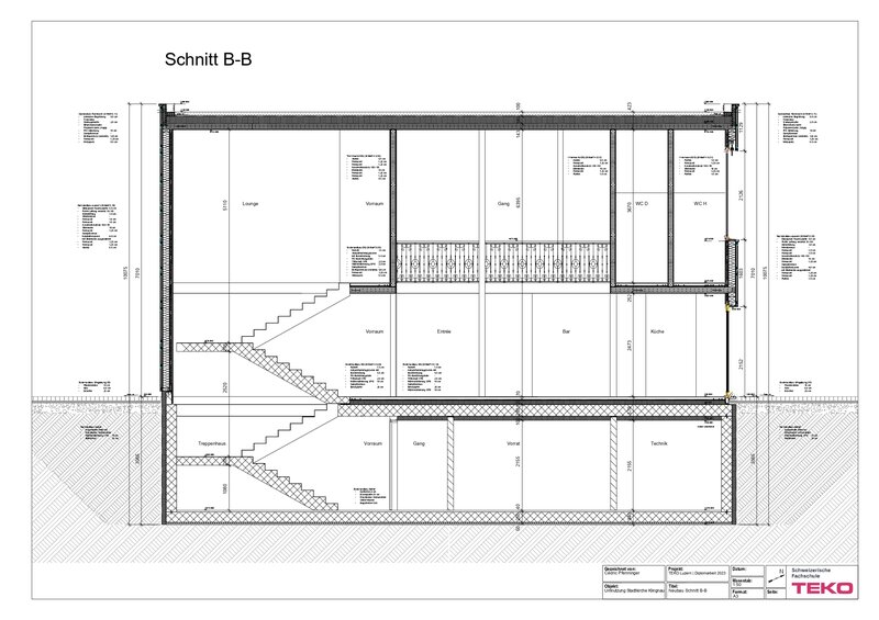
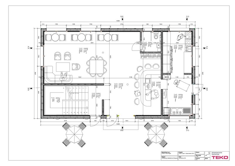
Im Innenbereich nimmt die Gastroküche einen Grossteil des EGs ein, um einen professionellen Gastro- und Cateringbetrieb betreiben zu können. Das Café ist im EG rollstuhlgängig aufgebaut und besticht architektonisch mit einer Galerie, welche mittels Säulen gestützt wird und den Raum optisch grösser wirken lässt. Ihr Stahl-Geländer im Mikado-Look gibt den angestrebten Industrial-Stil wieder. Das UG dient als Kühl- und Lagerfläche und beherbergt die Haustechnik.

Das Mauerwerk der Kirche sollte soweit möglich im Ist-Zustand belassen werden. Für den Betrieb als Eventlocation wurden daher lediglich die Nasszellen erweitert und ein Mise en Place-Bereich für die Aufbereitung des Caterings sowie eine Schausteller-Ankleide konzipiert. Dafür erforderliche, neue Wände werden mittels Holzbau-Konstruktion mit Schichtaufbau hochgezogen. Um eine aufwendige, kostspielige Entfernung der Beichtstühle zu vermeiden, wurde eine Spanplatten-Verkleidung gewählt und der Barbetrieb davor platziert. Im alten Chor verhindern raumhohe Vorhänge ein Hallen. Der erhöhte Altar im Osten dient als Bühne und wird mit zusätzlichen Bühnenelementen erweitert. Um das Gefälle im Kircheninneren zu begradigen, werden eine Unterkonstruktion und Bodenbeläge von Lenzinger Doppelböden verbaut.

Fazit
Abschliessend lässt sich festhalten, dass das vorliegende Konzept alle gesetzlichen Anforderungen erfüllt und somit bewilligungsfähig ist. Auch in puncto Wirtschaftlichkeit überzeugt es mit einer attraktiven Nettorendite von 3.09% aus den Einnahmen der Mietfläche des Cafés sowie der Vermietung der Eventfläche an öffentliche sowie geschlossene Veranstaltungen.

Portrait

Cédric Pfenninger

Junior-Productmanager


Linkedin

Diplomarbeit 2023 | Cédric Pfenninger

Download Diplomarbeit

Weiterbildung neben Beruf und Freizeit

Gratis E-Book mit 10 Tipps zur Work-Life-Learn-Balance

Weiterbildung neben Beruf und Freizeit – schaffe ich das?

10 Tipps zur Work-Life-Learn-Balance

Eine Weiterbildung beansprucht Zeit. Deshalb auf Freunde, Familie und Hobbies zu verzichten, wäre falsch.

In diesem E-Book erfährst du:

  • wie du deine Zeit effizienter nutzt
  • wie du dich trotz Weiterbildung genügend Freizeit bewahrst
  • wie sich Beruf, Weiterbildung und Freizeit gegenseitig ergänzen statt konkurrenzieren können

Tipps aus dem Inhalt

  • TIPP 1: Gestalte deine Arbeit so flexibel wie möglich!
  • TIPP 2: Beziehe Arbeitgeber sowie Kollegen und Kolleginnen in deine Weiterbildungspläne mit ein!
  • TIPP 3: Arbeite effizienter und effektiver mit Zielorientierung!
  • TIPP 4: Entwickle deinen idealen Lernrhythmus!
  • TIPP 5: Lerne mit System und festen Strukturen!
  • TIPP 6: Schaffe genug Ausgleich und Entspannung!
  • TIPP 7: Binde deine/n Partner/in, deine Familie und externe Hilfen in deine Planung ein!
  • TIPP 8: Belohne dich für deine Erfolge!
  • TIPP 9: Mach eine Zeitinventur!
  • TIPP 10: Erstelle eine Zeitplanung aller drei Bereiche!

Leider ist ein Fehler aufgetreten. Bitte versuche es erneut oder nimm mit uns direkt Kontakt auf.

Aktuelles Studienprogramm

Alles Wissenswerte zur Weiterbildung in einem PDF zusammengefasst.

Studienprogramm  herunterladen

Alles Wissenswerte zu deiner Weiterbildung in einem PDF zusammengefasst

  • Detaillierter Lehrplan zu allen Studiengängen
  • Alle wichtigen Hintergrundinfos zu Ausbildungszielen, Teilnehmerkreisen, Aufnahmebedingungen und weiterführenden Studiengängen

Leider ist ein Fehler aufgetreten. Bitte versuche es erneut oder nimm mit uns direkt Kontakt auf.

Gratis E-Book für dich

Weiterbildung neben Beruf und Freizeit - schaffe ich das?

Eine Weiterbildung beansprucht Zeit. Deshalb auf Freunde, Familie und Hobbies zu verzichten, muss nicht sein.

Lies jetzt unser E-Book mit 10 wertvollen Tipps zur Work-Life-Learn-Balance.

Weiterbildung neben Beruf und Freizeit – schaffe ich das?

10 Tipps zur Work-Life-Learn-Balance

Eine Weiterbildung beansprucht Zeit. Deshalb auf Freunde, Familie und Hobbies zu verzichten, wäre falsch.

In diesem E-Book erfährst du:

  • wie du deine Zeit effizienter nutzt
  • wie du dich trotz Weiterbildung genügend Freizeit bewahrst
  • wie sich Beruf, Weiterbildung und Freizeit gegenseitig ergänzen statt konkurrenzieren können

Tipps aus dem Inhalt

  • TIPP 1: Gestalte deine Arbeit so flexibel wie möglich!
  • TIPP 2: Beziehe Arbeitgeber sowie Kollegen und Kolleginnen in deine Weiterbildungspläne mit ein!
  • TIPP 3: Arbeite effizienter und effektiver mit Zielorientierung!
  • TIPP 4: Entwickle deinen idealen Lernrhythmus!
  • TIPP 5: Lerne mit System und festen Strukturen!
  • TIPP 6: Schaffe genug Ausgleich und Entspannung!
  • TIPP 7: Binde deine/n Partner/in, deine Familie und externe Hilfen in deine Planung ein!
  • TIPP 8: Belohne dich für deine Erfolge!
  • TIPP 9: Mach eine Zeitinventur!
  • TIPP 10: Erstelle eine Zeitplanung aller drei Bereiche!

Leider ist ein Fehler aufgetreten. Bitte versuche es erneut oder nimm mit uns direkt Kontakt auf.