Dipl. Techniker/in HF Bauplanung Architektur

Umnutzung Stadtkirche Klingnau

Diplomarbeit 2023 - Dipl. Techniker HF Bauplanung Olten

In Klingnau soll die Stadtkirche umgenutzt werden. Da Umnutzungen von Kirchen immer ein grösseres Thema werden ist dies eine gute Aufgabenstellung.

10. November 2023
Loris Perren

Ausgangslage
Unser Studienobjekt war die Stadtkirche in Klingnau. Die Kirche wurde 1262 das erste Mal erwähnt. Aus dieser Zeit stammt auch noch der untere Teil des Turms. 1480 wurde der Chor erweitert so wie er heute noch vorhanden ist. Gleichzeitig verlängerte man das Kirchenschiff welches 1538 nordseitig verbreitert wurde. 1968 /1969 wurde das Kirchenschiff abgerissen und neu erstellt. Aus dem 13. Bzw. 15. Jahrhundert erhalten sind somit nur noch der Turm und der Chor. Beides steht heute unter Denkmalschutz. Da die Kirche unter Mietgliederschwund leidet möchten sie die Kirche umnutzen, um eine neue Einnahmequelle zu generieren. Die Bausubstanz der Kirche befindet sich in einem guten Zustand. Neben der Umnutzung der Stadtkirche soll auf der Parzelle ein kleiner Neubau erstellt werden, welcher in direktem Zusammenhang mit der Nutzung der Kirche steht. Jedoch sollte der Neubau das Erscheinungsbild der Kirche nicht beeinträchtigen.

Resultat

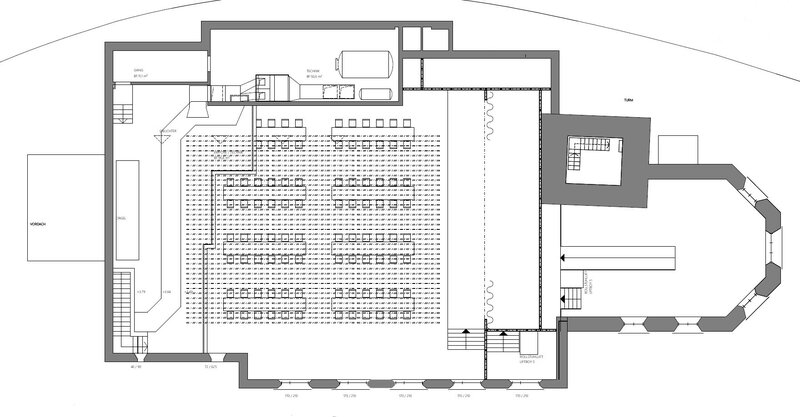
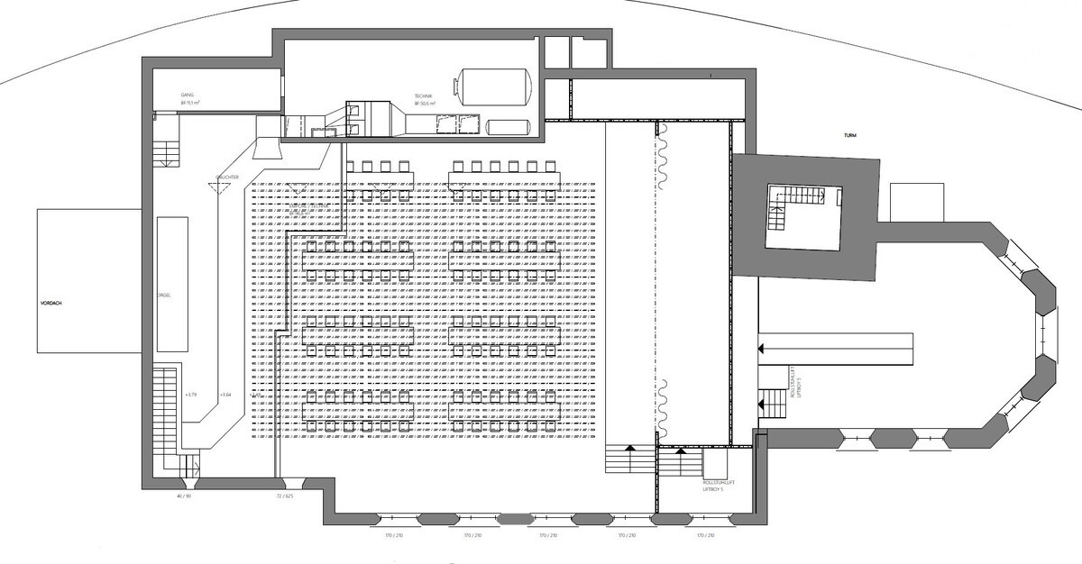
In der Kirche ist eine Eventhalle eingeplant. In welcher man Vorführungen, Vorträge oder Feiern absolvieren kann. Mit verschiedenen Bestuhlungsarten kann man unterschiedlich vielen Personen Sitzgelegenheiten bieten. In der Kirche gibt es einen kleinen Catering Bereich, in welchem man Speisen zubereiten kann. Es gibt neue getrennte WC-Anlagen und ein IV WC. Als Hauptattraktion ist eine Eventbühne eingeplant. Die Empore ist für die Öffentlichkeit nicht zugänglich und wird für die Bühnentechnik verwendet.
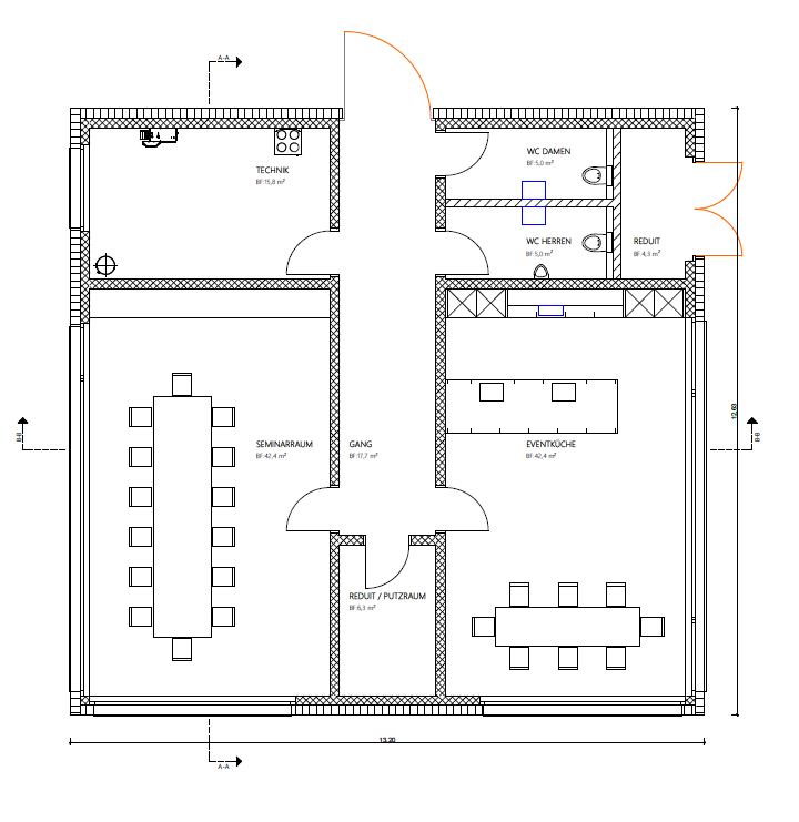
Im Neubau sind ein Seminarraum und eine Eventküche für Privatanlässe oder Firmenevents mit getrennten WC-Anlagen eingeplant.
Die Baukosten für die zwei Bauvorhaben belaufen sich auf 1`479`516.80 CHF. Was eine Nettorendite von 3.08% ergibt.


Auszug Diplomarbeit

Für weitere Informationen können Sie mich gerne per Mail kontaktieren.

Weiterbildung neben Beruf und Freizeit

Gratis E-Book mit 10 Tipps zur Work-Life-Learn-Balance

Weiterbildung neben Beruf und Freizeit – schaffe ich das?

10 Tipps zur Work-Life-Learn-Balance

Eine Weiterbildung beansprucht Zeit. Deshalb auf Freunde, Familie und Hobbies zu verzichten, wäre falsch.

In diesem E-Book erfährst du:

  • wie du deine Zeit effizienter nutzt
  • wie du dich trotz Weiterbildung genügend Freizeit bewahrst
  • wie sich Beruf, Weiterbildung und Freizeit gegenseitig ergänzen statt konkurrenzieren können

Tipps aus dem Inhalt

  • TIPP 1: Gestalte deine Arbeit so flexibel wie möglich!
  • TIPP 2: Beziehe Arbeitgeber sowie Kollegen und Kolleginnen in deine Weiterbildungspläne mit ein!
  • TIPP 3: Arbeite effizienter und effektiver mit Zielorientierung!
  • TIPP 4: Entwickle deinen idealen Lernrhythmus!
  • TIPP 5: Lerne mit System und festen Strukturen!
  • TIPP 6: Schaffe genug Ausgleich und Entspannung!
  • TIPP 7: Binde deine/n Partner/in, deine Familie und externe Hilfen in deine Planung ein!
  • TIPP 8: Belohne dich für deine Erfolge!
  • TIPP 9: Mach eine Zeitinventur!
  • TIPP 10: Erstelle eine Zeitplanung aller drei Bereiche!

Leider ist ein Fehler aufgetreten. Bitte versuche es erneut oder nimm mit uns direkt Kontakt auf.

Aktuelles Studienprogramm

Alles Wissenswerte zur Weiterbildung in einem PDF zusammengefasst.

Studienprogramm  herunterladen

Alles Wissenswerte zu deiner Weiterbildung in einem PDF zusammengefasst

  • Detaillierter Lehrplan zu allen Studiengängen
  • Alle wichtigen Hintergrundinfos zu Ausbildungszielen, Teilnehmerkreisen, Aufnahmebedingungen und weiterführenden Studiengängen

Leider ist ein Fehler aufgetreten. Bitte versuche es erneut oder nimm mit uns direkt Kontakt auf.

Gratis E-Book für dich

Weiterbildung neben Beruf und Freizeit - schaffe ich das?

Eine Weiterbildung beansprucht Zeit. Deshalb auf Freunde, Familie und Hobbies zu verzichten, muss nicht sein.

Lies jetzt unser E-Book mit 10 wertvollen Tipps zur Work-Life-Learn-Balance.

Weiterbildung neben Beruf und Freizeit – schaffe ich das?

10 Tipps zur Work-Life-Learn-Balance

Eine Weiterbildung beansprucht Zeit. Deshalb auf Freunde, Familie und Hobbies zu verzichten, wäre falsch.

In diesem E-Book erfährst du:

  • wie du deine Zeit effizienter nutzt
  • wie du dich trotz Weiterbildung genügend Freizeit bewahrst
  • wie sich Beruf, Weiterbildung und Freizeit gegenseitig ergänzen statt konkurrenzieren können

Tipps aus dem Inhalt

  • TIPP 1: Gestalte deine Arbeit so flexibel wie möglich!
  • TIPP 2: Beziehe Arbeitgeber sowie Kollegen und Kolleginnen in deine Weiterbildungspläne mit ein!
  • TIPP 3: Arbeite effizienter und effektiver mit Zielorientierung!
  • TIPP 4: Entwickle deinen idealen Lernrhythmus!
  • TIPP 5: Lerne mit System und festen Strukturen!
  • TIPP 6: Schaffe genug Ausgleich und Entspannung!
  • TIPP 7: Binde deine/n Partner/in, deine Familie und externe Hilfen in deine Planung ein!
  • TIPP 8: Belohne dich für deine Erfolge!
  • TIPP 9: Mach eine Zeitinventur!
  • TIPP 10: Erstelle eine Zeitplanung aller drei Bereiche!

Leider ist ein Fehler aufgetreten. Bitte versuche es erneut oder nimm mit uns direkt Kontakt auf.