Dipl. Techniker/in HF Bauplanung Architektur

Diplomarbeit 2022

Umbau Gewerbegebäude in ein Wohngebäude, Grenchen

15. November 2022
Danja Furrer

Ausgangslage

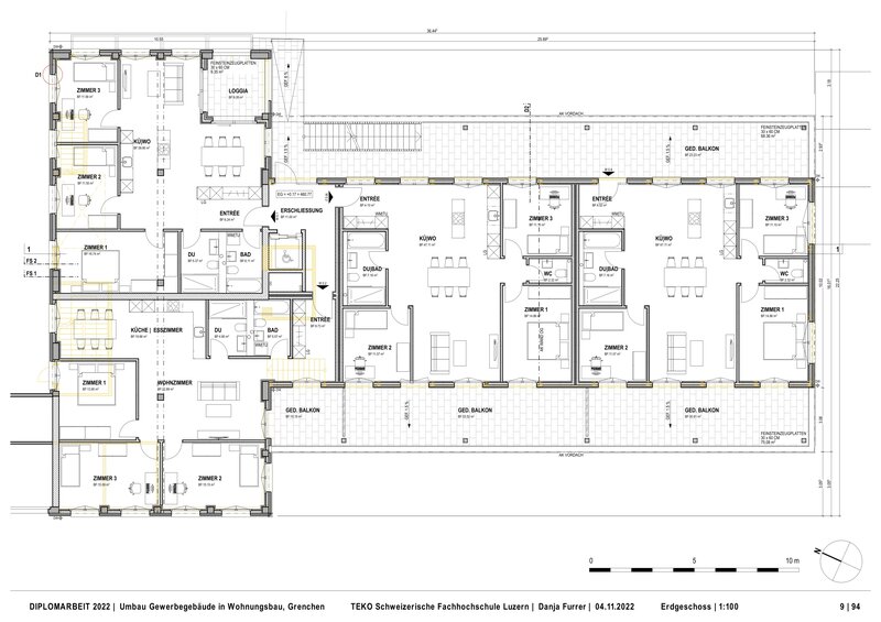
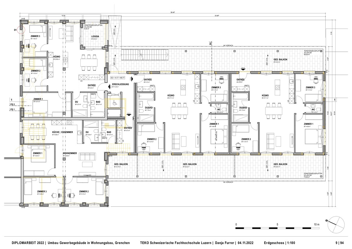
Beim Studienobjekt handelt es sich um ein leerstehendes Gewerbegebäude inmitten eines Einfamilienhaus-Wohnquartiers. Ursprünglich als Quartierhaus erstellt, wurde die Liegenschaft mehrfach erweitert und zum Gewerbegebäude umgenutzt. Die Liegenschaft besteht aus zwei unterschiedlich hohen Gebäudekuben, die T-förmig angeordnet sind. Das Gebäude steht seit längerem leer und ist teilweise in einem desolaten Zustand. Die statische Struktur der Skelettbauweise jedoch funktioniert und ist interessant. Deshalb soll die Bausubstanz entsprechend erhalten bleiben und darauf aufgebaut werden. Die Liegenschaft soll wieder der Wohnnutzung zugeführt werden.

Entwurf

Die Wohnform ist auf die Situation in Grenchen abgestimmt. Es sind sechs 4.5-Zimmer-Wohnungen geplant und eine grosse Wohnung, welche als Wohngemeinschaft für bis zu sechs Personen dient. Die Terrassen wurden gross gestaltet und sind jeweils gegen Süden oder Westen ausgerichtet. Um den Kontakt zu den Nachbarn zu fördern ist im Südwesten der Parzelle ein Gemeinschaftsplatz geplant, bei dem sich die Mieter zum Grillieren oder zum Tischtennis-Spiel treffen können.

Materialkonzept

Grenchen ist eine am Jurasüdfuss gelegene politische Gemeinde, welche vor allem für ihre Uhrenindustrie bekannt ist. Die Industriearchitektur gilt als Vorreiter der modernen Architektur und wird durch die rasterartig angeordneten Fenster und die eher kühlen Farbtöne erkannt. Damit das neue Gebäude Bezug auf das bestehende Gewerbegebäude nimmt, wurde die Industriearchitektur zu einem Teil der Diplomarbeit. Die Fenster wurden mit einem gleichmässigen Raster eingesetzt und als durchgehende Fensterbänder dargestellt. Die Fassadenfarben erhalten einen grauen Farbton.

Fazit

Während der sechswöchigen Diplomarbeit habe ich ein spannendes Konzept erarbeitet, welches sowohl ästhetisch als auch konstruktiv funktioniert. Wichtig bei der Erarbeitung meines Projektes war für mich, dass ich der Bauherrschaft eine gute Lösung präsentieren kann, welche ihren Wünschen und Vorstellungen von einer guten Rendite und nachhaltigen und langlebigen Baustoffen entspricht.

Portrait

Danja Furrer

Zeichnerin Fachrichtung Architektur


danja.furrer@bluewin.ch

Kurzversion meiner Diplomarbeit vom 04.11.2022

Download Diplomarbeit

Weiterbildung neben Beruf und Freizeit

Gratis E-Book mit 10 Tipps zur Work-Life-Learn-Balance

Weiterbildung neben Beruf und Freizeit – schaffe ich das?

10 Tipps zur Work-Life-Learn-Balance

Eine Weiterbildung beansprucht Zeit. Deshalb auf Freunde, Familie und Hobbies zu verzichten, wäre falsch.

In diesem E-Book erfährst du:

  • wie du deine Zeit effizienter nutzt
  • wie du dich trotz Weiterbildung genügend Freizeit bewahrst
  • wie sich Beruf, Weiterbildung und Freizeit gegenseitig ergänzen statt konkurrenzieren können

Tipps aus dem Inhalt

  • TIPP 1: Gestalte deine Arbeit so flexibel wie möglich!
  • TIPP 2: Beziehe Arbeitgeber sowie Kollegen und Kolleginnen in deine Weiterbildungspläne mit ein!
  • TIPP 3: Arbeite effizienter und effektiver mit Zielorientierung!
  • TIPP 4: Entwickle deinen idealen Lernrhythmus!
  • TIPP 5: Lerne mit System und festen Strukturen!
  • TIPP 6: Schaffe genug Ausgleich und Entspannung!
  • TIPP 7: Binde deine/n Partner/in, deine Familie und externe Hilfen in deine Planung ein!
  • TIPP 8: Belohne dich für deine Erfolge!
  • TIPP 9: Mach eine Zeitinventur!
  • TIPP 10: Erstelle eine Zeitplanung aller drei Bereiche!

Leider ist ein Fehler aufgetreten. Bitte versuche es erneut oder nimm mit uns direkt Kontakt auf.

Aktuelles Studienprogramm

Alles Wissenswerte zur Weiterbildung in einem PDF zusammengefasst.

Studienprogramm  herunterladen

Alles Wissenswerte zu deiner Weiterbildung in einem PDF zusammengefasst

  • Detaillierter Lehrplan zu allen Studiengängen
  • Alle wichtigen Hintergrundinfos zu Ausbildungszielen, Teilnehmerkreisen, Aufnahmebedingungen und weiterführenden Studiengängen

Leider ist ein Fehler aufgetreten. Bitte versuche es erneut oder nimm mit uns direkt Kontakt auf.

Gratis E-Book für dich

Weiterbildung neben Beruf und Freizeit - schaffe ich das?

Eine Weiterbildung beansprucht Zeit. Deshalb auf Freunde, Familie und Hobbies zu verzichten, muss nicht sein.

Lies jetzt unser E-Book mit 10 wertvollen Tipps zur Work-Life-Learn-Balance.

Weiterbildung neben Beruf und Freizeit – schaffe ich das?

10 Tipps zur Work-Life-Learn-Balance

Eine Weiterbildung beansprucht Zeit. Deshalb auf Freunde, Familie und Hobbies zu verzichten, wäre falsch.

In diesem E-Book erfährst du:

  • wie du deine Zeit effizienter nutzt
  • wie du dich trotz Weiterbildung genügend Freizeit bewahrst
  • wie sich Beruf, Weiterbildung und Freizeit gegenseitig ergänzen statt konkurrenzieren können

Tipps aus dem Inhalt

  • TIPP 1: Gestalte deine Arbeit so flexibel wie möglich!
  • TIPP 2: Beziehe Arbeitgeber sowie Kollegen und Kolleginnen in deine Weiterbildungspläne mit ein!
  • TIPP 3: Arbeite effizienter und effektiver mit Zielorientierung!
  • TIPP 4: Entwickle deinen idealen Lernrhythmus!
  • TIPP 5: Lerne mit System und festen Strukturen!
  • TIPP 6: Schaffe genug Ausgleich und Entspannung!
  • TIPP 7: Binde deine/n Partner/in, deine Familie und externe Hilfen in deine Planung ein!
  • TIPP 8: Belohne dich für deine Erfolge!
  • TIPP 9: Mach eine Zeitinventur!
  • TIPP 10: Erstelle eine Zeitplanung aller drei Bereiche!

Leider ist ein Fehler aufgetreten. Bitte versuche es erneut oder nimm mit uns direkt Kontakt auf.