Diplomarbeit 2022
Umbau / Erweiterung eines Gewerbegebäudes in ein Wohnhaus
Auftrag: Die Bauherrschaft will ein bestehendes Gewerbegebäude in Grenchen wieder der Wohnnutzung zuführen.
Projektbeschrieb
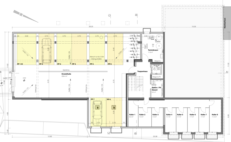
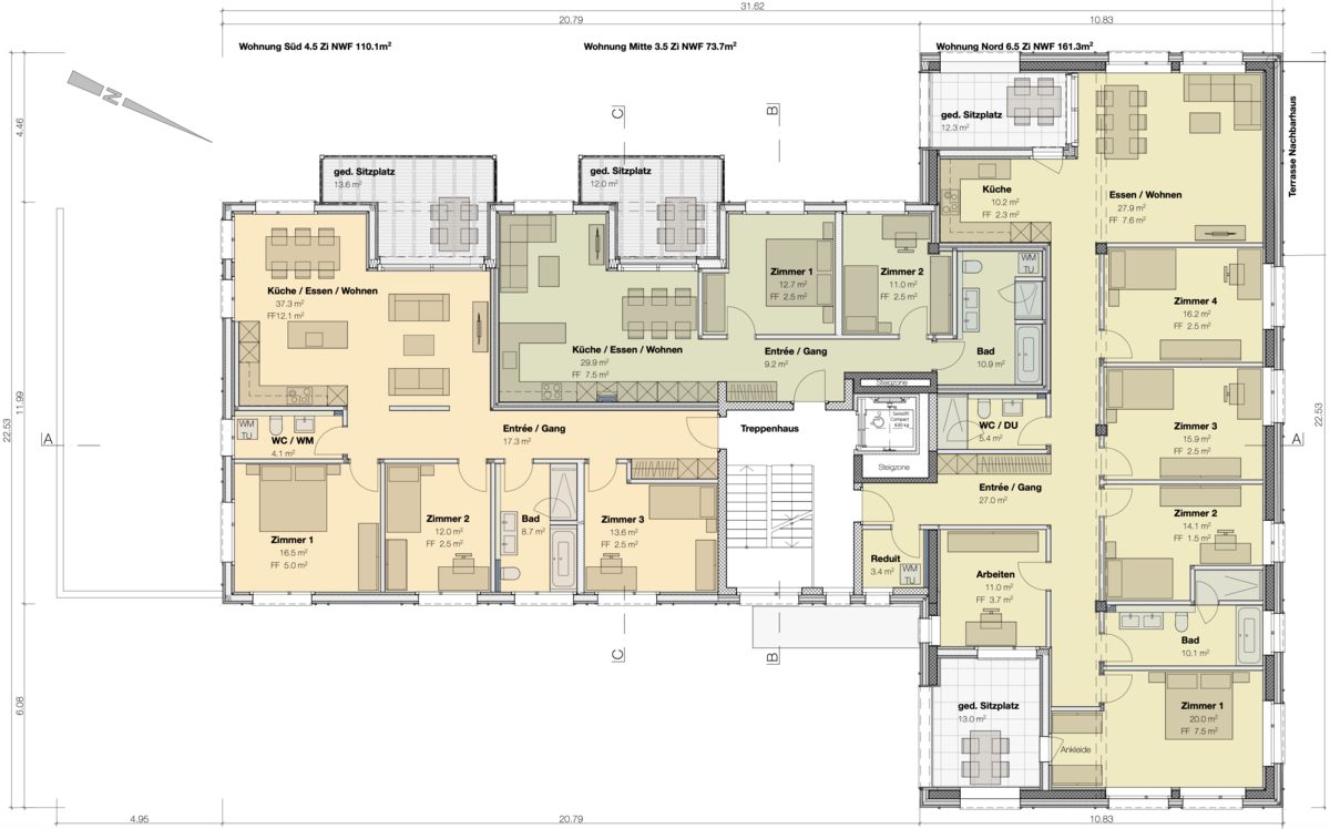
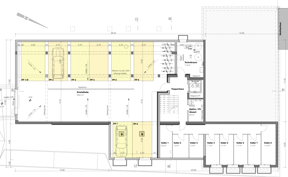
Mit der Übernahme und Sanierung der bestehenden Skelettbaustruktur wurde aus dem unbrauchbaren Gewerbegebäude ein Wohnhaus mit acht Wohneinheiten geschaffen.
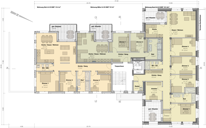
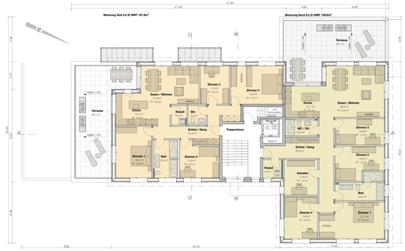
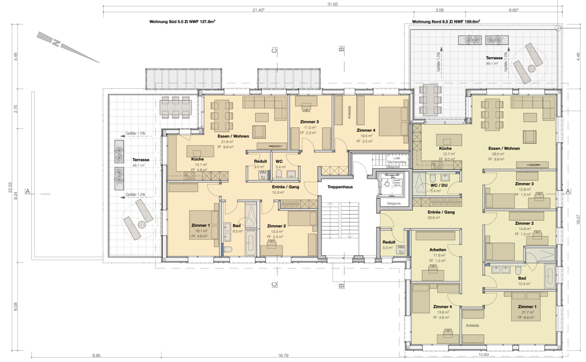
Es wurde auf einen mittleren Ausbaustandard der Wohnungen mit schönen Materialien und einem perfekt abgestimmten Gesamtkonzept gesetzt. Im speziellen sind zu erwähnen, die beiden grossen Attikawohnungen und der grosszügige Gemeinschaftsraum im Erdgeschoss.
Auf dem Dach wurde eine 45kWp PV-Anlage eingeplant, welche das Wohnhaus für mehr als fünf Monate im Jahr energie-autark betreiben lässt.
Eine nachhaltige Fassadengestaltung rundet den Baukörper ab.
Für die Eingliederung des Baukörpers in die Landschaft wurde eine nutzungskonforme Umgebung mit viel Grün gestaltet.
Die Gesamtinvestitionen des vorliegenden Projektes belaufen sich inklusive bestehende Liegenschaft und Mehrwertsteuer auf 5'750'000.00 CHF.
Nach Bauvollendung wird die neue Rendite-Liegenschaft eine nachhaltige Nettorendite von 2.74% einbringen.
Die präsentierte Arbeit überzeugt mit einem tollen Projektentwurf und fein ausgearbeiteten Lösungen in Konstruktion, Gestaltung und Wirtschaftlichkeit.

Janik Flück
Als gelernter Hochbauzeichner EFZ arbeite ich seit 10 Jahren als Projektleiter in einem Architekturbüro. Meine Tätigkeiten umfassen alle Arbeitsbereiche von Planung bis Ausführung inkl. Bauleitung. Von meinem Umfeld werde ich als einen zuverlässigen, hilfsbereiten und umsichtigen Teamplayer wahrgenommen.
janik.flueck@bluewin.ch
Diplomarbeit gekürzte Fassung
Download Diplomarbeit











