Bettlachstrasse 140b
Umbau / Erweiterung eines Gewerbegebäudes in Grenchen
Der heutige Gewerbebau steht inmitten einer Wohnzone und hätte so erst gar nicht gebaut werden sollen. Ziel des Projektes ist es, das Gebäude wieder als Wohngebäude umzubauen und in die Umgebung einzugliedern. Dabei sollte vor allem die statische Struktur des Skelettbaus beibehalten werden.
Das Projekt
Gebaut wurde das Gewerbegebäude im Jahr 1969; eine grosszügige Loftwohnung mit hohen Räumen und grossen Fenstern im Industrie-Stil. Zu einem späteren Zeitpunkt wurde eine Gewerbehalle angebaut. Das Gebäude wurde über einen längeren Zeitraum als Gewerbegebäude genutzt. Den Rückständen aus dieser Zeit nach, könnte es ein Metallverarbeitungsunternehmen gewesen sein. Über die Vergangenheit des Gebäudes ist generell nur wenig bekannt. Auch über spätere Nutzungen des Gebäudes kann man nur Vermutungen anstellen, Spielraum für tollkühne Geschichten gibt es in den letzten Hinterlassenschaften mehr als genug.
Nun was auch immer in der Vergangenheit war, können wir nicht nachvollziehen, es liegt jedoch in unserer Hand, eine mögliche Zukunft für diese Liegenschaft zu entwickeln.
Das Quartier soll mit diesem Projekt aufgewertet werden und es soll ein neuer Lebensraum entstehen.
Von Wohnformen
Bei dem Wort “Wohnformen“ war mein erster Gedanke, dass es etwas anderes als gewöhnliche 3.5 und 4.5 Zimmerwohnungen sein sollten. Dabei hatte ich bereits auch schon einen konkreten Gedanken im Hinterkopf.
Laut meiner Marktanalyse herrscht ein Mangel an sehr grossen wie auch an sehr kleinen Wohnungen. Ich habe mich daher entschieden, drei 6.5 bis 7.5 Zimmerwohnungen und das Wohnformat der Wohngemeinschaft mit Einzelzimmern zu planen.
Die Zeiten ändern sich
Der Platz in den Grossstädten ist begrenzt und die Lebensformen haben sich in letzter Zeit stark verändert. Die Menschen leben bewusster, machen sich Gedanken über die Umwelt und ihre Einflüsse auf diese. Eine Wohngemeinschaft ist nicht nur für Studenten interessant, sondern auch und vielleicht besonders für alleinstehende Menschen im mittleren Alter oder für Rentner und Senioren. Menschen die Gesellschaft suchen und doch einen eigenen Rückzugsort wollen. Die Wohnform hat einen besonderen Reiz; ich denke gerade die Mischung macht das ganze erst interessant, wenn die einzelnen Mitbewohner aus verschiedenen Alters- und Lebensphasen zusammenkommen. Von einem solchen Austausch könnten alle profitieren, Junge wie auch etwas Ältere.
Konstruktion
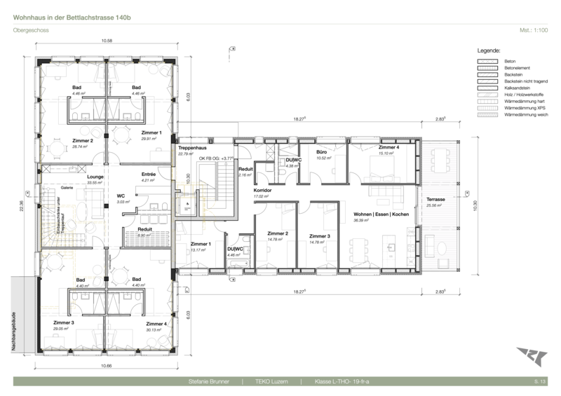
Das Gebäude lässt sich bereits heute in zwei Zonen unterteilen; die Loftwohnung und die angebaute Gewerbehalle. Die beiden Teile werden auch in Zukunft verschiedene Erscheinungen haben. Der ehemalige Loft-Teil wird in massiver Bauweise ausgeführt und die heutige Halle grossmehrheitlich mit Holzbauelementen aufgestockt und in Holz eingekleidet. Die beiden Teile sind in Konstruktion und Erscheinung komplett verschieden, sind jedoch optimal aufeinander abgestimmt, so dass kein Teil den anderen verdrängt.
Klinker und Industrie-Chick
Moderner Holzbau

Stefanie Brunner
Onlinepräsentation
Eine kurze Zusammenfassung meiner Arbeit steht hier zur verfügung. Die ganze Version auf Anfrage.








