Neubau Gewerbehaus mit Dachparking
Diplomarbeit
Während der 6-wöchigen Diplomphase entwickelte sich eine überzeugende Lösung für die zukünftige Nutzung der Parzelle 1296 - Allmend 37 in 6204 Sempach. Unter Wiederverwendung der bestehenden Holzbauelemente entsteht eine Gewerbeliegenschaft mit attraktiven Mietflächen.
MANAGEMENT SUMMARY
Die Diplomarbeit umfasst einen Rückbau eines bestehenden Gewerbebaus an der Allmend 37 in 6204 Sempach. Die Liegenschaft mit Baujahr 2011 auf der Parzelle Nr. 1296 bietet ein beachtliches Ausnützungspotential. Die Bauherrschaft möchte unter Wiederverwendung der bestehenden Holzbauelemente eine neue Gewerbeliegenschaft mit Parkdeck realisieren. Im Zentrum dieser Anforderungen steht Langfristigkeit und Nachhaltigkeit.
Das vorliegende Projekt wurde unter den Aspekten Entwurf, Baustellenlogistik, Konstruktion, statisches Konzept, Haustechnik, Kostenermittlung und Wirtschaftlichkeit sowie Farb- und Materialkonzept durch die Diplomanten untersucht.
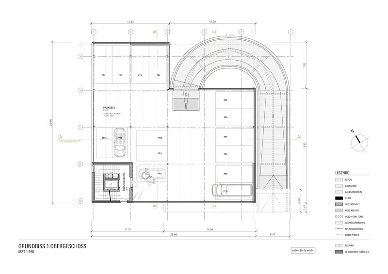
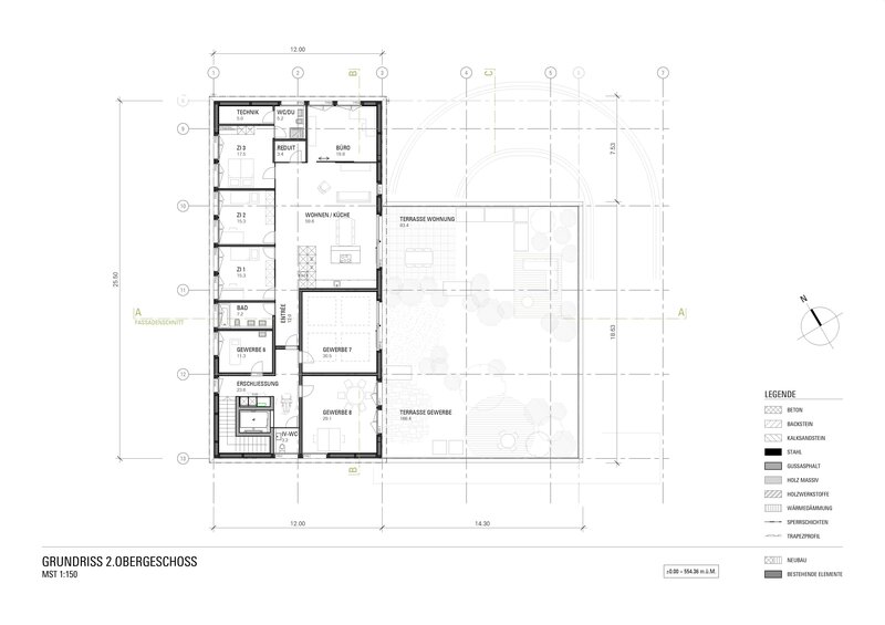
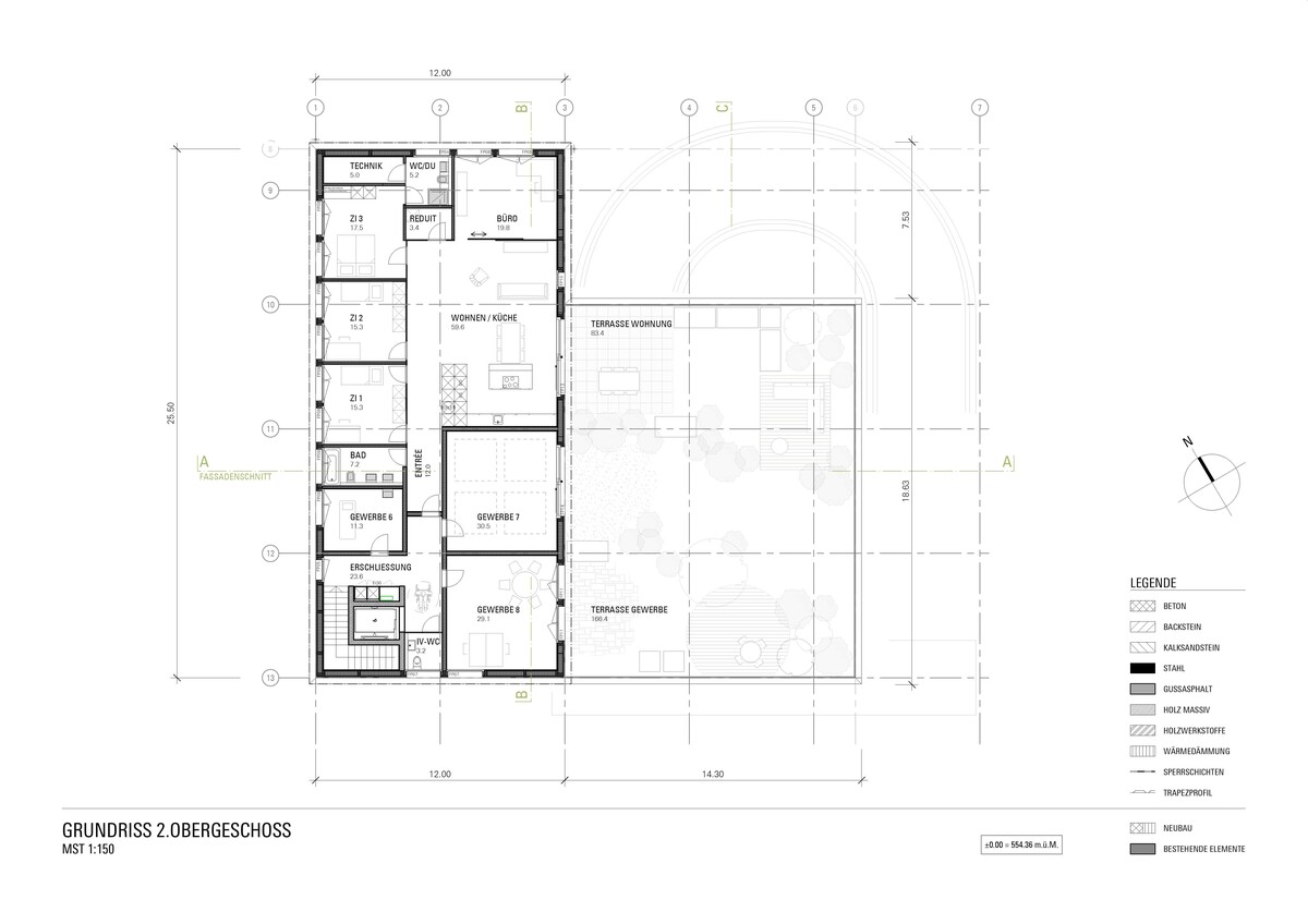
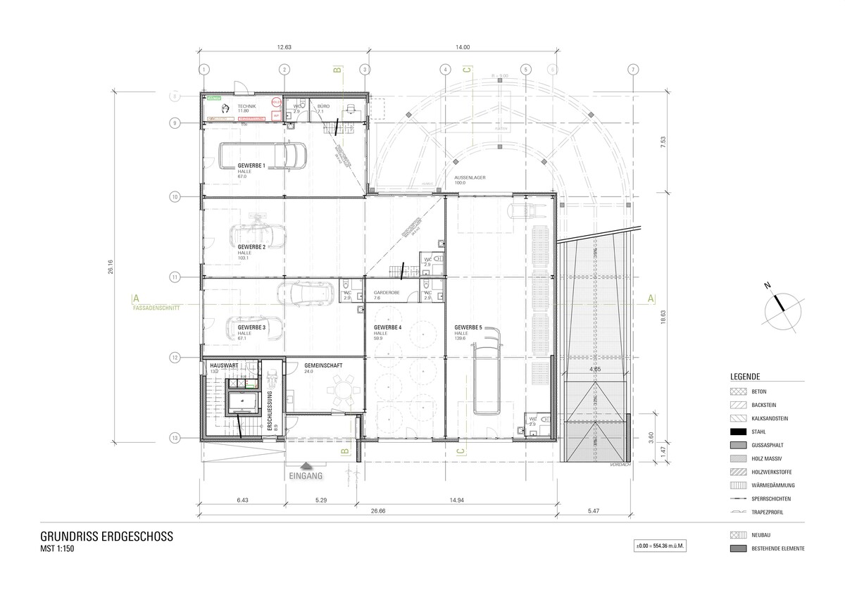
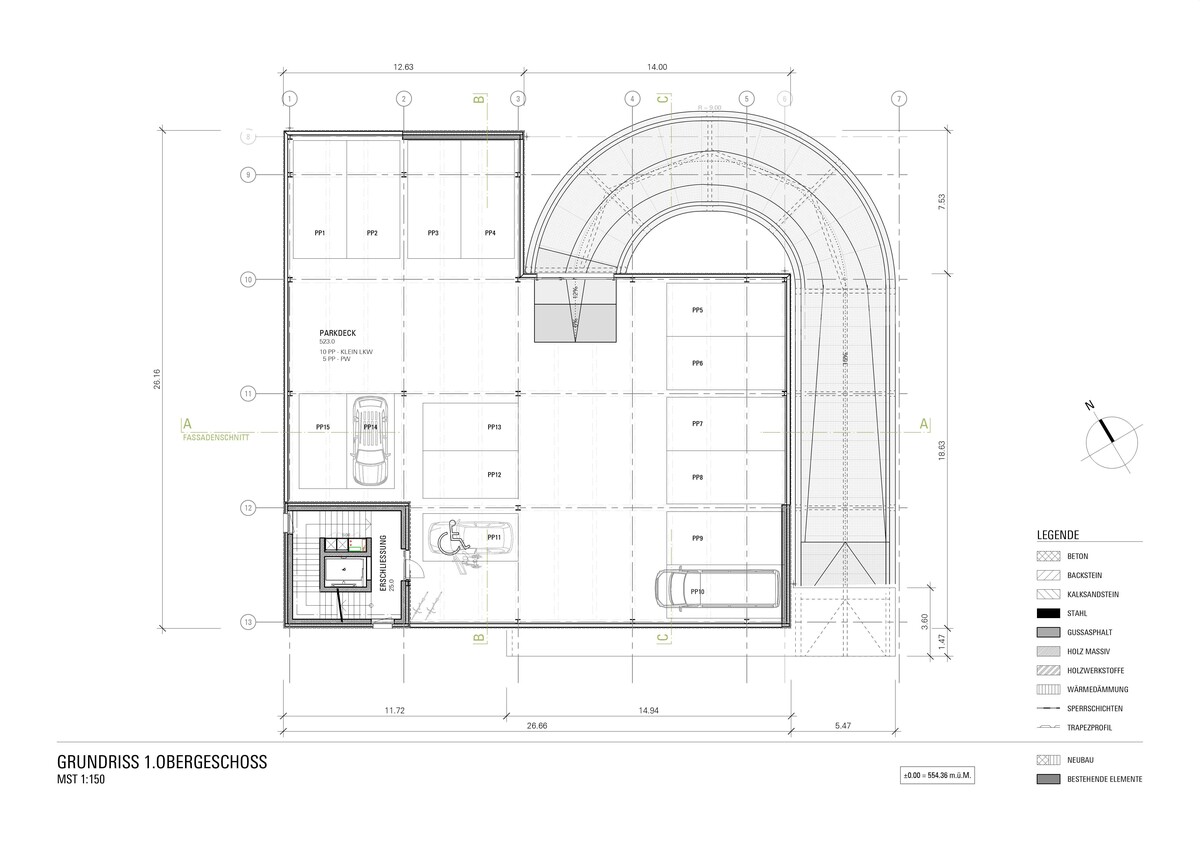
Mit einem durchdachtem Konzept, auf Grundlage eines Stützenrasters, entstand ein attraktives Gebäude mit verschiedenen, flexiblen Nutzungsmöglichkeiten. Das Gebäude bietet auf drei Geschossen rund 920 m2 vermietbare Flächen, sowie insgesamt 15 Parkplätze für PW‘s und Klein-LKW‘s im Parkdeck. Der Neubau wird als Stahlbauhalle erstellt. Über dem Parkdeck werden die bestehenden Holzelemente in einer Neuanordnung wieder montiert.
Unter Berücksichtigung der Planungsphase kann mit einem Bezug vom 01. Mai 2023 gerechnet werden. Die Anlagekosten belaufen sich auf Fr. 5‘410‘000. Durch die Wahl von unterhaltsarmen Bauteilen und optimale Ausnützung kann eine Nettorendite von 1.92% erreicht werden. Der Verkehrswert wurde anhand der Nettokapitalisierung mit einem Basiszinssatz von 2.9% gerechnet und beläuft sich auf Fr. 3‘580‘000.

Stefanie Stutz
Onlinepräsentation
Die Datei zeigt Auszüge aus meiner Diplomarbeit. Die vollständige Arbeit wird auf Anfrage ausgehändigt.











