Dipl. Techniker/in HF Bauplanung Architektur

Diplomarbeit

Neubau Gewerbehaus mit Dachparking in Sempach - Unter Wiederverwendung des bestehenden Elementbaus

12. November 2021
Yannick Lanz

Management Summary

Ausgangslage
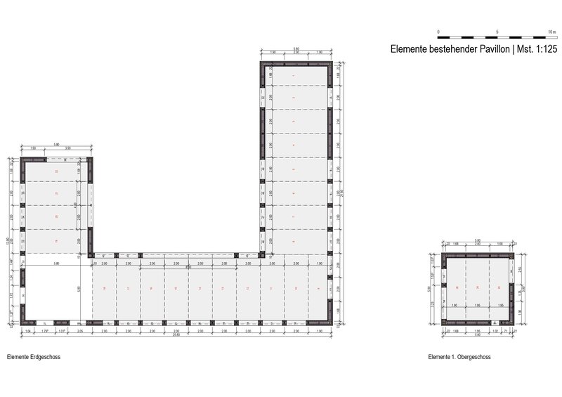
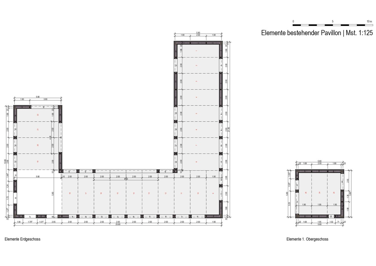
Beim Studienobjekt handelt es sich um einen modular aufgebauten Holz-Pavillon mit Innenhofbereich,
welcher durch einen Aufbau im ersten Obergeschoss ergänzt ist. Das Gebäude, welches nun verkauft
worden ist, wurde 2011 als Firmensitz für eine SPA-Planungsfirma erstellt. Da ein beachtliches Ausnützungspotential vorliegt,
möchte die Bauherrschaft ein entsprechend grosses Neubauprojekt realisieren, wobei das bestehende Gebäude ins Konzept zu
integrieren ist.
Das bestehende Gebäude ist zwar statisch so konzipiert, dass eine Aufstockung problemlos möglich
ist. Die Bauherrschaft hat sich jedoch bewusst für eine andere Vorgehensweise entschieden: der Pavillon soll demontiert und
eingelagert werden. Währenddessen im Erdgeschoss ein neuer Gewerbebau mit einem darüberliegenden Parkgeschoss resp.
Regelgeschoss erstellt wird. Über dem Regelgeschoss im 2.OG wird dann der Pavillon wieder aufgebaut, wobei alle Elemente des
Modul-Holzbaus wiederverwendet werden müssen. Dem ökologischen Aspekt dieses umweltfreundlichen und noch recht neuen
Gebäudes soll damit Rechnung getragen werden.
Sempach, eingebettet zwischen Luzern und Sursee, ist am oberen Ende des Sempachersees gelegen und zählt rund 4'200
Einwohner. Die Gemeinde verfügt mit dem Autobahnzubringer sowie dem ÖV-Netz mittels der Busse und dem Bahnhof Sempach
Station über eine gute Verkehrsanbindung. Die Gemeinde bietet Einiges: eine attraktive Lage am See, ein beschauliches und
geschichtsträchtiges Städtli, Veranstaltungen, Freizeitgestaltungsmöglichkeiten, die Schweizerische Vogelwarte mit neuem
Besucherzentrum und vielem mehr. Sempach ist nicht nur als Wohn- sondern auch als Gewerbeort interessant.
Das Studienobjekt liegt am Rand des Gewerbegebietes Allmend. Dieses ist von der Autobahn A2 in fünf Minuten erreichbar.

Vorgang
Das vorliegende Dokument und der dazugehörige digitale Arbeitsordner gehen näher auf den Ablauf bezüglich der Ideenentwicklung
und des Prozesses ein.
Im Mittelpunkt für einen ersten gelungenen Projektentwurf standen die Themen Wirtschaftlichkeit und Nachhaltigkeit. Um diesen
Erwartungen zu entsprechen, wurde im Projekt bereits zu Beginn eine erste grobe Kostenschätzung und
Wirtschaftlichkeitsberechnung durchgeführt. Unter Berücksichtigung dieser Aspekte wurden dann die einzelnen Themenbereiche
Schritt für Schritt abgehandelt. Auf Grund der vorgegebenen Anforderungen wurde versucht, die Themen möglichst aufeinander
abgestimmt in einem zeitgemässen und wirtschaftlichen Konzept zu erarbeiten.

Resultat
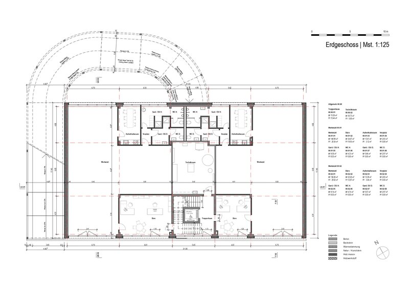
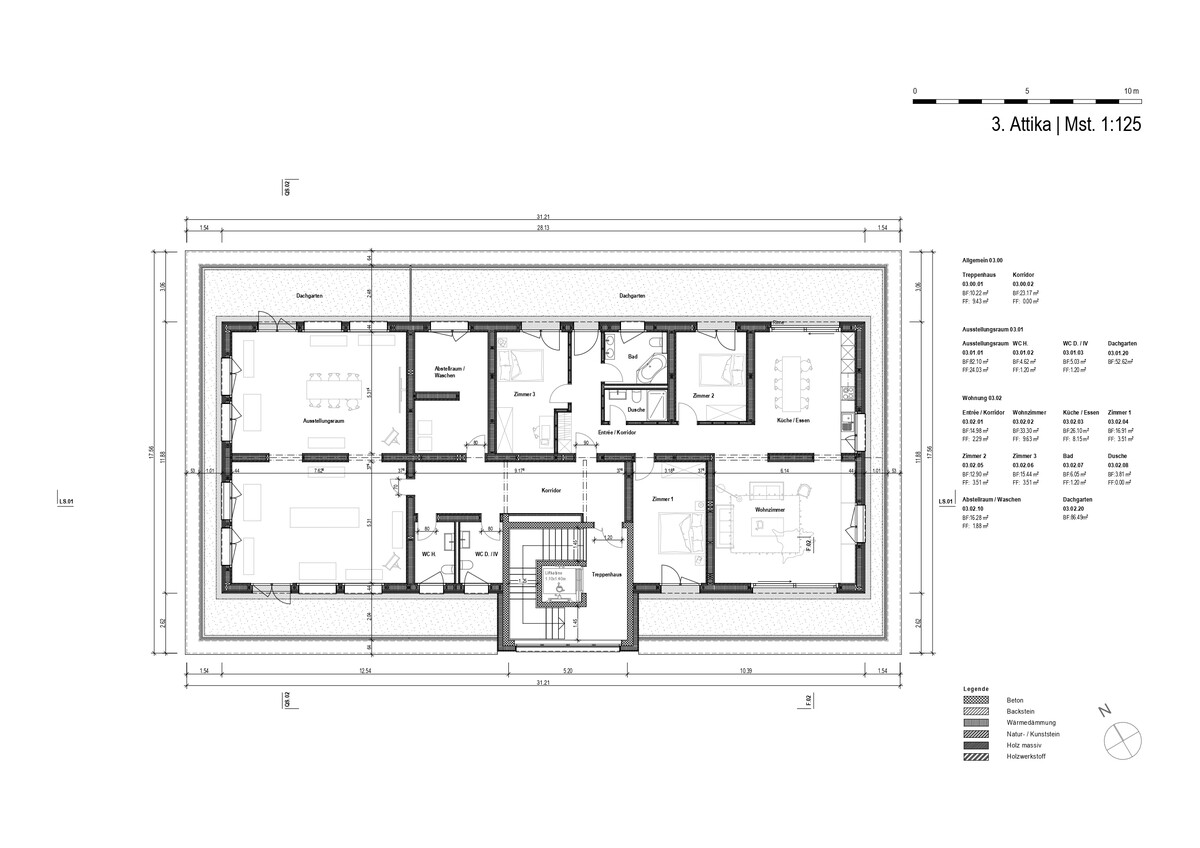
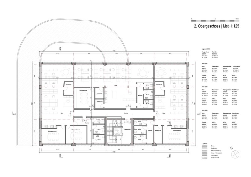
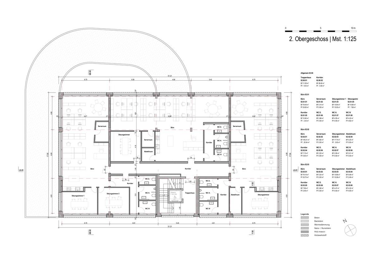
Um den geplanten Neubau unter Wiederverwendung des Pavillons möglichst optimal auf die örtlichen Bedürfnisse abzustimmen,
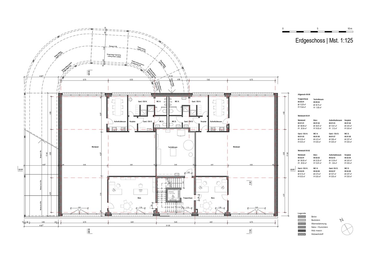
wurde eine gesunde Mischung aus verschiedenen Nutzungen ausgewählt. Dieser umfasst zwei Werkstätten, drei
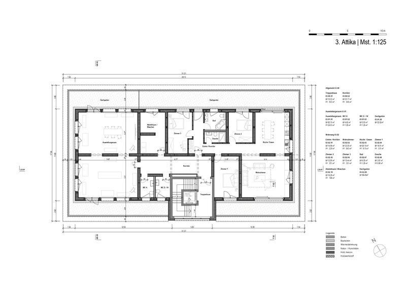
Büroräumlichkeiten, einen Ausstellungsraum und eine 4.5 Zimmer ,,Hauswarts Wohnung''. Die beiden Werkstätten eignen sich
besonders gut für KMU wie z.B. ein Handwerkerunternehmen. Zusätzlich kann der Ausstellungsraum im Attika dazu gemietet
werden, um allfällige Materialaustellungen den Kunden näher zu bringen. Die Büroräumlichkeiten im 2.OG überzeugen mit viel
natürlichem Licht und der ruhigen Ausrichtung gegen Nordost. Die Wohnung im Attika bietet viel Platz und mit der massiven
Brüstung einen guten Sicht- und Lärmschutz gegenüber dem Gewerbe in der Allmend. Die begrünte Terrasse der Wohnung zieht
sich von Nordost bis Südwest und gewährt somit sowohl Morgen- wie auch Abendsonne.
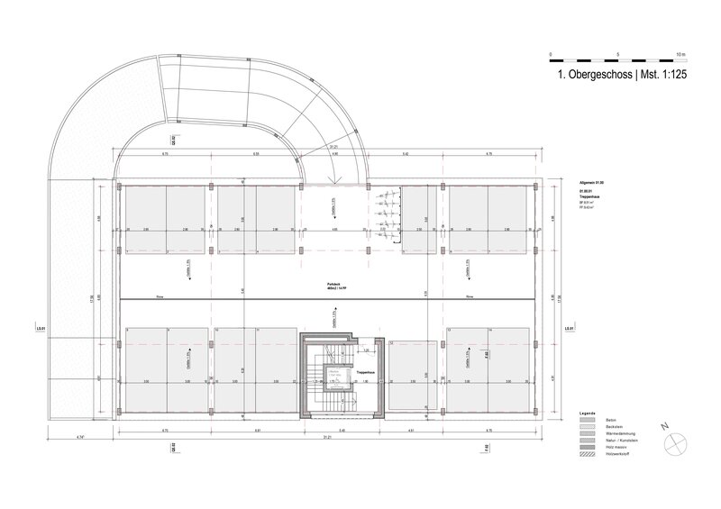
Die Konstruktion wurde so ausgewählt, dass allfällige Umnutzungen mit möglichst geringem Aufwand umgesetzt werden können.
Die tragende Struktur besteht grösstenteils aus dem massiven Treppenhauskern und dem Betonstützenraster.

Schlusswort

Nach intensivem auseinandersetzen mit dem Objekt, kann ich sagen, dass man bei der Aufgabe viel Gestaltungsfreiraum erhalten hat. Die Parzelle mit bestehendem Holz-Pavillon lässt komplett unterschiedliche Lösungsansätze zu. Eine der grössten Herausforderungen hierbei war, eine geeignete Nutzung unter Berücksichtigung der Wirtschaftlichkeit und Nachhaltigkeit zu finden. Insbesondere die Wiederverwendung des Holz-Pavillons und das Planen des Parkdecks im 1. Obergeschoss machten die Aufgabe besonders interessant. Dies sind Anforderungen, welche nicht alltäglich sind und ein besonderes Augenmerk verlangen.

Nebst den oben erwähnten Punkten war eine zusätzliche Herausforderung das Zeitmanagement. Obwohl ich bereits zu Beginn ziemlich viel Zeit investierte, musste ich gegen Ende feststellen, dass die Arbeit sehr umfassend ist und ich nicht alles im von mir gewünschten Detaillierungsgrad abliefern kann. Obwohl ich bereits früh einen ersten vernünftigen Entwurf auf dem Papier hatte, kamen nach und nach immer wieder Anpassungen zum Vorschein und das Projekt musste wieder hingehend bearbeitet werden. Dazu kommt die Doppelbelastung zwischen Diplomarbeit und meinem Job als Projekt- und Bauleiter, welche sich die letzten paar Wochen als sehr intensiv und anspruchsvoll gestaltete.

Nichtsdestotrotz bin ich mit meinem Resultat zufrieden. Insbesondere die Themenbereiche Entwurf, Baustellenlogistik sowie Konstruktion, Kostenermittlung, Wirtschaftlichkeit und 3D-Darstellung erachte ich als gelungen. Wiederum sind die Bereiche Statik, Haustechnik und Arbeitsordner etwas spärlich ausgefallen und hätten mit etwas mehr Zeit sicherlich auch noch Potential zur Vertiefung gehabt.

Schlussendlich kann gesagt werden, dass die Arbeit trotz grösster Anstrengung, sich als äusserst lehrreich und interessant gestaltet hat.

Portrait

Yannick Lanz

Eidg. Dipl. Bauleiter HFP


yannick.lanz@za-ag.ch


0799456005

Weiterbildung neben Beruf und Freizeit

Gratis E-Book mit 10 Tipps zur Work-Life-Learn-Balance

Weiterbildung neben Beruf und Freizeit – schaffe ich das?

10 Tipps zur Work-Life-Learn-Balance

Eine Weiterbildung beansprucht Zeit. Deshalb auf Freunde, Familie und Hobbies zu verzichten, wäre falsch.

In diesem E-Book erfährst du:

  • wie du deine Zeit effizienter nutzt
  • wie du dich trotz Weiterbildung genügend Freizeit bewahrst
  • wie sich Beruf, Weiterbildung und Freizeit gegenseitig ergänzen statt konkurrenzieren können

Tipps aus dem Inhalt

  • TIPP 1: Gestalte deine Arbeit so flexibel wie möglich!
  • TIPP 2: Beziehe Arbeitgeber sowie Kollegen und Kolleginnen in deine Weiterbildungspläne mit ein!
  • TIPP 3: Arbeite effizienter und effektiver mit Zielorientierung!
  • TIPP 4: Entwickle deinen idealen Lernrhythmus!
  • TIPP 5: Lerne mit System und festen Strukturen!
  • TIPP 6: Schaffe genug Ausgleich und Entspannung!
  • TIPP 7: Binde deine/n Partner/in, deine Familie und externe Hilfen in deine Planung ein!
  • TIPP 8: Belohne dich für deine Erfolge!
  • TIPP 9: Mach eine Zeitinventur!
  • TIPP 10: Erstelle eine Zeitplanung aller drei Bereiche!

Leider ist ein Fehler aufgetreten. Bitte versuche es erneut oder nimm mit uns direkt Kontakt auf.

Aktuelles Studienprogramm

Alles Wissenswerte zur Weiterbildung in einem PDF zusammengefasst.

Studienprogramm  herunterladen

Alles Wissenswerte zu deiner Weiterbildung in einem PDF zusammengefasst

  • Detaillierter Lehrplan zu allen Studiengängen
  • Alle wichtigen Hintergrundinfos zu Ausbildungszielen, Teilnehmerkreisen, Aufnahmebedingungen und weiterführenden Studiengängen

Leider ist ein Fehler aufgetreten. Bitte versuche es erneut oder nimm mit uns direkt Kontakt auf.

Gratis E-Book für dich

Weiterbildung neben Beruf und Freizeit - schaffe ich das?

Eine Weiterbildung beansprucht Zeit. Deshalb auf Freunde, Familie und Hobbies zu verzichten, muss nicht sein.

Lies jetzt unser E-Book mit 10 wertvollen Tipps zur Work-Life-Learn-Balance.

Weiterbildung neben Beruf und Freizeit – schaffe ich das?

10 Tipps zur Work-Life-Learn-Balance

Eine Weiterbildung beansprucht Zeit. Deshalb auf Freunde, Familie und Hobbies zu verzichten, wäre falsch.

In diesem E-Book erfährst du:

  • wie du deine Zeit effizienter nutzt
  • wie du dich trotz Weiterbildung genügend Freizeit bewahrst
  • wie sich Beruf, Weiterbildung und Freizeit gegenseitig ergänzen statt konkurrenzieren können

Tipps aus dem Inhalt

  • TIPP 1: Gestalte deine Arbeit so flexibel wie möglich!
  • TIPP 2: Beziehe Arbeitgeber sowie Kollegen und Kolleginnen in deine Weiterbildungspläne mit ein!
  • TIPP 3: Arbeite effizienter und effektiver mit Zielorientierung!
  • TIPP 4: Entwickle deinen idealen Lernrhythmus!
  • TIPP 5: Lerne mit System und festen Strukturen!
  • TIPP 6: Schaffe genug Ausgleich und Entspannung!
  • TIPP 7: Binde deine/n Partner/in, deine Familie und externe Hilfen in deine Planung ein!
  • TIPP 8: Belohne dich für deine Erfolge!
  • TIPP 9: Mach eine Zeitinventur!
  • TIPP 10: Erstelle eine Zeitplanung aller drei Bereiche!

Leider ist ein Fehler aufgetreten. Bitte versuche es erneut oder nimm mit uns direkt Kontakt auf.