Dipl. Techniker/in HF Bauplanung Architektur

NEUBAU GEWERBEHAUS MIT DACHPARKING

UNTER WIEDERVERWENDUNG DES BESTEHENDEN ELEMENTBAUS

DIPLOMARBEIT 2021

3. November 2021
Mirco Braunschweiler

AUSGANGSLAGE


Beim Objekt handelt es sich um einen Holz-Pavillon mit Innenhofbereich.
Das Gebäude wurde 2011 als Firmensitz für eine SPA-Planungsfirma erstellt.
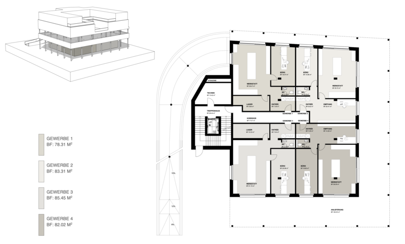
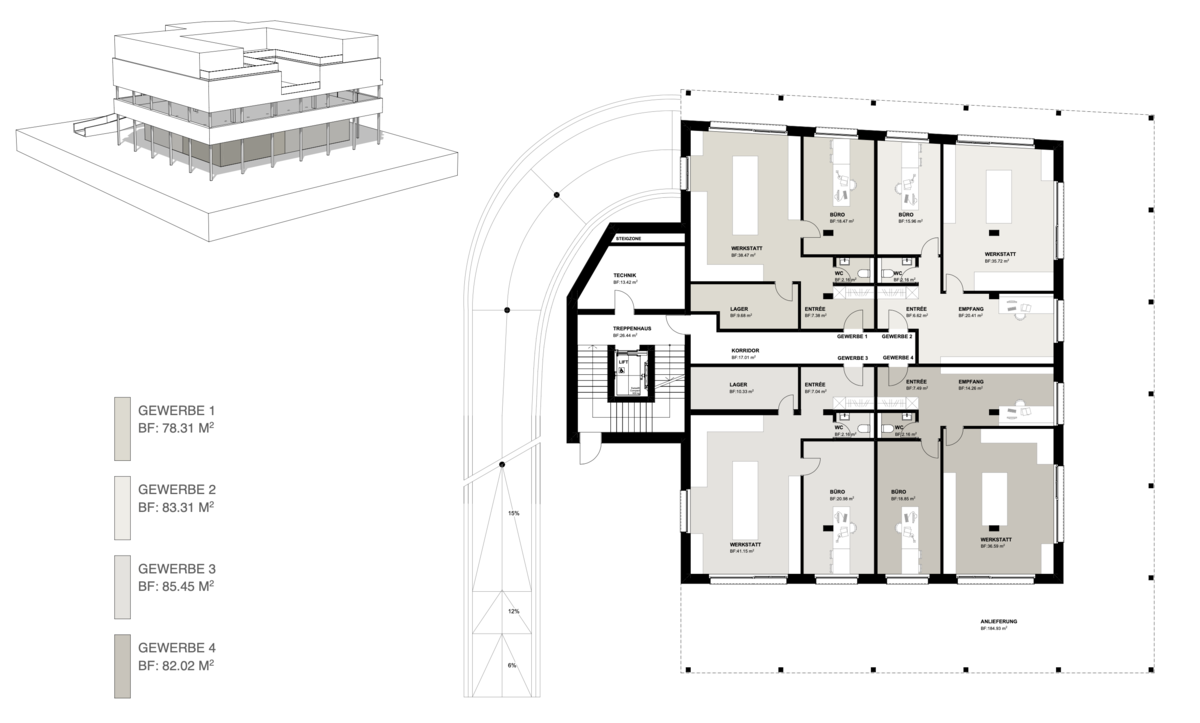
Da für diese Parzelle ein beachtliches Ausnützungspotential vorliegt, möchte die Bauherrschaft ein entsprechend grosses Neubauprojekt realisieren bei welchem das bestehende Gebäude ins Konzept zu integrieren ist.
Der bestehende Baukörper ist zwar statisch so konzipiert, dass eine Aufstockung problemlos möglich ist, jedoch hat sich die Bauherrschaft für eine andere Vorgehensweise entschieden: Der Holz-Pavillon soll demontiert und eingelagert werden, während ein neuer Gewerbebau erstellt wird, welcher ein Parkdeck im 1.Obergeschoss beinhaltet. Über dem Parkgeschoss wird dann der Pavillon wieder aufgerichtet, wobei alle Elemente des Holzmodulbaus wieder verwendet werden müssen, aus ökologischen Gründen.


SITUATION

Das Objekt befindet sich in Sempach. Einer Gemeinde welche sich am oberen Ende des Sempachersees, eingebettet zwischen Luzern und Sursee befindet.
Die Gemeinde hat einiges zu bieten, eine attraktive Lage am See, die Schweizerische-Vogelwarte, eine geschichtsträchtige Altstadt und noch vieles mehr.
Sempach ist aber nicht nur als Wohnort, sondern auch als Gewerbeort sehr interessant.
Das Studienobjekt liegt im Gewerbegebiet Allmend, welches fünf Autominuten von der A2
entfernt ist.


VORGABEN

Die Diplomarbeit ist bezüglich Nutzung, Funktion, Gestaltung, Konstruktion, Baustellenlogistik, Statik, Haustechnik, Kostenermittlung und Wirtschaftlichkeit detailliert auszuarbeiten.
Folgende Punkte sind besonders wichtig:
- Kein Untergeschoss
- Der Neubau umfasst mindestens ein oberirdisches Geschoss für Gewerbe
- Die Neubaugeschosse müssen über einen Stützenraster verfügen.
- Die Mietflächen müssen mindestens 70m2 und verfügen über eigene WC-Anlage. - Raumhöhe im Erdgeschoss 4.10m
- Anlieferungsbereich für LKWs
- Parkdeck im 1.Obergeschoss befahrbar für Kleinlastwagen 3.5t und 2.70m Höhe. - Wiederverwendung des Holzbau-Pavillons
- Wohnraum max. 1/3 der realisierten Hauptnutzfläche
- max. Gesamthöhe 15m.
- Allfällige Terrassen sind als begrünte Dachgärten zu gestalten.
- eine angemessene Rendite



Portrait

Mirco Braunschweiler

Ein Hochbauzeichner auf dem Weg zum Hochbautechniker


m.braunschweiler@ahi.ch

Weiterbildung neben Beruf und Freizeit

Gratis E-Book mit 10 Tipps zur Work-Life-Learn-Balance

Weiterbildung neben Beruf und Freizeit – schaffe ich das?

10 Tipps zur Work-Life-Learn-Balance

Eine Weiterbildung beansprucht Zeit. Deshalb auf Freunde, Familie und Hobbies zu verzichten, wäre falsch.

In diesem E-Book erfährst du:

  • wie du deine Zeit effizienter nutzt
  • wie du dich trotz Weiterbildung genügend Freizeit bewahrst
  • wie sich Beruf, Weiterbildung und Freizeit gegenseitig ergänzen statt konkurrenzieren können

Tipps aus dem Inhalt

  • TIPP 1: Gestalte deine Arbeit so flexibel wie möglich!
  • TIPP 2: Beziehe Arbeitgeber sowie Kollegen und Kolleginnen in deine Weiterbildungspläne mit ein!
  • TIPP 3: Arbeite effizienter und effektiver mit Zielorientierung!
  • TIPP 4: Entwickle deinen idealen Lernrhythmus!
  • TIPP 5: Lerne mit System und festen Strukturen!
  • TIPP 6: Schaffe genug Ausgleich und Entspannung!
  • TIPP 7: Binde deine/n Partner/in, deine Familie und externe Hilfen in deine Planung ein!
  • TIPP 8: Belohne dich für deine Erfolge!
  • TIPP 9: Mach eine Zeitinventur!
  • TIPP 10: Erstelle eine Zeitplanung aller drei Bereiche!

Leider ist ein Fehler aufgetreten. Bitte versuche es erneut oder nimm mit uns direkt Kontakt auf.

Aktuelles Studienprogramm

Alles Wissenswerte zur Weiterbildung in einem PDF zusammengefasst.

Studienprogramm  herunterladen

Alles Wissenswerte zu deiner Weiterbildung in einem PDF zusammengefasst

  • Detaillierter Lehrplan zu allen Studiengängen
  • Alle wichtigen Hintergrundinfos zu Ausbildungszielen, Teilnehmerkreisen, Aufnahmebedingungen und weiterführenden Studiengängen

Leider ist ein Fehler aufgetreten. Bitte versuche es erneut oder nimm mit uns direkt Kontakt auf.

Gratis E-Book für dich

Weiterbildung neben Beruf und Freizeit - schaffe ich das?

Eine Weiterbildung beansprucht Zeit. Deshalb auf Freunde, Familie und Hobbies zu verzichten, muss nicht sein.

Lies jetzt unser E-Book mit 10 wertvollen Tipps zur Work-Life-Learn-Balance.

Weiterbildung neben Beruf und Freizeit – schaffe ich das?

10 Tipps zur Work-Life-Learn-Balance

Eine Weiterbildung beansprucht Zeit. Deshalb auf Freunde, Familie und Hobbies zu verzichten, wäre falsch.

In diesem E-Book erfährst du:

  • wie du deine Zeit effizienter nutzt
  • wie du dich trotz Weiterbildung genügend Freizeit bewahrst
  • wie sich Beruf, Weiterbildung und Freizeit gegenseitig ergänzen statt konkurrenzieren können

Tipps aus dem Inhalt

  • TIPP 1: Gestalte deine Arbeit so flexibel wie möglich!
  • TIPP 2: Beziehe Arbeitgeber sowie Kollegen und Kolleginnen in deine Weiterbildungspläne mit ein!
  • TIPP 3: Arbeite effizienter und effektiver mit Zielorientierung!
  • TIPP 4: Entwickle deinen idealen Lernrhythmus!
  • TIPP 5: Lerne mit System und festen Strukturen!
  • TIPP 6: Schaffe genug Ausgleich und Entspannung!
  • TIPP 7: Binde deine/n Partner/in, deine Familie und externe Hilfen in deine Planung ein!
  • TIPP 8: Belohne dich für deine Erfolge!
  • TIPP 9: Mach eine Zeitinventur!
  • TIPP 10: Erstelle eine Zeitplanung aller drei Bereiche!

Leider ist ein Fehler aufgetreten. Bitte versuche es erneut oder nimm mit uns direkt Kontakt auf.