3 - Punkt Hubeinheit
Adapter zur Hubvergrösserung einer Traktor Heckhydraulik
Traktoren haben im Heckbereich eine genormte Hubhydraulik mit der verschiedene Anbaugeräte gekoppelt und gehoben werden können. Um die 3-Punkt Hydraulik besser nutzen zu können, soll die Hubhöhe vergrössert werden. Ziel dieser Arbeit ist es, einen Adapter für diese Aufgabe zu entwickeln. Er soll zwischen Anbaugerät und Traktor gekoppelt werden können. Am Auftragsende soll ein funktionstüchtiger Prototyp stehen.
Ausgangslage
Um Arbeitsgeräte an einem landwirtschaftlichen Fahrzeug koppeln zu können, sind diese auf der Rückseite mit einer Heckhydraulik ausgerüstet. Mit dieser 3-Punkt Aufnahme können die verschiedensten Geräte gekoppelt werden. Die Schnittstellen dieser aus drei Hebeln bestehenden Hubvorrichtung sind auf Geräte- als auch auf Fahrzeugseite genormt. So kann ein Austausch zwischen Geräten und Fahrzeugen gewährleistet werden.Problem
Die Hubhöhe einer Heckhydraulik ist je nach Grösse des Traktors sehr eingeschränkt. Sie reicht meistens nur aus, um Anbaugeräte für den Strassentransport 30 bis 50 cm anzuheben. Will man aber beispielsweise
mit einer Palettengabel Material von einem beladenen Anhänger anheben, reicht der Hub der Hydraulik dafür nicht aus. Es muss auf teure Geräte und Maschinen zurückgegriffen werden wie Stapler, Hoflader oder Kran.Ziel
Um den Einsatzbereich einer Heckhydraulik zu vergrössern, soll in dieser Arbeit ein Adapter entwickelt werden, der den Hub wesentlich vergrössern kann. Er soll ohne Umbaumassnahmen zwischen den Traktor
und dem Arbeitsgerät gekoppelt werden. Dabei soll die Hubhöhe ohne zusätzliche Energie in Form eines Hydraulikzylinders o.Ä. generiert werden. Im Vordergrund steht die Entwicklung und Ausarbeitung bis zur praktischen Umsetzung. Im Anschluss an die Entwicklung soll ein Prototyp hergestellt werden der im Einsatz getestet und optimiert wird.Ergebnis
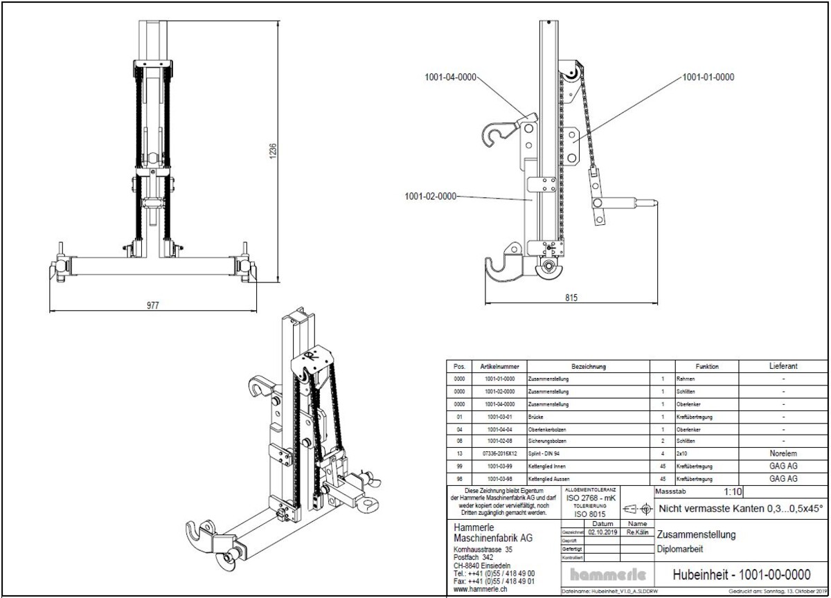
Mit der kompletten Entwicklung einer Hubeinheit, können diverse Arbeitsgeräte mit der 3-Punkt Hydraulik bis 90% höher gehoben werden. Die Montage ist dabei sehr einfach und selbsterklärend. Wird beispielsweise eine Paletten Gabel montiert, können so auch hohe Anhängerplattformen bequem be- und entladen werden. Durch das geringe Eigengewicht von unter 150kg, wird die Nutzlast des Traktors kaum beeinträchtigt. Der verschleissarme Aufbau ist grösstenteils wartungsfrei und robust gebaut. Mit der
Hubeinheit können bis zu 1000kg schwere Lasten bewegt werden. Dadurch, dass jedes Bauteil im CAD konstruiert und nur genormte Einkaufteile verwendet wurden, ist die Hubeinheit jederzeit reproduzierbar. Der Bau eines Prototyps wurde bereits gestartet.Ausblick
Die Herstellung des Prototyps soll bis zur Präsentation in KW44 2019 abgeschlossen werden. Später wird die Entwicklung im Einsatz unter realen Bedingungen getestet und weiter optimiert.
Reto Kälin
Arbeitet als Konstrukteur / Projektleiter bei Hammerle Maschinenfabrik AG
reto.kaelin@edu.teko.ch
Xing |















