Wandschwenkkran
Diplomarbeit 2022
Die vorliegende Diplomarbeit entstand im Rahmen meiner Ausbildung zum Techniker HF Maschinenbau an der TEKO Luzern
Vorwort
Ziel der Arbeit
Methodik
Umfang der Arbeit
Nutzen/Mehrwert
In einem Jahr fallen Kosten von über CHF 10’662.50 an, ausgelöst durch Ausfallstunden und der Wartezeiten der Mitarbeitenden. Das sind knapp 2.5 Arbeitswochen, während denen nicht produziert werden kann. Das Entnehmen der geschweissten Teile kann in Zukunft von einer Person erledigt werden, ohne dass sich die Person körperlich gross anstrengen muss. Zudem werden die Produktionszeiten der Geländer um ca. 0.3 Stunden verkürzt.
Beschreibung des Produkts
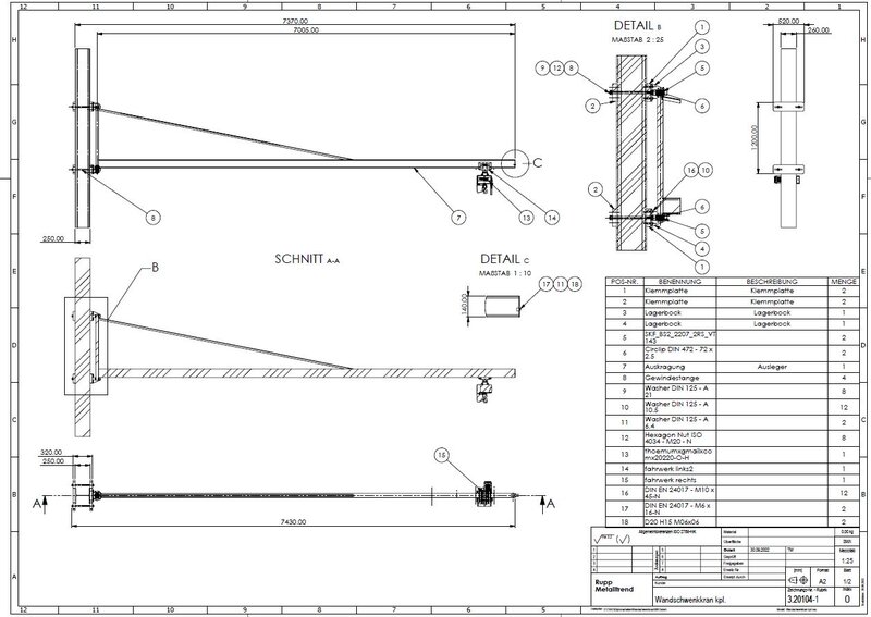
Der Wandschwenkkran wird mit einer Umklammerung an den vorhandenen Hallenträger montiert. Auf die Umklammerung werden die Lagerböcke mit je sechs M10 Schrauben verschraubt. Der Ausleger mit der angeschweissten Drehachse wird in die Lager eingeführt und gefettet. Nach der Montage der Stahlteile wird die Stromzuführung angebracht. Auf das IPE 140 Trägerprofil wird das Fahrwerk mit dem Kettenzug montiert. Der Wandschwenkkran ist für eine Last von 250 kg ausgelegt. Das Bediengerät der Laufkatze hat eine NOT-AUS Funktion. Am Ende des Trägerprofil wurden zwei Gummipuffer angebracht.
Schlusswort
Zum Schluss meiner Diplomarbeit blicke ich zurück auf eine intensive Zeit an der TEKO. Die sechs Semester, die ich erfolgreich abgeschlossen habe, erfüllen mich mit Stolz und Freude. Auch mit erschwerten Bedingungen, infolge CORONA, konnte ich immer am Ball bleiben und hab den Unterricht genossen. Ich möchte mich auch bei allen Personen bedanken, die mich vor und während dieser Arbeit unterstütz haben.

Thomas Müller
Projektleiter und Konstrukteur bei der Firma Rupp Metalltrend AG
thomas.mueller2@edu.teko.ch
079 288 47 29






