Podesterweiterung
Management Summary
Ausgangslage
Die Podesterweiterung dient nicht nur dazu, neue Platzverhältnisse zu schaffen, sondern wird auch genutzt um Zeit und Personal zu sparen. Dies gelingt durch die schnellere Bestückung sowie auch Entleerung des Rohmaterials. Ein weiterer Vorteil bietet die Erweiterung im nationalen Markt. Dadurch wird Franz Vogel AG auf dem nationalen Markt erfolgreicher und konkurrenzfähiger sein. Ein anderer, aber nicht zu vernachlässigender Vorteil der Podesterweiterung ist, dass die MitarbeiterInnen kaum mehr körperliche Beanspruchungen haben. Denn durch die Vorrichtung können die ArbeiterInnen das komplette Lager mit Hilfe des Hallenkrans bestücken und müssen nicht mehr von Hand das Rohmaterial hinauf geben und stemmen.
Zielsetzung
Die Podesterweiterung muss folgende Spezifikationen erfüllen:
- Die Vorrichtung darf das Maximalgewicht von 200 kg nicht überschreiten.
- Auf die aktuellen Gegebenheiten stets Rücksicht nehmen
- Diverse SUVA Regelungen einhalten und umsetzen
- Keine hervorstehenden Schrauben sowie scharfe Kanten
- Die Podesterweiterung sowie die Stützen müssen schwenkbar sein (Platzverhältnisse klein)
Kernproblem
- Die Podesterweiterung nach den Gegebenheiten konstruieren
- Möglichst so konstruieren, dass alle Baukomponenten geringe Platzverhältnisse benötigen
- Werkstoffauswahl / Technische Eigenschaften
Methodik
Nach Konstruktionsprozess (VDI-Richtlinie 2221 und 2222)
Lösung und Ergebnisse
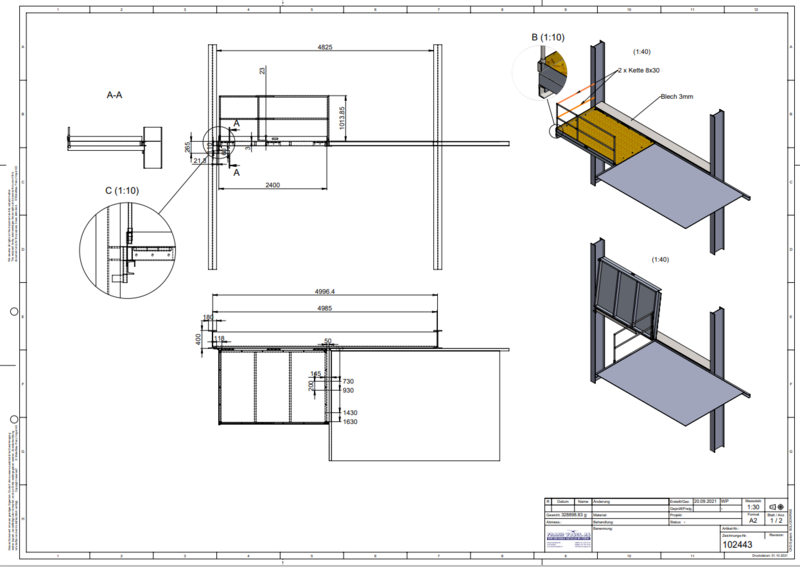
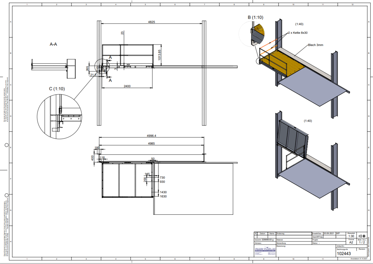
Die Berechnungen zeigen, dass es möglich ist, eine Podesterwei-terung mit gewünschten Dimensionen und Schwenkmechanismus zu konstruieren. Sie ist für jede Fachkraft montierbar und überschreitet das maximale Gewicht von 200kg nicht. Zudem wurden alle geltenden Reglemente der Sicherheit für Personen in der Höhe berücksichtigt. Die gesamten Bauteile wurden entweder mit Hilfe des Schweissverfahrens MAG und WIG zusammen-geschweisst oder mit Hilfe von Schraubverbindungen gefertigt. Die Sicherheiten wurden in jedem Bauteil mit statischen Berechnungen geprüft. Dabei ist Franz Vogel AG dank dieser Konstruktion effizienter und gesundheitsorientierter. Somit kann der Betrieb allfälligen Krankheiten vorbeugen.
Schlussfolgerung
Ich bin mit der Lösung überaus zufrieden. Die Punkte, welche ich erreichen wollte wurden mit Hilfe meiner Teamkollegen und den vielen Fachbüchern erreicht. Ich konnte viele Erfahrungen sammeln. Zeitmanagement war aufgrund der verschiedensten Tätigkeiten nicht immer einfach. Umso erfreulicher ist es am Schluss das Endresultat vor sich zu haben und sagen zu können, das habe ich geschaffen. Darauf bin ich sehr stolz und dankbar und freue mich auf das nächste Projekt.







