Dipl. Techniker/in HF Bauplanung Architektur

UMBAU & ERWEITERUNG EINES ALTEHRWÜRDIGEN MEHRFAMILIENHAUSES IN TURGI AG

DIPLOMARBEIT 2019 HF BAUPLANUNG ARCHITEKTUR

15. November 2019
Severin Schenker

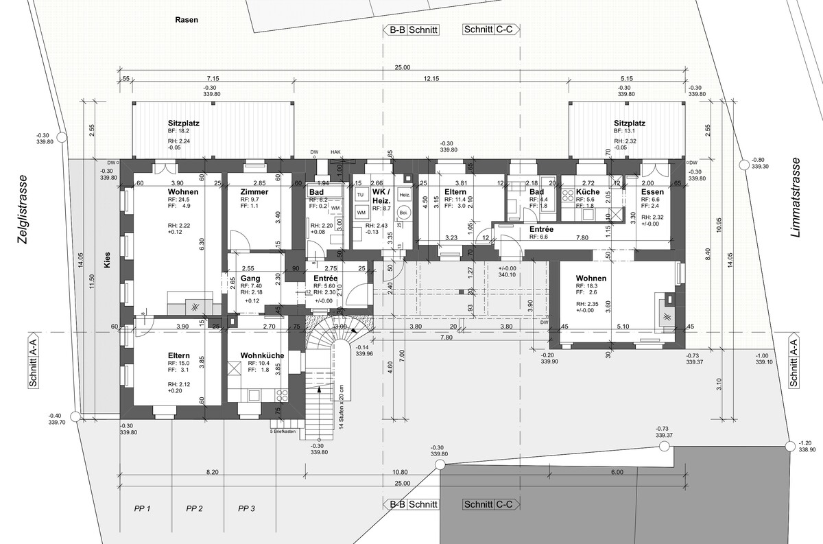
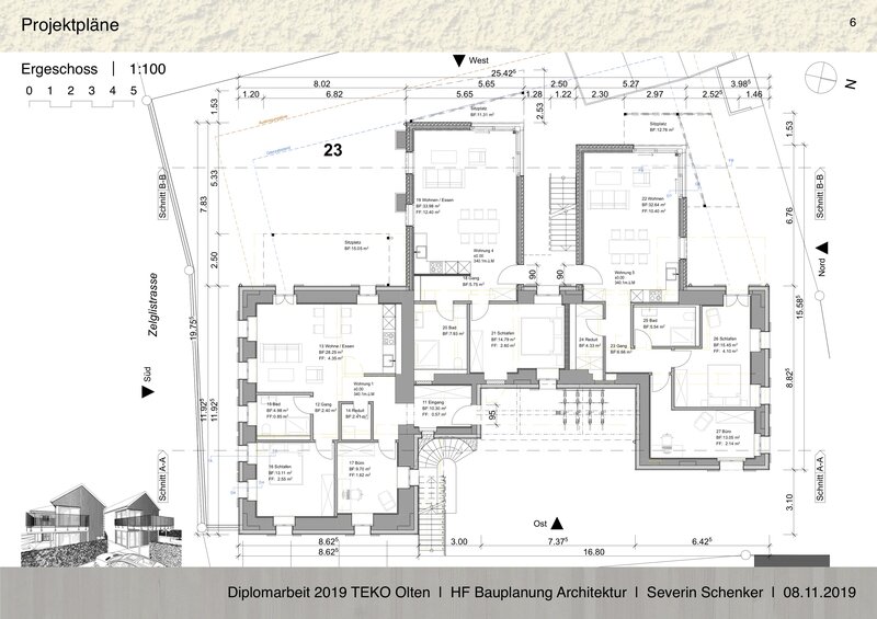
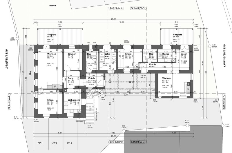
Als Ausgangslage für die Diplomarbeit dient ein in die Jahre gekommenes Mehrfamilienhaus in Turgi Kanton Aargau, welches umgebaut und erweitert werden soll. 

Zusätzlich zum bestehenden Gebäude wurden zwei Erweiterungen an das Hauptgebäude geplant. So konnte der nicht genutzte Platz auf der Westseite optimal ausgenutzt werden ohne dass ein Gefühl der Überfüllung entstand. Durch die 2 Anbauten konnte  das bestehende Gebäude in seiner Grundstruktur erhalten bleiben und so sinnvolle Grundrisse gestaltet werden.  Die Charaktererhaltung wird zusätzlich mit der langlebigen verputzten hinterlüfteten Fassade in der gleichen Farbe wie bisher unterstrichen. Die vorgegrauten Lärchenfassaden an den zwei Erweiterungsbauten bringt einen modernen Touch. 
So entstanden sieben komplett neue Wohnungen von denen vier 3.5 Zimmer und drei 2.5 Zimmer Wohnungen sind.
Das neu entstandene Gebäude, welches im Minergie-Standart geplant wurde, verfügt über zwei Erschliessungen. Die drei Wohnungen im "Hauptgebäude" sind von der Ostseite erschlossen, auf welcher es auch zwei Parkplätze für die  
Bewohner hat, sowie einen Besucher- / IV-Parkplatz. Auf der Ostseite hat es unter dem bestehenden Unterdach Veloabstellplätze.
Die anderen vier Wohnungen haben ihren Eingang auf der gegenüberliegenden West-Seite des Gebäudes. Auf dieser Seite hat es drei Parkplätze. 
Die unterhaltsarme Umgebung soll als Erholungsort für die Bewohner dienen. Mit den Hecken wird die Einsicht auf die Sitzplätze verwehrt. Der Betonbank auf der Ostseite des Hauses mit einem Ahorn in der Mitte, bietet ein Ort, wo man  ein Buch lesen oder auch spannende Gespräche führen kann. Bei der gemeinschaftlichen Grillschale soll der Kontakt  der Nachbarn gestärkt werden.  
Bis auf das bestehende Bruchsteimauerwerk wurde alles im Holzbau geplant. Durch den nachhaltigen Rohstoff entsteht ein gesundes
Wohnklima. Jede Wohnung verfügt über einen grosszügigen Sitzplatz oder Balkon.
Beide Wohnungstypen eignen sich für einen zwei Personen Haushalt, sowie für eine einzelne Person.
Das Gebäude wurde nach den heutigen SIA-Normen geplant und mit einer kontrollierten Wohnungslüftung für alle Wohnungen ausgestattet. 
Das geplante Gebäude wirft eine Bruttorendite von 3.35% ab, was nach allen Abzügen eine Nettorendite von 2.29% ergibt.


„Innovation ist die Fähigkeit, Veränderung als Chance und nicht als Bedrohung anzusehen.“ Steve Jobs


Hab ich Ihre Interesse geweckt, dann schauen Sie sich doch meine Diplomarbeit an.

Portrait

Severin Schenker

Ausbildung: Zeichner EFZ Fachrichtung Architektur Weiterbildung: Dipl. Techniker HF Bauplanung Architektur Arbeitgeber Kreuzwerk AG, 4566 Kriegstetten Zeichner / Bauleitung


schenker.severin@gmx.ch


079 464 57 36

Weiterbildung neben Beruf und Freizeit

Gratis E-Book mit 10 Tipps zur Work-Life-Learn-Balance

Weiterbildung neben Beruf und Freizeit – schaffe ich das?

10 Tipps zur Work-Life-Learn-Balance

Eine Weiterbildung beansprucht Zeit. Deshalb auf Freunde, Familie und Hobbies zu verzichten, wäre falsch.

In diesem E-Book erfährst du:

  • wie du deine Zeit effizienter nutzt
  • wie du dich trotz Weiterbildung genügend Freizeit bewahrst
  • wie sich Beruf, Weiterbildung und Freizeit gegenseitig ergänzen statt konkurrenzieren können

Tipps aus dem Inhalt

  • TIPP 1: Gestalte deine Arbeit so flexibel wie möglich!
  • TIPP 2: Beziehe Arbeitgeber sowie Kollegen und Kolleginnen in deine Weiterbildungspläne mit ein!
  • TIPP 3: Arbeite effizienter und effektiver mit Zielorientierung!
  • TIPP 4: Entwickle deinen idealen Lernrhythmus!
  • TIPP 5: Lerne mit System und festen Strukturen!
  • TIPP 6: Schaffe genug Ausgleich und Entspannung!
  • TIPP 7: Binde deine/n Partner/in, deine Familie und externe Hilfen in deine Planung ein!
  • TIPP 8: Belohne dich für deine Erfolge!
  • TIPP 9: Mach eine Zeitinventur!
  • TIPP 10: Erstelle eine Zeitplanung aller drei Bereiche!

Leider ist ein Fehler aufgetreten. Bitte versuche es erneut oder nimm mit uns direkt Kontakt auf.

Aktuelles Studienprogramm

Alles Wissenswerte zur Weiterbildung in einem PDF zusammengefasst.

Studienprogramm  herunterladen

Alles Wissenswerte zu deiner Weiterbildung in einem PDF zusammengefasst

  • Detaillierter Lehrplan zu allen Studiengängen
  • Alle wichtigen Hintergrundinfos zu Ausbildungszielen, Teilnehmerkreisen, Aufnahmebedingungen und weiterführenden Studiengängen

Leider ist ein Fehler aufgetreten. Bitte versuche es erneut oder nimm mit uns direkt Kontakt auf.

Gratis E-Book für dich

Weiterbildung neben Beruf und Freizeit - schaffe ich das?

Eine Weiterbildung beansprucht Zeit. Deshalb auf Freunde, Familie und Hobbies zu verzichten, muss nicht sein.

Lies jetzt unser E-Book mit 10 wertvollen Tipps zur Work-Life-Learn-Balance.

Weiterbildung neben Beruf und Freizeit – schaffe ich das?

10 Tipps zur Work-Life-Learn-Balance

Eine Weiterbildung beansprucht Zeit. Deshalb auf Freunde, Familie und Hobbies zu verzichten, wäre falsch.

In diesem E-Book erfährst du:

  • wie du deine Zeit effizienter nutzt
  • wie du dich trotz Weiterbildung genügend Freizeit bewahrst
  • wie sich Beruf, Weiterbildung und Freizeit gegenseitig ergänzen statt konkurrenzieren können

Tipps aus dem Inhalt

  • TIPP 1: Gestalte deine Arbeit so flexibel wie möglich!
  • TIPP 2: Beziehe Arbeitgeber sowie Kollegen und Kolleginnen in deine Weiterbildungspläne mit ein!
  • TIPP 3: Arbeite effizienter und effektiver mit Zielorientierung!
  • TIPP 4: Entwickle deinen idealen Lernrhythmus!
  • TIPP 5: Lerne mit System und festen Strukturen!
  • TIPP 6: Schaffe genug Ausgleich und Entspannung!
  • TIPP 7: Binde deine/n Partner/in, deine Familie und externe Hilfen in deine Planung ein!
  • TIPP 8: Belohne dich für deine Erfolge!
  • TIPP 9: Mach eine Zeitinventur!
  • TIPP 10: Erstelle eine Zeitplanung aller drei Bereiche!

Leider ist ein Fehler aufgetreten. Bitte versuche es erneut oder nimm mit uns direkt Kontakt auf.