Ersatzneubau Mehrfamilienhaus
Diplomarbeit 2019 Ersatzneubau eines altehrwürdigen Mehrfamilienhauses im Zentrum von Turgi AG
Das Projekt soll sich positiv vom heutigen Einheitsbrei abheben, der sich vor allem durch einen kurzfristigen Gewinngedanken, hohe Unterhalts- und Mängelbehebungskosten, krankmachende Materialien und mit Schadstoffen belastete Raumluft auszeichnet. Das Gebäude soll ein gutes Beispiel sein für gesundes Wohnen bei marktfähiger Rendite.
Management Summary
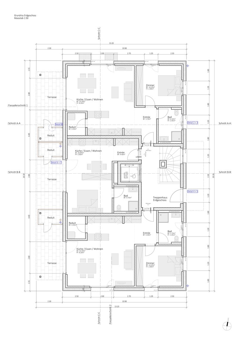
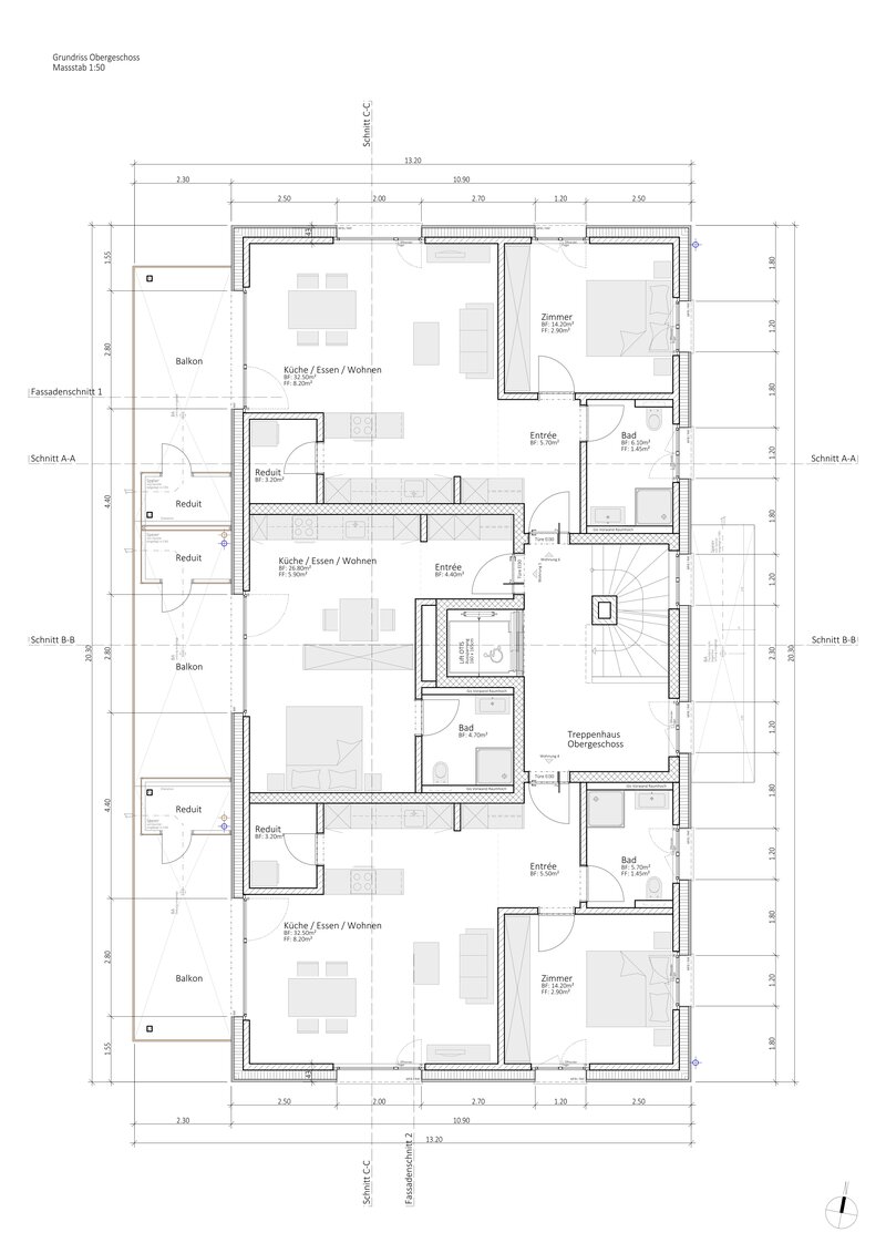
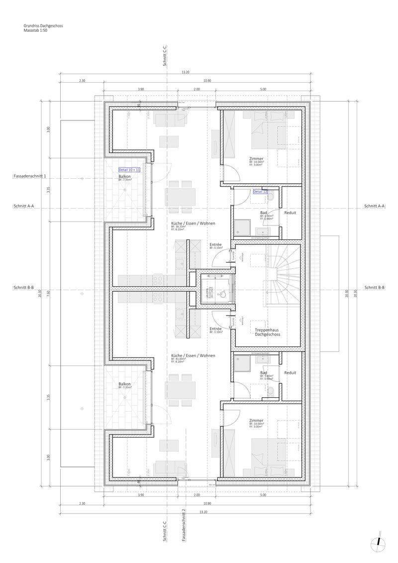
Der Ersatzneubau mit der kompakten Form und den charakteristischen Merkmalen der Umgebung fügt sich gut ins Ortsbild ein und besticht trotzdem durch moderne Materialien. Es verfügt über acht zeitgemässe Mietwohnungen. Sechs 2.5 Zimmer Wohnungen und zwei 1.5 Zimmer Wohnungen. Jede Wohnung wird zusätzlich durch einen Balkon beziehungsweise Terrasse erweitert. Die Wohnungen entsprechen den heutigen Anforderungen und sind bei Bedarf mit wenig Aufwand auch rollstuhlgängig anzupassen.
Die Wohnungen sind hell und bieten mit einer grossen Küche, Garderobe und Reduits genügend Stauraum. Durch die Raumanordnung und Grundrissaufteilung wird eine optimale Einrichtung der Wohnungen garantiert.
Die Umgebung wird schlicht gehalten mit einigen einzelnen Bäumen und Aussenparkplätzen, welche sich in die Umgebung einfügen. Der Garten dient zur gemeinsamen Nutzung und fördert somit auch den Zusammenhalt und die sozialen Kontakte unter den Bewohnern. Der grosse Velounterstand vor dem Hauseingang ermöglicht den Bewohnern die Nutzung der umweltfreundlichen Fortbewegungsmittel und fördert die Freihaltung des Dorfes von Motorfahrzeugen.
Um das Bild der umliegenden Gebäude zu übernehmen wird ein Fassadensystem von Marmoran angewendet. Hinter der verputzen Optik befindet sich aber ein hinterlüftetes Fassadensystem was bauphysikalische Vorteile bringt. Die Grundzüge der Fassadeneinteilung und einige Merkmale der Dorfstruktur werden im Konzept übernommen jedoch ein wenig modernisiert und an die heutigen Anforderungen angeglichen. Durch die frischen und hellen Farben ergibt sich ein harmonisches Bild zwischen konventioneller Struktur und moderner Ausführung.
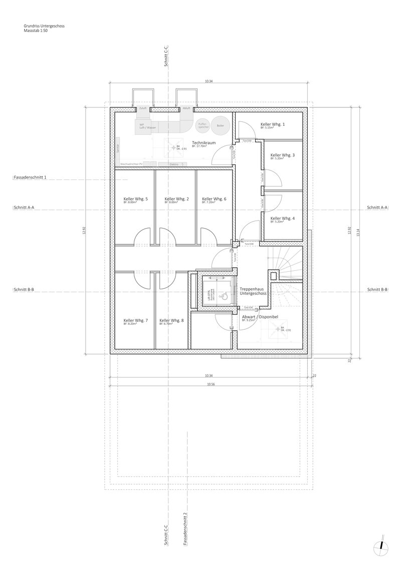
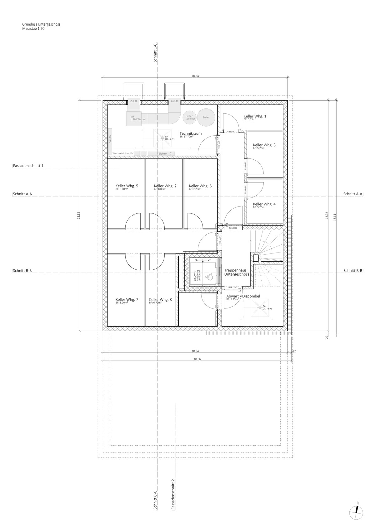
Das Gebäude entspricht dem Minergiestandard und verfügt somit über eine kontrollierte Wohnungslüftung. Das Hauptgerät befindet sich im Untergeschoss. Die separaten Lüftungsgeräte in den Wohnungen befinden sich in den Reduits beziehungsweise bei den 1.5 Zimmer Wohnungen in den Garderoben.
Das Gebäude verfügt über eine Luft-Wasser-Wärmepumpenheizung. Die Wärmeabgabe erfolgt über eine Bodenheizung mit separatem Heizkreis pro Zimmer.
Durch die Photovoltaikanlage wird die Warmwassererzeugung unterstützt. Überschüssiger Strom kann ans Netz abgegeben werden und erzeugt somit wieder Einnahmen.
Mit einer Annahme von ortstypischen Mietspreisen und unter der Berücksichtigung aller Abzüge für diverse Aufwände ergibt sich eine Nettorendite von 2.4%.
Suchen Sie also eine moderne, lichtdurchflutete Wohnung mit viel Charme ist dies genau das Richtige für Sie.
Das Gebäude direkt an der Limmat ist zentral und doch im Grünen.
In weniger als fünf Gehminuten sind diverse Einkaufsmöglichkeiten, Cafés, und Restaurants erreichbar. Auch der Bahnhof ist nur wenige Gehminuten entfernt. Baden und Brugg sind mit dem Zug in nur fünf Minuten zu erreichen. Die A1 in Baden ist innert zwölf Minuten erreichbar. Somit liegt Turgi sehr zentral und bietet trotzdem ein idyllisches Umfeld im unteren Limmattal.
Eckdaten:
- Einbauschrank im Entrée
- grosszügige, offene Küche mit viel Stauraum
- grosszügige Nasszelle
- Reduit mit eigenem Wäscheturm
- Balkon oder Terrasse mit Aussenreduit
- Parkettböden in den Zimmern
- Plattenböden in Küche, Wohnen und Nasszelle
- Kellerabteil
- Parkplätze können dazugemietet werden
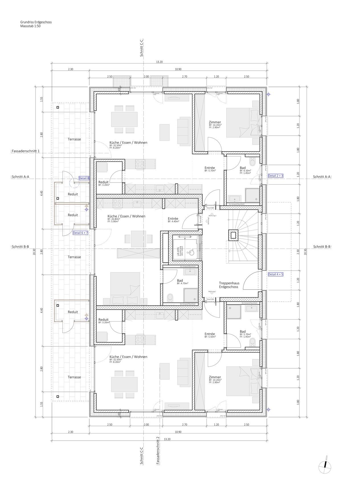
Erdgeschoss:
Wohnung 1 - 2.5 Zimmer 63.70 m²
Wohnung 2 - 1.5 Zimmer 36.70 m²
Wohnung 3 - 2.5 Zimmer 64.40 m²
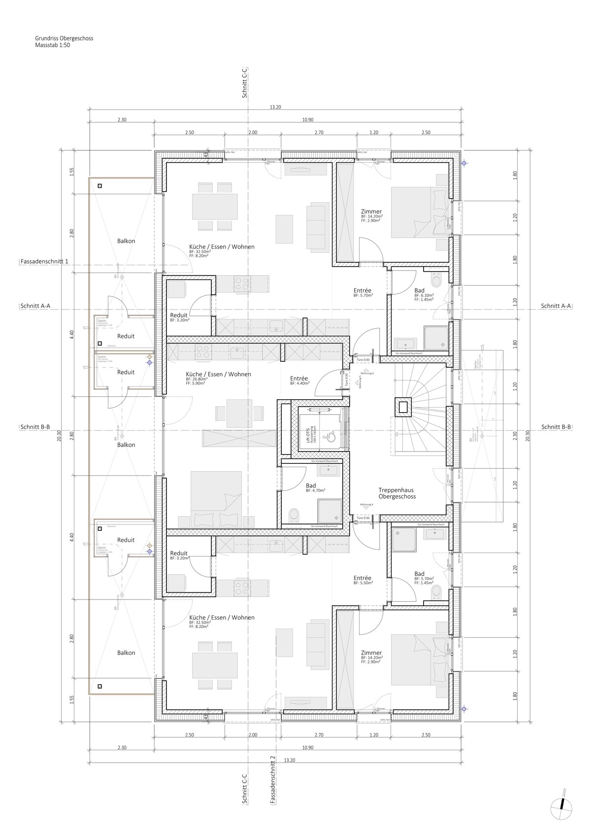
Obergeschoss:
Wohnung 4 - 2.5 Zimmer 63.70 m²
Wohnung 5 - 1.5 Zimmer 36.70 m²
Wohnung 6 - 2.5 Zimmer 64.40 m²
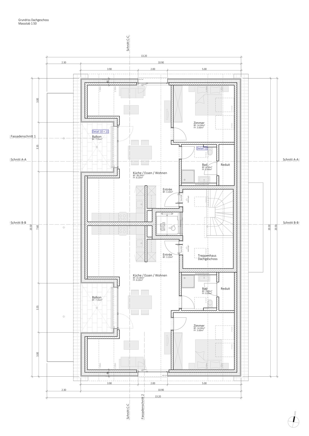
Dachgeschoss:
Wohnung 7 - 2.5 Zimmer 65.20 m²
Wohnung 8 - 2.5 Zimmer 63.10 m²

Seraina Rotter
Alter: 25 Jahre Ausbildung: Hochbauzeichnerin Arbeitgeber: Landolt & Piscitello Architektur AG, Wohlen
seraina.rotter@hotmail.com
079 485 56 12














