METHAMORPHOSE
Umbau / Erweiterung eines altehrwürdigen Mehrfamilienhauses
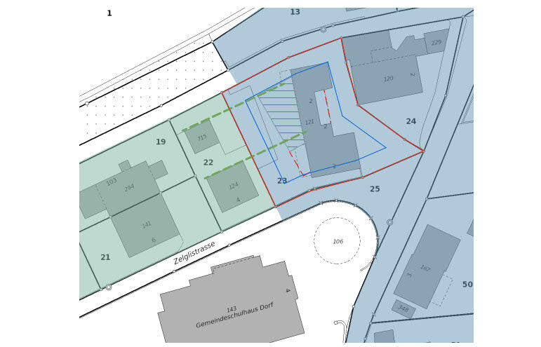
Für das im Dorfkern von Turgi stehende Mehrfamilienhaus, aus dem Jahr 1820, sollte ein Umbau und eine zusätzliche Erweiterung geplant werden. Durch die Erweiterung soll die Ausnützungsziffer erreicht werden, um langfristig eine angemessene Rendite zu erzielen. Durch die Renovation soll der Charme des Gebäudes zwar erhalten bleiben, gleichzeitig soll es aber auf den aktuellsten stand der Technik gebracht werden.
Zusammenfassung
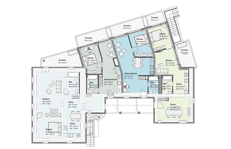
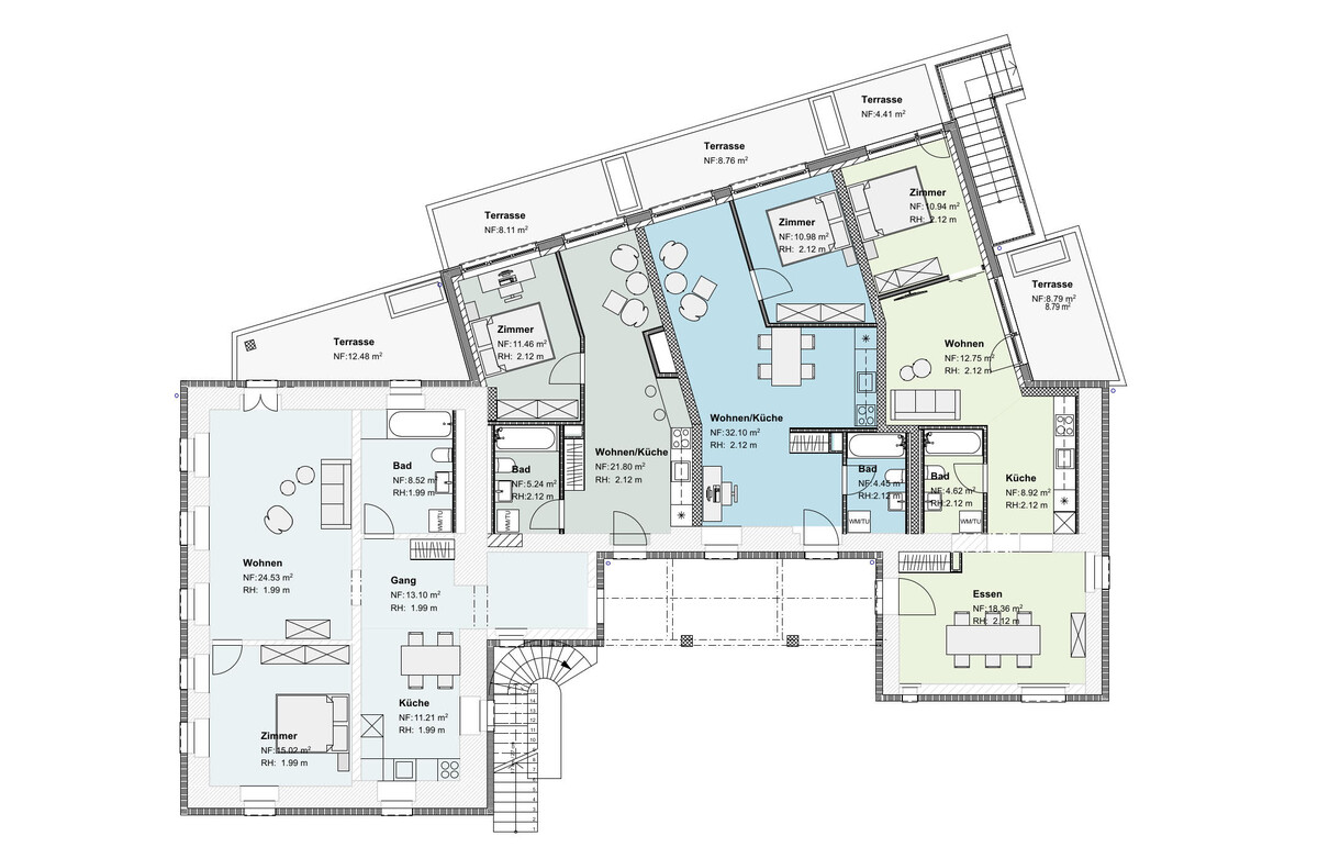
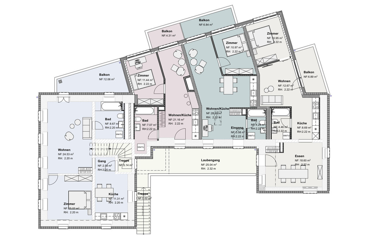
Das hier vorgestellte Projekt sieht vor, den ursprünglichen Gebäudekubus zu erhalten und den rechten Gebäudeteil gegen Süd/West mit einem zwei stöckigen Flachdachbau zu erweitern. Da sich der Anbau nach der Grundstücksgrenze orientiert und somit abgewinkelt ist, entsteht eine spannende Gebäudeform und es bilden sich interessante Grundrisse. Diese Erweiterung machte es möglich zukünftig 9, zwei Zimmerwohnungen zwischen 38m2 und 61 m2 zu vermieten. Die Erschliessung befindet sich wie bis anhin nordseitig. Um die Erschliessung der neuen Wohnung im 1. Obergeschoss zu gewährleisten, wird das bestehende Vordach durch einen Laubengang ersetzt.
Beschrieb Materialisierung
Beim Erstellen des Materialkonzeptes war es mir sehr wichtig ein gutes Preis-Leistungs-Verhältnis zu erzielen und trotzdem die Optik nicht ausser Acht zu lassen. Deshalb setzte ich in jedem Raum ein spezielles optisches Highlight. Ich habe auf praktische Ausstattung geachtet, sodass alles was es braucht vorhanden ist. Z.B. einen gut geplanten Einbauschrank im Eingangsbereich, im Badezimmer viele praktische Garnituren, genügend Stauraum und einen pflegeleichten und trotzdem schönen Boden in der ganzen Wohnung.
Im Badezimmer kommen einige Produkte von Pro Casa Uno zum Zug, die Eigenmarke von Richner. Bei der Armatur konnte mich das Design von diesem Anbieter jedoch nicht überzeugen, deshalb habe ich mich für moderne Armaturen von KWC entschieden. Auch in diesem Raum ist der Boden hervor zu heben. Die Bodenplatten sind zwar etwas teurer als schlichte graue Platten, die sich aber durchaus lohnen, da sie die Wohnung nochmals etwas attraktiver gestalten.
Bei der Küche kommen Geräte von Electrolux zum Einsatz, die bekanntlich eine gute Qualität aufweisen. Diese Firma bietet Produkte in den verschiedensten Preisklassen an, wobei ich mich hier für preiswerte Produkte entschieden habe. Bei der Rückwand handelt es sich um WSP-Dekor, ein Verbundmaterial, in der Farbe Taubenblau aus Gelcoat, Glasfasern und Kunstharz, welches hervorragende Eigenschaften aufweist. Hier habe ich bewusst Farbe ins Spiel gebracht. Um der Küche einerseits eine hochwertigere Optik und bessere Langlebigkeit, als Kunstharzbeschichtungen, zu verschaffen, habe ich mich für einen Granit der Preisklasse 1 entschieden.
In der ganzen Wohnung ausser im Badezimmer kommt ein Vinyl Bodenbelag von Cabana zum Einsatz. Dieser weist eine sehr
schöne Holzoptik und Haptik auf und ist trotzdem Wasser unempfindlich. Dieser vermag es die gleiche Heimeligkeit wie ein Holzboden zu vermitteln, jedoch weist er hervorragend Werte auf, was Langlebigkeit und Pflegeleichtigkeit betreffen. Ich habe eine Produktelinie gewählt, welche auch im Gewerbe zum Einsatz kommt und zusätzlich auch eine Verbesserung des Trittschalles hervorbringt.
Die Materialwahl im Aussenbereich ergibt sich durch die vorhandene bebaute Umwelt. Für den bestehenden Gebäudeteil ist wieder eine verputzte Fassade vorgesehen, um dem heutigen Bild so nahe wie möglich zu kommen. Für den Anbau ist eine Gebäudehülle in Holzoptik geplant. Hierfür habe ich aus Gründen des geringen Unterhaltes, der Langlebigkeit und der einfachen Montage eine Faserzementverkleidung in Holzoptik gewählt. Die Farben sind der Umgebung angepasst, bekommen aber auch Kontraste, wie z.B. dunkle Fenstersimse und Absturzsicherungen.

Fabia Heierli
10.08.1990, ledig Ausbildung: 2016 - 2019 Techniker HF Bauplanung 2012 - 2016 Hochbauzeichnerin EFZ 2007 - 2010 Hotelfachfrau EFZ Beruflich Aktivität: Seit November 2017 Emch+Berger ImmoConsult AG CAD-Planerin/ BIM Koordinatorin / Berufsbildnerin
f.heierli@yahoo.de
+41 79 443 91 58
























