MFH Turgi
Umbauprojekt Mehrfamilienhaus in Turgi AG
Meine Diplomarbeit befasst sich mit dem Umbau eines bestehenden Mehrfamilienhauses. Welche Entscheide fallen in frühen Konzept- und Planungsphasen für einen Investor an, wenn er eine nachhaltige Gebäudehülle für ein altes bestehendes Gebäude bestellt. Welche Auswirkungen haben diese Entscheide auf Ökonomie, Ökologie und Gesellschaft bzw. werden dadurch beeinflusst?
Management Summery
Ausgangslage
Das in Jahre gekommene, viele bauliche Probleme hervorhebende Mehrfamilienhaus wird von der Eigentümerschaft umgebaut. Die Lösung soll praktisch umsetzbar, ästhetisch ansprechend sowie wirtschaftlich sinnvoll sein. Die Bauherrschaft kann sich noch nicht entscheiden, ob sie einen Umbau oder einen Ersatzneubau ausführen wollen. Das Projekt muss den Minergie-Standart und die gesetzlichen Normen des Kantons Aargau für eine erfolgreiche Baubewilligung erfüllen. Das Gebäude sollte schlussendlich ästhetisch gut in die Umgebung integriert werden. Jeder Bauherrschaft ist es wichtig, dass sich das Bauprojekt auch für sie eine gute Rendite erzielt.
Vorgang
Als allererstes besammelte sich die ganze Klasse in Turgi AG vor der Parzelle des Projekts. Wir durften das Gebäude von aussen betrachten, fotografieren und offene Fragen stellen. Die Recherche begann zuerst mit dem Herausfinden wie der Bestand ist. Welche Materialien wurden verwendet? Welche Bauteile können bestehen gelassen werden? Was soll genau umgebaut werden? Mit welchen Materialien soll ich das Gebäude umbauen, sodass möglichst wenig Innenraum durch die neue Konstruktion verloren geht? Wie sollen die neuen Wohnungen gerichtet werden? Es gab zu diesem Zeitpunkt sehr viele offene Fragen. Jedoch mit gute Recherchen und Besprechungen mit Fachpersonen konnte ich schnell den Einstieg in das Projekt finden.
Endergebnis
Das Mehrfamilienhaus mit acht neue Mietwohnungen strahlt etwas Besonderes aus. Das alte Gebäude hat Geschichte und die Gebäudeform blieb trotz der Umbauarbeiten erhalten. Die Räume erhalten dabei einen zeitgemässen Komfort. Die Modernisierung schloss unter anderem die energieeffiziente Dämmung der Aussenwände, Decken und Böden ein. Zusammen mit den neuen Fenstern sorgt die Fassadendämmung im Winter dafür, dass keine Wärmeverluste gibt und im Sommer die Hitze draussen bleibt. Hochwertiges Parkett und die sichtbare BRESTA Decke in den Wohnräumen sorgen für einen modernen Look.
Mit dieser Arbeit kann der Bauherrschaft alle Vorteile und Nachteile von einem Umbau aufgezeigt werden. Es wird viel Geld in dieses Projekt investiert und gleichzeitig entsteht auf dieser Parzelle etwas Schönes. Durch die hohen Anforderungen an das Gebäude, wie das Einhalten der Vorschriften der Gemeinde Turgi und das Einhalten der Minergie Vorschriften entstehen hohe Investitionskosten. Jedoch wurden nachhaltige Materialien für den Bau gewählt, sodass das gesamte Projekt auch eine hohe Lebensdauer hat. Ästhetisch wurde das Projekt gut gelöst und spricht die Menschen in der Umgebung an.
Konzept & Entwurf
An der Gebäudeform etwas zu ändern war schwierig, denn bei diesem Projekt handelt es sich um ein bestehendes Gebäude. Das bestehende Gebäude wird von aussen wärmetechnisch isoliert und gegen der aufsteigenden Feuchtigkeit vom Erdreich geschützt. Die bestehenden vier Wohnungen werden aufgelöst und acht neue Mietwohnungen in das bestehende Volumen eingesetzt, um eine gute Rendite zu erzielen.
Auf dem wunderschönen Grundstück wird ein Mehrfamilienhaus mit 8 neue Wohnungen realisiert. Auf insgesamt 3 Geschossen werden 8 Wohnungen errichtet. Die Erschließung der Wohnungen erfolgt über einen Laubengang im Osten, um möglichst wenig bis kein Volumen im Gebäude zu verlieren. Alle Wohnungen mit den dazugehörigen Balkone, Terrassen oder Sitzplätze sind als Geschosswohnungen geplant. Die geplanten Reduits in den Wohnungen dienen als Abstellraum und beinhalten einen grossen Schrank mit einem Waschturm, welche die Bewohner jederzeit benutzen können.
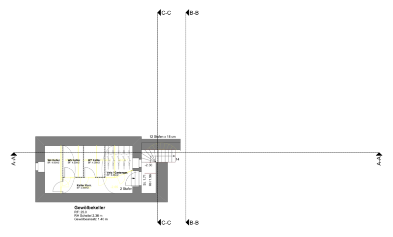
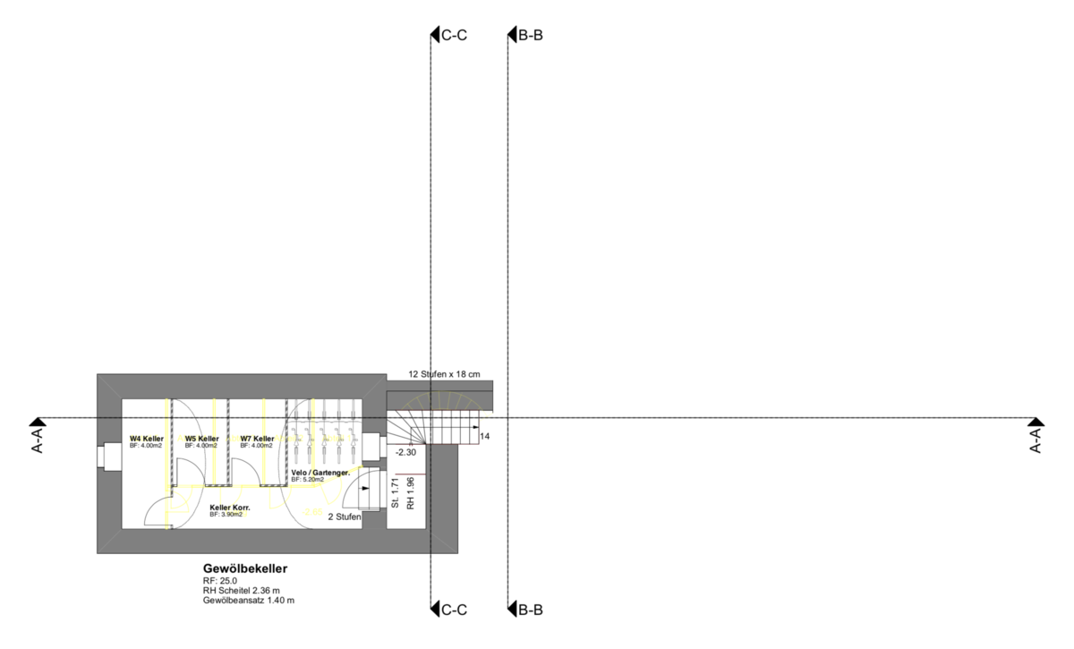
Untergeschoss
Im Untergeschoss befinden sich die Kellerräume (weitere Stauräume sind auch in oberen Stockwerken in den Wohnungen vorhanden) zu den Wohnungen. Neben den Kellerräume können ebenfalls Velos abgestellt werden oder auch zum Verstauen der Materialien vom Hauswart.
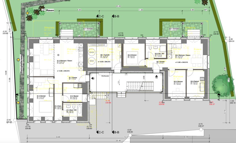
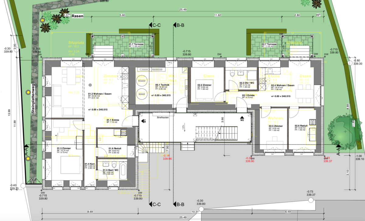
Erdgeschoss
Im Eingangsgeschoss befinden sich eine 2 ½-Zimmer und eine 3 ½-Zimmer-Wohnung. Die Wohnung mit 3.5 Zimmern bietet viel Platz: Zwei separate Zimmer eignen sich für Familien mit Kindern oder zur Einrichtung eines Gäste-, Hobby- oder Arbeitszimmers. Ein Raum mit offener Küche und Platz für Esstisch und Sofalandschaft garantiert ein grosszügiges Wohngefühl. Zwischen den Erdgeschosswohnungen wird der Technikraum weiterhin benutzt, um die Energie und Wasser-Versorgung einfacher in die Wohnungen zu verteilen.
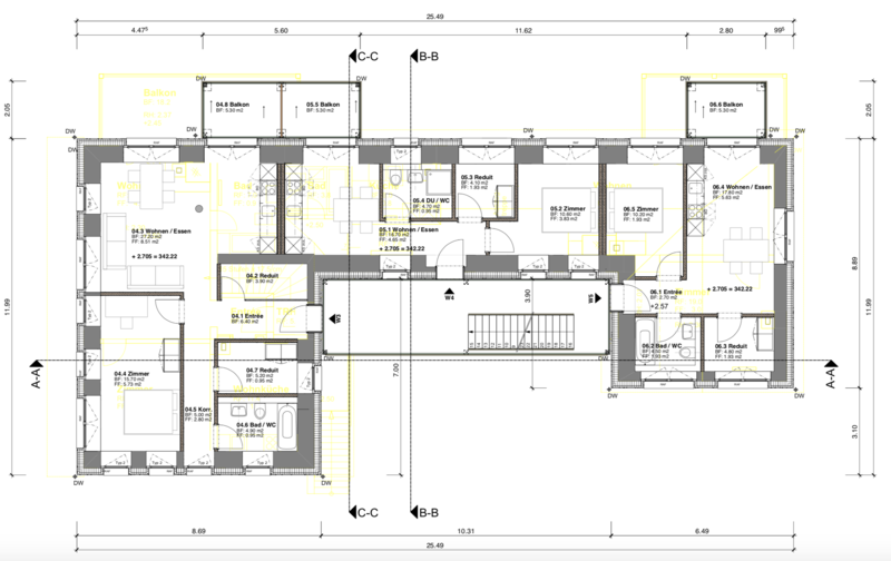
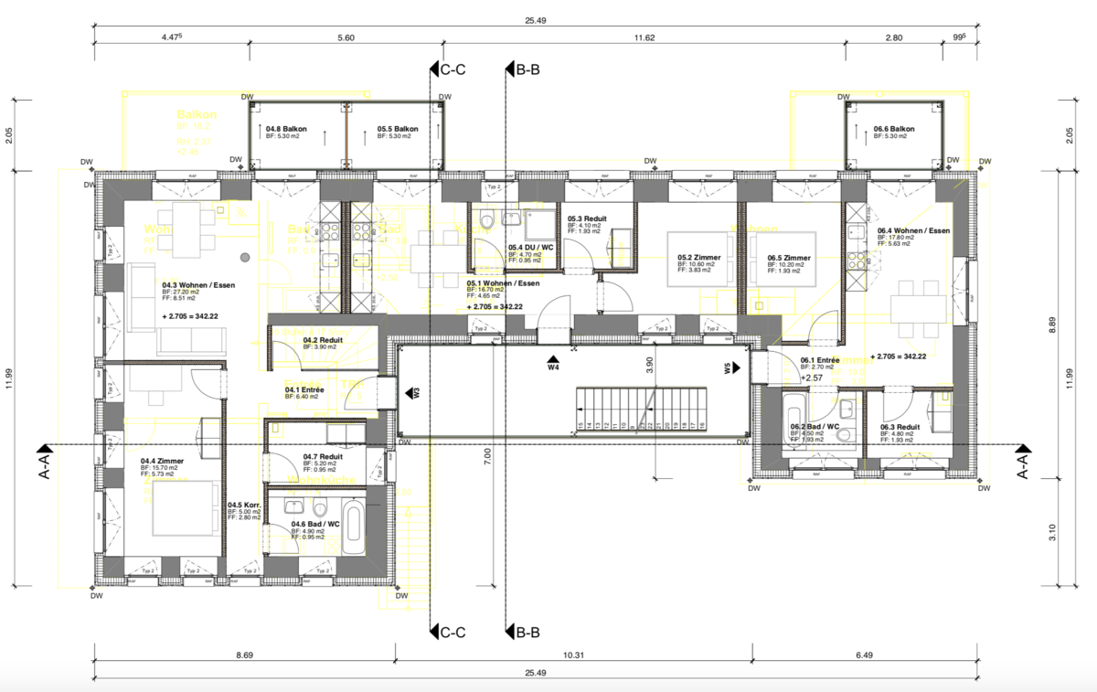
1.Obergeschoss
Im ersten Obergeschoss befinden sich drei kleine Wohnungen. In diesem Geschoss befinden sich eine 2.5 Zimmer- und zwei 2-Zimmer Wohnungen, welche ebenfalls den Aussenbereich mit einem Balkon geniessen können. Die Wohnungen wurden so geplant, sodass die Räume auch gut möbliert werden können.
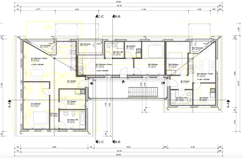
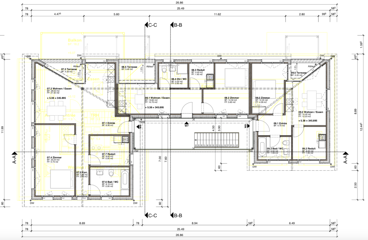
Dachgeschoss
In obersten Geschoss befinden sich ebenfalls eine 2.5 Zimmer- und zwei 2-Zimmer Wohnungen. Die Wohnungen im Dachgeschoss gewinnen einen besonderen Eyecatcher mit den hohen Terrassenfenstern von den eingeschnittenen Terrassen im Wohnbereich. Damit man die herrliche Luft und den Ausblick zum Limmat oben auch richtig geniessen kann, verfügen die Wohnungen eine kleine Dachterrasse.

Vithursan Vijayakumar
Ich habe die vierjährige Lehre als Zeichner EFZ in Fachrichtung Architektur mit der technischen Berufsmatura absolviert. Nach meiner Lehre sammelte ich im gleichen Betrieb noch Erfahrungen und fing ein Jahr später an der Hochschule Luzern Architektur zu studieren. Nach 1,5 Jahren wollte ich das Studium beenden und in die technische Richtung ziehen. Jedoch konnte ich sehr vieles aus dem Fach Entwurf für die Technikerschule TEKO Zürich mitnehmen. Zurzeit arbeite ich gleichzeitig mit dieser Ausbildung zum Techniker HF Bauplanung noch als Junior-Bauleiter in Zürich und leite das Projekt Energiezentrale an der Josefstrasse in Zürich.
vithursanvijayakumar@gmail.com
Kompetenzkarten
Meine Kompetenzkarten zeigen auf, was ich in der Schule und in der Praxis auf der Baustelle gelernt habe.











