Neu- und Umbau Hallenbad Sälischulhaus
Diplomarbeit 2025
Diese Diplomarbeit beinhaltet zwei Teilaufgaben zum einen die Planung eines neuen Hallenbades auf der Sportwiese beim Sälischulhaus in Olten, zum anderen die Sanierung des bestehenden Lernschwimmbeckens in der Schulanlage.
Summary
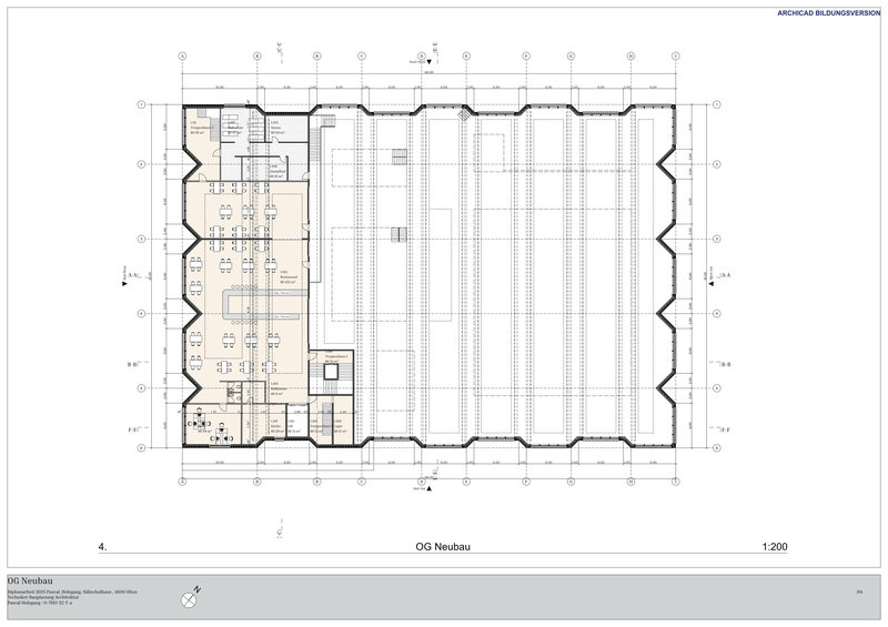
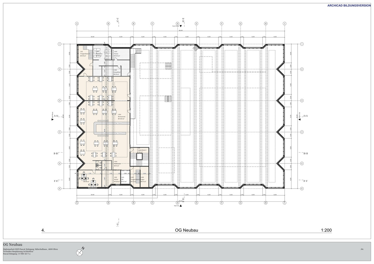
Der Neubau des Hallenbades erfolgt als Ersatz bzw. Ergänzung zur bestehenden Infrastruktur der Schulanlage und dient der schulischen Nutzung wie auch dem öffentlichen Badebetrieb.
Die Massivbauweise gewährleistet Robustheit, einfache Wartung und eine lange Lebensdauer. Das Projekt schafft damit eine funktionale, robuste und wirtschaftlich tragfähige Infrastruktur, die den heutigen Nutzungsanforderungen entspricht und auf einen langfristig effizienten Betrieb ausgelegt ist.
Der zweite Teil widmet sich der Sanierung des Lernschwimmbeckens im Kontext des denkmalgeschützten Sälischulhauses. Bei der Sanierung des Lernschwimmbeckens im Sälischulhaus liegt der Fokus auf der Materialwahl. Bauliche Eingriffe am Bestand sind nicht vorgesehen, die Raumaufteilung bleibt bestehen.
Entwurf Neubau
Der Entwurf stützt sich im Wesentlichen auf das Prinzip eines Falttragwerks, dessen räumliche Logik sowohl konstruktiv als auch gestalterisch prägend wirkt. Die Faltungen entlang der Südwest- und Nordwestfassaden sind in einem spitzen Winkel ausgebildet und generieren eine markante, dreiecksförmige Geometrie, die den Aussenraum rhythmisiert und Nischen von hoher plastischer Qualität entstehen lässt. Diese Einschnitte verleihen der Gebäudehülle Tiefe und schaffen differenzierte Übergänge zwischen Innen- und Aussenraum.

Pascal Holzgang
Bauleiter Hoch- und Tiefbau
Diplomarbeit 2025
Meine Diplomarbeit kann bei Interesse hier heruntergeladen werden.









