Diplomarbeit
Umbau / Neubau Hallenbad Säli
Im Rahmen der Diplomarbeit durften wir zwei Varianten ausarbeiten. Variante A, Umbau des bestehenden Hallenbades im Denkmalgeschützen Schulhaus Säli. Und Variante B, Neubau eines öffentlich zugängigen Hallenbades auf dem bestehenden Fussballplatz unterhalb des Schulhaus.
Variante A
Das bestehende Denkmalgeschützte Hallenbad wird komplett Kernsaniert. Alle Beläge inkl. Bodenaufbau werden erneuert, die beschädigten Betonstellen werden sondiert und ausgebessert. Die gesamte Pooltechnik wird ersetzt und somit auf den aktuellen stand der Technik gebracht.
Der Wasserspiegel des bestehenden Pools wird auf die Höhe des Bodens mittels neuer Überlaufrinne angehoben und der Poolboden mit Beton verstärkt, um die maximal Tiefe von 1.35m nicht zu überschreiten.
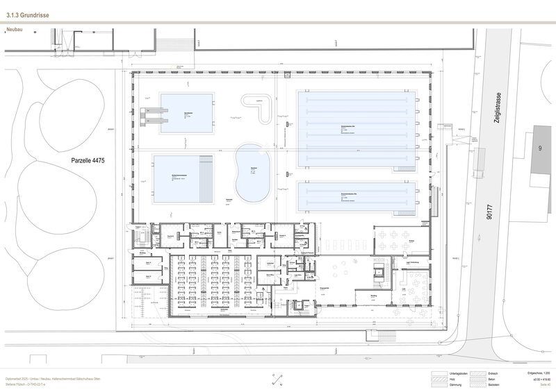
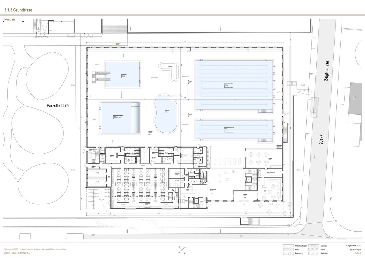
Vairante B
Der Planungsperimeter für den Neubau umfasst ein 4`685m2 ebenes Grundstück, welches an der Nord-West Grenze gegenüber der Strasse erhöht ist. Da das Hallenbad der Öffentlichkeit sowie der Schule dient, war mir die Erschliessung sehr wichtig. Der Eingang für die Öffentlichkeit wollte ich von der Strassenseite gut sichtbar und offen gestalten. Für die Schüler ist seitlich einen separater Eingang angedacht.
Der Neubau verfügt über Schwimmbecken, Kinderbecken, Nichtschwimmerbecken und einem Sprungbecken mit 1m und 3m Sprungturm. Den Wellnessbereich im 1. Obergeschoss kann zum Entspannen separat gebucht werden.
Konstruktiv bestehet das Hallenbad aus einer Kompaktfassade mit Keramischen Platten aussen. Dies widerspiegelt das Hallenbad von innen nach aussen. Das Dach ist ein leicht geneigtes Steildach aus Holz, mit extensiver Begrünung, PV-Anlage und Sonnenkollektoren. Um ein angenehmes «akustisches Klima» zu erzeugen, werden Akustikpaneele unter der Holzkonstruktion angebracht.
Schlusswort
Der Entscheid, ob Variante A oder Variante B realisiert wird, liegt schlussendlich bei der Einwohnergemeinde Olten.
Persönlich finde ich den Neubau attraktiver. Er kann einen grossen Teil des öffentlichen Interesses abdecken. Durch das Café, das zum Verweilen einlädt, sowie durch die Veranstaltungen, die durchgeführt werden können, soll der Neubau auch wirtschaftlich bleiben.

Stefanie Flütsch
Diplomarbeit Stefanie Flütsch
Willst du mehr über meine Diplomarbeit erfahren ? Dann darfst du dich gerne durch die Arbeit lesen.
Willst du mehr über meine Diplomarbeit erfahren ? Dann darfst du dich gerne durch die Arbeit lesen.
Download Diplomarbeit








