Diplomarbeit 2025
Hallenbad Sälischulhaus Olten
Viel Charme steckt im 60-jährigen Hallenschwimmbad des Sälischulhauses Olten, ein Stück Baukultur, dass ins Heute gerettet werden will. Wie lässt sich ein denkmalgeschütztes Gebäude erhalten und gleichzeitig den Anforderungen einer modernen Sportinfrastruktur gerecht werden? Entstanden sind zwei Lösungsansätze, die denselben Zweck verfolgen, aber ganz unterschiedliche Wege gehen: eine umfassende Sanierung des bestehehendem Hallenbad und eine zeitgemässe Neubauvariante
Ausgangslage
Das Sälischulhaus in Olten ist ein prägnantes Beispiel der sogenannten Jurasüdfuss-Architektur der 1960er-Jahre. Geplant von den Architekten Hans Zaugg und Alfons Barth, steht der Gebäudekomplex heute unter Denkmalschutz. Zum Ensemble gehört auch das Hallenbad, das über Jahrzehnte hinweg für den Schul- und Vereinsbetrieb genutzt wurde.
Nach über 50 Jahren intensiver Nutzung zeigte die Anlage jedoch deutliche Verschleisserscheinungen von undichten Beckenkonstruktionen bis zu veralteter Haustechnik. Ziel meiner Diplomarbeit war es daher, zwei zukunftsorientierte Lösungen zu entwickeln: eine sorgfältige Sanierung des Bestands sowie eine Neubauvariante als mögliche Ersatzlösung.
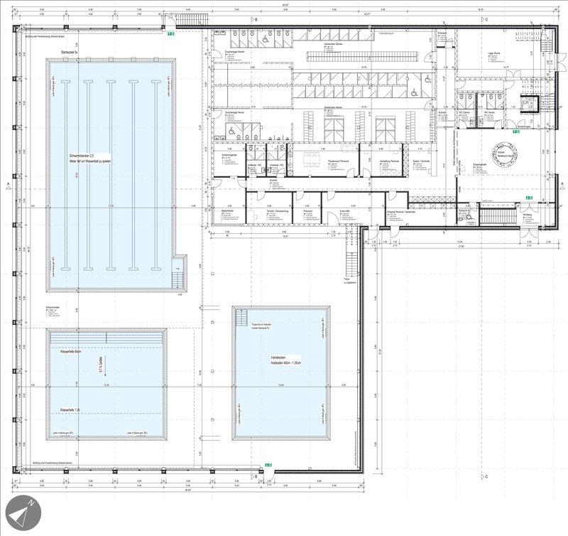
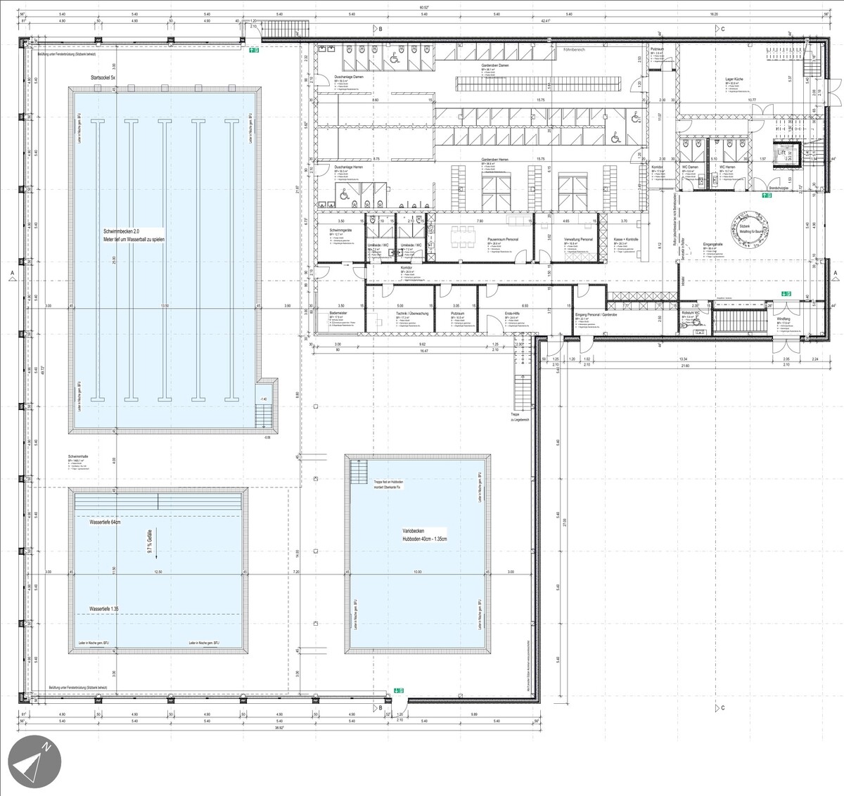
Variante A – Sanierung
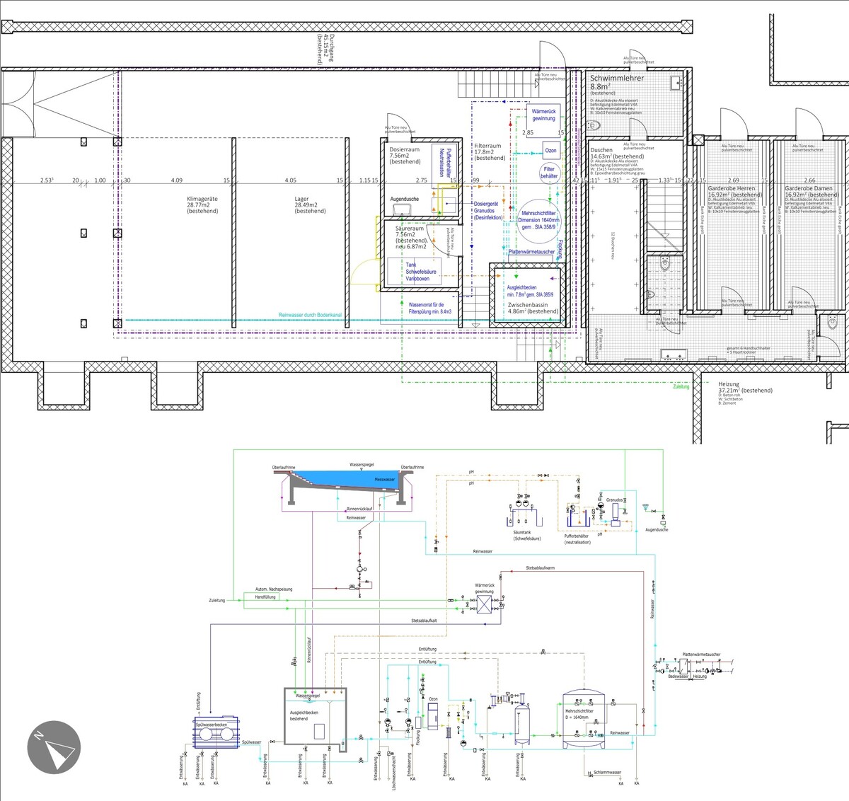
Im Mittelpunkt der Sanierung stand der Erhalt der historischen Bausubstanz, kombiniert mit einer technischen und funktionalen Erneuerung. Die Beckenkonstruktion war undicht, die Armierungen geschädigt, und die gesamte Haustechnik entsprach nicht mehr den heutigen Standards.
Durch den Ersatz aller wasserführenden Systeme, neue Abdichtungen, eine moderne Filter- und Regeltechnik sowie die komplette Erneuerung der Garderoben und Sanitäranlagen entstand ein tragfähiges Konzept für den Weiterbetrieb.
Das Material- und Farbkonzept lehnt sich bewusst an das ursprüngliche Erscheinungsbild an: helle, ruhige Farbtöne, geölte Lärche als warmer Akzent und Edelstahl für die technischen Elemente. So bleibt der Charakter des Gebäudes erhalten, während die Anforderungen an Energieeffizienz, Sicherheit und Nachhaltigkeit erfüllt werden.
Die Sanierung bietet eine Lösung mit Respekt gegenüber der Geschichte und mit einem klaren Blick in die Zukunft.
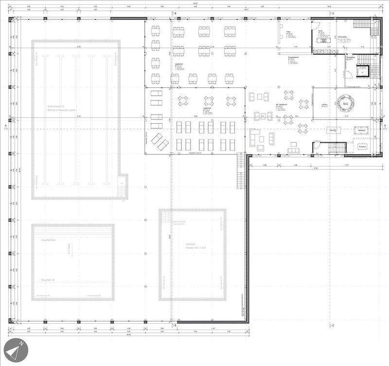
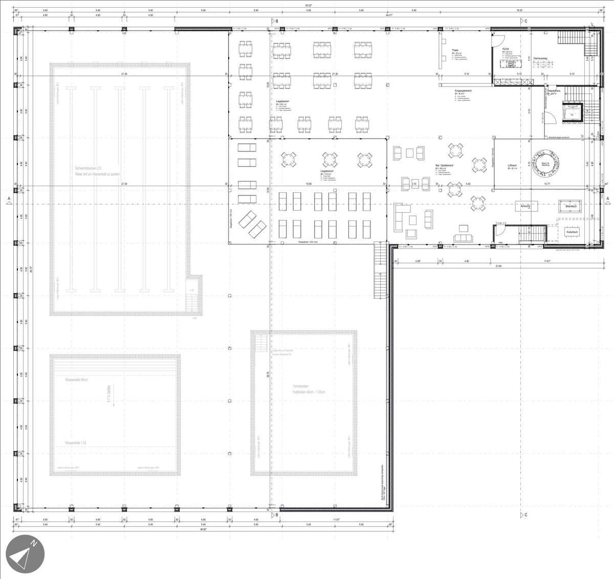
Variante B – Neubau
Die Neubauvariante verfolgt einen zeitgemässen, funktional klaren Ansatz. Geplant ist ein kompaktes Hallenbad, das heutigen Anforderungen an Betriebssicherheit, Barrierefreiheit und Energieeffizienz gerecht wird.
Der Entwurf setzt auf klare Formen, natürliche Materialien und eine offene Raumstruktur, die sich harmonisch in das bestehende Schulareal einfügt. Durchdachte Abläufe sorgen für kurze Wege und eine optimale Nutzung der Fläche.
Das neue AquaSol Olten verbindet Architektur und Technik zu einem stimmigen Gesamtkonzept: Grosse Glasflächen schaffen helle, transparente Räume, während Holz und Sichtbeton für eine ruhige, natürliche Atmosphäre sorgen. Das Bistro im Obergeschoss mit Blick in die Schwimmhalle bietet Raum zum Verweilen und macht das Bad zu einem Ort der Begegnung, nicht nur für den Sport, sondern auch für Gemeinschaft.
Der Neubau steht für einen klaren Schritt in die Zukunft, technisch, gestalterisch und wirtschaftlich.
Fazit
Die Arbeit zeigt, wie ein denkmalgeschütztes Bauwerk behutsam modernisiert werden kann, ohne seinen Charakter zu verlieren und wie gleichzeitig eine moderne Alternative entstehen kann, die den heutigen Anforderungen an Betrieb, Energie und Nutzung entspricht.
Beide Varianten verfolgen dasselbe Ziel: den langfristigen Erhalt des Schwimmunterrichts und des Vereinssports in Olten und gleichzeitig bleibt der besondere Charakter des Sälischulhauses bestehen.









