Diplomarbeit
Sälischulhaus Olten
Im Rahmen meiner Diplomarbeit als Techniker HF Hochbau habe ich das Hallenbad Säli in Olten planerisch untersucht. Dabei wurde das bestehende, denkmalgeschützte Hallenbad analysiert und anhand zweier Varianten weiterentwickelt: einer Umbauvariante mit behutsamer Sanierung sowie einem Neubau mit zeitgemässer Architektur und optimierter Nutzung
Variante A - Umbau
Einleitung / Beschrieb
Das bestehende Hallenbad Säli ist denkmalgeschützt. Ziel der Variante A war es, das Gebäude technisch und funktional zu modernisieren, ohne den historischen Charakter zu verlieren. Leitgedanke: „so wenig wie möglich verändern – so viel wie nötig verbessern.“
Ausführung
- bestehende Struktur und Akustikputzdecke bleiben erhalten
- Wandflächen werden neu mit akustisch wirksamen Holzpaneelen verkleidet
- ruhige, zurückhaltende Material- und Farbpalette, angelehnt an den Originalzustand
- rutschhemmender Feinsteinzeugboden ersetzt den bestehenden Belag
Fazit
Der Umbau ermöglicht es, die architektonische Identität des Hallenbads zu erhalten und gleichzeitig Akustik, Hygiene und Technik auf einen zeitgemässen Stand zu bringen.
Umbau = Geschichte bewahren und modern interpretieren.
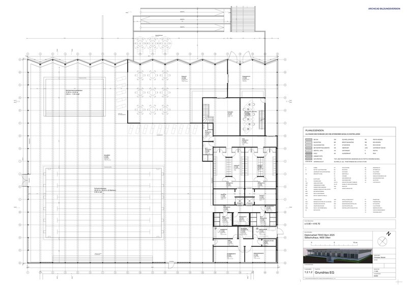
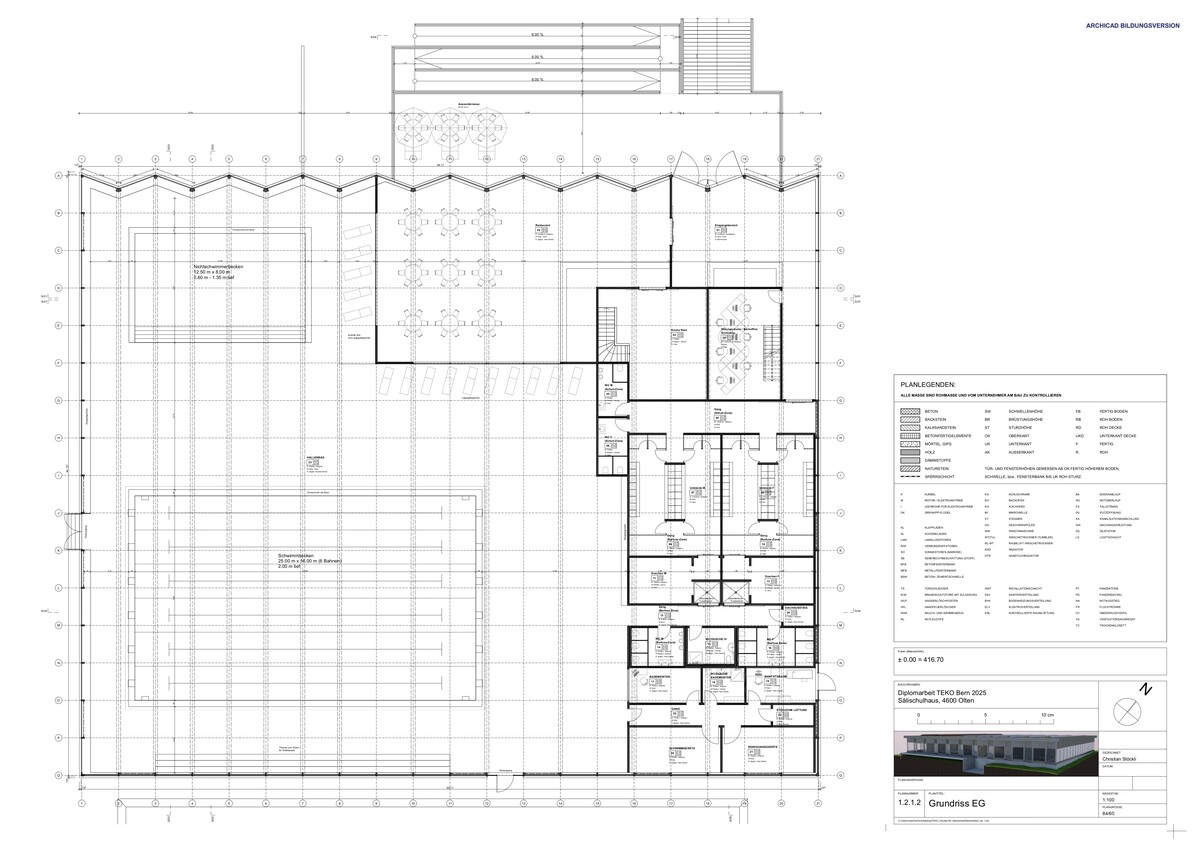
Variante B Neubau / Holz – Glas – Klarheit
Einleitung / Beschrieb
Die Neubauvariante denkt das Hallenbad komplett neu. Das Gebäude wird als zeitgemässer, energieeffizienter Holzbau entwickelt. Klare Linien, einfache Formen, viel Tageslicht. Leitprinzip: „Keep it simple.“
Ausführung
- sichtbares Holztragwerk (BSH), warme Atmosphäre
- grossflächige Verglasungen schaffen Licht und Sichtbezug
- logische Besucherführung (Eingang → Garderobe → Dusche → Schwimmhalle)
- Mengenermittlung direkt aus dem 3D-Modell in Archicad für genaue Kosten
Pfosten-Riegel-Fassade
o von aussen wirkt sie wie eine präzise ausgeführte Metall-Glas-Fassade
o im Innenraum erscheinen die Pfosten und Riegel jedoch in Bambus-Holzoptik, was eine warme, natürliche Atmosphäre erzeugt
- Photovoltaik und Solarthermie, Fernwärme-Anschluss
Architektonisches Stilmittel: Zickzack-Fassade Sie gliedert das Gebäudevolumen subtil, erzeugt Licht- und Schattenwirkung und verstärkt die klare Formensprache.
Nicht dekorativ – sondern präzise, reduziert und funktional.
Fazit
Der Neubau schafft ein zeitgemässes Bad mit hoher Nutzungsqualität, tieferen Betriebskosten und starker architektonischer Identität.
Neubau = Zukunft ermöglichen, nicht nur ersetzen.
Christian Stoeckli
Ich arbeite als Bauleiter/Allrounder in einem Architekturbüro in Solothurn. Nebst meiner Erstlehre als Maurer, habe ich noch eine Zweitlehre als Zeichner Fachrichtung Architektur gemacht und nun die Weiterbildung zum Techniker HF
chrigu.st91@gmail.com







