Sanierung und Neubau Hallenbad
Primarschulhaus Säli, Engelbergstrasse 60, 4600 Olten
Für das bestehende, denkmalgeschütze Hallenbad soll eine Sanierung geplant werden. Dazu soll ein Neubau eines öffentlichen Hallenbads geplant werden, welches im Vergleich zur Sanierung steht.
Entwurf Variante B
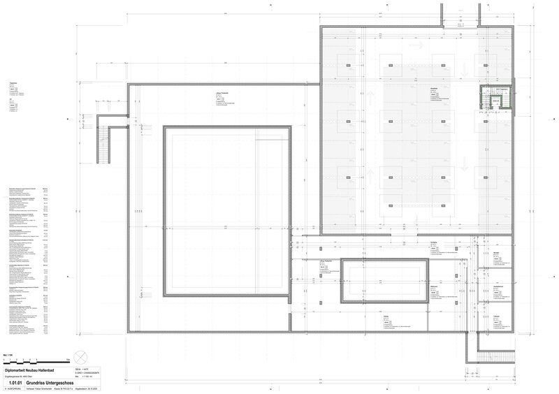
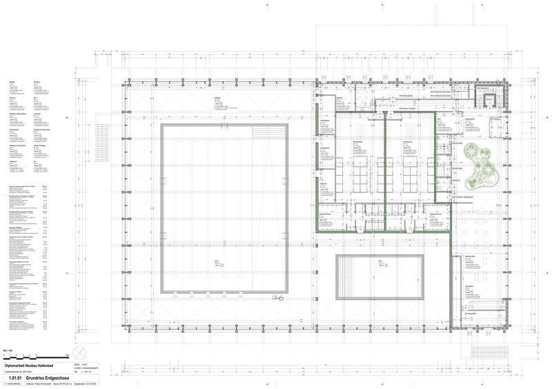
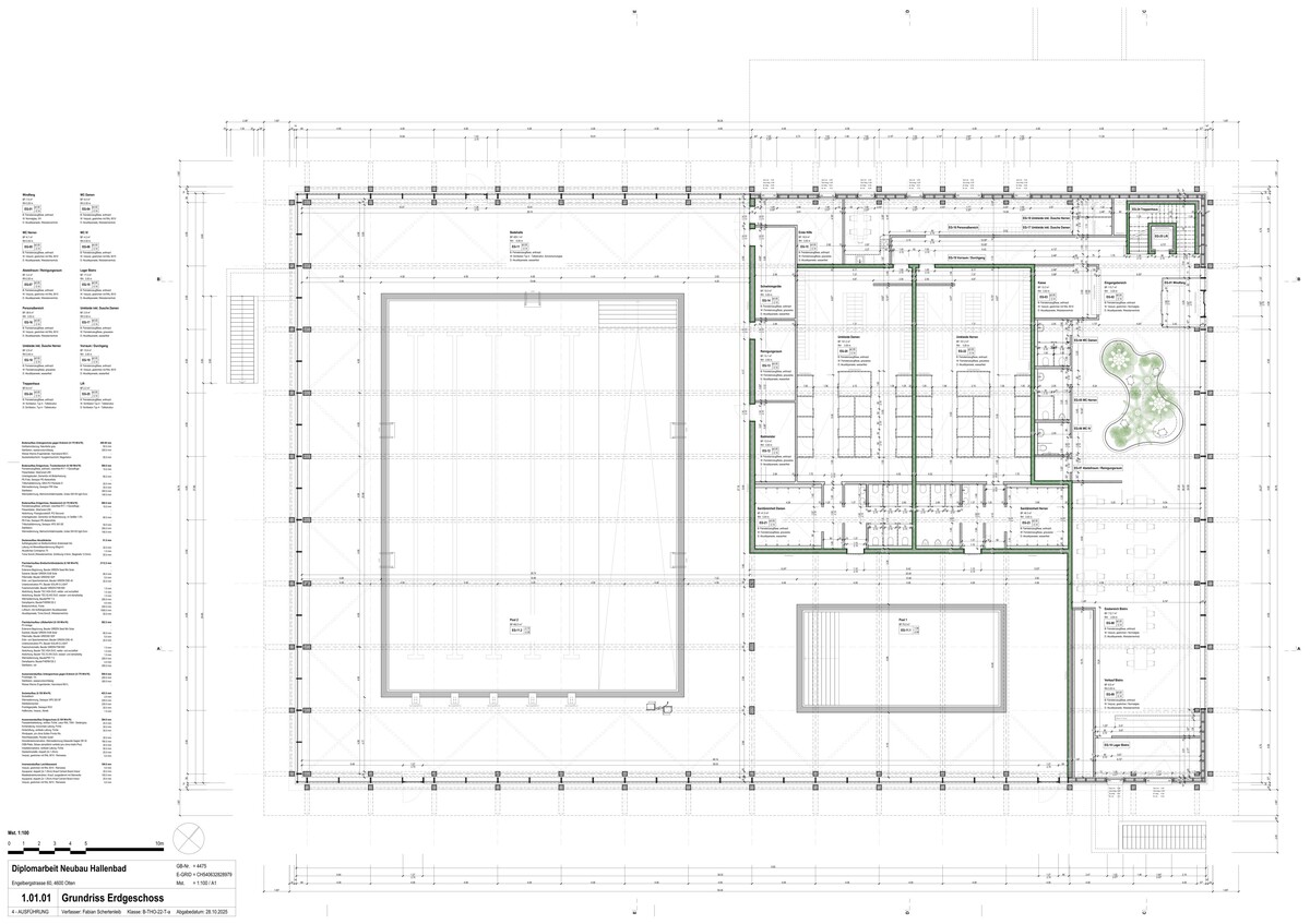
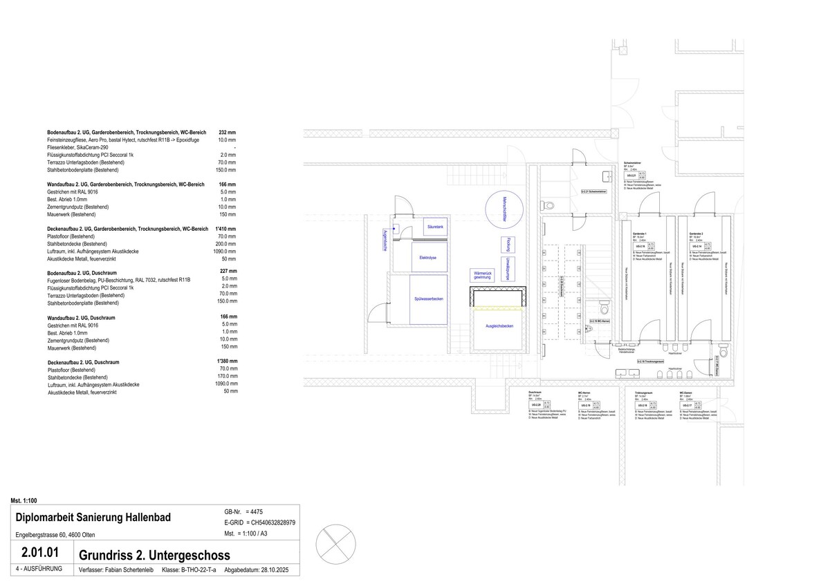
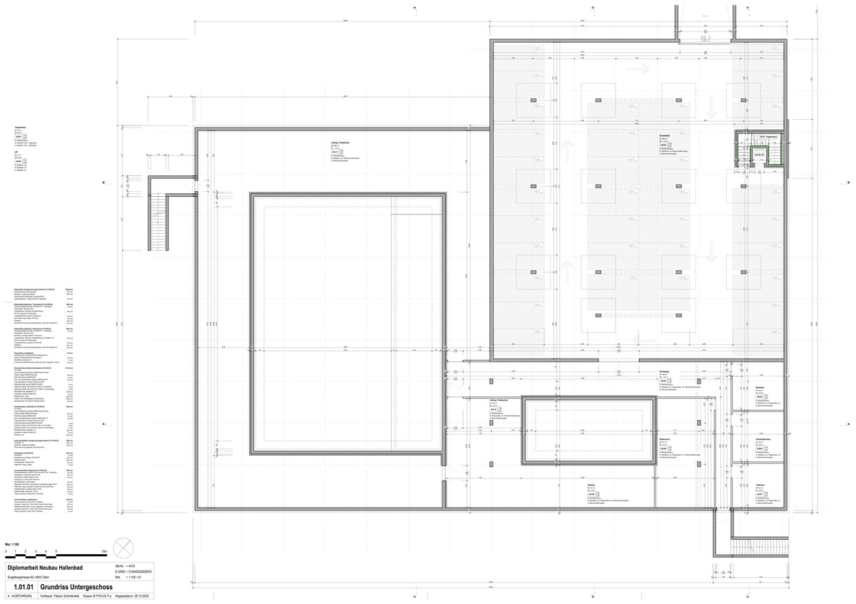
Zuerst habe ich die Vorgaben der Diplomarbeit zu den Beckenarten und Beckengrössen geprüft und meine eigenen Vorstellungen ergänzt, wobei ich mich für ein Sportbecken, ein Freizeitbecken und ein Hubbodenbecken entschieden habe. Nach dem Vergleich verschiedener Varianten habe ich die Becken in einer nach Südwesten orientierten L-Form angeordnet, um optimale Lichtverhältnisse zu erzielen. In der weiteren Planung integrierte ich den Infrastrukturbereich mit Garderobenbereich, Sanitärräume und Eingangshalle. Im Einganghallenbereich ergänzte ich ein Bistro sowie Bepflanzungen mit Schildkröten. Im Untergeschoss ordnete ich die Technikräume und eine Einstellhalle mit 34 Parkplätzen.
Konstruktion Variante B
Für die Tragkonstruktion des Hallenbades entschied ich mich nach dem Vergleich verschiedener Materialien für einen Hybridbau aus Beton und Holz, wobei das Untergeschoss vollständig in Beton und das Erdgeschoss in Kombination mit grossen Brettschichtholzträgern ausgebildet wird. Diese Konstruktion ermöglicht offene und stützenfreie Flächen. Die Fassadengestaltung orientiert sich an der bestehenden Schularchitektur mit grosszügigen Glasflächen mit Pfosten-Riegel-System, um viel Tageslicht zu gewährleisten. Im Infrastrukturbereich dagegen werden geschlossene Holzständerwände zur Anwendung kommen. Im Innenraum werden feuchtebeständige Edelstahlständerwände mit Aquapanel-Beplankung sowie eine wärme- und sonnenschutzoptimierte Dreifachverglasung eingesetzt, um Dauerhaftigkeit, Energieeffizienz und ein angenehmes Raumklima sicherzustellen.
Farb- und Materialkonzept Variante A
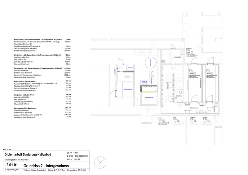
Bei der Materialisierung wurde der Bestand berücksichtigt, jedoch bewusst weiterentwickelt. Die Plattengrössen wurden abgeändert und neue, optimierte Materialien gewählt. Im 2. Untergeschoss und der Badehalle kommen basaltfarbene Hytect-Fliesen mit Rutschhemmung R11/B zum Einsatz, ergänzt durch feuchtebeständige Türblätter und Akustikpaneele aus V4A-Metall. Durch die Kombination aus hellen Wandflächen, dezenten Grau- und Basalttönen sowie hochwertiger Materialwahl entsteht ein modernes, pflegeleichtes und stimmig aufeinander abgestimmtes Gesamtbild.
Farb- und Materialkonzept Variante B
Die Fassadengestaltung der Holzständerkonstruktion wird mit einer 3D-Holzschalung in Seidengrau ausgeführt, wodurch eine lebendige, aber auch ruhige Oberflächenwirkung entsteht, die sich je nach Lichteinfall verändert. Metallteile wie Fensterrahmen und Bleche werden in Anthrazitgrau gehalten und bilden einen klaren Kontrast zur hellen Holzstruktur, während die Pfosten-Riegel-Fassade im Farbton Bastalgrau eine harmonische Verbindung zwischen beiden Materialien schafft. Insgesamt entsteht ein ausgewogenes Zusammenspiel aus Materialität, Struktur und Farbe, das der Gebäudehülle Tiefe und architektonischen Ausdruck verleiht.
Fazit
Die Diplomarbeit war eine intensive, aber sehr lehrreiche Erfahrung, in der ich mich erstmals mit der Planung eines Hallenbades auseinandersetzen und mein technisches Wissen erweitern konnte. Rückblickend bin ich stolz auf das Ergebnis, da der Entwurf funktional, gestalterisch ansprechend und ein bedeutender Schritt in meiner beruflichen Entwicklung ist.

Fabian Schertenleib
Ich Arbeite als Bauleiter in einem Architekturbüro in Solothurn und habe in den letzten drei Jahren die Technikerausbildung absolviert.
fabian.schertenleib@gmx.ch











