Diplomarbeit 2025
Umnutzung Weilerweg 20, 4057 Basel
Die Diplomarbeit befasst sich mit der Entwicklung eines Nutzungskonzeptes für die freistehenden Flächen im Erdgeschoss eines bestehenden Objektes. Ziel war es eine Nutzungsidee zu entwickeln, welche eine wirtschaftlich selbsttragende Weiterführung der gesamten Liegenschaft ermöglicht. Die Aspekte der Nachhaltigkeit müssen ebenso erfüllt werden und das Projekt muss bewilligungsfähig sein. Ein grosser Schwerpunkt der Aufgabe war es auch nutzbaren und begrünten Aussenraum zu schaffen und Nutzungskonzepte aus den Bereichen Kultur und / oder Kreativität anzustreben.
Orts- und Marktanalyse
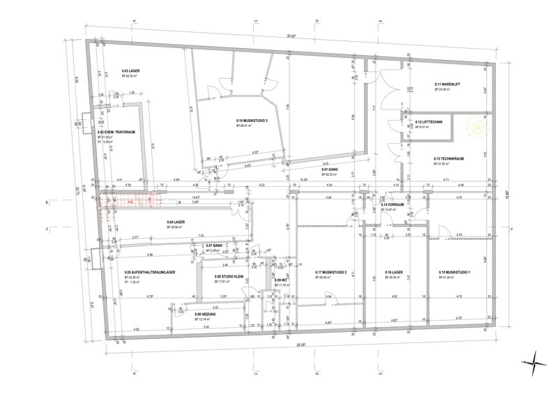
Das Studienobjekt befindet sich am Weilerweg 20 in 4057 Basel, unweit der Schäfermatte, den beiden Basler Hafenbecken und dem Areal der ehemaligen Basler Glasfabrik. Die Parzelle ist in einer Wohnzone, weswegen auf Nutzungen mit störenden Lärmemissionen sowie erhöhtem Publikumsverkehr verzichtet werden sollte.
Entwurf
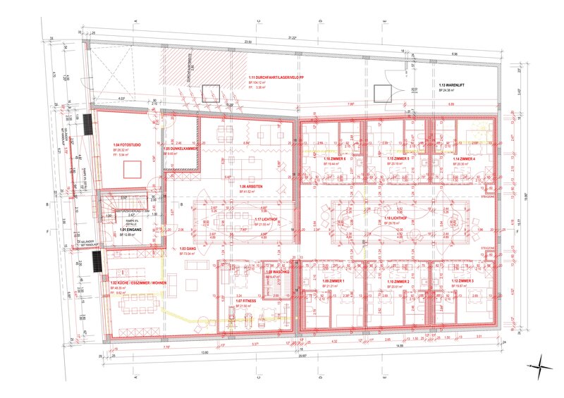
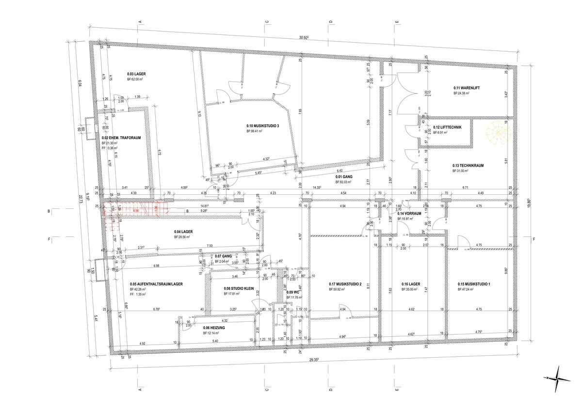
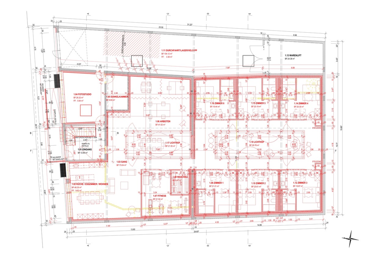
Das bestehende Gebäude auf der Parzelle wurde im Jahr 1962 gebaut und im Laufe der Zeit mehrfach umgebaut. Da die Ausnutzung der Parzelle nach heutigem Zonenreglement und -plan nicht mehr bewilligungsfähig wäre, wird der Erhalt der bestehenden Gebäudestruktur und -volumen vorausgesetzt. Aufgrund der Ort- und Marktanalysen und den genannten, baulichen Gegebenheiten, habe ich mich entschieden eine Clusterwohnung zu erstellen. Die Clusterwohnung umfasst sechs private Einheiten, mit jeweiligem Bad, kleiner Teeküche und Schlafzimmer. Die Gemeinschaftsräume setzen sich aus Esszimmer, Wohnzimmer, grosse Gemeinschaftsküche, Fitnessraum, Waschküche, Arbeitsraum und den beiden begrünten Lichthöfen zusammen. Diese Wohnung soll junge sowie ältere Zielgruppen ansprechen, welche alleinstehend sind und das Bedürfnis an Wohnen in Gemeinschaft haben.
Farb- Materialkonzept
Fassade
Um der Aufgabenstellung, mit der Ergänzung von Aussenräumen, auch an der Gebäudehülle gerecht zu werden, wird die Nordfassade, ebenso wie die Wand im vorderen Lichthof als begrünte Fassade ausgebildet. Da der Fokus auf der Begrünung liegen soll, wähle ich die restlichen Komponenten schlicht und ohne Akzente. So werden auch Ost-, Süd- und Westfassade in einem Lichtgrau verputzt als Schutz für die Baustoffe. Da sich diese Fassade mehrheitlich im Schatten befindet, wird mittels Schattenpflanzen gearbeitet.
Innenraum
Die Farbgebung von den Innenräumen leitet sich durch die bestehende Farbe des Stahlfachwerks ab, welches in einem schönen Petrol/Wasserblau ausgeführt ist. Um im Innenraum mehr Leben zu schaffen, arbeite ich mit Komplementärfarben. Da im Gebäude Künstler werken, unter anderem vor allem Musiker, hat es mich inspiriert, aufgrund der Blütezeit der Musik in den 80-er / 90-er Jahre, einen Retrostil umzusetzen, jedoch diesen modern wirken zu lassen. Somit lautet mein Farbkonzept «Retro meets Modern».
Lichthöfe
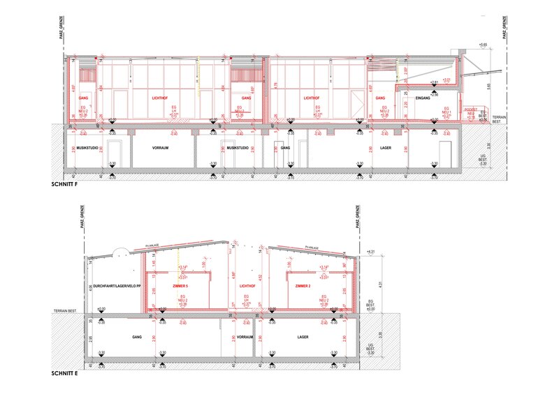
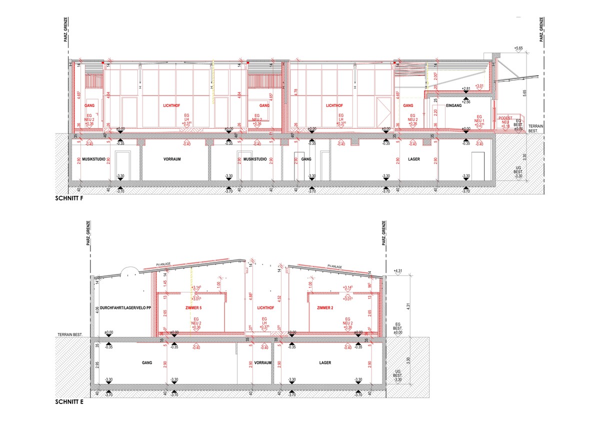
Die beiden neu projektieren Lichthöfe im Zentrum meines Projektes werden durch eine Magerwiese, Stauden, sowie Sträucher und einer begrünten Fassade begrünt. Die Lichthöfe sind nutzbare Aufenthaltsorte im Freien und bieten den Mietern einen naturnahen Rückzug- und Erholungsort.



























