DIPLOMARBEIT 2025
UMNUTZUNG WEILERWEG 20 I 4057 BASEL
KREATIVHUB ALS IMPULS FÜR QUARTIERSENTWICKLUNG
EINLEITUNG
AM WEILERWEG 20 IN BASEL-KLEINHÜNINGEN STEHT EINE LEERE INDUSTRIEHALLE, DIE IM RAHMEN DIESER DIPLOMARBEIT ZU EINEM LEBENDIGEN KREATIVHUB TRANSFORMIERT WERDEN SOLL. DAS ZIEL WAR ES, EIN ARCHITEKTONISCH ÜBERZEUGENDES, WIRTSCHAFTLICH TRAGFÄHIGES UND BEWILLIGUNGSFÄHIGES PROJEKT ZU ENTWICKELN, DAS NEUE IMPULSE FÜR DAS QUARTIER SETZT.
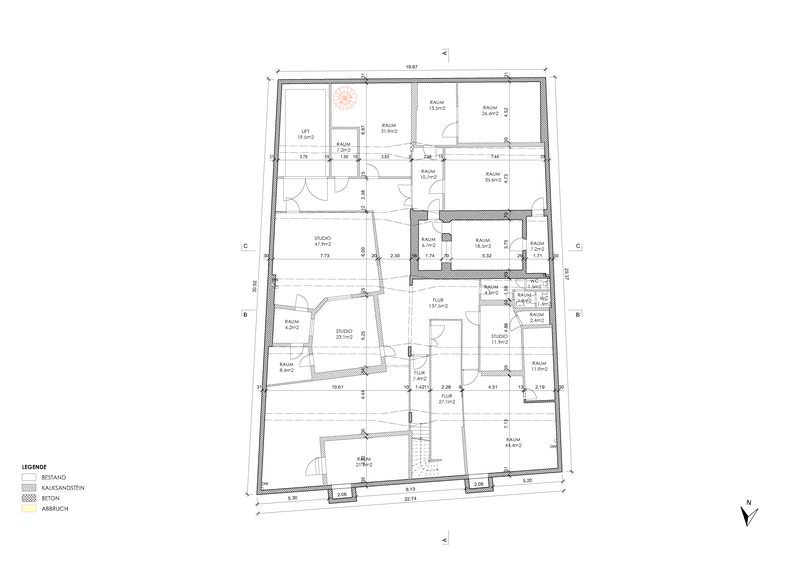
DAS KONZEPT SIEHT VOR, DIE INDUSTRIELLE STRUKTUR DES GEBÄUDES BEWUSST ZU ERHALTEN UND DURCH GEZIELTE EINGRIFFE FLEXIBLE, KLEINTEILIGE NUTZUNGEN ZU ERMÖGLICHEN. BESTEHENDE MUSIKSTUDIOS IM UNTERGESCHOSS BILDEN DIE BASIS, WÄHREND IM ERDGESCHOSS NEUE RÄUME FÜR HANDWERK, KUNST UND KULTURELLE AKTIVITÄTEN ENTSTEHEN. EIN BEGRÜNTER INNENHOF MIT OFFENEM ATRIUM BRINGT TAGESLICHT INS GEBÄUDE UND VERBINDET DIE VERSCHIEDENEN NUTZUNGSBEREICHE MITEINANDER.
PROJEKTIDEE UND KONZEPT
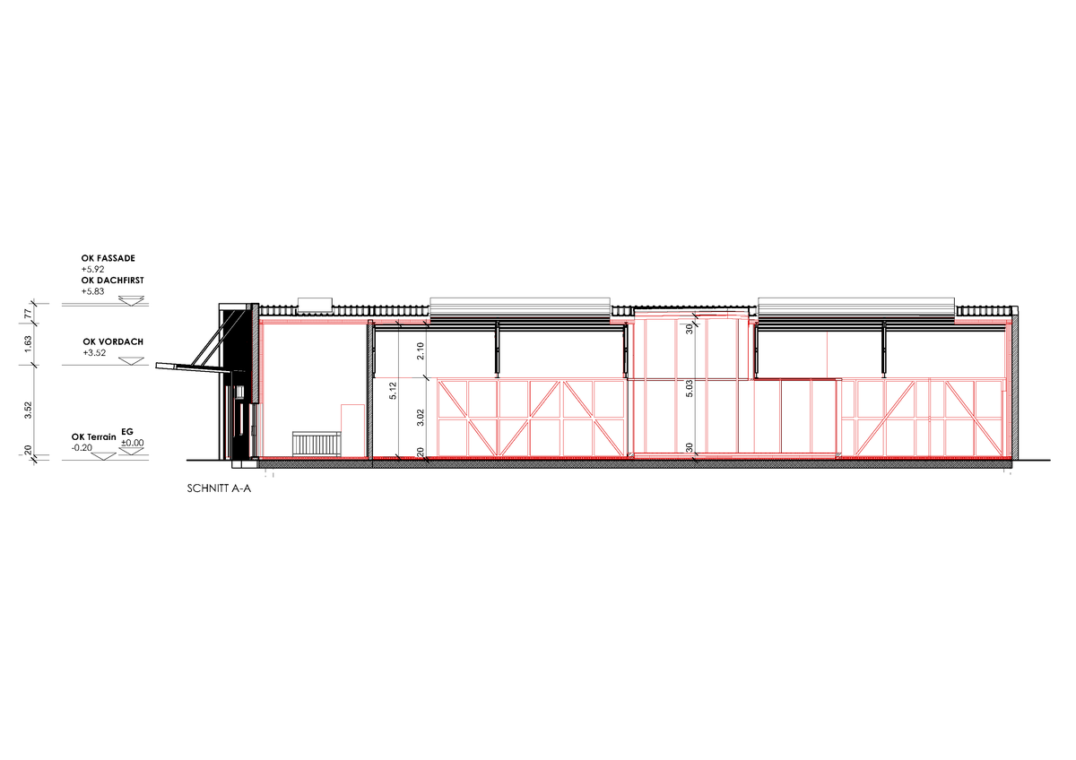
DIE INDUSTRIEHALLE BLEIBT ERHALTEN UND WIRD MIT EINFACHEN, ZIELGERICHTETEN MASSNAHMEN UMGEBAUT. EIN NEUBAU HÄTTE AUFGRUND DER LAGE AUF DER PARZELLENLINIE ZURÜCKVERSCHRÄNKT WERDEN MÜSSEN UND DAMIT FLÄCHE UND CHARAKTER VERLOREN. DER BESTAND BIETET EINE ROBUSTE STRUKTUR, DIE SICH GUT FÜR EINE FLEXIBLE UMNUTZUNG EIGNET.
DAS PROJEKT ENTWICKELT EINEN KREATIVHUB ALS IMPULS FÜR DIE QUARTIERSENTWICKLUNG. BESTEHENDE MUSIKSTUDIOS IM UNTERGESCHOSS BILDEN DIE BASIS, WÄHREND IM ERDGESCHOSS NEUE, FLEXIBLE RÄUME FÜR ATELIERS, WERKSTÄTTEN, DRUCK- UND FOTOBEREICHE ENTSTEHEN. DURCH EINFACHE BAULICHE MASSNAHMEN UND DEN EINSATZ VON HOLZPFOSTENRIEGELKONSTRUKTIONEN MIT GROSSEN VERGLASUNGEN ENTSTEHT EIN OFFENES, LICHTDURCHFLUTETES GEBÄUDE. DAS ATRIUM BILDET DABEI DAS RÄUMLICHE HERZSTÜCK UND SCHAFFT EINE BELEBTE MITTE.
STÄDTEBAULICHER KONTEXT
DER STANDORT LIEGT IM NÖRDLICHEN TEIL VON BASEL-KLEINHÜNINGEN, EINEM QUARTIER IM WANDEL. GROSSE ENTWICKLUNGSPROJEKTE RUND UM KLYBECK UND DEN HAFEN BIETEN DIE CHANCE, NEUE IMPULSE ZU SETZEN UND DAS QUARTIER LANGFRISTIG ZU STÄRKEN.
DIE INDUSTRIEHALLE LIEGT RUHIG, ABER GUT ERSCHLOSSEN, UND HAT DAMIT IDEALE VORAUSSETZUNGEN FÜR EIN KLEINTEILIGES, LEBENDIGES NUTZUNGSKONZEPT. DURCH DIE AKTIVIERUNG DER ERDGESCHOSSZONE MIT OFFENEN WERKSTÄTTEN, ATELIERS UND GEMEINSCHAFTSRÄUMEN ENTSTEHT EIN NEUER ÖFFENTLICHER ORT IM QUARTIER. DAS PROJEKT FÖRDERT KULTUR, HANDWERK UND NACHBARSCHAFT UND LEISTET DAMIT EINEN KLAREN BEITRAG ZUR QUARTIERSENTWICKLUNG.
ARCHITEKTUR UND NUTZUNG
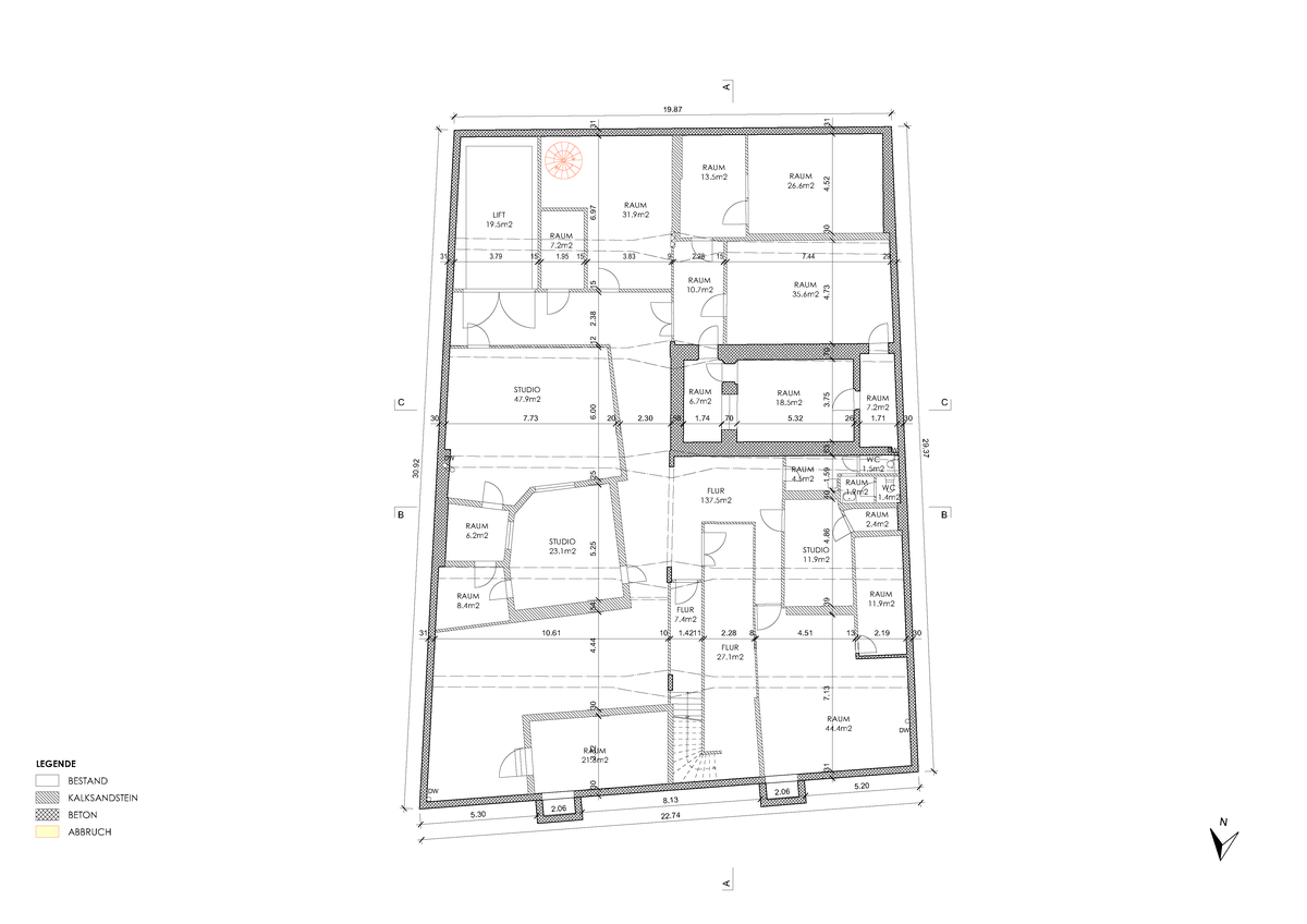
DIE NUTZUNGEN ORGANISIEREN SICH RUND UM DEN INNENHOF UND DAS ATRIUM. IM UNTERGESCHOSS BEFINDEN SICH MUSIKSTUDIOS, DIE WEITER GENUTZT WERDEN UND DIE BASIS DES KREATIVHUBS BILDEN. IM ERDGESCHOSS ENTSTEHEN ATELIERS, WERKRÄUME, EIN PRINT- UND DRUCKBEREICH, EIN FOTOSTUDIO, EINE DUNKELKAMMER SOWIE GEMEINSCHAFTLICHE RÄUME WIE DIE KÜCHE.
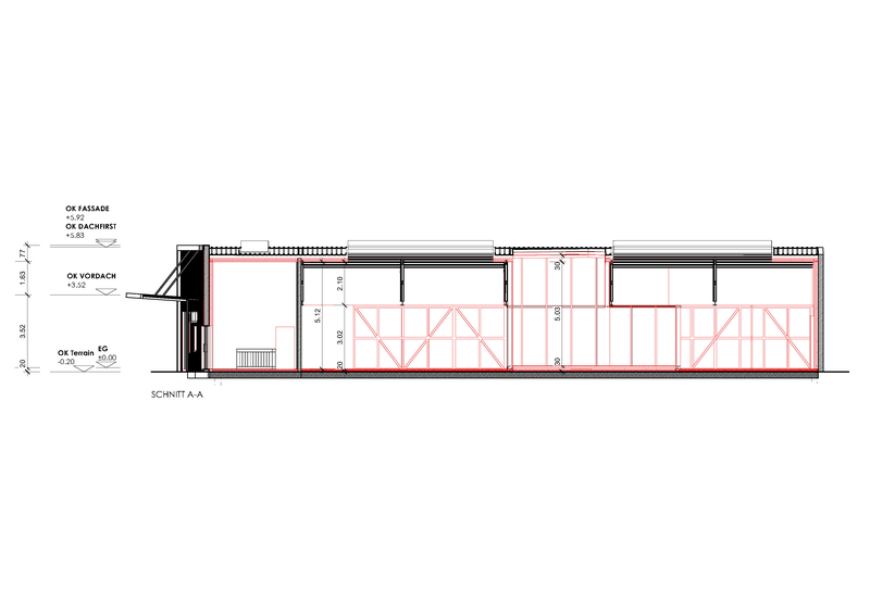
DIE NEUEN RÄUME WERDEN ALS HOLZPFOSTENRIEGELKONSTRUKTION MIT GROSSEN VERGLASUNGEN GEBAUT. DAS SCHAFFT LICHT, TRANSPARENZ UND VISUELLE BEZÜGE ZWISCHEN INNEN UND AUSSEN. DAS ATRIUM AUS ALUMINIUM LIEGT ZWISCHEN DEN RÄUMEN UND DEM INNENHOF UND MARKIERT DIE RÄUMLICHE MITTE. ES IST OFFEN, LÄSST SONNE UND REGEN ZU UND FUNGIERT ALS TREFFPUNKT FÜR NUTZER UND QUARTIER.
DER INNENHOF WIRD BEGRÜNT UND MIT SITZGELEGENHEITEN AUSGESTATTET, UM AUFENTHALTSQUALITÄT ZU SCHAFFEN UND DEN AUSTAUSCH ZU FÖRDERN.
WIRTSCHAFTLICHKEIT UND NACHHALTIGKEIT
DAS PROJEKT SETZT AUF BESTANDSNUTZUNG UND NIEDERSCHWELLIGE MASSNAHMEN, UM KOSTEN UND GRAUE ENERGIE ZU SPAREN. DER ERHALT DES GEBÄUDES VERMEIDET ABRISS UND NEUBAU, WÄHREND GEZIELTE SANIERUNGEN ENERGETISCHE VERBESSERUNGEN BRINGEN.
DURCH MODULARE RAUMSTRUKTUREN UND FLEXIBLE VERMIETUNG ENTSTEHT EIN WIRTSCHAFTLICH TRAGFÄHIGES MODELL MIT LANGFRISTIG STABILEN MIETPREISEN. DAS PROJEKT ENTSPRICHT DEN ZIELEN DES SNBS-HOLISTISCHEN NACHHALTIGKEITSANSATZES: RESSOURCENSCHONUNG, SOZIALE DURCHMISCHUNG, LANGLEBIGKEIT UND QUARTIERSBEZOGENE WERTSCHÖPFUNG.
MATERIAL- UND GESTALTUNGSKONZEPT
DIE GESTALTUNG IST EINFACH UND KLAR. DIE FASSADE ERHÄLT EINE OFFENE, VERTIKALE HOLZSCHALUNG, DIE DEM GEBÄUDE EINEN NEUEN, CHARAKTERISTISCHEN AUSDRUCK VERLEIHT UND ES VON DEN VERPUTZTEN NACHBARBAUTEN ABHEBT.
DIE INNENRÄUME SIND ALS HOLZPFOSTENRIEGEL MIT GROSSEN VERGLASUNGEN GEPLANT, UM LICHT UND SICHTBEZÜGE ZU SCHAFFEN. DAS ATRIUM WIRD ALS OFFENE ALUMINIUMKONSTRUKTION AUSGEBILDET UND FASST DEN INNENHOF RÄUMLICH.
IM HOF ENTSTEHT EINE BEGRÜNTE FLÄCHE MIT SITZGELEGENHEITEN UND PFLÄSTERUNGEN MIT BEGRÜNTEN FUGEN. NEUE VELOSTELLPLÄTZE ERGÄNZEN DIE AUSSENBEREICHE FUNKTIONAL UND MACHEN DAS GESAMTBILD STIMMIG UND LEBENDIG.

MICHAEL RAMOS
MEINE PERSON IN DREI WÖRTERN: NEUGIERIG | ENGAGIERT | ZIELSTREBIG
MICHAELRAMOS1996@HOTMAIL.COM
+41 76 464 77 65
BROSCHÜRE
DIE GESAMTE DIPLOMARBEIT ALS PDF:




















