Diplomarbeit 2024
Wohn- und Gewerbehaus Kriens
Im Rahmen der Diplomarbeit soll ein Renditeobjekt für Mietwohnungen und Gewerbe erarbeitet werden. Das Gebäude welches an der Kantonsstrasse liegt soll abgerissen, und an selber Stelle durch ein neues nachhaltiges Gebäude ersetzt werden. Es ist das Ziel Wohnungen mit erschwinglichen Mieten zu erstellen, ohne die Wirtschaftlichkeit zu vernachlässigen. Im Erdgeschoss wird das bereits auf der Liegenschaft beheimatete Unternehmen integriert.
In den ersten Vorabklärungen wurden die grösstmögliche Grundfläche ermittelt um möglichst viele Wohnungen umsetzen zu können. Das Ergebnis einer fundierten Analyse des Marktes zeigte auf, dass es an grösseren Wohnungen für Familien mangelt. Ebenfalls eine erhebliche Nachfrage besteht für kleinere Wohnungen bis 2.5 Zimmern. Mit verschiedenen Entwürfen wurden die in der Marktanalyse gewonnenen Erkenntnisse umgesetzt.
Gewerbe
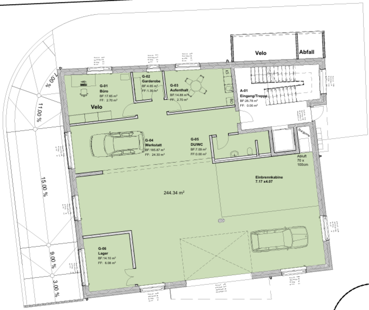
Die Vorgaben für das Gewerbe, welches im Erdgeschoss angesiedelt ist, wurden in die Planung mit einbezogen. Der grosszügige Arbeitsbereich mit drei Arbeitsplätzen und der Einbrennlackierkabine, das Lager sowie das integrierte Büro ermöglichen ein rationelles arbeiten. Die Garderobe, das WC mit Dusche und der Aufenthaltsraum mit kleiner Küche bietet den Mitarbeitern ein angenehmes Arbeitsumfeld.
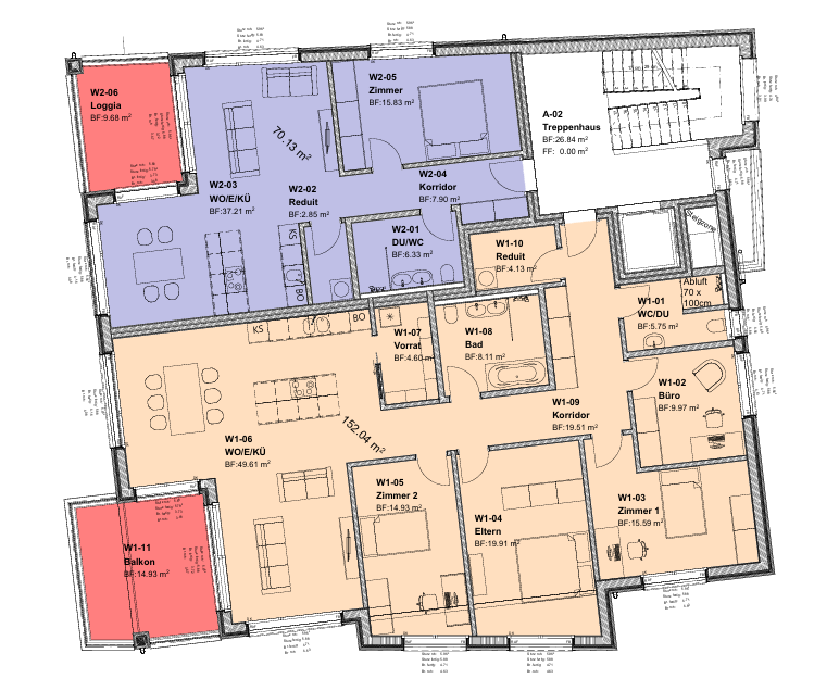
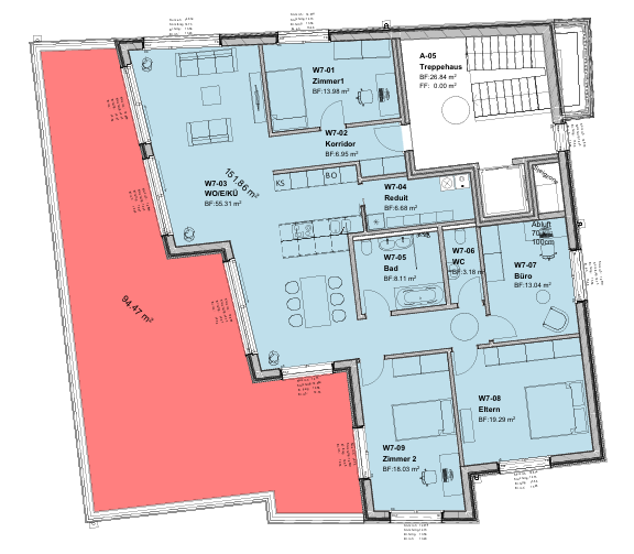
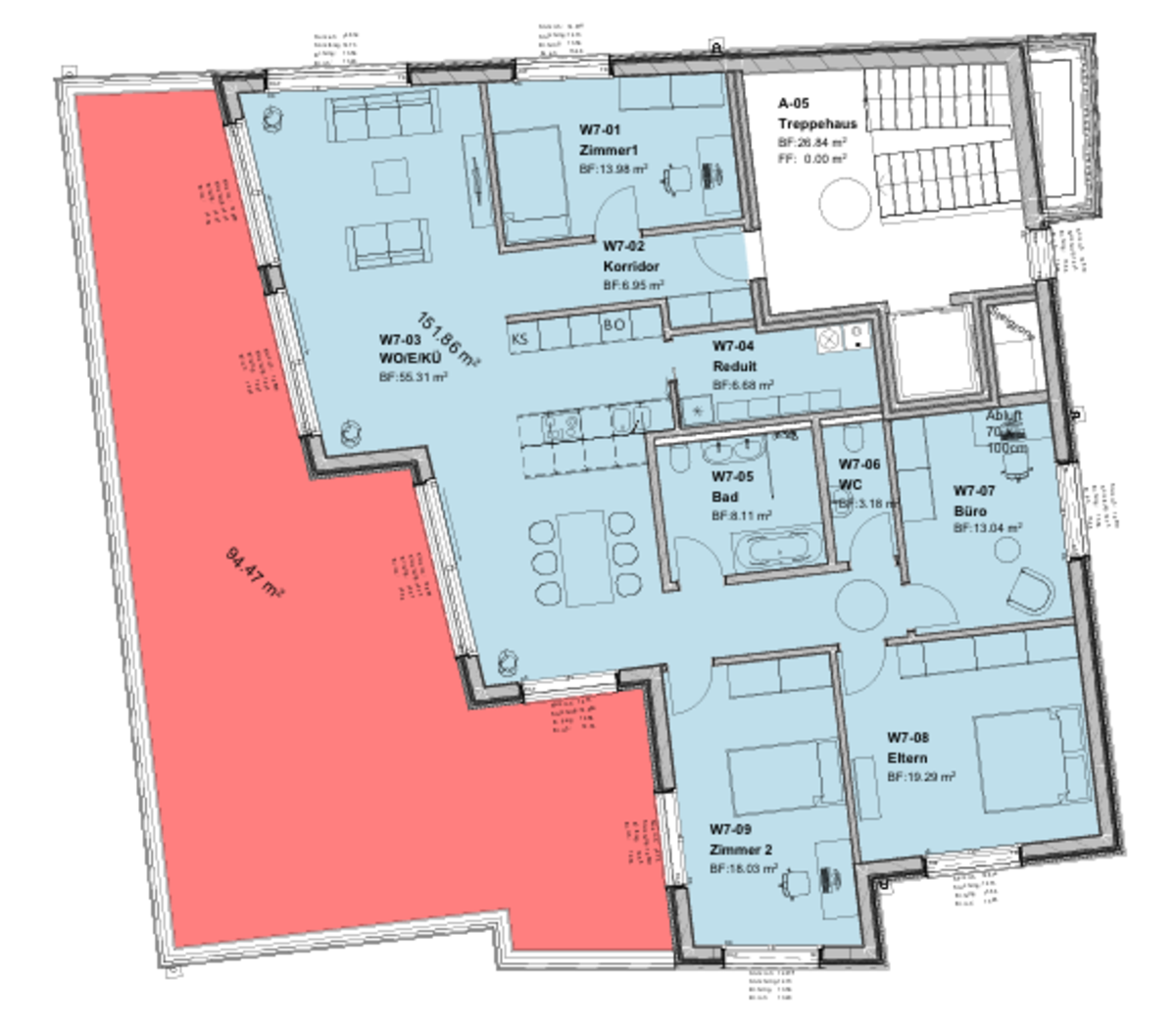
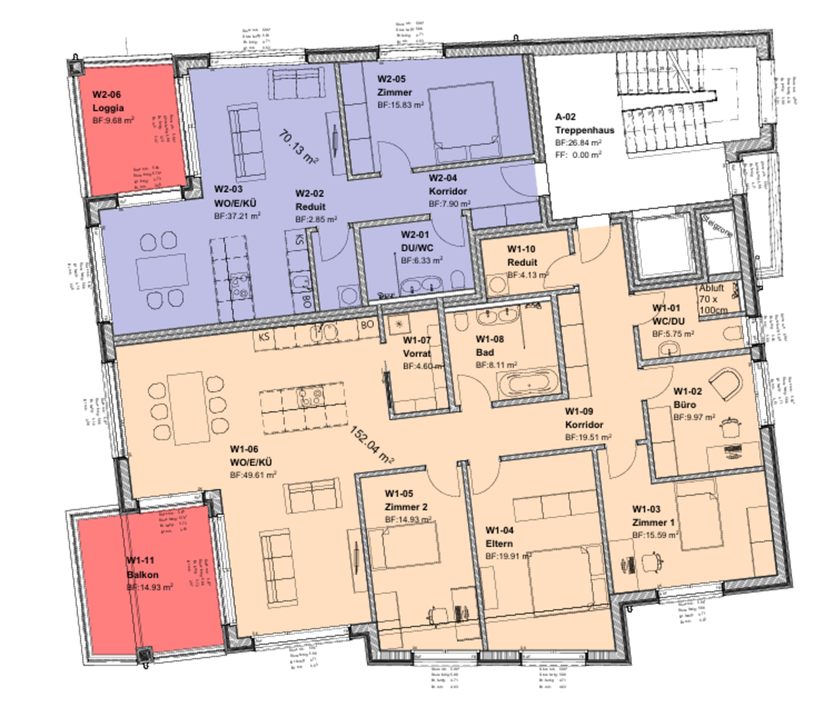
Wohnungen

Marcel Jordi
Diplomarbeit 2024
Wohn- und Gewerbehaus Horw











