Dipl. Techniker/in HF Bauplanung Architektur

Ersatzneubau LBAC

Little Bridge Appartments & Colors

Altes macht Platz für neuen Wohn- und Arbeitsraum

26. November 2024
Tobias Aregger

Ausgangslage

Die Aufgabenstellung nimmt die immer wichtiger werdende Thematik des Ersatzneubaus auf. Die grünen Flächen sind grösstenteils bebaut, mehr Wohnraum kann nur noch durch Verdichtung geschaffen werden.


Die an einem kleinen Bach gelegene Parzelle in der Gemeinde Horw im Kanton Luzern wird mit dem bestehenden Wohnhaus mit angebauter Autolackiererei nicht optimal ausgenützt. Durch den eingeschossigen Gewerbebau geht viel möglicher Wohnraum verloren und es besteht grosses Potential für eine Verdichtung.


Dieser Missstand galt es durch einen nachhaltigen und attraktiven Ersatzneubau zu beheben, der neben mehr Wohnraum für Menschen auch die bestehende Lackiererei als Arbeitsort in sich aufnehmen und eine attraktive Rendite erwirtschaften soll.


Architektur & Ausstattung

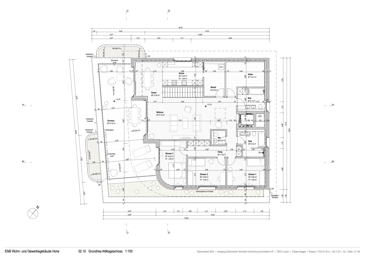
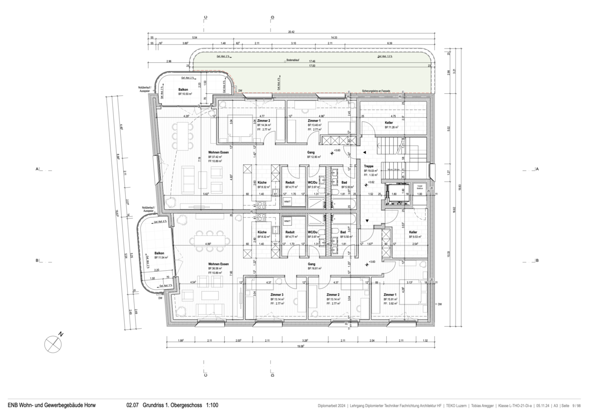
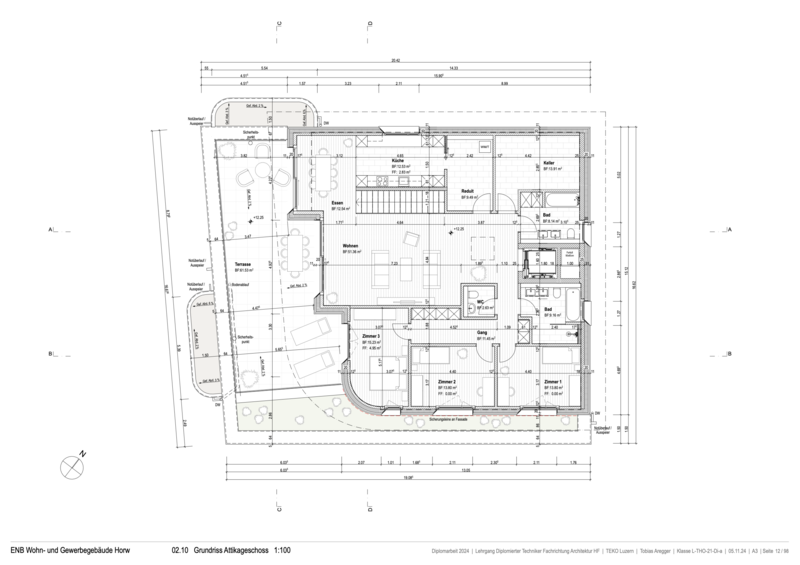
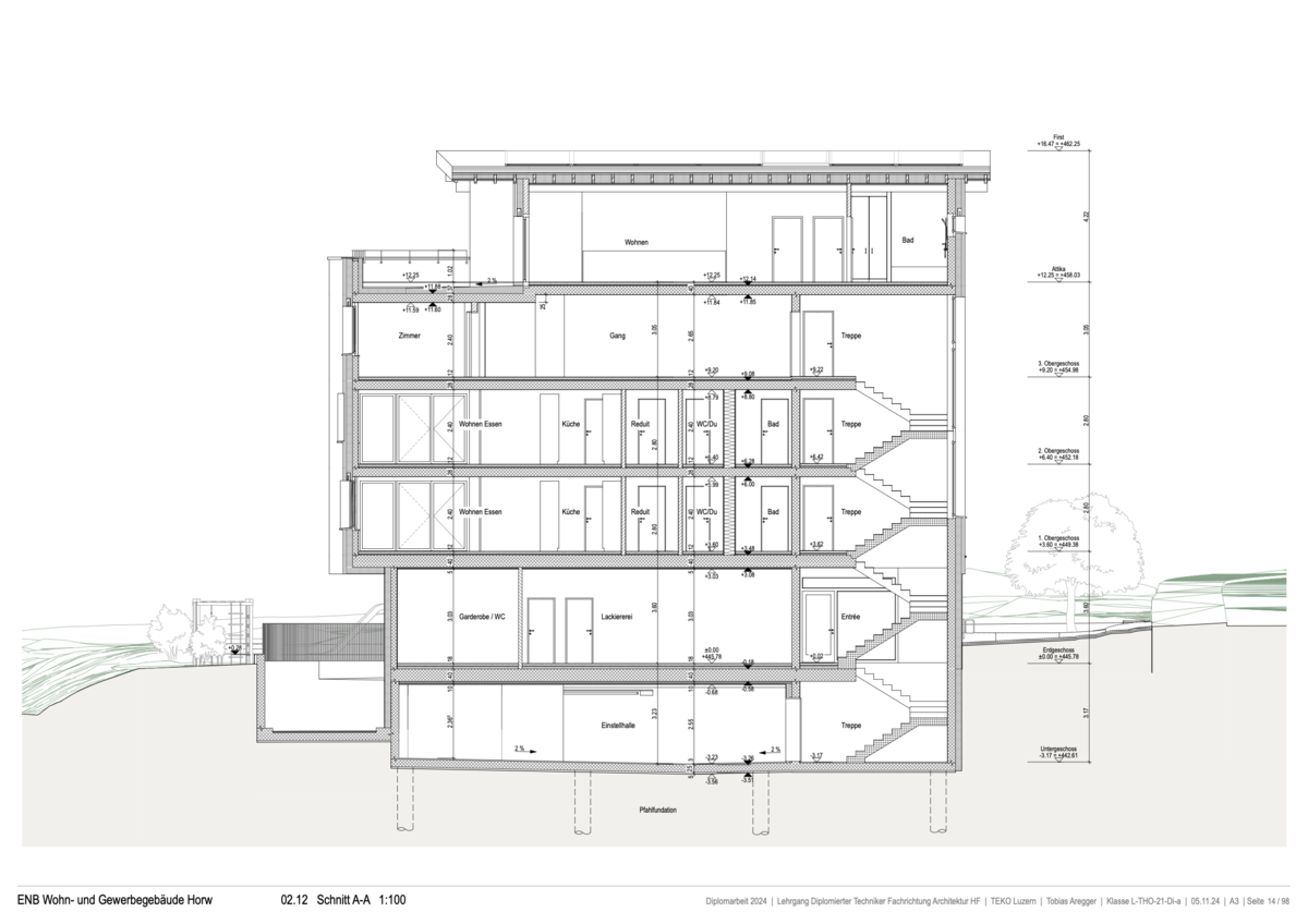
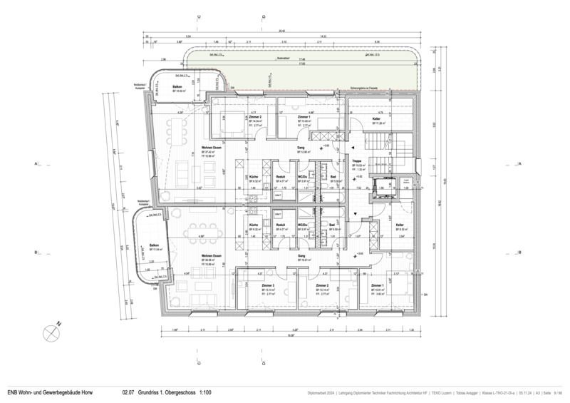
Das Gebäude wird in einer modernen Architektur mit Ecken, Kanten und Rundungen errichtet und fügt sich gut an die Lage am Bach ein. Die Wohneinheiten sind 100 und 120 m² groß und verfügen jeweils über einen Balkone. In der Attika entsteht eine 190 m2 grosse Maisonette Wohnung mit großzügiger Terrasse.

Weiter bietet das Gebäude 190 m2 Gewerberaum mit 4 zugehörigen Aussenparkplätzen im Erdgeschoss. Für die Parkierung stehen eine Einstellhalle für Autos im Untergeschoss, sowie gedeckte und ungedeckte Abstellplätze für Fahrräder vor dem Eingang im Erdgeschoss zur Verfügung. Das Gebäude ist barrierefrei konzipiert um auch beeinträchtigten oder älteren Menschen ein Zuhause bieten zu können.

Konstruktion & Bauphysik

Um der Langlebig- und Nachhaltigkeit gerecht zu werden, ist für das Gebäude eine hinterlüftete Fassade mit Steinwolldämmung und Metalleinkleidung mit Zackenstruktur vorgesehen. Neben dem Schutz vor Wetter, Kälte und Hitze bietet dieser mehrschichtigen Aufbau dank der unebenen Fassadenoberfläche, dem Luftzwischenraum und der Masse von Steinwolle & Beton/Backstein auch einen idealen Schutz vor Strassenlärm.

Um den zukünftigen Bewohnern ein ruhiges Zuhause zu bieten wurden verschiedene Massnahmen ergriffen. Keine Wohnräume haben Fenster direkt zur Strasse, die Fenster und deren Leibungen wurden asymmetrisch gestaltet um ideale Schallreflektionen zu erreichen und Balkone und Terrasse liegen auf der Strassen abgewandten Seite des Gebäudes.

Baustatik
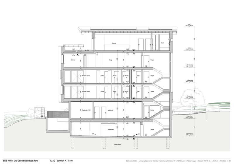
Die Baugrube ist aufgrund knappen Platzverhältnisse, schlechtem Baugrund aus Seekreide, an die Parzelle angrenzenden Bachlauf, sowie Grundwasser eine Herausforderung und wird mittels Spundwand und Gründung auf Reibungspfählen gelöst.

Die massive Bauweise mit Beton und Mauerwerk ermöglicht grosse Spannweiten in Einstellhalle, Gewerbe und Wohnzimmer, sowie die Auskragungen der Wohngeschosse zum Erdgeschoss.

Die Erdbebensicherheit wird mit einer nahezu öffnungsfreien Betonwand über alle Geschosse auf der Strassenseite des Gebäudes mit angrenzendem Treppenhaus und Liftschacht, sowie teilen der Wohnungstrennwand erreicht.

Haustechnik
Eine vollflächige PV-Anlage auf dem Pultdach über der Attika liefert Strom für Bewohner, Gewerbe und die ökologische Luft/Wasser-Wärmepumpe mit der das Gebäude beheizt wird. Der in der Einbrennkabine der Lackiererei entstehenden Fortluft wird mittels Wärmetauscher die Wärme entzogen und der Brauchwarmwassererhitzung zugeführt und trägt so zusätzlich zu einer modernen und zeitgemässen Energieeffizienz des Gebäudes bei.

Wirtschaftlichkeit
Die hohen Kosten für Grundstück, Pfahlfundation und Baugrube machen das Bauen auf diesem Grundstück zu einem teueren Unterfangen. Diesen Gegebenheiten wurde mit langlebigen, wartungsarmen Baustoffen und Bauweisen entgegen gewirkt um eine angemessene, attraktive und nachhaltige Rendite erwirtschaften zu können. Bei der guten Lage in der beliebten Gemeinde Horw ist zudem mit einer interessanten Wertsteigerung der Immobilie zu rechnen.





Weiterbildung neben Beruf und Freizeit

Gratis E-Book mit 10 Tipps zur Work-Life-Learn-Balance

Weiterbildung neben Beruf und Freizeit – schaffe ich das?

10 Tipps zur Work-Life-Learn-Balance

Eine Weiterbildung beansprucht Zeit. Deshalb auf Freunde, Familie und Hobbies zu verzichten, wäre falsch.

In diesem E-Book erfährst du:

  • wie du deine Zeit effizienter nutzt
  • wie du dich trotz Weiterbildung genügend Freizeit bewahrst
  • wie sich Beruf, Weiterbildung und Freizeit gegenseitig ergänzen statt konkurrenzieren können

Tipps aus dem Inhalt

  • TIPP 1: Gestalte deine Arbeit so flexibel wie möglich!
  • TIPP 2: Beziehe Arbeitgeber sowie Kollegen und Kolleginnen in deine Weiterbildungspläne mit ein!
  • TIPP 3: Arbeite effizienter und effektiver mit Zielorientierung!
  • TIPP 4: Entwickle deinen idealen Lernrhythmus!
  • TIPP 5: Lerne mit System und festen Strukturen!
  • TIPP 6: Schaffe genug Ausgleich und Entspannung!
  • TIPP 7: Binde deine/n Partner/in, deine Familie und externe Hilfen in deine Planung ein!
  • TIPP 8: Belohne dich für deine Erfolge!
  • TIPP 9: Mach eine Zeitinventur!
  • TIPP 10: Erstelle eine Zeitplanung aller drei Bereiche!

Leider ist ein Fehler aufgetreten. Bitte versuche es erneut oder nimm mit uns direkt Kontakt auf.

Aktuelles Studienprogramm

Alles Wissenswerte zur Weiterbildung in einem PDF zusammengefasst.

Studienprogramm  herunterladen

Alles Wissenswerte zu deiner Weiterbildung in einem PDF zusammengefasst

  • Detaillierter Lehrplan zu allen Studiengängen
  • Alle wichtigen Hintergrundinfos zu Ausbildungszielen, Teilnehmerkreisen, Aufnahmebedingungen und weiterführenden Studiengängen

Leider ist ein Fehler aufgetreten. Bitte versuche es erneut oder nimm mit uns direkt Kontakt auf.

Gratis E-Book für dich

Weiterbildung neben Beruf und Freizeit - schaffe ich das?

Eine Weiterbildung beansprucht Zeit. Deshalb auf Freunde, Familie und Hobbies zu verzichten, muss nicht sein.

Lies jetzt unser E-Book mit 10 wertvollen Tipps zur Work-Life-Learn-Balance.

Weiterbildung neben Beruf und Freizeit – schaffe ich das?

10 Tipps zur Work-Life-Learn-Balance

Eine Weiterbildung beansprucht Zeit. Deshalb auf Freunde, Familie und Hobbies zu verzichten, wäre falsch.

In diesem E-Book erfährst du:

  • wie du deine Zeit effizienter nutzt
  • wie du dich trotz Weiterbildung genügend Freizeit bewahrst
  • wie sich Beruf, Weiterbildung und Freizeit gegenseitig ergänzen statt konkurrenzieren können

Tipps aus dem Inhalt

  • TIPP 1: Gestalte deine Arbeit so flexibel wie möglich!
  • TIPP 2: Beziehe Arbeitgeber sowie Kollegen und Kolleginnen in deine Weiterbildungspläne mit ein!
  • TIPP 3: Arbeite effizienter und effektiver mit Zielorientierung!
  • TIPP 4: Entwickle deinen idealen Lernrhythmus!
  • TIPP 5: Lerne mit System und festen Strukturen!
  • TIPP 6: Schaffe genug Ausgleich und Entspannung!
  • TIPP 7: Binde deine/n Partner/in, deine Familie und externe Hilfen in deine Planung ein!
  • TIPP 8: Belohne dich für deine Erfolge!
  • TIPP 9: Mach eine Zeitinventur!
  • TIPP 10: Erstelle eine Zeitplanung aller drei Bereiche!

Leider ist ein Fehler aufgetreten. Bitte versuche es erneut oder nimm mit uns direkt Kontakt auf.