Diplomarbeit 2024
Neubau MFH mit Gewerbe Horw
Unter Berücksichtigung der geltenden Bauvorschriften soll ein Mehrfamilienhaus mit Einstellhalle und Gewerbe im Erdgeschoss erstellt werden. Hauptkriterium sind eine gute Rendite, sowie ein geringer Unterhalt.
Ausgangslage
Im Rahmen der Diplomarbeit soll ein bestehendes Mehrfamilienhaus mit Gewerbeteil abgebrochen und anschliessend ein Neubau erstellt werden. Das Studienobjekt befindet sich in Horw im Kanton Luzern. Die Arbeit umfasst alle Leistungen von der strategischen Planung über die Ausführungsplanung bis zur Wirtschaftlichkeitsberechnung.
Die ursprüngliche Nutzung im Gewerbe, nämlich eine Autolackierwertstatt, soll dabei erhalten bleiben. Der Neubau soll so gebaut werden, dass ein gestalterisch, konstruktiv und wirtschaftlich überzeugendes Projekt entsteht. Das Erzielen einer angemessenen Rendite ist für die Eigentümerin zentral. Das Gebäude soll zudem im Unterhalt und betreffend Renovationen möglichst ressourcenschonend sein.
Projektbeschrieb
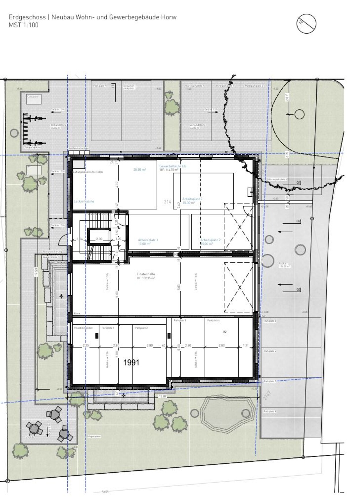
Gemäss Aufgabenstellung wurde im Erdgeschoss eine Einstellhalle und die Werkstatt zur Autolackiererei geplant. Aufgrund der Platzverhältnisse befinden sich Büro, Lager und Sanitäranlagen des Gewerbes im Untergeschoss. In den Obergeschossen sind 9 Wohnungen vorgesehen. Das Highlight sind sicherlich die beiden Maisonettewohnungen im Attikageschoss.
Fassadenfarbe ist ein helles graubraun. Schlichte Akzente werden durch die anthrazitfarbenen Metallteile wie Fenster, Geländer und Dachrand gesetzt. Um einen Kontrast zu setzen, sind die Markisentücher in weinrot. Wie im Aussenbereich sind auch im Innenbereich Metallteile wie Handlaufkonsolen, Lampen und Liftfronten in RAL 7016 anthrazit. Ein Blickfang sind die runden Handläufe aus massivem Eichenholz mit Schwarzanteil.
Wirtschaftlichkeit
Die Kosten des Gesamtprojektes belaufen sich inkl. dem Grundstückspreis von CHF 2'100'000.- auf total CHF 7'650'000.-
Die Wohnungen ergeben einen Ertrag von 228‘000.- Franken. 40‘250.- Franken im Jahr bringt das Gewerbe ein.
Zusammen mit Hobbyräumen und Parkplätzen wird pro Jahr ein Bruttoertrag von rund CHF 291‘000.- erwirtschaftet, was rund 3.9% Bruttorendite entspricht. Nach Abzug von Rückstellungs- und Bewirtschaftungskosten von jährlich rund CHF 80'000.- kann so eine Nettorendite von 2.73% ausgewiesen werden.

Christoph Henggeler
Diplomarbeit 2024 | Christoph Henggeler







