Projekt "PARADIESLI"
Diplomarbeit 2024 Elias Kabeya
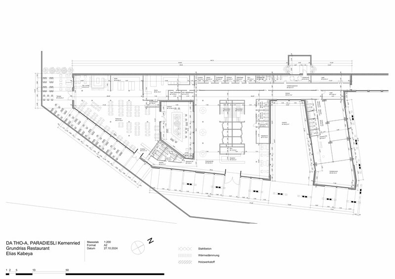
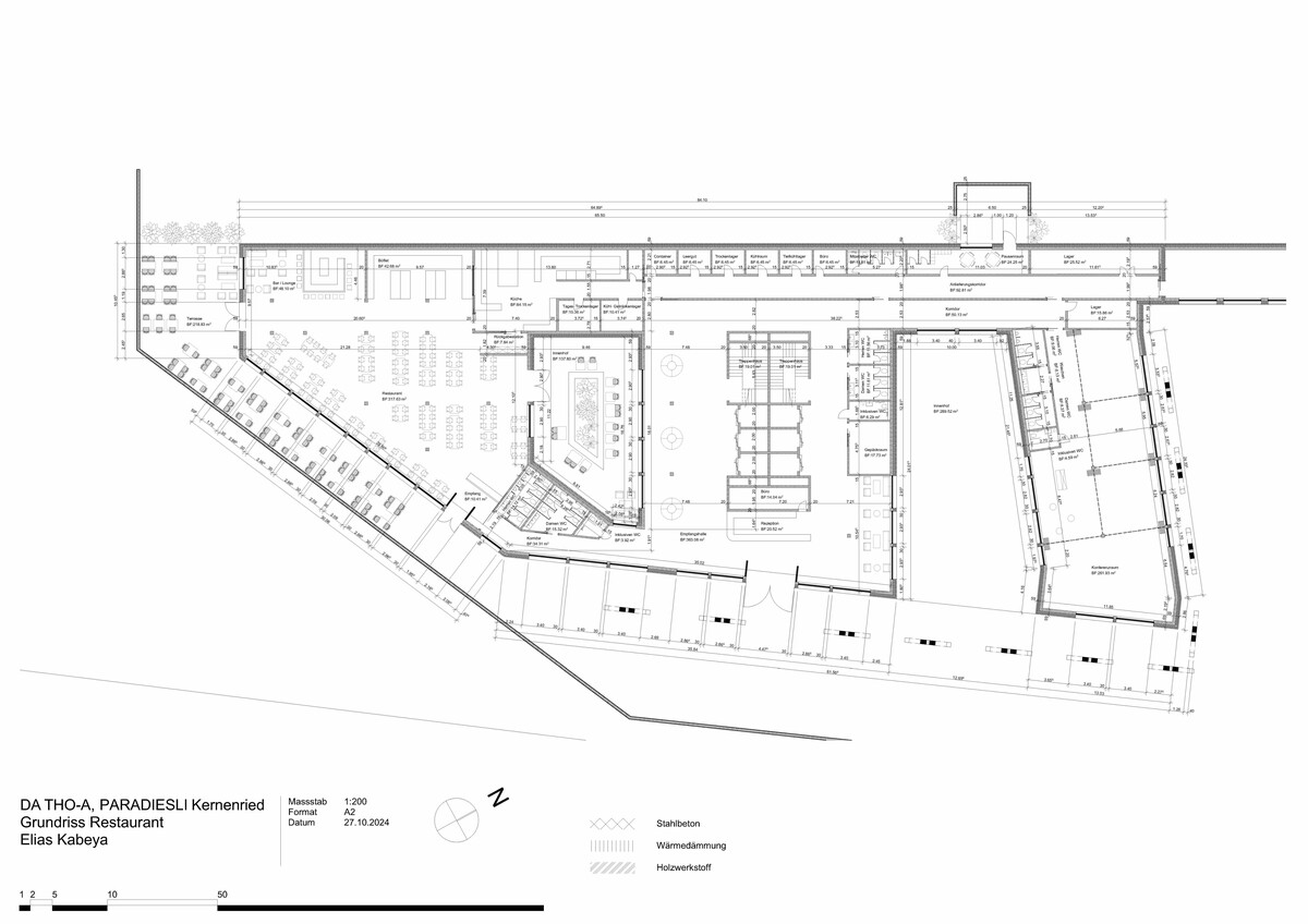
Das Projekt „Paradiesli“ befindet sich im südlichen Bereich des Lyssach Centers, zwischen der Autobahn A1 und der Bernstrasse. Ziel des Projekts ist die Planung zweier Neubauten, die das bestehende Angebot des Lyssach Centers erweitern und sowohl für Besucher als auch für Durchreisende attraktiver machen sollen. Im Mittelpunkt der Aufgabenstellung steht die Gestaltung der Fassaden der Neubauten sowie die Gestaltung des Aussenraums. Im südlichen Gebäude ist darüber hinaus die Planung eines Hotel-Erdgeschosses mit Restaurant und Mehrzweckraum vorgesehen. Eine besondere Herausforderung dieses Projekts liegt in der Balance zwischen grossen, stützenfreien Spannweiten und der Umsetzung technischer Details. Zusätzlich sind hohe Anforderungen an Energieeffizienz (Minergie-P-Anforderungen), rechtliche Vorgaben und Nachhaltigkeitskriterien zu berücksichtigen. Die Fassadengestaltung bekommt in diesem Projekt eine Schlüsselrolle zugesprochen. Die beiden Neubauten sollen in Ästhetik und Materialität harmonisch mit dem bestehenden Blickle-Gebäude korrespondieren. Es gilt, eine optische und funktionale Verbindung der drei Gebäude zu schaffen, die Eleganz, Nachhaltigkeit und Funktionalität vereint und eine langfristige Bestandssicherheit gewährleistet.
Entwurf Fassaden
Schlusswort

Elias Kabeya
Zusammenfassung DA
Eine Zusammenfassung meiner Diplomarbeit findet ihr hier:








