Erweiterung Paradiesli
Hotel und Sportanlage
Diplomarbeit 2024
Einleitung
Das Konzept für die Neubauprojekte eines Hotels und einer Sportanlage zeichnet sich durch eine innovative Fassadengestaltung und durchdachte Funktionalität aus. Die Gebäude, welche zwischen einer Autobahn und einer Kantonalstrasse liegen, heben sich durch ihre Fassaden klar von der Umgebung ab. Die Hotelfassade aus Holz schafft eine einladende Atmosphäre, während vertikale Metallteile die optische Wirkung auflockern. Die moderne Faserzementfassade der Sportanlage wird durch türkisfarbene Platten und Stahlseile ergänzt, welche visuelle Akzente setzen.
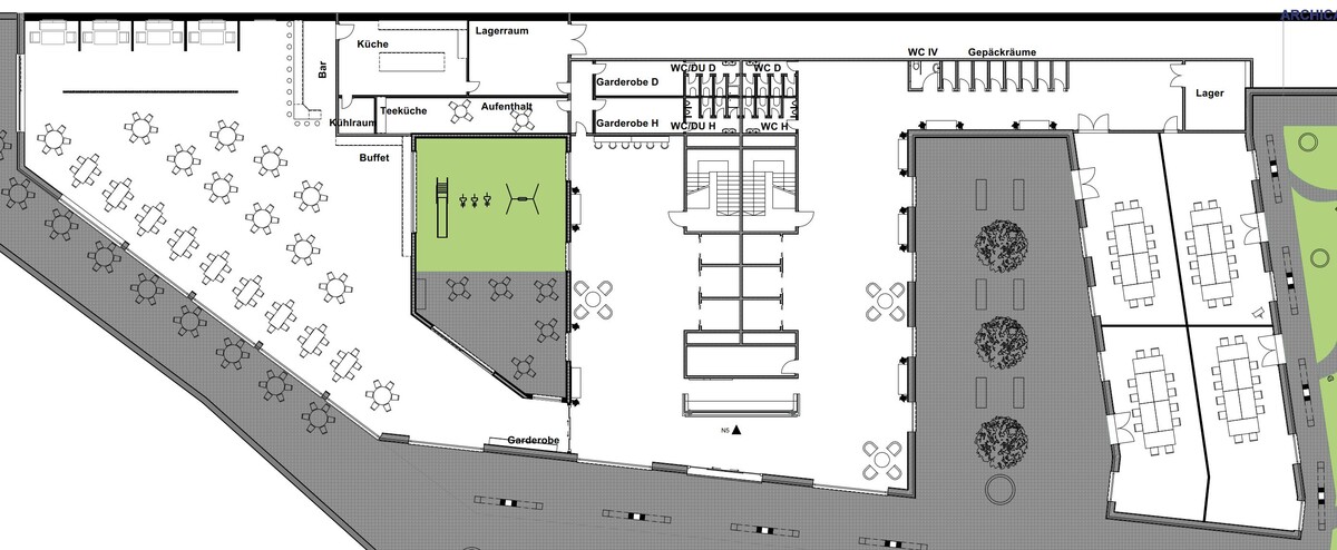
Der Restaurantbereich kombiniert einen hellen Essbereich mit gemütlichen Lounges und bietet damit eine harmonische Balance für unterschiedliche Nutzungsszenarien. Die flexibel gestaltbaren Seminarräume sind ideal für Workshops und grosse Veranstaltungen.

Patrick Greber
Vom Maurer zum Hochbauzeichner bis hin zum Techniker. Dank meinen Ausbildungen kenne ich den Bau sowohl Praktisch als auch Theoretisch aus dem Büro.
greber97@gmail.com
+41796757204
Diplomarbeit 2024 Greber Patrick
Diplomarbeit 2024 Greber Patrick
Download Diplomarbeit










