Diplomarbeit 2024
Sport- und Eventhalle "Paradiesli"
In Kernenried ist die Realisierung des Projekts «Sport- und Eventhalle Paradiesli» geplant. Ziel meiner Diplomarbeit ist es, auf Basis einer bestehenden Bebauungsstudie gezielte Planungsvorschläge und Entscheidungshilfen für den Investor zu erarbeiten – von Entwurf und Detailplanung bis hin zur Kosten- und Wirtschaftlichkeitsanalyse.
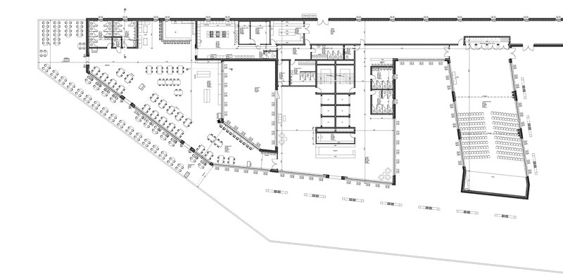
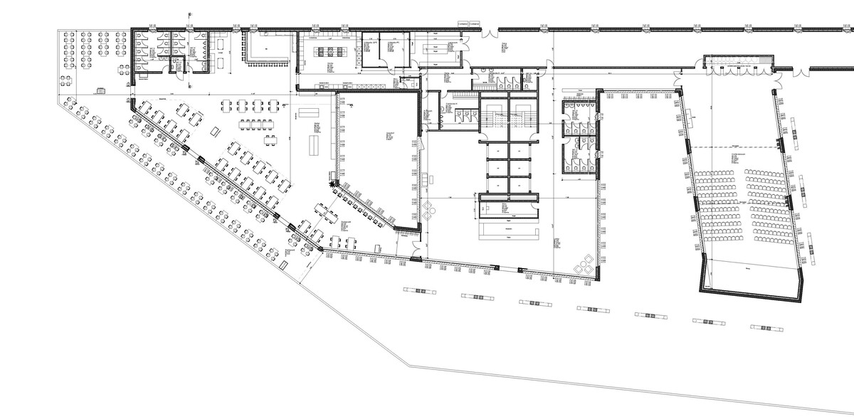
Entwurf und Aussenraumgestaltung
Der Grundriss vereint Funktionalität und Ästhetik, mit effizienten Arbeitsabläufen für das Personal und einer einladenden Atmosphäre für die Gäste. Der Aussenbereich bietet viel Platz zum Verweilen und nutzt Pflanzen, um von der unmittelbaren Umgebung zwischen Autobahn und Nationalstrasse abzulenken. Auch im Aussenraum bleibt die Funktionalität stets im Vordergrund.
Baustellenlogistik
Die Baustelle liegt zwischen einer Autobahn und einer Nationalstrasse, was besondere Anforderungen an die Logistik stellt. Um den Bauablauf störungsfrei zu gestalten, kommen mehrere Kräne und eine Überdeckung der Strasse zum Einsatz. Eine sorgfältig geplante Baustellenorganisation sorgt dafür, dass Material sicher und effizient bereitgestellt wird.
Gebäude Süd und Gebäude Mitte sollen parallel erstellt werden. Insgesamt rechne ich mit einer Bauzeit von ca. 3 Jahren.
Konstruktion und Statik
Die Tragekonstruktion besteht aus massivem Beton, während die Decken der Hallen als Holz-Beton-Verbundsystem (HBV) ausgeführt sind. Dieses System ermöglicht grosse Spannweiten und löst das Schallproblem durch die Masse des Betons. Im Vergleich zu Stahlbetondecken reduziert HBV den Verbrauch von Stahl und Beton und bietet durch das im Holz gespeicherte CO2 eine nahezu klimaneutrale Lösung. Für die Dämmung habe ich Steinwolle gewählt, die gute Dämmeigenschaften bietet und nachhaltig ist. Die Fassade besteht aus einer hinterlüfteten Konstruktion mit wartungsfreundlichen und langlebigen Recycling-Aluminiumpaneelen.
Haustechnik
Die Haustechnik ist integraler Bestandteil der nachhaltigen Bauweise. Eine Photovoltaikanlage auf dem Dach versorgt das Gebäude mit Energie, wodurch Eigenverbrauch und Wirtschaftlichkeit gesteigert werden.
Kostenermittlung und Wirtschaftlichkeit
Das gesamte Projekt würde ca. 194 Mio. kosten, wobei allein die Fassade des Gebäudes Mitte bereits 8.4 Mio. ausmacht.
Die Rückstellungen und den Unterhalt der Fassade habe ich insgesamt mit knapp 57'600.- berechnet.
Fazit
Die Diplomarbeit hat mir deutlich gemacht, wie wichtig es ist, von Anfang an vorausschauend zu planen. In manchen Phasen hätte es geholfen, früher auf Details zu achten und sich nicht im Entwurf zu verlieren. Diese Erkenntnis werde ich in künftigen Projekten nutzen, da sich so Zeit und Aufwand sparen lassen.
Nach einer intensiven und lehrreichen Zeit bin ich stolz, meine Diplomarbeit abzuschliessen, und freue mich auf kommende Herausforderungen in der Arbeitswelt. Wer weiss, vielleicht war dies nicht das erste und letzte Grossprojekt, an dem ich in der Planung mitwirken konnte.

Eva Nebiker
Hier kann meine gesamte Diplomarbeit heruntergeladen werden
Download Diplomarbeit










