Sport- und Eventhalle "Paradiesli"
Planung zweier Neubauten neben einem bestehenden Gewerbepark
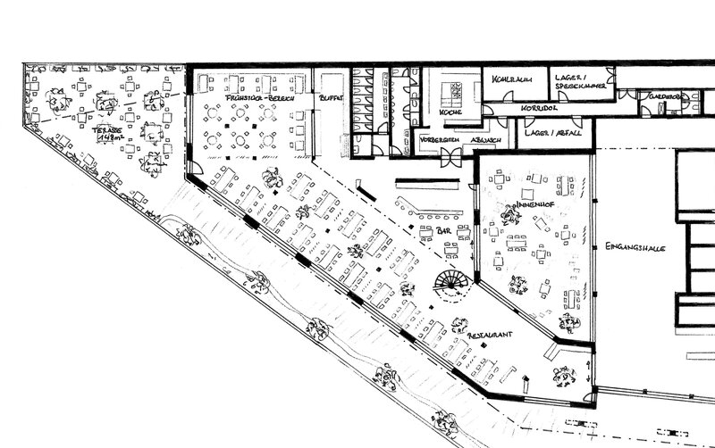
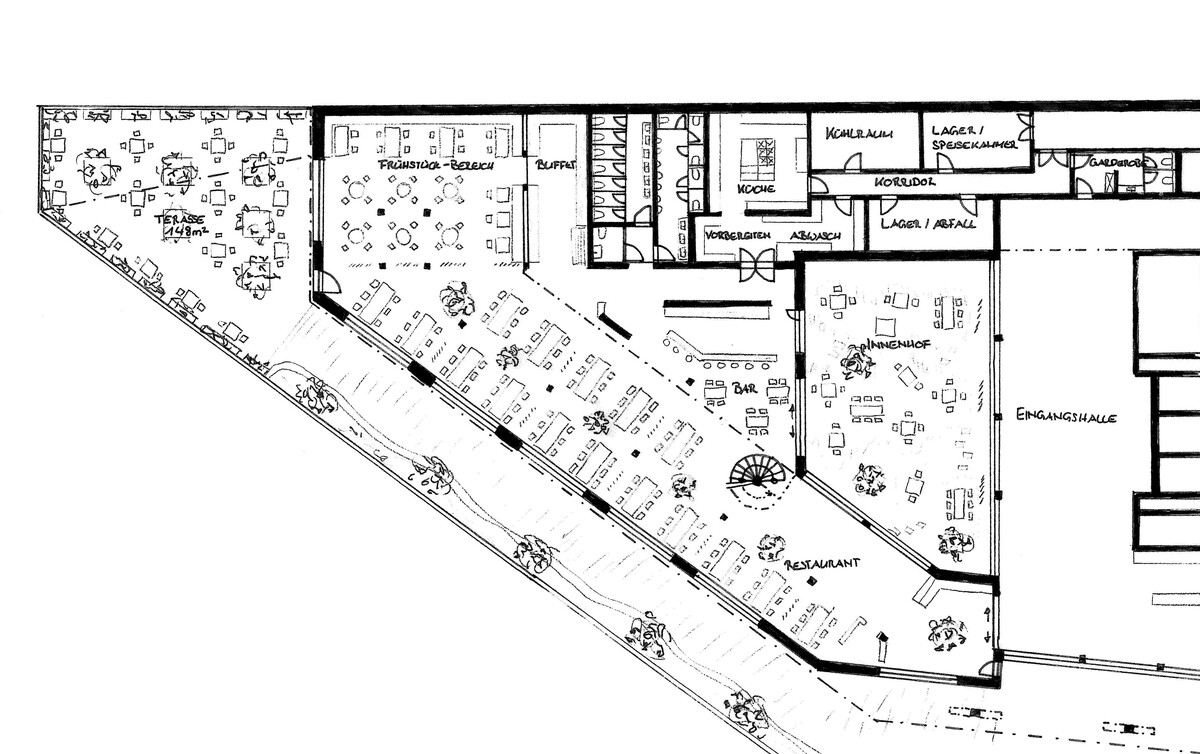
Als Erweiterung des bestehenden Gewerbeparks «Paradiesli» sollen ein Sportzentrum und ein Hotelkomplex an der A1 in Lyssach entstehen. Meine Diplomarbeit widmet sich der nachhaltigen und ressourcenschonenden Gestaltung der Fassaden, der Umgebung sowie des Innenraums des Restaurants im Hotelgebäude. Mit Blick auf Funktionalität und Ästhetik zeigt diese Arbeit, wie Architektur im Einklang mit Umweltanforderungen stehen und ein harmonisches Gesamtbild schaffen kann.
Überblick
Schlusswort

Fabienne Hurschler
_Zeichnerin EFZ Fachrichtung Architektur_ kreativ-engagiert-zuverlässig
fabienne.hurschler@hotmail.com
Auszug Diplomarbeit 2024
In dieser Datei finden Sie einen Auszug aus meiner Diplomarbeit. Bei Interesse können Sie gerne die vollständige Arbeit bei mir anfordern.








