Wohnen am Mettlenbächli
Sunneweg, Niederdorf BL
Grundstückentwicklung während einer Fahrt mit der Waldenburgerbahn.
Ausgangslage
Für eine Parzelle am Dorfrand in Niederdorf soll ein Projekt entwickelt werden, dessen Nutzung marktfähig sein soll.
Die Parzelle steht in einer W2-Zone und wird durch eine Gewässerschutzzone in zwei Teile getrennt. In der durchgeführten Marktanalyse stellte sich heraus, dass eine Wohnnutzung unerlässlich ist. Es wurden Wohnungen mit 2.5 und 3.5 Zimmern entworfen, welche eine Zielgruppe bestehend aus Einzelpersonen, paaren und kleinen Familien ansprechen soll.
Projekt
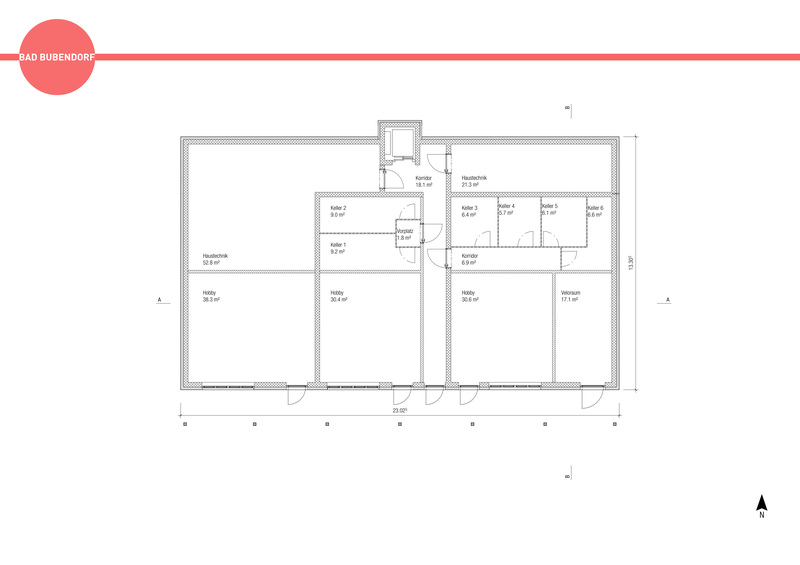
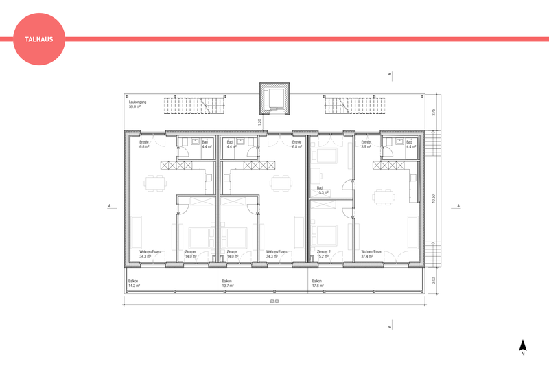
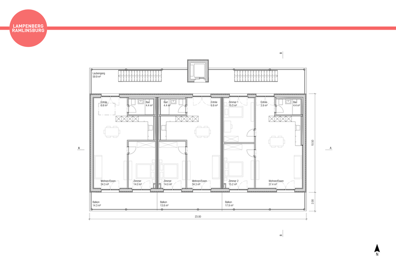
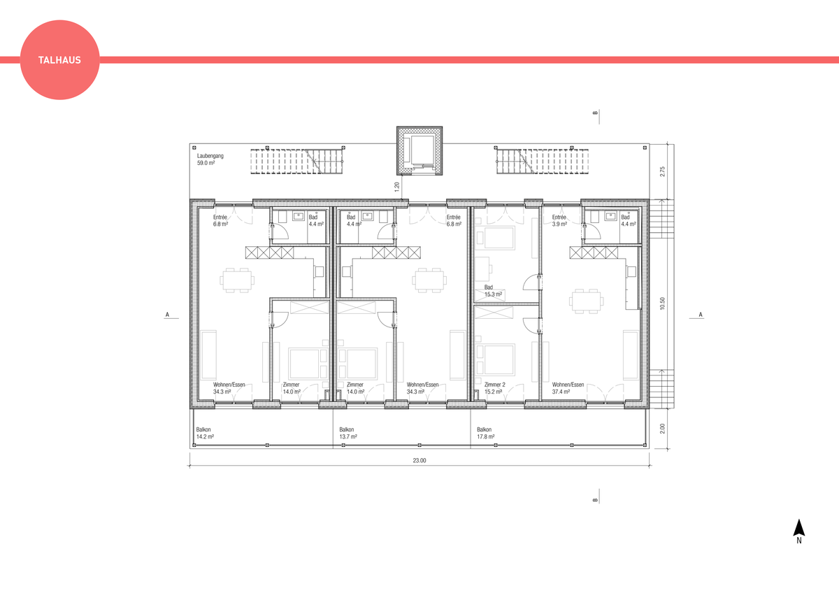
Das Projekt setzt sich aus vier gleichen Baukörper zusammen, welche jeweils über Laubengänge erschlossen werden. Zwei Häuser sind mit einer Einstellhalle verbunden. Die zwei anderen Häuser bieten grössere Hobbyräume im Sockelgeschoss.
Konstruktion
Die Konstruktion der Häuser ist identisch. Das Untergeschoss soll betoniert werden und darauf soll ein Holzelementbau gestellt werden. Die Laubengänge und Balkone werden als Holzskelett-Konstruktion mit geschlossenen Decken erstellt.
Statisches Konzept
Es ist eine Ausführung als Schottenbau geplant, wobei die tragenden Schotten vom UG bis zum OG übereinander stehen, um eine ideale Lastabtragung zu gewährleisten. Die Schotten und die Aussenwände bilden eine steife Kiste. Die Laubengänge und Balkone sollen mit dem Liftschacht und Kreuzstreben ausgesteift werden.
Haustechnik
Die Haustechnik soll additiv hinzugefügt und über eine Steigzone pro Wohnung geführt werden. Diese soll sich beim Bad und bei der Küche befinden und wird die Gewerke Heizung, Lüftung, Sanitär und Elektro führen. Die Elektroinstallation wird über einen Querrost in der Decke und den Installationsraum an den Wänden erfolgen.
Kosten
Die Anlagekosten der Überbauung werden sich auf ca. 16 Millionen Schweizerfranken belaufen.
Material- & Farbkonzept
Das gewählte Material- und Farbkonzept soll den Holzbau spür- und sehbar machen. Die Fassaden sollen aus einer vertikalen, vorvergrauten Holzschalung in Kombination mit schwarzen Holz-Metallfenster sein. Der Innenraum wird in den zwei Materialien Weisstanne und Weissputz gestaltet werden. Die Wände sollen in Weissputz sein und die Decken, Böden und die Fenster sind aus Weisstanne oder Weisstannen Immitat.

















