DIPLOMARBEIT
2024
Die Diplomarbeit 2024 bestand darin einen Ersatzneubau mit Wohn- und Gewerbenutzung auf der Liegenschaft Kantonsstrasse 20/22 in 6048 Horw (Luzern) zu planen.
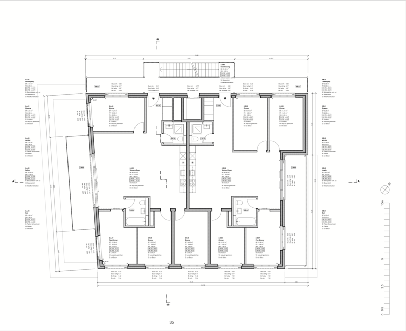
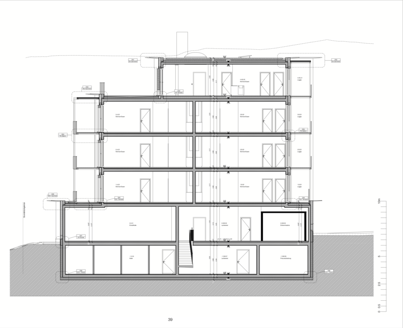
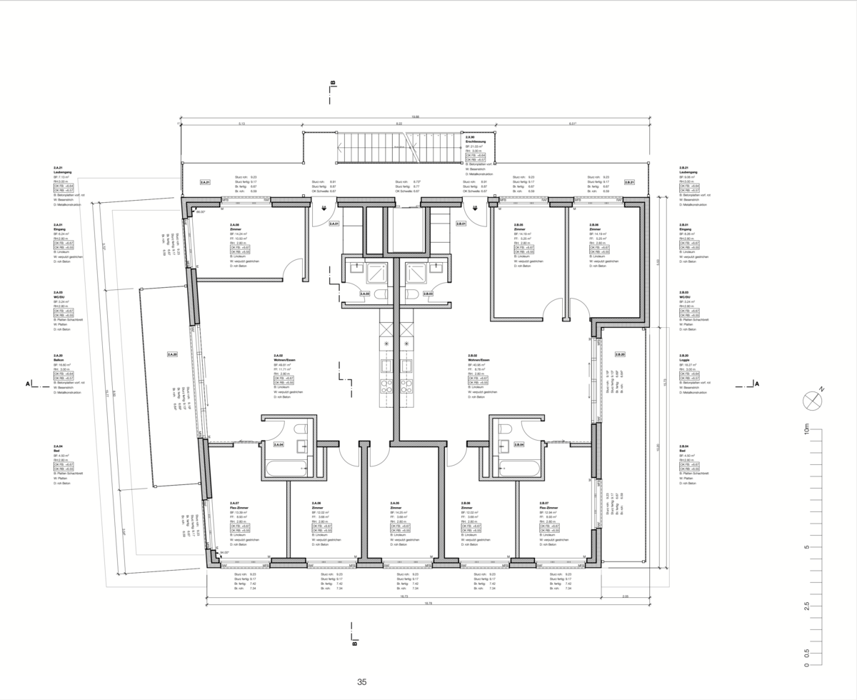
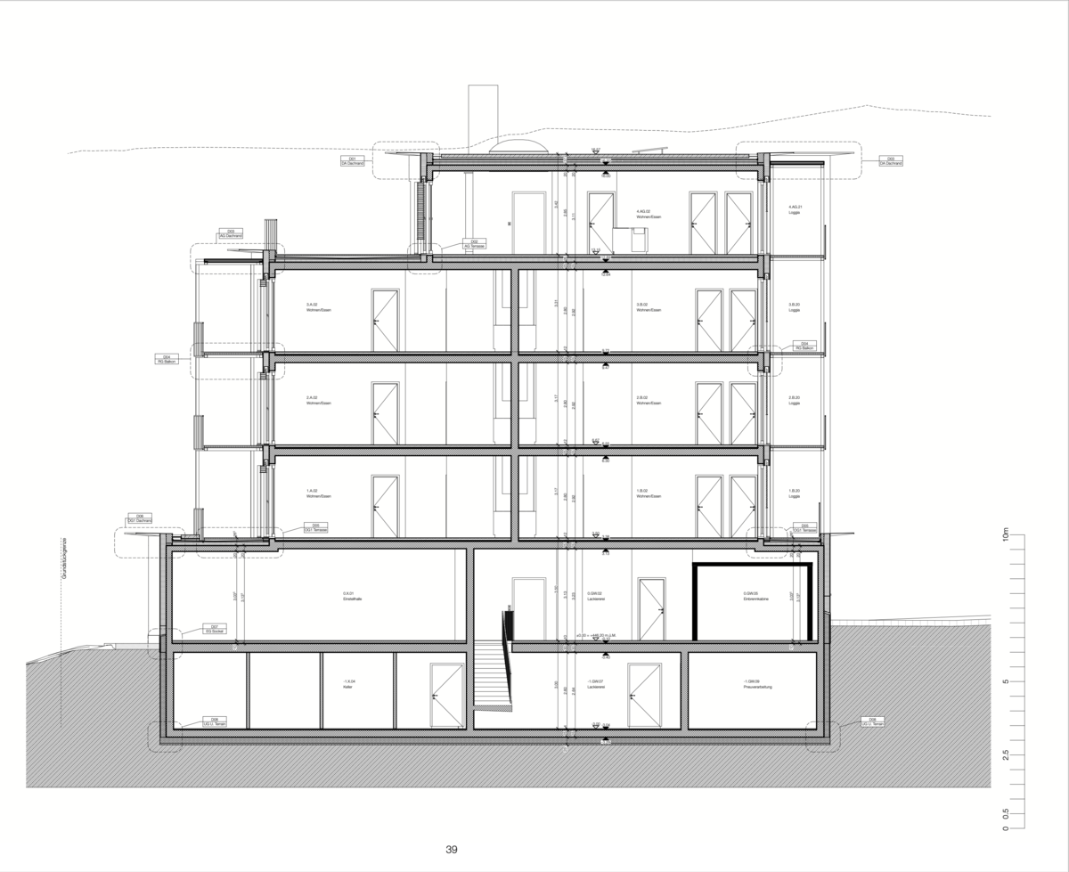
Es sollte ein Renditeobjekt in Form eines MFH erarbeitet werden, mit einer Autolackiererei und der Einstellhalle im Erdgeschoss sowie Wohngeschossen darüber.
Ich habe ein Massivbau mit einem Unter-, vier Voll und einem Attikageschoss entworfen. In den drei Regelgeschossen sind jeweils zwei 5.5 Zimmer Wohnungen, für die Eigentümer:in ist die Attikawohnung vorgesehen.
Das Herzstück der Überbauung ist die kastanienrote, pulverbeschichtete Metallkonstruktion des Treppenturms.
Diese gibt dem Gebäude, welches ansonsten durch die verputzte seidengrauen Fassade mit Besenstrich dezent gehalten ist, einen aufregenden Charakterzug.
Die Begrünung an Gitternetzen aus einheimischen Efeu und Hopfen haben eine gegenteilige beruhigende Wirkung und ergeben so eine stimmige Balance.
Die Wohnungen zeichnen sich durch ihre freiräumige Struktur und grosszügige Balkone sowie einen günstigen Mietzins aus.











