Umnutzung eines Gewerbegebäudes in Biel
Diplomarbeit 2020 | TEKO Bern
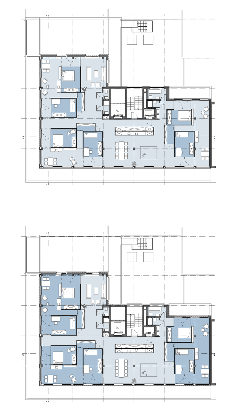
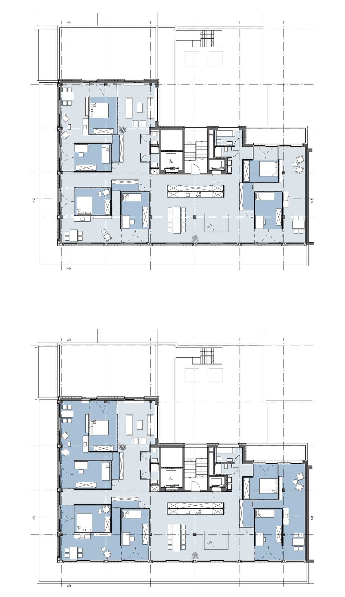
DAS GEBÄUDE Das ehemalige Verkaufshaus Möbel Pfister, wurde 1968 als klassisches Gewerbegebäude erbaut. Der klare Stützenraster ermöglichte die Fassade mit durchgängigen Glasbänder zu versehen. Das komplett verglaste Erdgeschoss dient als Verkaufsfläche. Die restliche repräsentative Fassade gegen den Neumarktplatz, sowie die Mittelstrasse, erhält seine Struktur durch die Stockwerkbänderung. Das Gebäude mit dem zurückspringenden Attikageschoss, erhält durch die transparente Brüstung, sowie dem auskragenden Brise- Soleil einen markanten Abschluss. Das Gebäude ist auf Grund seiner prominenten Lage stadtbildrelevant und deshalb von Denkmalpflegerischer Bedeutung. Zweiseitig an andere Gebäude grenzend, bildet es die Ecke einer Blockrandbebauung im Zentrum von Biel. AUSGANGSLAGE Die bestehend Nutzflächen in ihrer Menge entsprechen nicht mehr der Marktlage, weshalb es das Gebäude mit neuen Nutzungen auszustatten gilt. Die Marktanalyse wurde seitens Aufgabensteller erstellt, woraus sich folgende Nutzungen für dieses Gebäude und diesen Standort als erfolgversprechend rauskristallisierten. - Gemeinschaftspraxen - Kleinbüro - Business- und Studentenhotel - Wohnen Es gilt im Projekt durch eine verfeinerte Analyse, die geforderten Nutzungen mit entsprechenden Flächenanteilen und einer flexiblen Grundrissgestaltung zu versehen. Dabei gilt es die Gebäudehülle energetisch zu sanieren, sowie die haustechnischen Anlagen zu ergänzen oder erneuern.
PROJEKT

Philipp Hirschi
Diplomarbeit 2020 | Philipp Hirschi
Download Diplomarbeit





