Dipl. Techniker/in HF Bauplanung Architektur

Gewerbegebäude in Biel

Diplomarbeit 2020: Umnutzung eines Gewerbegebäudes in Biel

Thematik: Bei der Aufgabenstellung der Diplomarbeit handelt es sich um eine Umnutzung eines bestehenden Gewerbegebäudes in Form eines Umbaus und grundrisstechnische Einteilungen, welches dieses Jahr das Gewerbegebäude in Biel am Neumarktplatz ist. Der Umfang der Diplomarbeit ist wie folgt Entwurf, Konstruktion, Bauphysik, Haustechnik, Kostenermittlung, Wirtschaftlichkeit und Farb- und Materialkonzept. Das Ziel dieser Diplomarbeit ist ein Projektentwurf im konkreten Nutzungsanforderungen und mit der entsprechenden Wirtschaftlichkeit vorzuweisen. Mit dem Erarbeiten dieser Diplomarbeit erbringen die Diplomanden den Nachweis, dass sie selbstständig eine Projektierung sowohl gestalterisch, konstruktiv als auch wirtschaftlich durchdacht umzusetzen können.

28. Oktober 2020
Süleyman Besken

Management Summary


Ausgangslage:

Beim Studienobjekt handelt es sich um ein klassisches Gewerbegebäude der 70-er Jahre, aufgebaut auf einem Stützenraster, mit grossen Glasfassaden im Erdgeschoss, Fensterbändern mit Brüstungen in den Obergeschossen sowie einem Attikageschoss mit Flachdach. Die Liegenschaft verfügt über einen rückseitigen Hofbereich, ist zweiseitig angebaut und grenzt an zwei Seiten an den öffentlichen Raum. Die zentrale Lage gleich neben dem Neumarktplatz macht den Standort generell attraktiv, was auch an den gut zu vermietenden Flächen im Erdgeschoss spürbar wird. Die oberen Geschosse mit den bestehenden Grossraumbüros sind jedoch nicht mehr so gefragt und entsprechend schwierig zu vermieten. Die Gebäudehülle stammt mehrheitlich noch aus der Bauzeit und entspricht nicht mehr den geltenden Wärme- und Schallschutzanforderungen. Das Gebäude ist infolge der prominenten Lage stadtbildrelevant und deshalb von denkmalpflegerischer Bedeutung Die Liegenschaft muss teilweise einer neuen Nutzung zugeführt werden, um am örtlichen Markt bestehen zu können. Die Nutzungen im Erdgeschoss bleiben bestehen, während für die Obergeschosse folgende neue Nutzungen festgelegt werden: Kleinbüros, Gemeinschafts-Arztpraxen sowie Business- und Studentenhotel. Die Gewerberäume im Attikageschoss sollen neu einer Wohnnutzung weichen.
Gleichzeitig sind die haustechnischen Installationen anzupassen bzw. zu erneuern und auf die neuen Nutzungen abzustimmen. Zudem ist die Gebäudehülle mit denkmalpflegerischer Sorgfalt zu sanieren.

Vorgang:

Die ganze Arbeit begann mit der Begehung vor Ort. Wo steht das Gebäude? Wie sieht es aus? Wie sehen die Nebenbauten aus? Wie ist die Konstruktion aufgebaut? Was für Anforderungen sind gefragt? Dies waren einige Fragen, die ich mich an diesem Tag gefragt habe.
Da keine Marktanalyse angefordert wurde, habe ich mich auf die Aufteilungen der Nutzung fokussiert.
Bei der Aufteilung habe ich die nutzungsspezifischen Anforderungen geprüft und habe die Aufteilung wie folgt vorgenommen. Im ersten Obergeschoss mit vielen Kleinbüros, im zweiten und dritten Obergeschoss das Studenten-/ Businesshotel mit den jeweiligen Anforderungen, im vierten und fünften Obergeschoss die Gemeinschaft Arztpraxen und zu guter Letzt in der Attika einige Wohnungen eingeteilt. Bei meiner Entscheidung die Hotels auf zwei Geschosse aufzuteilen, ging es mir dabei um die Nutzungen. Die Kriterien und Bedürfnisse sind verschieden und deshalb ist das Studentenhotel im zweiten Obergeschoss ist und das Businesshotel im dritten Obergeschoss.

Ergebnis:

Das Ergebnis meiner Diplomarbeit ist ein modernes architektonisches Gebäude mit einer hinterlüfteten Fassadenkonstruktion. Von einem alten Gebäude aus den 70er Jahren ist ein 7 geschossiges Gebäude mit 6 Nutzungen entstanden. Das Gebäude ist wie folgt aufgeteilt im Erdgeschoss mit den bestehenden Geschäftsnutzungen, im ersten Obergeschoss mit vielen Kleinbüros, im zweiten Obergeschoss das Studentenhotel, im dritten Obergeschoss das Businesshotel, im vierten und fünften Obergeschoss sind verschiedene Gemeinschaft-Arztpraxen ausgerichtet und in der Attika befinden sich drei Wohnungen mit der Aufteilung 2.5 Zimmer, 4.5 Zimmer und mit 5.5 Zimmer. Durch den Umbau sind die HLKS auf neuere Technikstandart gebracht worden.

Nutzungen


Erdgeschoss: 

Bestehende Geschäfte und Eingangsbereich

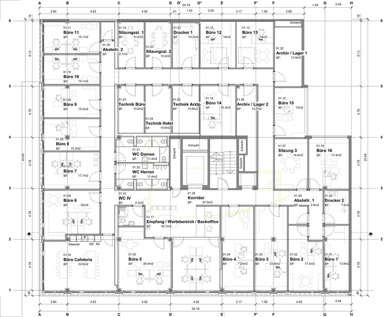
Erstes Obergeschoss Kleinbüros: 

16 Kleinbüros 14m2 - 26m2

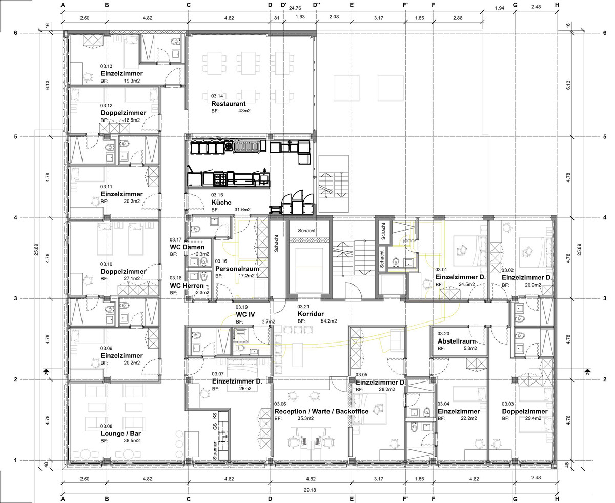
Zweites Obergeschoss Studentenhotel: 

5 Einzelzimmer 19m2 – 24m2
6 Doppelzimmer 19m2 – 35m2
3 Dreibettzimmer 31m2 – 35m2
Terrasse 38m2

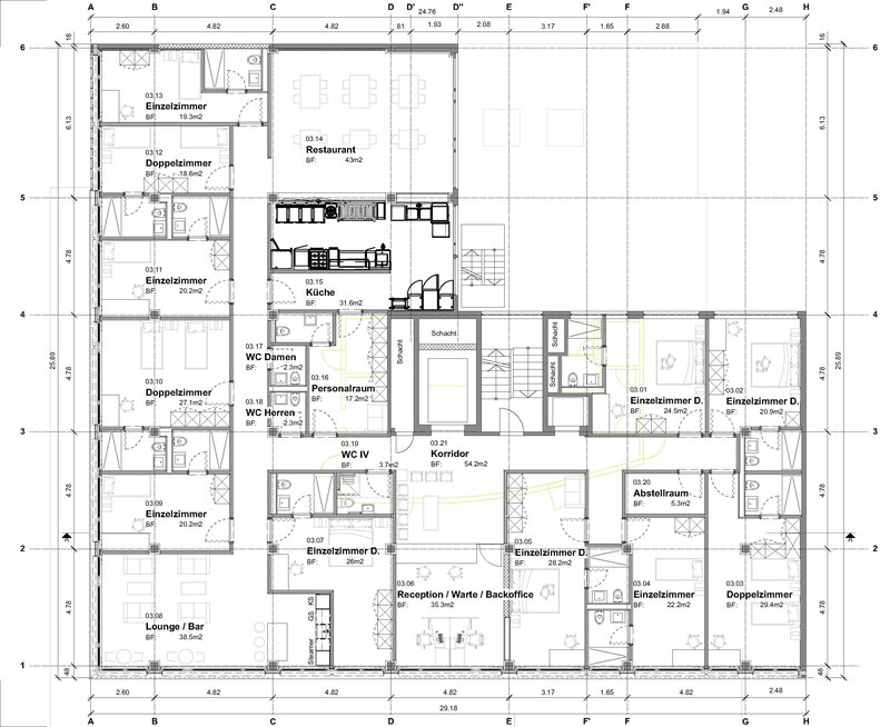
Drittes Obergeschoss Businesshotel: 

4 Einzelzimmer 19m2 – 22m2
3 Doppelzimmer 19m2 – 29m2
4 Einzelzimmer Doppelbett 21m2 – 28m2
Hotelrestaurant 43m2

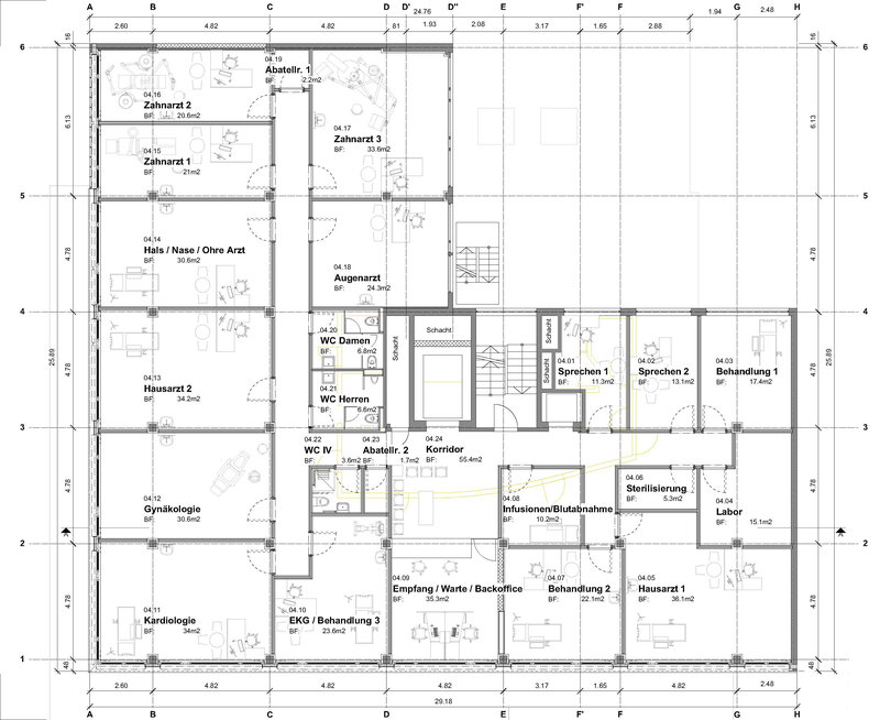
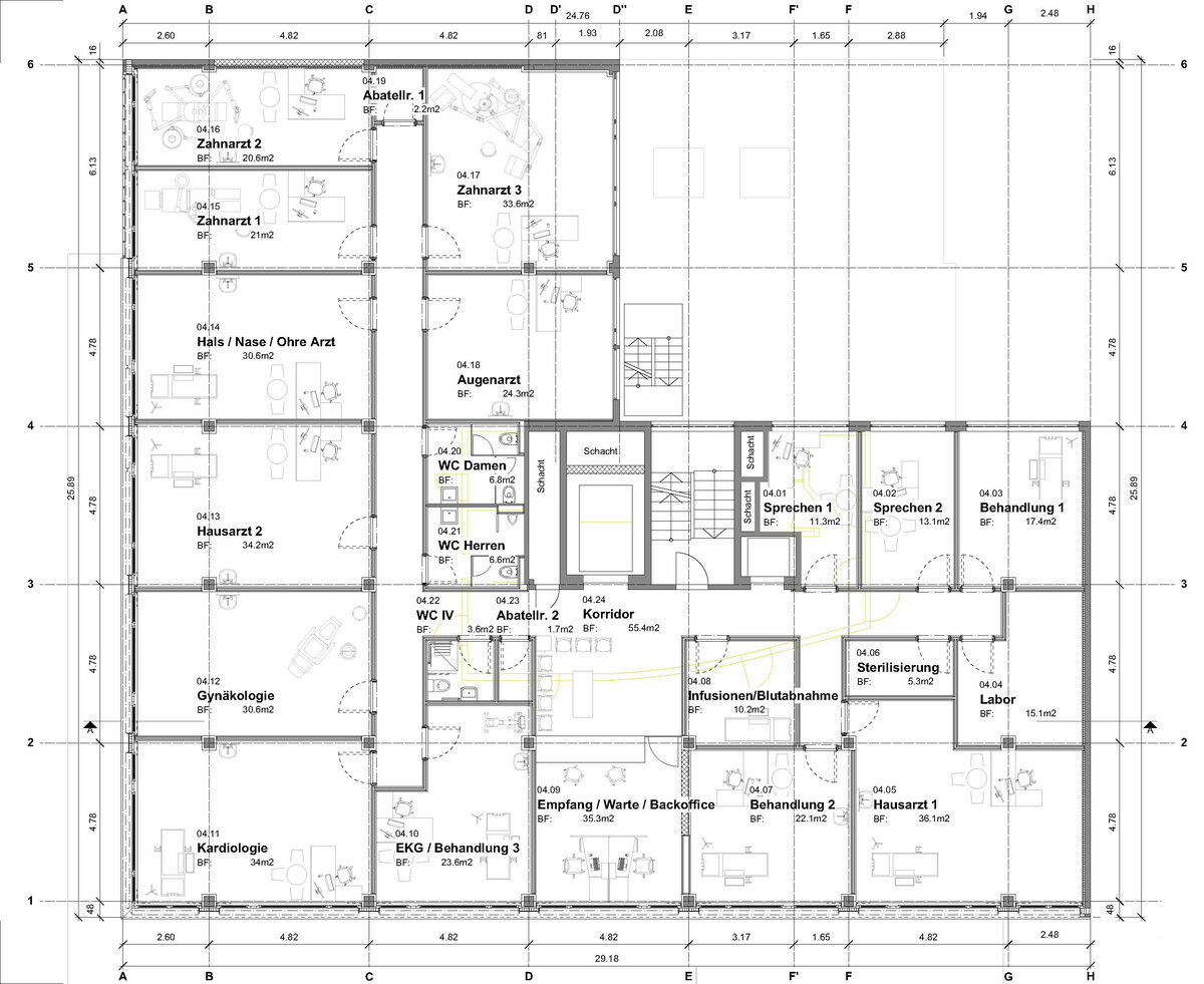
Viertes- Fünftes Obergeschoss Gemeinschafts-Arztpraxen: 

31 Arztpraxisräume 5m2 – 35m2

Attika Wohnungen:

Wohnung 1 – 4.5 Zimmer 108m2 + Dachgarten Terrasse 29m2
Wohnung 2 – 2.5 Zimmer 51m2 + Dachgarten Terrasse 16m2
Wohnung 3 – 5.5 Zimmer 128m2 Dachgarten Terrasse 98m2

Portrait

Süleyman Besken

Meine Ausbildung als Zeichner Fachrichtung Architektur, bei der Firma SAM Architekten und Partner AG, habe ich im August 2016 abgeschlossen. Danach wechselte ich zu dem Büro PRO Architekten GmbH in welches ich für 2 Jahren (Dez. 16 - Dez. 18) als Haubauzeichner tätig war. Um mir neue Herausforderungen zu suchen ging ich zu der Firma Florian Voemel Architekten AG. Ich arbeite für die Florian Voemel Architekten AG seit Februar 2019 als Techniker HF in Ausbildung.


suleymanbesken@gmail.com

Weiterbildung neben Beruf und Freizeit

Gratis E-Book mit 10 Tipps zur Work-Life-Learn-Balance

Weiterbildung neben Beruf und Freizeit – schaffe ich das?

10 Tipps zur Work-Life-Learn-Balance

Eine Weiterbildung beansprucht Zeit. Deshalb auf Freunde, Familie und Hobbies zu verzichten, wäre falsch.

In diesem E-Book erfährst du:

  • wie du deine Zeit effizienter nutzt
  • wie du dich trotz Weiterbildung genügend Freizeit bewahrst
  • wie sich Beruf, Weiterbildung und Freizeit gegenseitig ergänzen statt konkurrenzieren können

Tipps aus dem Inhalt

  • TIPP 1: Gestalte deine Arbeit so flexibel wie möglich!
  • TIPP 2: Beziehe Arbeitgeber sowie Kollegen und Kolleginnen in deine Weiterbildungspläne mit ein!
  • TIPP 3: Arbeite effizienter und effektiver mit Zielorientierung!
  • TIPP 4: Entwickle deinen idealen Lernrhythmus!
  • TIPP 5: Lerne mit System und festen Strukturen!
  • TIPP 6: Schaffe genug Ausgleich und Entspannung!
  • TIPP 7: Binde deine/n Partner/in, deine Familie und externe Hilfen in deine Planung ein!
  • TIPP 8: Belohne dich für deine Erfolge!
  • TIPP 9: Mach eine Zeitinventur!
  • TIPP 10: Erstelle eine Zeitplanung aller drei Bereiche!

Leider ist ein Fehler aufgetreten. Bitte versuche es erneut oder nimm mit uns direkt Kontakt auf.

Aktuelles Studienprogramm

Alles Wissenswerte zur Weiterbildung in einem PDF zusammengefasst.

Studienprogramm  herunterladen

Alles Wissenswerte zu deiner Weiterbildung in einem PDF zusammengefasst

  • Detaillierter Lehrplan zu allen Studiengängen
  • Alle wichtigen Hintergrundinfos zu Ausbildungszielen, Teilnehmerkreisen, Aufnahmebedingungen und weiterführenden Studiengängen

Leider ist ein Fehler aufgetreten. Bitte versuche es erneut oder nimm mit uns direkt Kontakt auf.

Gratis E-Book für dich

Weiterbildung neben Beruf und Freizeit - schaffe ich das?

Eine Weiterbildung beansprucht Zeit. Deshalb auf Freunde, Familie und Hobbies zu verzichten, muss nicht sein.

Lies jetzt unser E-Book mit 10 wertvollen Tipps zur Work-Life-Learn-Balance.

Weiterbildung neben Beruf und Freizeit – schaffe ich das?

10 Tipps zur Work-Life-Learn-Balance

Eine Weiterbildung beansprucht Zeit. Deshalb auf Freunde, Familie und Hobbies zu verzichten, wäre falsch.

In diesem E-Book erfährst du:

  • wie du deine Zeit effizienter nutzt
  • wie du dich trotz Weiterbildung genügend Freizeit bewahrst
  • wie sich Beruf, Weiterbildung und Freizeit gegenseitig ergänzen statt konkurrenzieren können

Tipps aus dem Inhalt

  • TIPP 1: Gestalte deine Arbeit so flexibel wie möglich!
  • TIPP 2: Beziehe Arbeitgeber sowie Kollegen und Kolleginnen in deine Weiterbildungspläne mit ein!
  • TIPP 3: Arbeite effizienter und effektiver mit Zielorientierung!
  • TIPP 4: Entwickle deinen idealen Lernrhythmus!
  • TIPP 5: Lerne mit System und festen Strukturen!
  • TIPP 6: Schaffe genug Ausgleich und Entspannung!
  • TIPP 7: Binde deine/n Partner/in, deine Familie und externe Hilfen in deine Planung ein!
  • TIPP 8: Belohne dich für deine Erfolge!
  • TIPP 9: Mach eine Zeitinventur!
  • TIPP 10: Erstelle eine Zeitplanung aller drei Bereiche!

Leider ist ein Fehler aufgetreten. Bitte versuche es erneut oder nimm mit uns direkt Kontakt auf.