Dipl. Techniker/in HF Bauplanung Architektur

DIPLOMARBEIT 2023

UMNUTZUNG STADTKIRCHE KLINGNAU

Die Stadtkirche St. Katharina in Klingnau dient als Studienobjekt der vorliegenden Diplomarbeit. Die Kirchengemeinde sieht sich mit rückläufigem Interesse und finanziellen Herausforderungen konfrontiert und sucht nach nachhaltigen Lösungsansätzen. Ein zentraler Gedanke ist die Umnutzung der Kirche und ihrer Umgebung. Die Lage inmitten der Altstadt von Klingnau, in unmittelbarer Nähe zum Bahnhof, ermöglicht eine bequeme Erreichbarkeit. Es ist wichtig zu betonen, dass keinerlei Eingriffe in die bestehende Bausubstanz der Kirche vorgenommen werden dürfen. Die Kirche soll jederzeit in ihre ursprüngliche Form zurückversetzt werden können. Auf dem grosszügigen Vorplatz der Kirche ist die Errichtung eines Neubaus geplant, der sich harmonisch in das historische Stadtbild einfügt und zugleich die Schönheit der alten Stadtkirche betont. Das übergeordnete Ziel besteht darin, die langfristige Existenz der Kirche zu sichern und gleichzeitig dem verlassenen Stadtkern neues Leben einzuhauchen.

25. November 2023
Michael Vogel

Umnutzung Kirche:

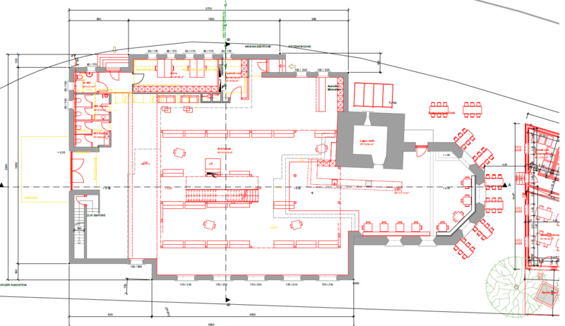
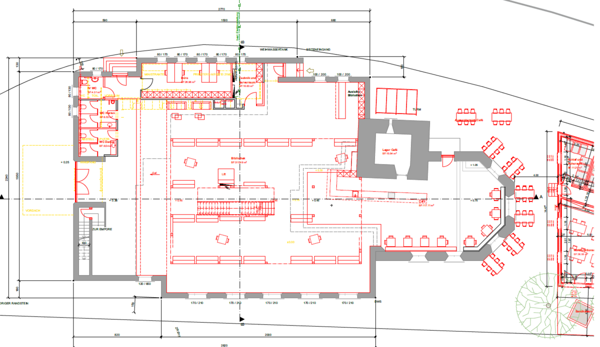
Die erarbeitete Idee sieht vor, die Regionalbibliothek der Gemeinde in die Kirche zu verlagern und weiter auszubauen. Durch eine Erweiterung und Spezialisierung auf verschiedene Themenbereiche soll die Bibliothek zu einem Anziehungspunkt für Interessierte über die Gemeindegrenzen hinaus werden. Im lichtdurchfluteten Chor der Kirche ist die Einrichtung eines öffentlichen Cafés geplant, das sowohl für Bibliotheksbesucher als auch für die Bewohner der Stadt einladend ist. Um den hohen Raum der Kirche optimal zu nutzen, ist die Implementierung eines mehrstöckigen Holzbaus im Kirchenschiff vorgesehen.
Im Erdgeschoss sind die Bibliothek, ein Café und ein Büro geplant. Die bestehenden Nasszellen werden umgebaut und erweitert. Im Obergeschoss bietet sich Platz für die Bibliothek und beherbergt einen durch Glaswände abgeschirmten Vorleseraum. Das oberste Geschoss ist für eine Buchhandlung vorgesehen. Aufgrund der begrenzten Lichtmenge durch die farbigen Kirchenfenster wurde bei den Holzimplantaten bewusst auf Wände verzichtet. Der Abstand der Holzböden zu den Aussenwänden sorgt für eine gleichmässige Verteilung des Lichts auf alle Etagen. Ein Staketengeländer rund um die Zwischenböden bildet den abschliessenden Rahmen. Die Erschliessung der beiden neuen Etagen erfolgt zentral über eine Treppe und einen Aufzug.
Alle Einbauten, mit Ausnahme der Nasszellen, lassen sich bei Bedarf rückstandslos entfernen, sodass eine zukünftige Nutzung als Kirche jederzeit möglich bleibt.


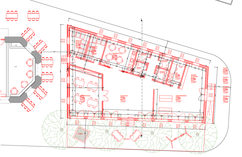
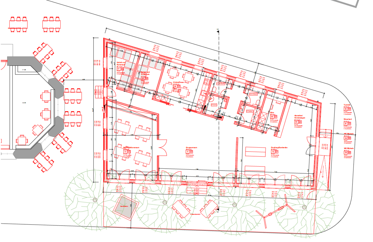
Neubau KITA:

Die Identifizierung des Bedarfs an zusätzlichen Betreuungsplätzen für Kleinkinder erfolgte durch eine gründliche Marktanalyse und Gespräche mit der lokalen Bevölkerung. Der Vorplatz der Kirche bietet sich optimal für den Bau einer Kindertagesstätte an, da er zentral gelegen und gut erreichbar ist. Ein weiterer Vorteil ist das geltende Tempolimit von 30 km/h und das geringe Verkehrsaufkommen in der Altstadt, was die Sicherheit der Kinder gewährleistet.
Das neue Gebäude wird auf der Südostseite der Kirche platziert und präsentiert sich als einstöckiger Holzelementbau mit Flachdach. Anstelle eines herkömmlichen Fundaments wird der Bau auf Schraubenfundamenten errichtet. Diese nicht nur kosteneffiziente, sondern auch umweltfreundliche Methode gewährleistet zudem, dass die Wurzeln der Bäume auf der Südseite des Kirchenplatzes unbeschadet bleiben. Unter diesen Bäumen ist der neue Aussenbereich für die Kindertagesstätte vorgesehen. Für ein ansprechendes Erscheinungsbild wird die Fassade des Gebäudes mit grossformatigen Eternitplatten in dezenten Farbtönen verkleidet.

Fazit:

Durch die künftigen Mieteinnahmen aus der umgenutzten Kirche und der neuen Kindertagesstätte können die hohen Unterhaltskosten der Kirche gedeckt werden, was eine Gesamtnettorendite von 2.2% ermöglicht. Somit ist der Erhalt der denkmalgeschützten Stadtkirche langfristig gesichert.
Das erweiterte Angebot der Bibliothek, die Buchhandlung und die Kindertagesstätte ziehen sowohl Gross als auch Klein in die Altstadt und beleben das Zentrum auf vielfältige Weise. Durch diese Aufwertung des Stadtkerns profitieren nicht nur die direkt involvierten Einrichtungen, sondern auch die umliegenden Geschäfte und Restaurants. Die Belebung des Stadtkerns trägt somit nicht nur zur kulturellen Vielfalt bei, sondern stärkt auch die wirtschaftliche Entwicklung der gesamten Umgebung.

Portrait

Michael Vogel

Schreiner EFZ / Bauleiter


michaelvogel725@gmail.com

Weiterbildung neben Beruf und Freizeit

Gratis E-Book mit 10 Tipps zur Work-Life-Learn-Balance

Weiterbildung neben Beruf und Freizeit – schaffe ich das?

10 Tipps zur Work-Life-Learn-Balance

Eine Weiterbildung beansprucht Zeit. Deshalb auf Freunde, Familie und Hobbies zu verzichten, wäre falsch.

In diesem E-Book erfährst du:

  • wie du deine Zeit effizienter nutzt
  • wie du dich trotz Weiterbildung genügend Freizeit bewahrst
  • wie sich Beruf, Weiterbildung und Freizeit gegenseitig ergänzen statt konkurrenzieren können

Tipps aus dem Inhalt

  • TIPP 1: Gestalte deine Arbeit so flexibel wie möglich!
  • TIPP 2: Beziehe Arbeitgeber sowie Kollegen und Kolleginnen in deine Weiterbildungspläne mit ein!
  • TIPP 3: Arbeite effizienter und effektiver mit Zielorientierung!
  • TIPP 4: Entwickle deinen idealen Lernrhythmus!
  • TIPP 5: Lerne mit System und festen Strukturen!
  • TIPP 6: Schaffe genug Ausgleich und Entspannung!
  • TIPP 7: Binde deine/n Partner/in, deine Familie und externe Hilfen in deine Planung ein!
  • TIPP 8: Belohne dich für deine Erfolge!
  • TIPP 9: Mach eine Zeitinventur!
  • TIPP 10: Erstelle eine Zeitplanung aller drei Bereiche!

Leider ist ein Fehler aufgetreten. Bitte versuche es erneut oder nimm mit uns direkt Kontakt auf.

Aktuelles Studienprogramm

Alles Wissenswerte zur Weiterbildung in einem PDF zusammengefasst.

Studienprogramm  herunterladen

Alles Wissenswerte zu deiner Weiterbildung in einem PDF zusammengefasst

  • Detaillierter Lehrplan zu allen Studiengängen
  • Alle wichtigen Hintergrundinfos zu Ausbildungszielen, Teilnehmerkreisen, Aufnahmebedingungen und weiterführenden Studiengängen

Leider ist ein Fehler aufgetreten. Bitte versuche es erneut oder nimm mit uns direkt Kontakt auf.

Gratis E-Book für dich

Weiterbildung neben Beruf und Freizeit - schaffe ich das?

Eine Weiterbildung beansprucht Zeit. Deshalb auf Freunde, Familie und Hobbies zu verzichten, muss nicht sein.

Lies jetzt unser E-Book mit 10 wertvollen Tipps zur Work-Life-Learn-Balance.

Weiterbildung neben Beruf und Freizeit – schaffe ich das?

10 Tipps zur Work-Life-Learn-Balance

Eine Weiterbildung beansprucht Zeit. Deshalb auf Freunde, Familie und Hobbies zu verzichten, wäre falsch.

In diesem E-Book erfährst du:

  • wie du deine Zeit effizienter nutzt
  • wie du dich trotz Weiterbildung genügend Freizeit bewahrst
  • wie sich Beruf, Weiterbildung und Freizeit gegenseitig ergänzen statt konkurrenzieren können

Tipps aus dem Inhalt

  • TIPP 1: Gestalte deine Arbeit so flexibel wie möglich!
  • TIPP 2: Beziehe Arbeitgeber sowie Kollegen und Kolleginnen in deine Weiterbildungspläne mit ein!
  • TIPP 3: Arbeite effizienter und effektiver mit Zielorientierung!
  • TIPP 4: Entwickle deinen idealen Lernrhythmus!
  • TIPP 5: Lerne mit System und festen Strukturen!
  • TIPP 6: Schaffe genug Ausgleich und Entspannung!
  • TIPP 7: Binde deine/n Partner/in, deine Familie und externe Hilfen in deine Planung ein!
  • TIPP 8: Belohne dich für deine Erfolge!
  • TIPP 9: Mach eine Zeitinventur!
  • TIPP 10: Erstelle eine Zeitplanung aller drei Bereiche!

Leider ist ein Fehler aufgetreten. Bitte versuche es erneut oder nimm mit uns direkt Kontakt auf.