Umnutzung Stadtkirche Klingnau
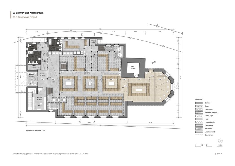
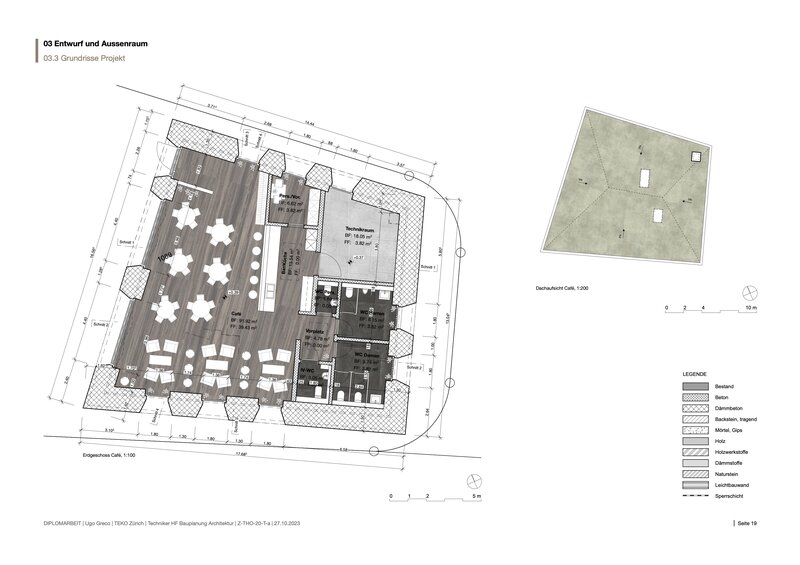
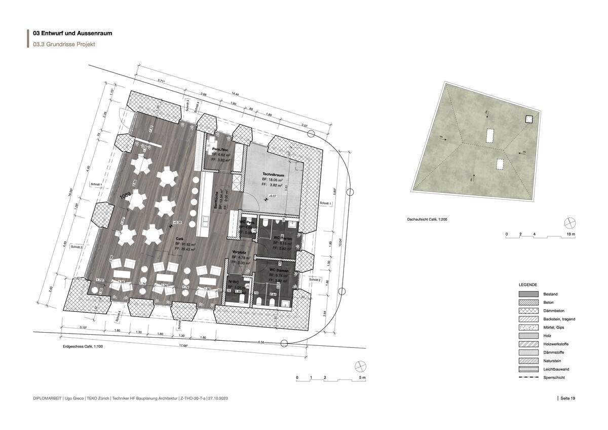
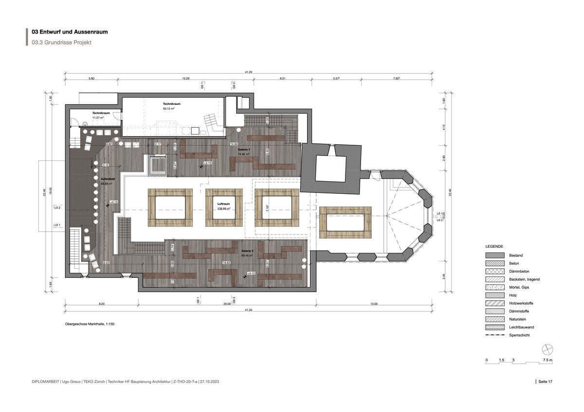
Markthalle mit Café
Die Kirche soll zu einer Markthalle umgenutzt werden, um der oft leerstehenden Immobilie neues Leben einzuhauchen. Zusätzlich ist geplant, auf dem Grundstück ein Café aus Dämmbeton zu errichten, um die Nutzung der Kirche zu ergänzen und die Altstadt lebendiger zu gestalten.
Ausgangslage
Die Kirchgemeinde Klingnau steht vor der Herausforderung eines schwindenden Interesses an der katholischen Gemeinschaft, was zu unbesuchten Gottesdiensten und einer ständig leeren Pfarrkirche St. Katharina in der Altstadt führt. Um dem entgegenzuwirken, soll die Immobilie sinnvoll und rentabel umgenutzt werden, um ihr neues Leben einzuhauchen. Zusätzlich ist geplant, auf dem Grundstück einen Neubau zu errichten, um die Nutzung in der Kirche zu ergänzen. Das Projekt und der Entwurf müssen verschiedene Vorgaben berücksichtigen, darunter ressourcenschonender Unterhalt und Renovierung, die Strategien der Stadt zur Belebung der Altstadt sowie denkmalpflegerische Auflagen für den Chor. Es ist wichtig, dass das bestehende Gebäude weder aufgestockt noch angebaut wird und seine statische und konstruktive Struktur unverändert bleibt. Die Gebäudehülle soll ebenfalls unangetastet bleiben. Der Bauherr strebt neben einer angemessenen Rendite auch eine nachhaltige Nutzung des Objekts an.
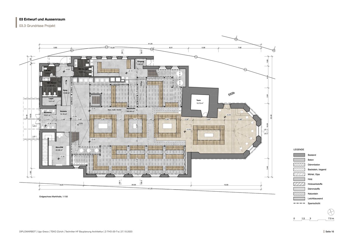
Projekt
Die vorgeschlagene Umnutzung der leerstehenden Kirche beinhaltet eine grosszügige Markthalle im Erdgeschoss mit Marktständen und erweiterten vermietbaren Flächen durch ein neues Galeriegeschoss auf einer Holzkonstruktion. Das Café wird als eingeschossiges Gebäude aus monolithischem Dämmbeton konzipiert. Die Gesamtkosten für die Markthalle belaufen sich auf etwa 1.4 Millionen CHF, während die Erstellung des Cafés 950'000 CHF kostet. Durch beide Projekte wird eine Nettorendite von 3.70% ermöglicht. Die Markthalle soll am 15. April 2025 eröffnet werden, während das Café bereits am 10. April 2025 seine Türen öffnet.

Ugo Greco
Diplomarbeit
Mit Vergnügen stelle ich Ihnen eine gekürzte Version meiner Diplomarbeit zur Verfügung. Wenn Sie Interesse an der Einsicht der vollständigen Fassung haben, kontaktieren Sie mich bitte.













