Diplomarbeit 2022
Sanierungsprojekt Gewerbegebäude Grenchen
Das Gewerbegebäude hat eine hervorragende Lage in der Wohnzone von Grenchen, dies kommt der Liegenschaft einfach zugute. Mit der Neuausrichtung der Nutzungen sowie die Aufwertung der Innenräume und der Fassade, kann sich das Objekt auf dem Markt sehen lassen.
Management Summary
In der Zukunft werden Sanierungs-/ Umnutzungsprojekte wie solche, immer mehr eine Rolle in der Baubranche spielen. Der Grund dafür ist, dass bald keine freie überbaubare Fläche zur Verfügung stehen wird.
Das Ziel der Aufgabenstellung ist es, das Objekt auszunutzen und es gemäss den heutigen Standards und Ausführung zu planen. Dieses Gebäude befindet sich in einer Wohnzone und soll demensprechend auch im gestalterischen Aspekt der Architektur berücksichtigt werden.
Dazu sollte die Marktanalyse vorgeben, welche Wohnungen zurzeit gesucht werden und in der letzten Zeit besser vermietet wurden.
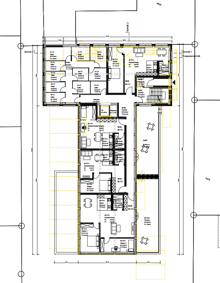
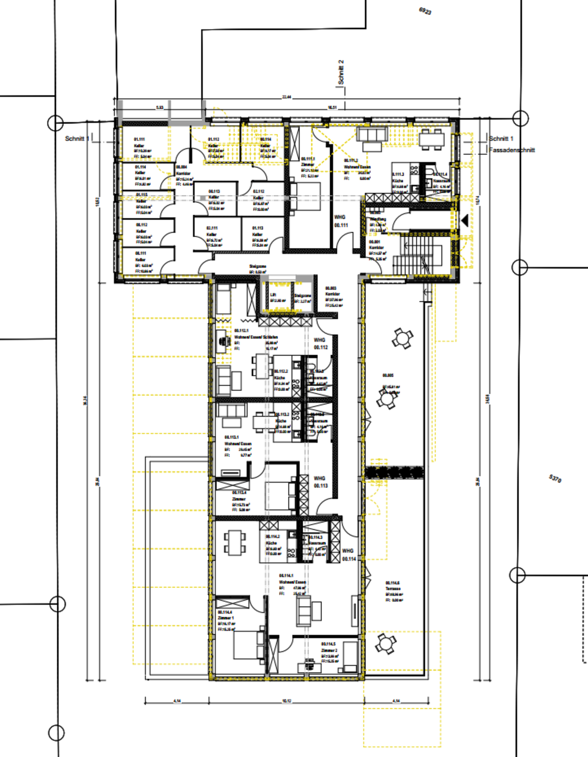
Der Skelettbau trägt durch das Stützenraster die Lasten ab, daher können zukünftige Wände nicht tragend ausgeführt werden.
Enwurf
Das bestehende Stützenraster ist nicht optimal für Wohnungen geeignet. Ich konnte jedoch mit dem bestehenden Raster 1.5/ 2.5 Zimmer und 3.5 Zimmer Wohnungen einbauen.
Statik
Das bestehende Gebäude wurde am Ende der 60er Jahren erstellt, dementsprechend ist auch die Statik ausgelegt. Das Tragwerk liegt auf einem Stützenraster. Aufgrund der fehlenden Innenwänden besitzt das Gebäude nur eine sehr geringe Erdbebenaussteifung, was die horizontalen Lasten und Bewegungen nicht entgegenwirken kann.
Die Erdbebensicherheit werde ich durch Betonieren neuer Wände gewährleisten.

Milena Nikolic
Onlinepräsentation
Auszüge meiner Diplomarbeit stehen Ihnen hier zur Verfügung.









