industrial townhouse
Diplomarbeit 2022 - Dipl. Techniker HF Bauplanung Olten
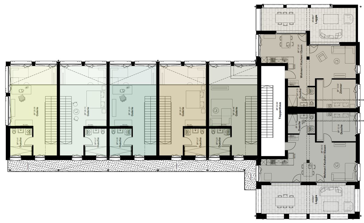
Die Struktur des Gebäudes wird belassen. Die Erschliessung vom nördlichen Bereich wird an einen zentralen Punkt des Gebäudes geführt. Die Skelettbauweise bleibt in seiner ursprünglichen Struktur erhalten. Die Stützenanordnung sowie die Bandfenster sind markante Bestandteile des Industriebaus. Diese Stützen sowie die Fensteranordnungen werden im neuen Entwurf berücksichtigt und architektonisch neu interpretiert. Ein architektonisches Highlight bilden daher die vertikalen Lisenen in der Fassadenstruktur und der neue Laubengang. Diese Gliederungen verleihen dem Gebäude eine ruhige und klare Struktur.
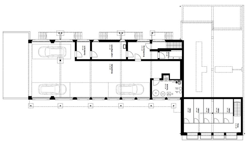
Beim Studienobjekt handelt es sich um ein leerstehendes Gewerbegebäude inmitten eines Einfamilienhaus-Wohnquartiers. Ursprünglich als Quartierhaus erstellt, wurde die Liegenschaft mehrfach erweitert und zum Gewerbegebäude umgenutzt. Die Liegenschaft besteht aus zwei unterschiedlich hohen Gebäudekuben, die T-förmig angeordnet sind. Das Gebäude steht seit Längerem leer und ist teilweise in einem desolaten Zustand. Die statische Struktur der Skelettbauweise funktioniert jedoch und besitzt Potenzial. Daher soll die Bausubstanz entsprechend erhalten bleiben und darauf aufgebaut werden.
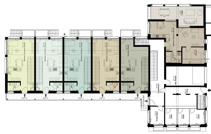
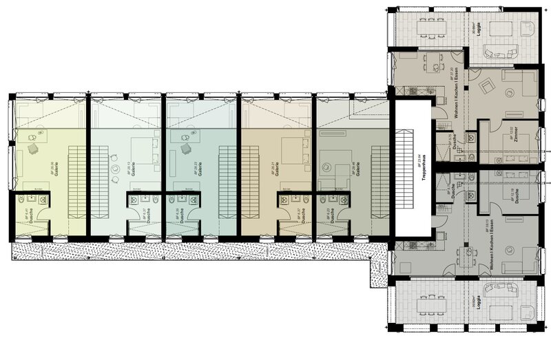
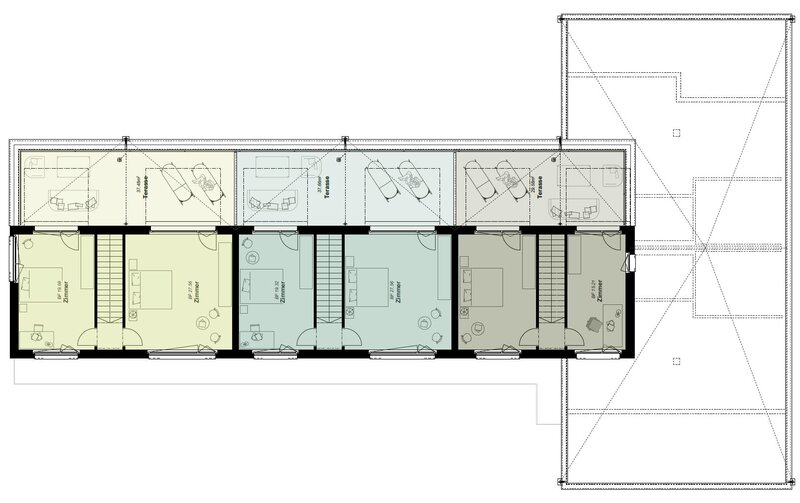
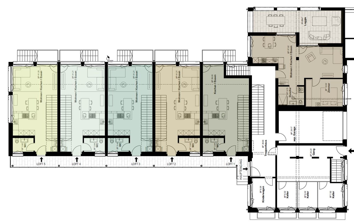
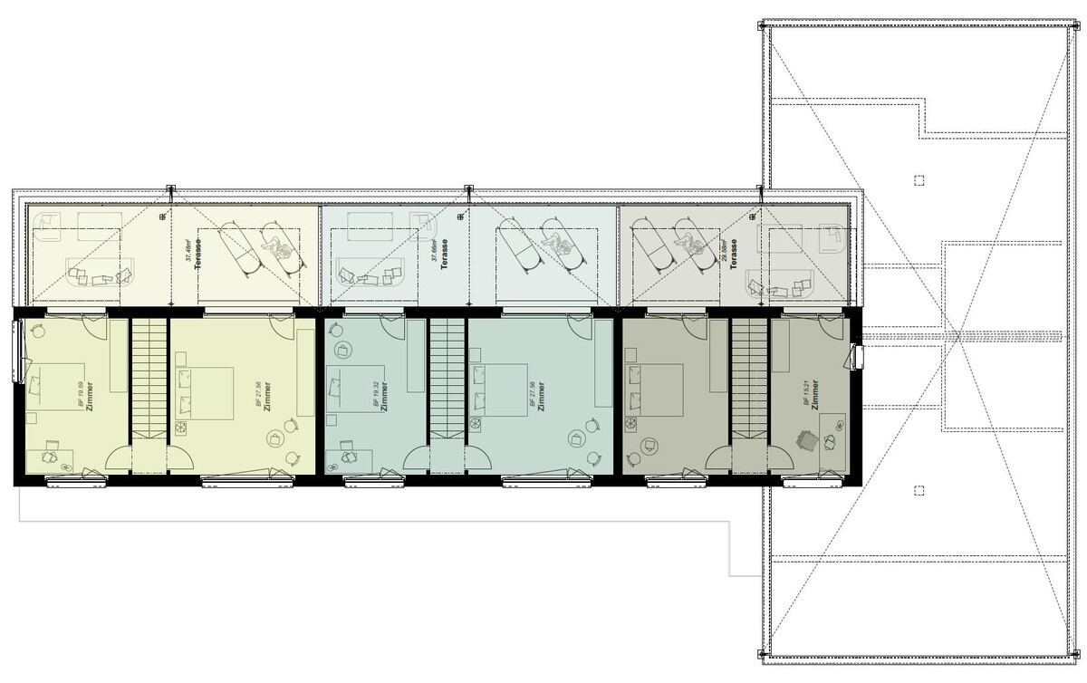
Die Idee von Loftwohnungen hat mich von Beginn an fasziniert und nicht mehr losgelassen. Somit ist der Entwurf von mehreren Loftwohnungen entstanden, die zum Teil übereinander wachsen. Im südlichen Bereich gibt es drei grosse und zwei kleinere Wohnungen.
Der Charakter dieser Idee wurde mit dem umliegenden Kontext erarbeitet, der grösstenteils aus Einfamilienhäusern besteht. Die Wohnungen haben alle ihren eigenen Innen- sowie Aussenbereich, sodass das Gefühl von einem Reihenhaus entsteht.
Aufgrund der Marktanalyse in der Entwurfsphase wurde festgestellt, dass eine sehr grosse Nachfrage nach gehobenem Standard vorhanden ist. Deshalb werden qualitativ hochwertige Wohnungen im höheren Mietsegment angeboten. Als Ausgangslage für die definitive Renditeberechnung dient der Kostenvoranschlag. Mit einem Kapitalisierungssatz von 4.2% und einem Investment von 4'962'000 CHF beläuft sich die Bruttorendite auf 3.74%. In der aktuellen Wirtschaftslage sind Projekte mit dieser Bruttorendite durchaus attraktiv.












