Dipl. Techniker/in HF Bauplanung Architektur

Umbau Gewerbegebäude Grenchen

Städtisches Wohnen im Grünen l Maluhia House

2. November 2022
Noelia Carangelo

AUSGANGSLAGE:

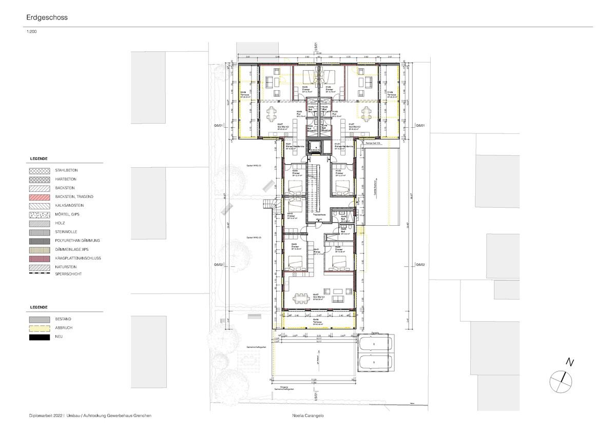
Die diesjährige Diplomarbeit umfasst einen Umbau eines bestehenden Gewerbehauses in Grenchen SO.

Die Liegenschaft befindet sich in einem Einfamilienhaus-Wohnquartier. Das Gebäude wurde ursprünglich als Quartiershaus erstellt und danach mehrfach erweitert bis es zum Schluss als Gewerbegebäude umgenutzt wurde.

Das Ziel der Aufgabe ist es, das bestehende Gebäude zurück zu seiner Ursprungsnutzung zu führen. Die bestehende Bausubstanz und der Skelettbau soll möglichst erhalten bleiben. Der Wunsch der Bauherrschaft ist es, aus dem Gebäude eine Renditenliegenschaft zu erstellen, welche langfristig und nachhaltig ist.



KONZEPT:
Die Grundrisskonzeption wurde auf Basis des bestehenden Skelettbaus erstellt, indem dieser modernisiert wurde und so Wohnungen für Familien, Paare oder Singles konzipiert wurden. Durch die behindertengerechte Bauweise entstand ein attraktives Wohnhaus, welches generationenübergreifend genutzt werden kann. Für jede der sieben entstandenen Wohnungen stehen grosszügige Terrassen zur Verfügung, welche überdeckt sind. Um die Gemeinschaft etwas zu fördern, gibt es im Südosten der Parzelle einen Gemeinschaftsgarten für gross und klein.
Die Investitionskosten belaufen sich auf 5.2 Millionen Franken.
Durch die Wahl von unterhaltsarmen Bauteilen und einer optimalen Ausnützung, kann eine Nettorendite von 2.2% erreicht werden. Man kann mit einem Bezug ab dem 09. Dezember 2024
rechnen.

FAZIT:
Nach der sechs-wöchigen Überarbeitung eines Gewerbegebäudes in Grenchen, ist ein Projekt entstanden, welches bewilligungsfähig und überzeugend ist. Das Gebäude widerspiegelt zum einen den Charakter des bestehenden Baus, wurde jedoch aufgefrischt, ergänzt, modernisiert und nun optimal ausgenützt. Es entstand ein Entwurf mit rotem Faden, welcher auf die Wünsche der Bauherrschaft eingegangen ist.

Portrait

Noelia Carangelo

Onlinepräsentation

Auszüge meiner DA stehen Ihnen hier zur Verfügung.

Weiterbildung neben Beruf und Freizeit

Gratis E-Book mit 10 Tipps zur Work-Life-Learn-Balance

Weiterbildung neben Beruf und Freizeit – schaffe ich das?

10 Tipps zur Work-Life-Learn-Balance

Eine Weiterbildung beansprucht Zeit. Deshalb auf Freunde, Familie und Hobbies zu verzichten, wäre falsch.

In diesem E-Book erfährst du:

  • wie du deine Zeit effizienter nutzt
  • wie du dich trotz Weiterbildung genügend Freizeit bewahrst
  • wie sich Beruf, Weiterbildung und Freizeit gegenseitig ergänzen statt konkurrenzieren können

Tipps aus dem Inhalt

  • TIPP 1: Gestalte deine Arbeit so flexibel wie möglich!
  • TIPP 2: Beziehe Arbeitgeber sowie Kollegen und Kolleginnen in deine Weiterbildungspläne mit ein!
  • TIPP 3: Arbeite effizienter und effektiver mit Zielorientierung!
  • TIPP 4: Entwickle deinen idealen Lernrhythmus!
  • TIPP 5: Lerne mit System und festen Strukturen!
  • TIPP 6: Schaffe genug Ausgleich und Entspannung!
  • TIPP 7: Binde deine/n Partner/in, deine Familie und externe Hilfen in deine Planung ein!
  • TIPP 8: Belohne dich für deine Erfolge!
  • TIPP 9: Mach eine Zeitinventur!
  • TIPP 10: Erstelle eine Zeitplanung aller drei Bereiche!

Leider ist ein Fehler aufgetreten. Bitte versuche es erneut oder nimm mit uns direkt Kontakt auf.

Aktuelles Studienprogramm

Alles Wissenswerte zur Weiterbildung in einem PDF zusammengefasst.

Studienprogramm  herunterladen

Alles Wissenswerte zu deiner Weiterbildung in einem PDF zusammengefasst

  • Detaillierter Lehrplan zu allen Studiengängen
  • Alle wichtigen Hintergrundinfos zu Ausbildungszielen, Teilnehmerkreisen, Aufnahmebedingungen und weiterführenden Studiengängen

Leider ist ein Fehler aufgetreten. Bitte versuche es erneut oder nimm mit uns direkt Kontakt auf.

Gratis E-Book für dich

Weiterbildung neben Beruf und Freizeit - schaffe ich das?

Eine Weiterbildung beansprucht Zeit. Deshalb auf Freunde, Familie und Hobbies zu verzichten, muss nicht sein.

Lies jetzt unser E-Book mit 10 wertvollen Tipps zur Work-Life-Learn-Balance.

Weiterbildung neben Beruf und Freizeit – schaffe ich das?

10 Tipps zur Work-Life-Learn-Balance

Eine Weiterbildung beansprucht Zeit. Deshalb auf Freunde, Familie und Hobbies zu verzichten, wäre falsch.

In diesem E-Book erfährst du:

  • wie du deine Zeit effizienter nutzt
  • wie du dich trotz Weiterbildung genügend Freizeit bewahrst
  • wie sich Beruf, Weiterbildung und Freizeit gegenseitig ergänzen statt konkurrenzieren können

Tipps aus dem Inhalt

  • TIPP 1: Gestalte deine Arbeit so flexibel wie möglich!
  • TIPP 2: Beziehe Arbeitgeber sowie Kollegen und Kolleginnen in deine Weiterbildungspläne mit ein!
  • TIPP 3: Arbeite effizienter und effektiver mit Zielorientierung!
  • TIPP 4: Entwickle deinen idealen Lernrhythmus!
  • TIPP 5: Lerne mit System und festen Strukturen!
  • TIPP 6: Schaffe genug Ausgleich und Entspannung!
  • TIPP 7: Binde deine/n Partner/in, deine Familie und externe Hilfen in deine Planung ein!
  • TIPP 8: Belohne dich für deine Erfolge!
  • TIPP 9: Mach eine Zeitinventur!
  • TIPP 10: Erstelle eine Zeitplanung aller drei Bereiche!

Leider ist ein Fehler aufgetreten. Bitte versuche es erneut oder nimm mit uns direkt Kontakt auf.