Diplomarbeit 2021
Wohn- und Gewerbehaus | Allmend 37, Sempach
Neubau einer Wohn- und Gewerbeliegenschaft mit Integration des bestehenden Holzelementbaus.
Ausgangslage
Im Rahmen der Diplomarbeit wurde für die Liegenschaft Allmend 37 in Sempach LU ein Neubauprojekt erarbeitet. Die Parzelle befindet sich in einem kleinen Gewerbegebiet, rund einen Kilometer östlich der Gemeinde Sempach und beheimatet heute einen ca. zehn Jahre alten Holzelementbau, welcher solide gebaut und in einem guten Zustand ist.
Die neue Eigentümerschaft möchte jedoch das vorhandene Potenzial der Liegenschaft besser ausnutzen, weshalb das bestehende Gebäude einem Ersatzneubau weichen soll. Aus Gründen der Nachhaltigkeit soll der bestehende Elementbau in das Neubauprojekt integriert und wiederverwendet werden. Die Aufgabenstellung sieht vor, einen neuen Gewerbebau zu planen, bei welchem im Erdgeschoss neue Gewerberäume entstehen, darüber soll ein Parkdeck entstehen. Über diesem Parkdeck wiederum soll dann der heute bestehenden Holzelementbau neu angeordnet werden.
Projekt
Entwurf & Konstruktion
Das ausgearbeitete Projekt nutzt das Potenzial der Parzelle bestmöglich aus. Der geplante Baukörper schöpft die maximal zulässige Gebäudehöhe von 15 Metern vollständig aus, auch der Fussabdruck ist unter Einhaltung der Grenzabstände von sechs Metern so gestaltet, dass die bebaubare Fläche zu grossen Teilen genutzt wird.
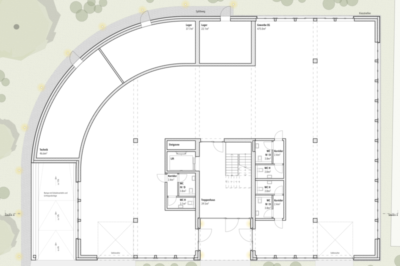
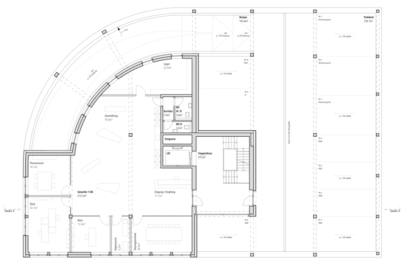
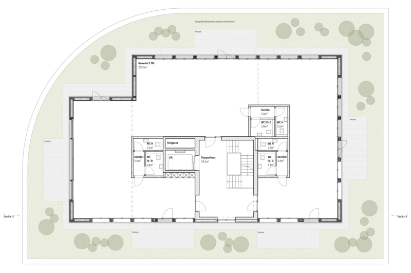
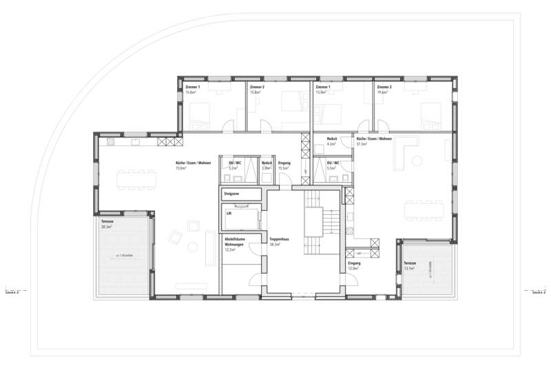
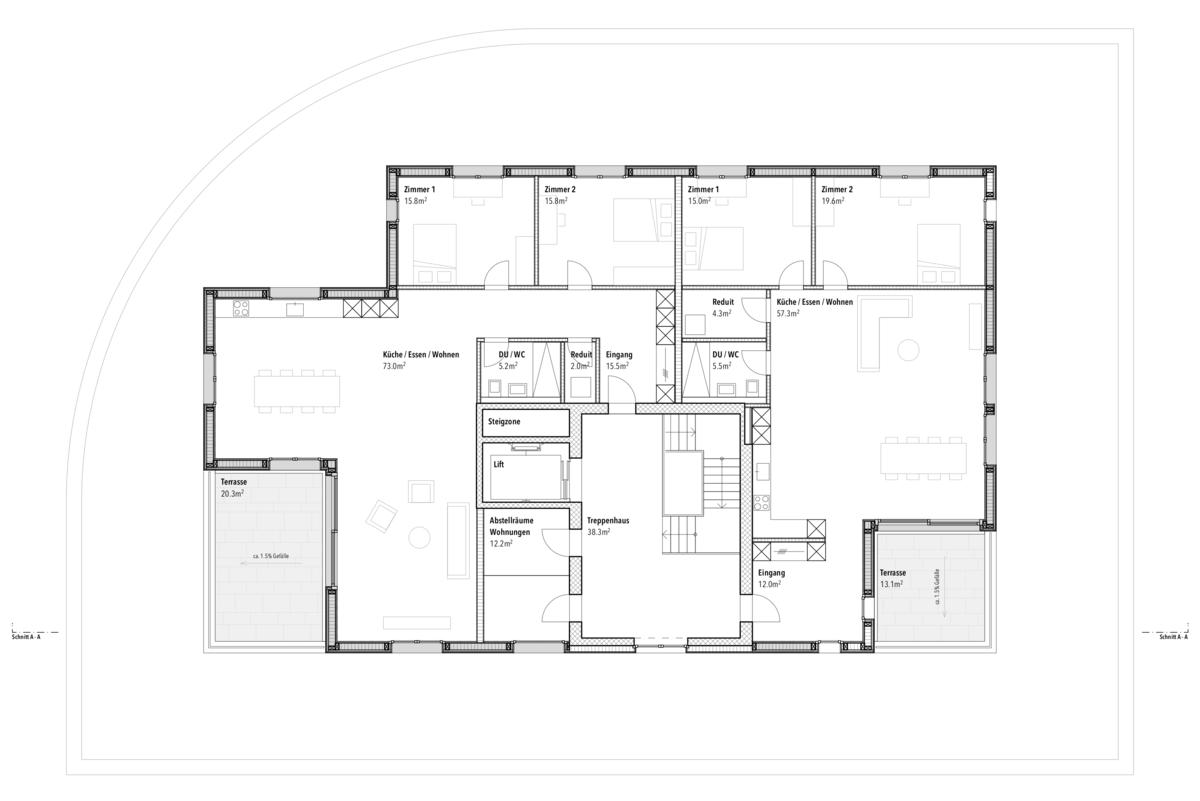
Das viergeschossige Gebäude ist in Hybridbauweise geplant, wobei die beiden unteren Geschosse sowie der Erschliessungskern mit Treppenhaus und Liftanlage in Massivbauweise erstellt werden, während die beiden oberen Geschosse in Holzbauweise angedacht sind. Dabei werden alle Wandelemente des heute bestehenden Gebäudes wiederverwendet und teilweise mit neuen, baugleichen Elementen ergänzt.
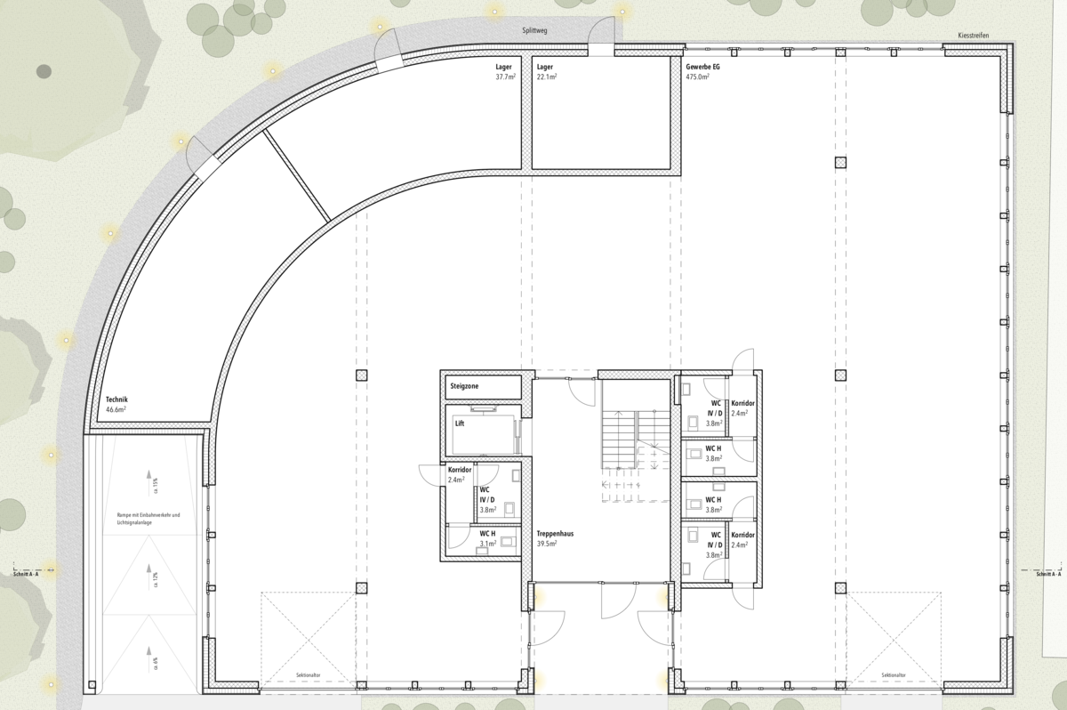
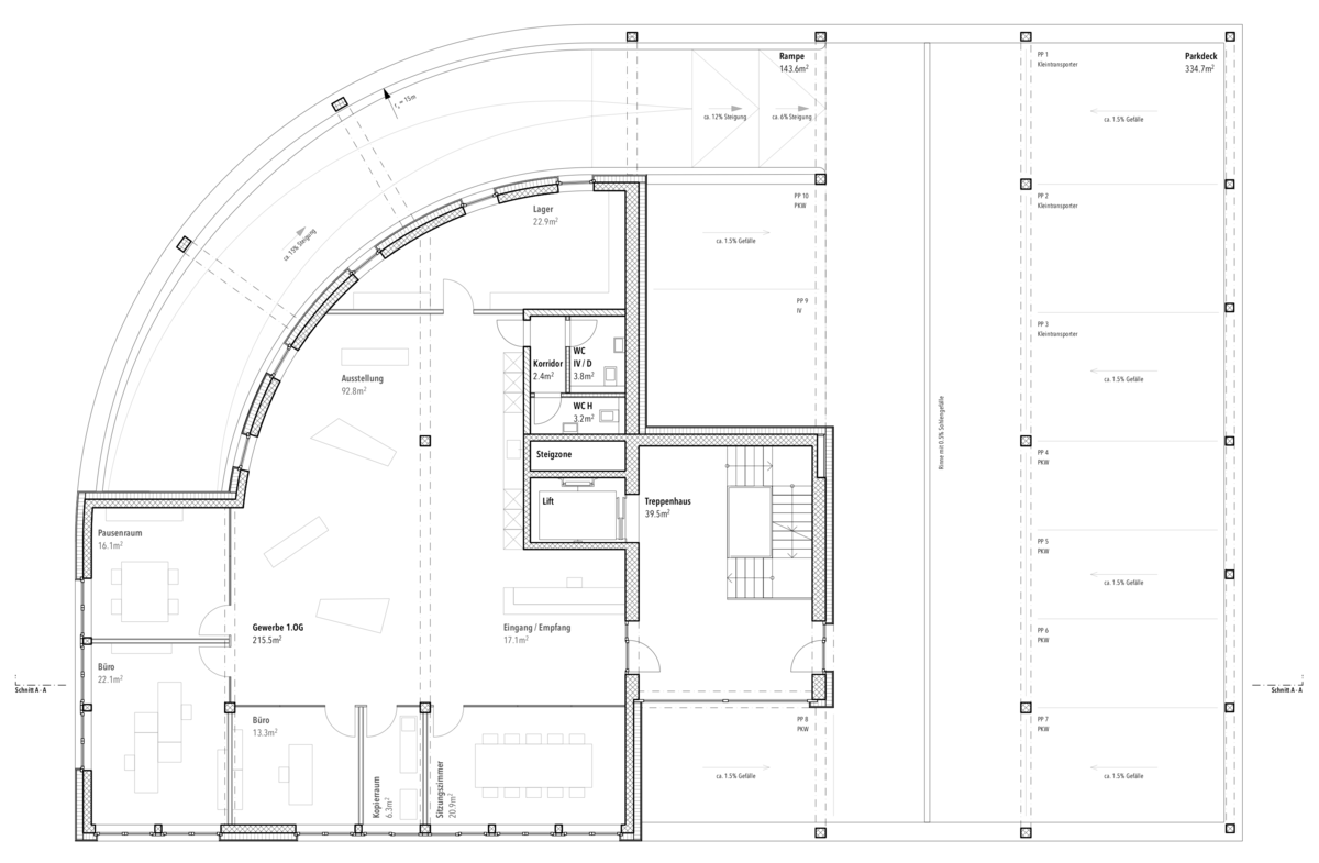
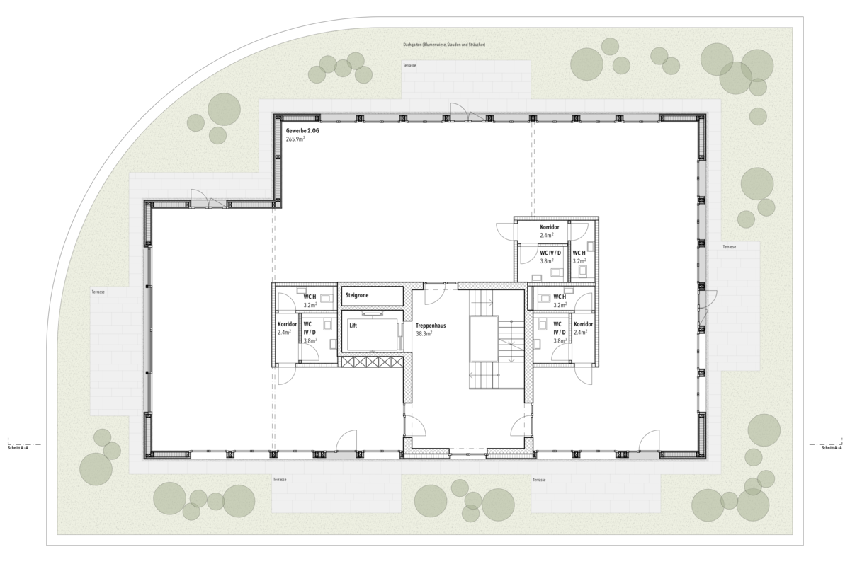
Die Nutzung gliedert sich in die drei Hauptbereiche Gewerbe, Parkierung und Wohnen. Im Erdgeschoss befinden sich grosszügige Gewerbeflächen mit einer lichten Raumhöhe von mindestens 4.10 Meter, welche sich in maximal drei einzeln mietbare Flächen unterteilen lassen. Durch das gewählte Grundrisslayout können die Teilbereiche flexibel unterteilt werden. So können bei Bedarf auch zwei oder alle drei Teilbereiche zu einer grösseren Fläche zusammengeschlossen werden. Im Aussenraum sind nebst der Zufahrtsstrasse drei Besucherparkplätze sowie Veloabstellplätze vorgesehen, die übrigen Flächen werden begrünt und schliessen nahtlos an das bestehende Retentionsbecken an. Das erste Oberschoss dient einerseits der Parkierung, andererseits wird eine weitere Gewerbefläche angeboten. Im zweiten Obergeschoss kommen wiederum Gewerberäumlichkeiten zu liegen, welche dieselbe Flexibilität bieten, wie jene im Erdgeschoss. Zudem werden ausladende Aussenräume in Form von Terrassen und einem umlaufenden Dachgarten angeboten. Das Dachgeschoss ist ausschliesslich der Nutzung Wohnen zugeteilt. Für Betriebsinhaber und an den Standort gebundenes Personal stehen hier zwei grosszügige Mietwohnungen zur Verfügung.
Haustechnik
Die beiden bereits bestehenden Erdwärmesonden werden wieder genutzt und um drei weitere ergänzt, um den neuen Wärmebedarf abdecken zu können. Über eine Sole-Wasser-Wärmepumpe werden sowohl die Heizung als auch die Warmwasserversorgung bedient. Die Heizverteilung erfolgt im Erdgeschoss über thermoaktive Bauteilaktivierung der Bodenplatte und in den Obergeschossen über Fussbodenheizung.
Eine Lüftung ist nicht vorgesehen, da sämtliche Räume auch natürlich belüftet werden können. Bei späterem Bedarf, kann in den Lagerräumen im Erdgeschoss problemlos eine Lüftung nachgerüstet werden. Die zentrale Steigzone ist ausreichend gross dimensioniert, sodass ein nachträglicher Einbau problemlos möglich ist.
Zahlen & Fakten
Die Kosten für das Projekt sind mit rund CHF 6'500'000.- veranschlagt, bei jährlichen Netto-Mieteinnahmen von etwa CHF 180'000.- ergibt sich somit eine akzeptable Nettorendite von ungefähr 2.7%.
Der ehemalige Eigentümer wird die Liegenschaft bis Ende September 2022 räumen, somit kann der Baustart im Oktober 2022 erfolgen. Bei einer Bauzeit von rund elf Monaten ist der Bezug der neuen Mieterschaft somit ab September 2023 vorgesehen.
Fazit
Der Entwurf kann alle geforderten Kriterien erfüllen und fügt sich selbstverständlich in den Kontext des Gewerbegebietes ein. Der Neubau mit attraktiven Gewerbe- und Wohnflächen erzielt eine angemessene Rendite und kann aufgrund der nachhaltigen Bauweise wirtschaftlich erstellt und unterhalten werden.Marius Hochuli
Ich habe eine Ausbildung im handwerklichen Bereich absolviert und arbeite seit sechs Jahren in einem Architekturbüro. Meine Haupttätigkeiten umfassen die Planung und Ausführung verschiedener Bauprojekte.
marius.hochuli@hotmail.com
Abgabebroschüre der Diplomarbeit dipl. Techniker HF in Bauplanung 2021
Download Diplomarbeit









