Neubau Gewerbehaus mit Dachparking
Allmend Sempach
Diplomarbeit 2021 | Teko Bern
Zum Abschluss des/r Diplomierten Techniker/in HF Bauplanung Fachrichtung Architektur gehört die Erarbeitung einer individuellen Diplomarbeit. In der vor- liegenden Arbeit präsentiere ich Ihnen meinen Vorschlag zum Neubau eines Gewerbehauses mit Dachparking unter Wiederverwendung des bestehenden Elementbaus. Innerhalb von eineinhalb Monaten habe ich mich damit auseinander gesetzt, ein Projekt zu erschaffen, welches sich auf von der strategischen Planung über die Ausführungsplanung bis hin zur Wirtschaftlichkeit auf das Studienobjekt anwenden lässt.
Beim Objekt handelt es sich um einen bestehenden Holzpavillon, welcher in neuer Komposition aktiviert werden soll. Die Bauherrschaft strebt den Neubau eines Gewerbegeschoss mit Dachparking an. Darüber soll insbesondere der bestehende ModulHolzbau Platz finden. Über weitere oberirdische Geschosse, kann im Rahmen der Gesetzmässigkeiten, selbst entschieden werden.
Nach der Begehung vor Ort, war mir eine ausführliche Bestandesanalyse wichtig. Nur so konnte ich der Aufgabe, ein wirtschaftliches und nachhaltiges Projekt zu schaffen, gerecht werden. Relativ schnell musste ich im Entwurf über einzelne Disziplinen hinwegsehen; den Entscheid ein Holztragwerk zu realisieren hatte massgebend Einfluss auf die Grundrissgestaltung, die Höhe und damit verbundene Anzahl der Stockwerke, Konstruktion und Statik.
ANALYSE
Die Aufgabenstellung lässt weitgehend offen, wie das Gebäude genutzt werden sollte. Dies verlangt eine relativ genaue Analyse, in der, besonders die Lage eine Herausforderung darstellt. Auffallend ist, dass die Parzelle durch ihre verkehrstechnischen Gegebenheiten, Beschränkungen in der Nutzung abverlangt. Sempach ist hauptsächlich für den historischen Kleinstadtkern mit Seeanschluss bekannt, was sich im eher teuren Wohnraum bemerkbar macht. Die Allmend liegt jedoch vom Stadtzentrum zu weit weg und muss daher separat gelesen werden.
Arbeiter*innen, Lieferant*innen, Kund*innen oder sonstige Besuchende werden vorwiegend mit dem Auto, einem Motorrad oder dem Elektrovelo zur Allmend gelangen. Für kleinere Handwerksbetriebe ist die Allmend 37 interessant. Somit ist eine flexible Nutzung die beste Lösung, dem Leerstandsrisiko entgegenzuwirken.
ENTWURF
Städtebaulich war die Aufgabenstellung ein leichtes Spiel. Das industriell geprägte Quartier stellt keine hohen Erwartungen. Trotzdem hatte ich den Eindruck, dass die Bauherrschaft sich etwas wünscht, das sich von den umliegenden Gebäuden abhebt. Ausdruck dafür ist meines Erachtens, die Vorgabe die Parkplätze im Obergeschoss zu realisieren; Rein rational betrachtet, müsste dies wohl einer anderen Lösung weichen. Doch in Anbetracht, dass die Auffahrt ins Obergeschoss auch als Erlebnis/Happening gelesen werden kann, bekommt die emotionale Ebene eine zusätzliche Gewichtung.
Nun also besteht in der umliegenden Architektur eine relativ starre Struktur. Klare und grosse Volumen säumen das Strassenraster. Mein Ziel war es, einen Kubus zu schaffen, welcher im ersten Blick ins Quartier passt. Unter genauer Betrachtung jedoch, die vielschichtigen Nutzungen erahnen lässt. Um dies zum Leben zu erwecken, bündelt eine transluzente Fassade das Innenleben.
Die Fassade des bestehenden Holzpavillons ist weitgehend in sehr gutem Zustand, weshalb ich diese Unverändert weiterverwenden möchte. Die doch etwas auffälligen Dekorplatten wollte ich jedoch nicht zur Hauptattraktion des Gebäudes werden lassen, deshalb habe ich den Pavillon so zurückversetzt, dass die Fassadenelemente den Bestandesbau aus der Ferne nur erahnen lassen.
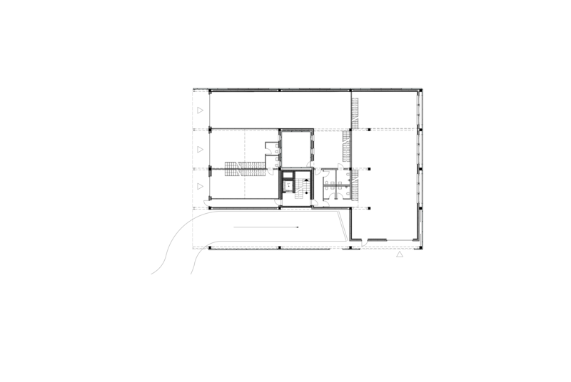
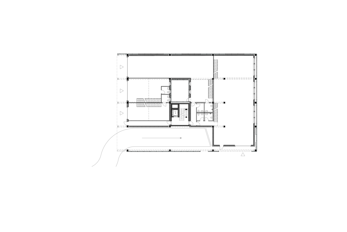
GEBÄUDEORGANISATION UND VERKEHRSFLUSS
Die drei Elemente - Lichthof, Erschliessungskern und Zufahrtsrampe - bestimmen regelrecht die Organisation des gesamten Baukörpers. Die konkurenzierenden Verkehrsflüsse von motorisiertem Induvidualverkehr und Fussgehenden werden bestmöglich voneinander getrennt, ohne dabei grössere Umwege einzubauen. Auch die Anlieferung - oder im Falle, dass ein Handwerksbetrieb temporärArbeit draussen verrichten muss - kann dies geschehen ohne ein Stau zu verursachen.
Der mittig angeordnete Lichthof bringt Luft und Licht bis in die hintersten Räume des Erdgeschosses. Gleichzeitig kön- nen Abgase ungehindert vom Parkgeschoss ins Freie aufsteigen. Die Dachentwässerung kann über den Lichthof ins artirum geführt werden, wovon Wasserpflanzen profitieren.
Der zentrale Erschliessungkern hat noch zwei weitere Vorteile: Zum einen kann die Aussteifung für die Erdbebensicherheit erhöht werden, und zum andern kann das Treppenhaus als Brandabschnitt im Kampf gegen das Feuer Schutz bieten (Sämtliche Wege < 35m).
EINFLUSS DER MATERIALWAHL AUF DEN ENTWURF
Mit der Entscheidung einen Holzbau zu realisieren, drängen sich Fragen zur Lastenabtragung auf. Für die Realisierung des Parkdecks sind Unterzüge von 1.2m Stärke zu rechnen. Abzüglich Deckendämmung, ragen die Träger somit ca. ein Meter in den Luftraum. Um überall eine Deckenhöhe von 4.1m zu erreichen, entstehen somit grosse ungenutzte Lufträume. Als Lösungsansatz ergibt sich der Bau eines Zwischenbodens auf 2.9m Höhe. Die Unteren Räume bieten sich als Lagerflächen an, während die Galerieräume als stiller Arbeitsort genutzt werden können.
BAUSTELLENLOGISTIK
Die zur Verfügung stehenden Platzverhältnisse auf der Bauparzelle sind begrenzt. Durch die bestehende einseitige Zufahrt, sowie der gewachsenen Vegetation rund um die Retentionsanlage bleiben nicht viele Möglichkeiten für die Platzierung von Baustelleninstallationen. Bevor das Parkdeck fertig gestellt ist, muss besonders die Parkplatzsituation kritisch betrachtet werden. Im Idealfall kann eine temporäre Abfindung mit benachbarten Grundeigentümer*innen getroffen werden. Im Vergleich zu einer konventionellen Bauweise, hat die weitgehend vorgefertigte Modulbauweise meines Lösungsvorschlages, den Vorteil das sich die Zeitspanne zwischen Baubeginn und Fertigstellung des Parkdecks verkürzt. Somit kann gleichzeitig auch damit gerechnet werden, dass der aufzusetzende Holzpavillon weniger lange eingelagert werden muss.
Der Abbau des bestehenden Holzbaus erfordert den Einsatz eines Kranes. Wenn die Räumung und der eigentliche Baustart, ohne grössere Zeitverzögerung zu Stande kommt, zahlt es sich aus, wenn ein fester Baukran bereits für den Rückbau gestellt wird.
KONSTRUKTION
Die Konstruktion hat meinen Entwurf massgebend geprägt. Die Crux ist es, geschickt mit dem Dachparking als Kaltgeschoss umzugehen. Neben ökologischen Aspekten ist einer der Hauptvorteile des Holzbaues, dass die Wärmebrücken zwischen den kalt und warm Volumen minimiert werden.
Die Faktoren Langlebigkeit, Nachhaltigkeit sowie der ressourcenschonende Unterhalt haben den Ausschlag gegeben Bauteile so zu verbauen, dass sie in ihren besten Eigenschaften zu trage kommen. So ist auch die Idee entstanden, Holz fast ausschliesslich im wettergeschützten Bereich zu platzieren und die Konstruktion mit einer Leichtbaufassade zu konservieren.
Für die Zukunft ebenso wichtig, ist eine gute Wiederverwendbarkeit und Renovation. Um dem gerecht zu werden, ist der Bau auf ein Minimum an Verbundwerkstoffen reduziert.
Durch die Zufahrtsrampe und die Besonderheiten des Holzbaus ist die Organisation des Gebäudes durchaus komplex. Dies widerspiegelt sich ebenfalls in der Konstruktion. Für eine seriöse Ausführungsplanung ist in diesem Bereich noch einiges an Effort zu leisten.
STATISCHES KONZEPT
Durch die Wahl, das Tragwerk weitgehend in Holz zu entwickelten, sind im Vergleich zur konventionellen Betonbauweise, relativ Massive lastenabtragende Bauteile notwendig. Die Stützen werden in einer 40 x 40 cm dicken Brettschicht-Holzkonstruktion vorgefertigt. Um Spannweiten von bis zu elf Metern zu überbrücken, sind Unterzugsbalken mit den Dimensionen von 28 x 120 cm notwendig. Die Lastenverteilung wird im Parkgeschoss über eine Holz-Beton-Verbunddecke bewerkstelligt. Im zweiten Obergeschoss wird die Abtragung über eine reine Holzdecke erreicht.
Mit Hilfe einer vollflächigen Bodenplatte, verstärkt mit Punktfundamenten unter den Stützen, werden die Lasten in den Boden abgeleitet. Die Erdbebensicherheit kann durch den Betonkern der Erschliessungszone sowie einer zusätzlichen Diagonalverstrebung an der Aussenwand gewährleistet werden. Als ein etwas abgekoppeltes System, werden die anfallenden Lasten der Auffahrtsrampe mit einer Stahlträger-Konstruktion abgefangen, die Fahrspur, verlangt jedoch ebenfalls eine Holz-Beton-Verbunddecke.
HAUSTECHNIK
Wo möglich wird die Haustechnik auf ein Minimum reduziert. Frischluft in den Werkstätten ist auch ohne zusätzliche Technik über Öffnungen wie Fenster, Türen und Falttor gewährleistet. Beheizt werden die überhohen Räume mit Heizlüftern, welche so platziert werden, dass Kälteeinbrüche durch offene Tore gemässigt werden.
Die Lüftung der stillen Gewerbe muss erneuert werden, ein dezentrales System lässt den Luftstrom individuell regeln. Bei der Heizung können Ressourcen gespart werden, indem das bestehende Heizsystem weitgehend wiederverwendet wird.
Elektro-, sowie Sanitärplanung sind nicht Inhalt der geforderten Diplomarbeit.
KOSTEN UND WIRTSCHAFTLICHKEIT
Der Kaufpreis der gesamten Parzelle, inklusive dem Holzpavillon, für einen Preis von eineinhalb Millionen Franken ist erschwinglich. Das Potenzial der Parzelle ist vorhanden. Die Schwirigkeit liegt darin, relativ günstige Quadratmeterpreise anbieten zu können und Mietende zu finden. Ein wichtiges Mittel ist es die Räume in möglichst grosser Flexibilität zu gestalten.
In meinem Entwurf ist die Balance zwischen der Konstruktion und praktischen Grundrissen komplex. Die Aufgabenstellung verlangt Nutzungseinheiten mit einer Mindestgrösse von 75 Quadratmetern. Marktanalysen zeigen auf, dass das Leerstandsrisiko und die Erträge pro Quadratmeter bei kleineren Nutzungseinheiten von ca. 50m2 am optimalsten sind.
Mit einer Eigenkapitalrendite von 3.6% ist mein Projektvorschlag rein ökonomisch betrachtet, kein goldiges Geschäft. Natürlich gibt es noch Kapazität nach oben:
- Im Erdgeschoss kann die beheizte Fläche bis zu den Leichtbauelementen vergrössert werden.
- Die Galeriegeschossfläche kann vergrössert werden.
- Die Attikafläche ist noch wenig ausgereizt, mit mehr Volumen und weniger Fas- sadenfläche, können Erträge gesteigert werden.
- Die lange Auffahrtsrampe geht zu Lasten von attraktiven Nutzungsflächen im EG. Der Bau einer Tiefgarage würde diesem Verlust entgegenwirken.
Jules Möhrle
Grundausbildung als Zeichner Fachrichtung Landschaftsarchitektur, Projektverantwortlicher für Landschaftsarchitekturprojekte
jules.moehrle@gmx.ch
0786919219










